Minimales Bauen: Hotel Rural Casa do Rio von Menos é Mais
Foto: José Campos, Francisco Vieira de Campo
Umgeben von einer zerklüfteten Topografie am Duero, befindet sich das Hotel Rural Casa do Rio des portugiesischen Büros Menos é Mais Arquitectos Associados auf einem steilen Talhang in der Gemeinde Castelo Melhor, Vila Nova de Foz Côa. Oberste Priorität beim Entwurf des Hotels war die Prämisse »to build without touching«, damit das wassernahe Gebiet mit seinen zahlreichen Orangenbäumen nicht gefährdet wird.
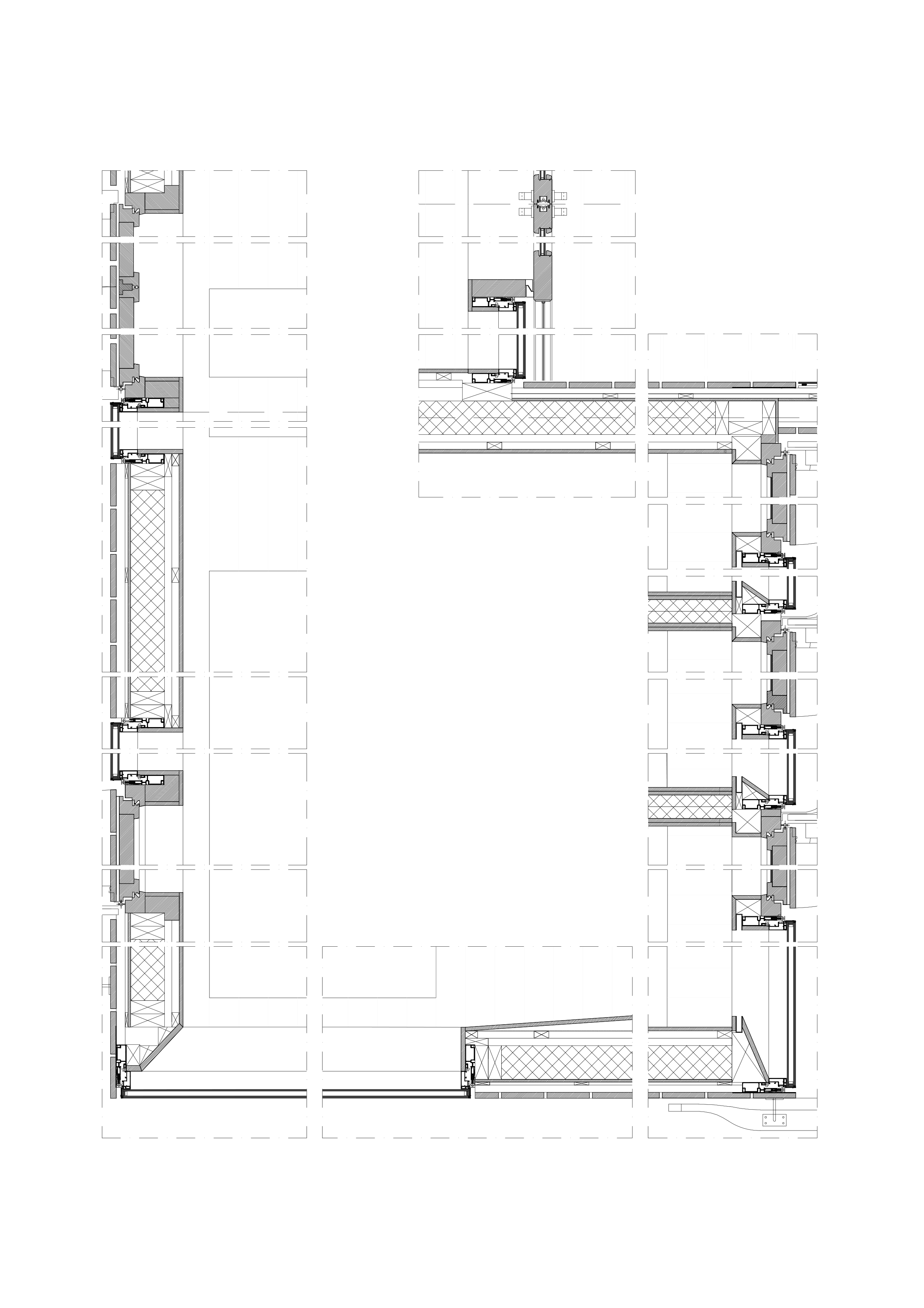
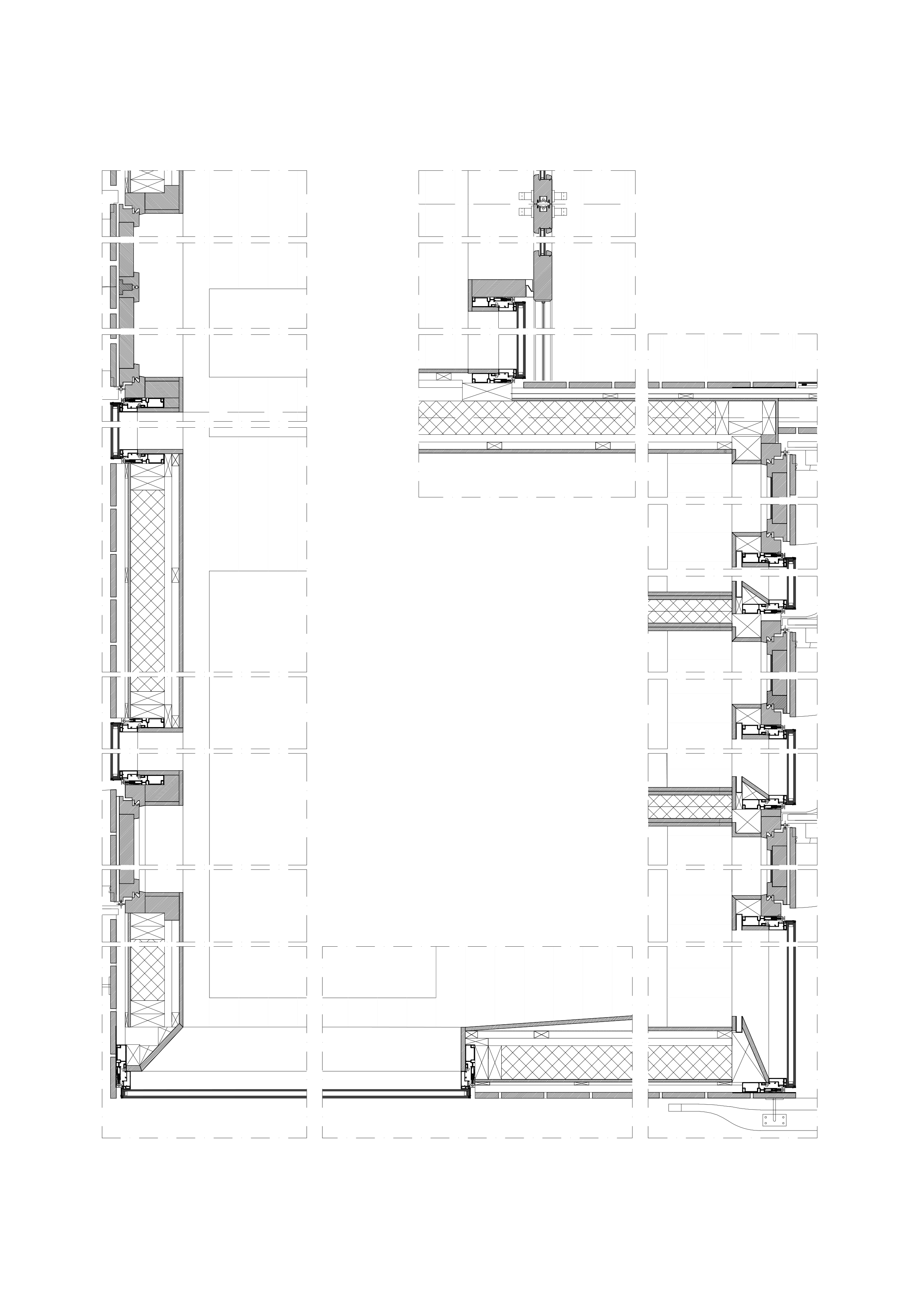
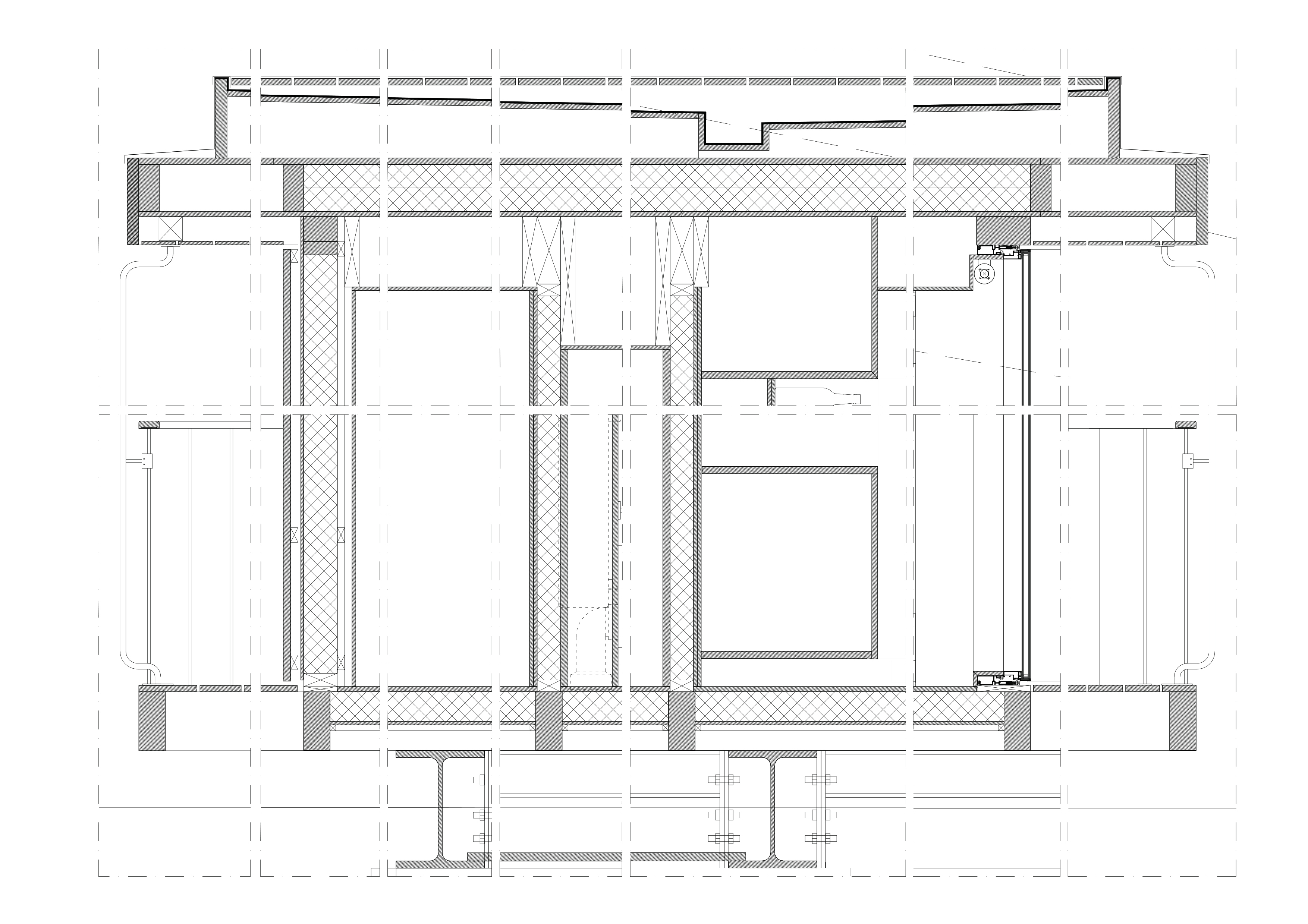
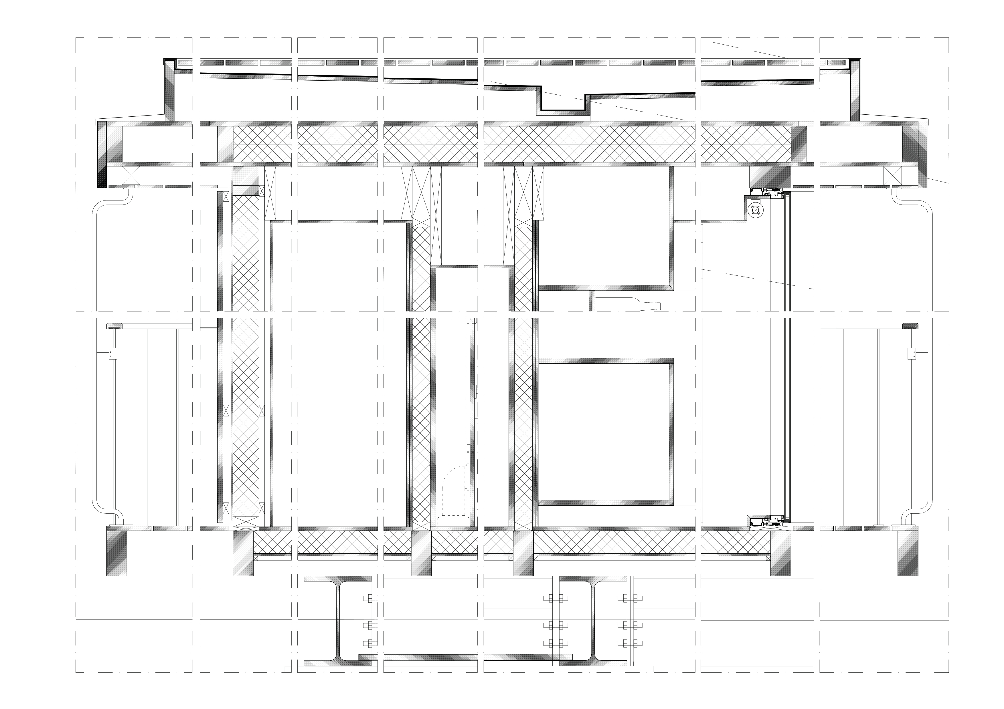
Um eine minimalinverse Intervention in das empfindliche Ökosystem zu gewährleisten, kam eine brückenähnliche Konstruktion zum Einsatz. Das explizit für den Agrotourismus konzipierte Gebäude unterliegt einem Holzbaukastensystem. Fünfzehn Module mit den Abmessungen von jeweils 6,60 x 3,30m erzeugen das gesamte funktionale Raumgefüge. Außenräume in Form von Balkonen und weiträumigen Terrassen formen die Zugänge und dienen als Schutz vor Sonneneinstrahlung und Witterungseinflüssen.
Unter der Holzkonstruktion ruht sich ein metallischer Rahmen mit einer Spannweite von 13m auf zwei Stützen, der auf jeder Seite um 6,6m symmetrisch auskragt. Mit nur zwei Auflagepunkten des Tragwerks garantiere der Baukörper eine minimale Belastung der beanspruchten Bodenfläche, erklären Menos é Mais.
Weitere Informationen:
Project Manager: Francisco Vieira de Campos
Project Team: Inês Mesquita, Cristina Maximino
Structural Engineer: Eulália Soares (Newton-C, Lda)
Hydraulic Installations: Francisco Reis (Newton-C, Lda)
Electrical Equipment, Security and Telecomunications Installations: Maria da Luz (Alfa Consult, Lda)
Mechanical Installations: Raul Bessa (GET, Lda.)
Acoustic consulting: Eulália Soares (Newton-C, Lda)
Constructor: João Veiga-construções, Lda
Wood Constructor: Rusticasa -construções, Lda
Mechanical Installations: Norinstelnor, Instalações Especiais S.A.
Electrical Equipment and Telecomunication Installations: LGB – Sociedade de Projetos e Infraestruturas Eléctricas e de Telecomunicações, Lda
Carpentry: Jolcaz-Carpintaria Unipessoal, Lda
Supervising: Códio-projectos Coordenação E Direcção De Obras, Lda
Interior Decoration: Menos é Mais com João Álvares Ribeiro























