Moderne Neuinterpretation von Traditionen: Simone Subissatis Casa di Confine
Foto: Alessandro Magi Galluzzi
»Die Idee war es, einen fließenden Übergang zu schaffen, die Grenzen aufzubrechen ohne dabei dem Konventionellen zu folgen«, so Simone Subissati.
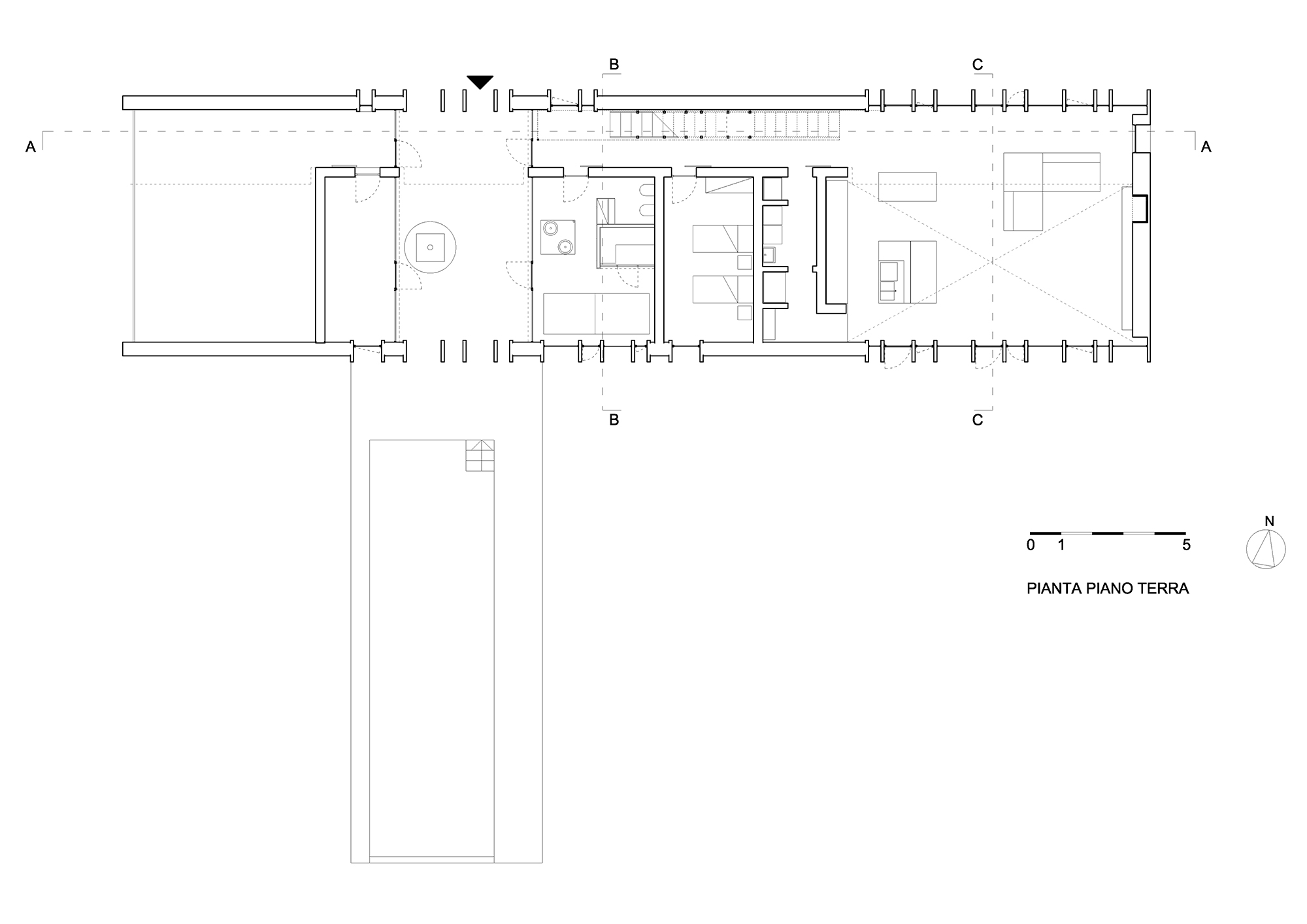
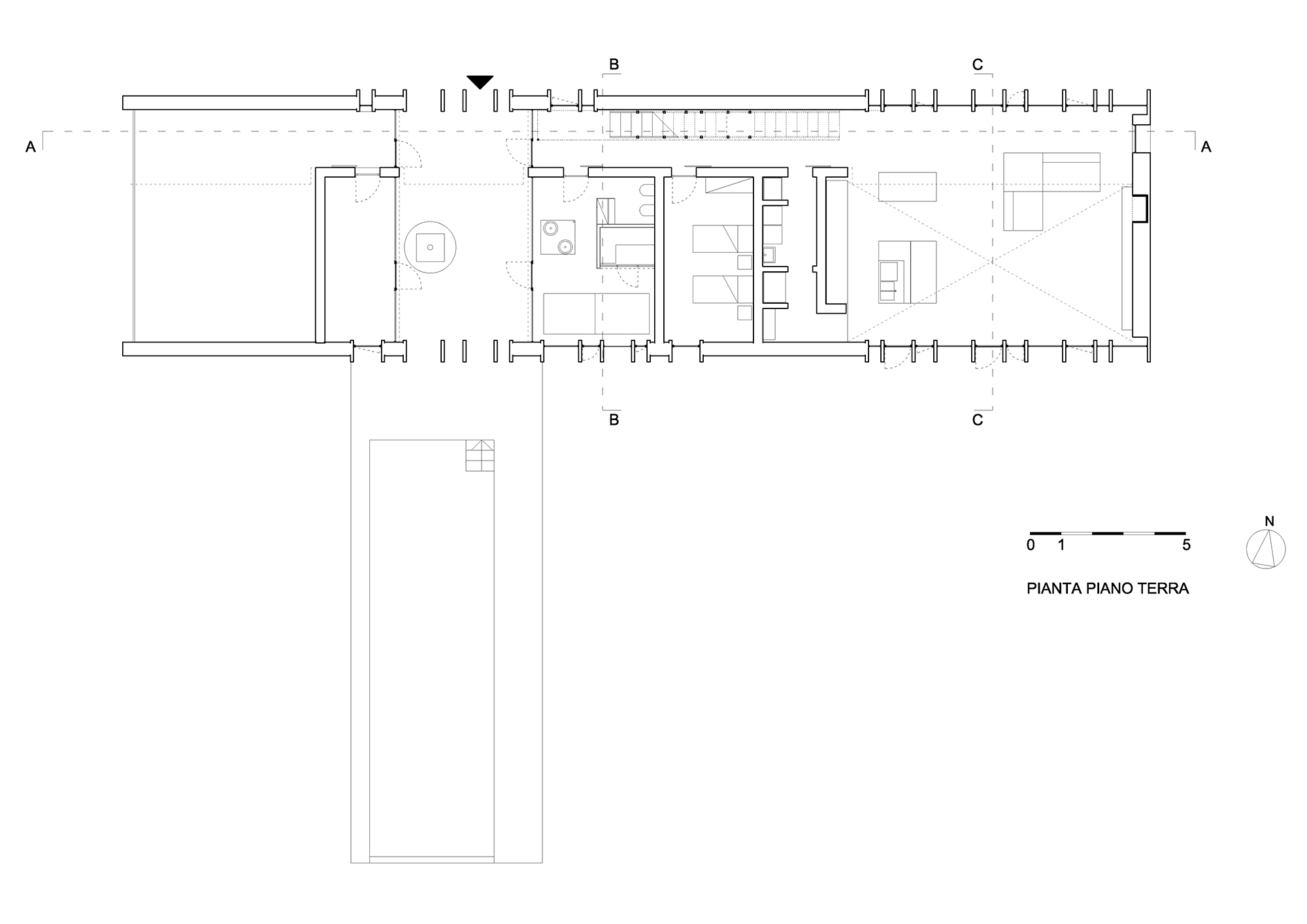
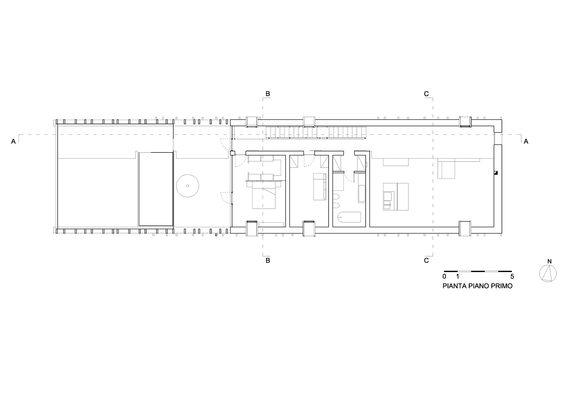
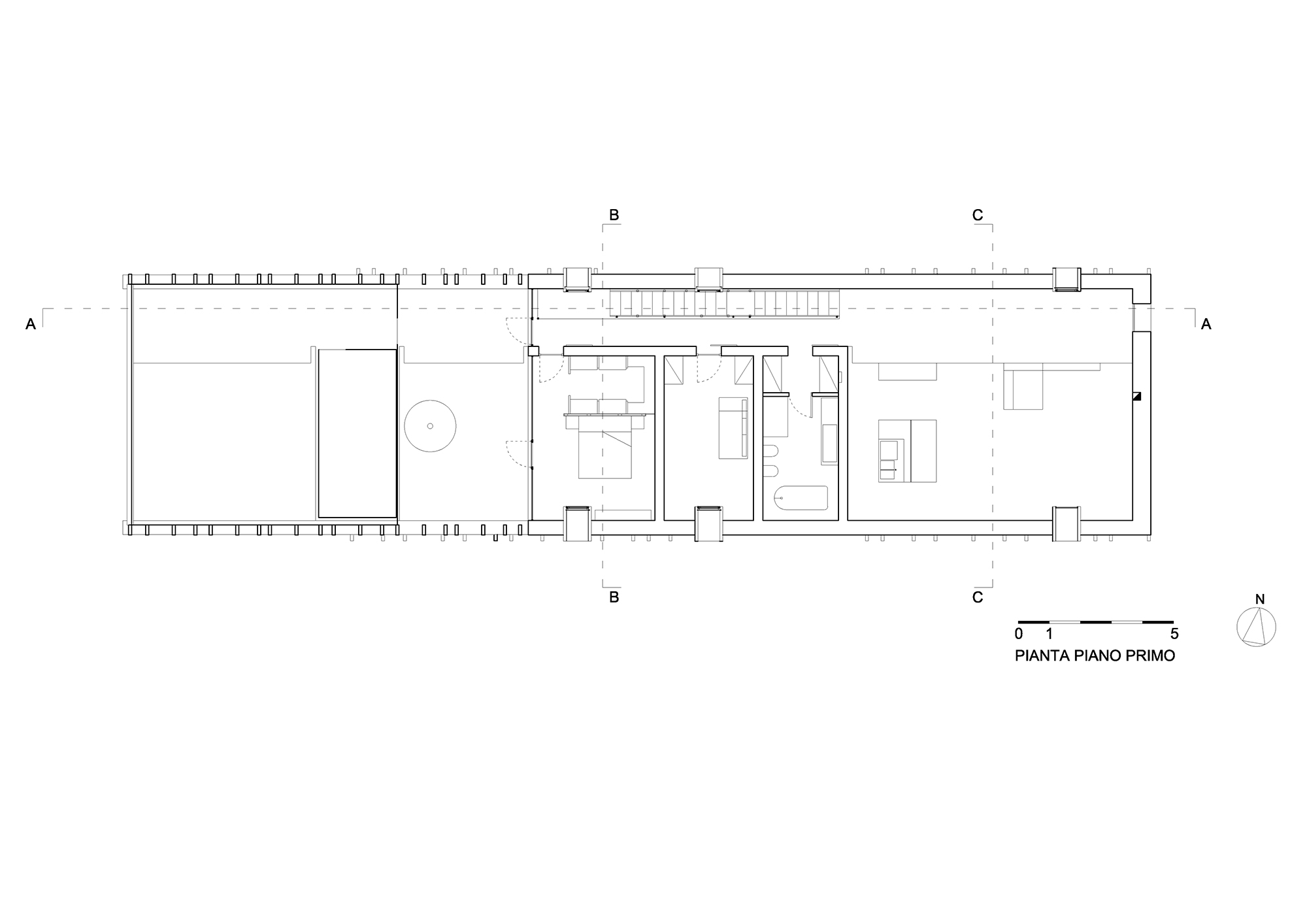
Der Entwurf vereint traditionelle Formen des ländlichen Bauens mit experimentellen Ansätzen und nimmt dabei die klaren, strukturierten Formen der klassischen Gebäude auf. Der Luxus der Residenz entsteht durch großzügige Räume, einem hohen Grad an Flexibilität und präzise konzipierten Ausblicken in die weitläufige Berglandschaft. Hier stehen Ruhe und Schlichtheit statt Opulenz und Zurschaustellung im Vordergrund. Die Idee dieser besonderen Atmosphäre resultiert aus der Faszination des Architekten für die pragmatischen Landhäuser dieser Gegend, deren Funktionalität über die Gestaltung der Gebäude dominiert. Simone Subissati übersetzt dieses typische Erscheinungsbild in eine zeitgenössische Form, traditionsbewusst und doch fernab vom Original. Ein Ort ohne Schnickschnack und prunkvollen Luxus.
Ein großer Teil des zweigeschossigen Bauvolumens ist offengehalten, sodass der Raum von einer Seite zur anderen durchquert werden kann. Zusätzlich kann ein Großteil der dunkelrot beschichteten Metallfassade geöffnet werden, wodurch eine stetige Verbindung vom Wohnraum zur umliegenden Natur entsteht. Durch diese gestalterischen Mittel wirkt der Baukörper luftig und leicht, fast schon schwebend. Auch das Obergeschoss wird von zahlreichen Öffnungen nach außen gestaltet. Anstelle herkömmlicher Fenster wurden eigens für dieses Projekt entworfene, sogenannte »Diaphragmen« verwendet. Durch eine raffinierte Anordnung von Spiegeln an den Seiten dieser Öffnungen werden überraschende optische Effekte erzielt.
Eine minimalistische Treppe führt vom großzügigen Wohnbereich im Erdgeschoss ins Obergeschoss hinauf, wo sich private Schlafräume sowie ein weiterer Wohnbereich befinden. Der zweite Wohnbereich ist als eine Art Wintergarten mit einer mikroperforierten Membran überspannt, die tagsüber natürliches Tageslicht in den Raum fallen lässt und bei Nacht das Gebäude durch ihre Leuchtkraft wie eine überdimensionale Lampe erscheinen lässt.
Durch den geschickten Einsatz der Materialien und eine durch zahlreiche Öffnungen, gewährleistete Querlüftung erreicht die Residenz den Passivhausstandard.




















