// Check if the article Layout ?>
Monolith und Metallschleier: Kirche und Gemeindezentrum in Tarragona
Foto: Pedro Pegenaute
Die Trabantenstadt Bonavista wurde ab 1959 errichtet und gehört seit 1964 zur katalanischen Küstenstadt Tarragona, deren Zentrum rund fünf Kilometer östlich liegt. Die im Schachbrettraster angelegten Straßen sind nach amerikanischem Vorbild einfach durchnummeriert, die Wohnbebauung unspektakulär.
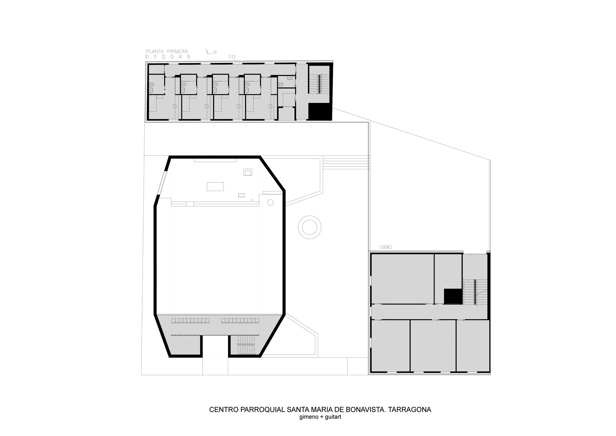
Seit einigen Monaten jedoch besitzt Bonavista ein architektonisches Schmuckstück: Mitten im Stadtteilzentrum, neben dem »Platz der Verfassung« und dem Stadtteilpark, haben die Architekten Gimeno + Guitart den Neubau der Kirche Santa Maria Assumpta samt Gemeindezentrum errichtet.
Das L-förmige Gemeindezentrum grenzt den Kirchenkomplex gegen die Nachbargebäude ab, die Kirche hingegen ist ganz an die Südwestecke des Grundstücks gerückt und tritt damit im Straßenbild umso dominanter in Erscheinung. Beide Baukörper erhielten flächige Fassaden mit wenigen Öffnungen, die jedoch aus sehr unterschiedlichen Materialien bestehen. Beim Gemeindezentrum ist eine konventionelle Lochfassade hinter einem transluzenten Schleier aus gelochtem Trapezblech verborgen, der auch Versprünge in der Gebäudehöhe den Blicken entzieht.
Die Kirche hingegen besitzt Außenwände aus Sichtbeton, die mithilfe entsprechend profilierter Schaltafeln eine charakteristische Diagonalschraffur erhielten. Mehr als 18 Meter hoch ragt der Baukörper auf; zwei wesentlich flachere Annexe für die Sakristei und den Seiteneingang vermitteln zum Nachbargebäude und verleihen dem Gebäudekomplex zugleich eine geschlossenere Platzfront.
Außerdem lässt das eher bescheidene Entrée das daran anschließende Kirchenschiff umso geräumiger erscheinen. Es ist von glatten Sichtbetonwänden umgeben, die lediglich vom regelmäßigen Raster der Schaltafeln gegliedert sind. Drei große Fensteröffungen und zwei langgestreckte Dachoberlichter bringen Tageslicht herein, lediglich vom regelmäßigen Raster der Schaltafeln gegliederte Sichtbetonwände das Kirchenschiff. Es erhält Tageslicht durch drei Fensteröffnungen und zwei langgestreckte Oberlichter im Dach. Vier Materialien finden in dem Kirchenraum zu einer spannungsvollen Synthese zusammen: der omnipräsente Sichtbeton, das Holz der Kirchenbänke, die blattvergoldete Altarwand und der dünn geschnittene Alabaster, mit dem die Architekten zwei der drei Fensteröffnungen ganz und die dritte teilweise verschlossen.
Seit einigen Monaten jedoch besitzt Bonavista ein architektonisches Schmuckstück: Mitten im Stadtteilzentrum, neben dem »Platz der Verfassung« und dem Stadtteilpark, haben die Architekten Gimeno + Guitart den Neubau der Kirche Santa Maria Assumpta samt Gemeindezentrum errichtet.
Das L-förmige Gemeindezentrum grenzt den Kirchenkomplex gegen die Nachbargebäude ab, die Kirche hingegen ist ganz an die Südwestecke des Grundstücks gerückt und tritt damit im Straßenbild umso dominanter in Erscheinung. Beide Baukörper erhielten flächige Fassaden mit wenigen Öffnungen, die jedoch aus sehr unterschiedlichen Materialien bestehen. Beim Gemeindezentrum ist eine konventionelle Lochfassade hinter einem transluzenten Schleier aus gelochtem Trapezblech verborgen, der auch Versprünge in der Gebäudehöhe den Blicken entzieht.
Die Kirche hingegen besitzt Außenwände aus Sichtbeton, die mithilfe entsprechend profilierter Schaltafeln eine charakteristische Diagonalschraffur erhielten. Mehr als 18 Meter hoch ragt der Baukörper auf; zwei wesentlich flachere Annexe für die Sakristei und den Seiteneingang vermitteln zum Nachbargebäude und verleihen dem Gebäudekomplex zugleich eine geschlossenere Platzfront.
Außerdem lässt das eher bescheidene Entrée das daran anschließende Kirchenschiff umso geräumiger erscheinen. Es ist von glatten Sichtbetonwänden umgeben, die lediglich vom regelmäßigen Raster der Schaltafeln gegliedert sind. Drei große Fensteröffungen und zwei langgestreckte Dachoberlichter bringen Tageslicht herein, lediglich vom regelmäßigen Raster der Schaltafeln gegliederte Sichtbetonwände das Kirchenschiff. Es erhält Tageslicht durch drei Fensteröffnungen und zwei langgestreckte Oberlichter im Dach. Vier Materialien finden in dem Kirchenraum zu einer spannungsvollen Synthese zusammen: der omnipräsente Sichtbeton, das Holz der Kirchenbänke, die blattvergoldete Altarwand und der dünn geschnittene Alabaster, mit dem die Architekten zwei der drei Fensteröffnungen ganz und die dritte teilweise verschlossen.






















