Ein echter Überflieger
Multifunktionaler Modulbau bei Paris
Modul’Air von Looking For Architecture am ehemaligen Militärflughafen Base aérienne 217. © Kévin Dolmaire
Am Rande eines ehemaligen Militärflughafens südlich von Paris errichtete das Architekturbüro Looking For Architecture den zukunftsorientierten Modulbau Modul‘Air. Er vereint Büroflächen, Werkstätten und einen Indoor-Flugplatz für Drohnen. Das Zentrum dient als Veranstaltungsort und Treffpunkt für Akteure im Bereich der Drohnenentwicklung.


Das weit auskragende Dach und der Kontrollturm haben eine scheibenartige Wirkung. © Kévin Dolmaire
Umnutzung
Das Grundstück befindet sich am ehemaligen Militärflugplatz Base aérienne 217 in Brétigny-sur-Orge. Bis 2012 diente das Areal als französische Luftwaffenbasis. Während ein Teil der Fläche weiterhin militärische Forschungsinstitute beherbergt, realisierten die umliegenden Gemeinden eine Umnutzung des restlichen Brachlands zu Gewerbeflächen. Als Drohnenflugzentrum steht Modul’Air in direkter Kontinuität der aeronautisch-technischen Innovationsgeschichte des Areals.
Konstruktion und Fassade
Mit Ausnahme des Betonsockels entstanden alle weiteren Arbeiten in Trockenbauweise. Ein Metalltragwerk trägt das Dach sowie die Vorhangfassade. Entlang des großen Ganges ist das Gebäude großflächig verglast. Schutz vor der Sonne bietet nicht nur das stark auskragende Dach, sondern auch Verschattungselemente aus perforiertem Blech. Während eine transluzente Polycarbonatfassade die Indoor-Flughalle umhüllt, schließt die nach Nordwesten orientierte Längsseite mit einer Fassade aus Stahlblech.


Ehemalige Schiffscontainer stapeln sich zu einem Kontrollturm für Drohnenflüge. © Kévin Dolmaire
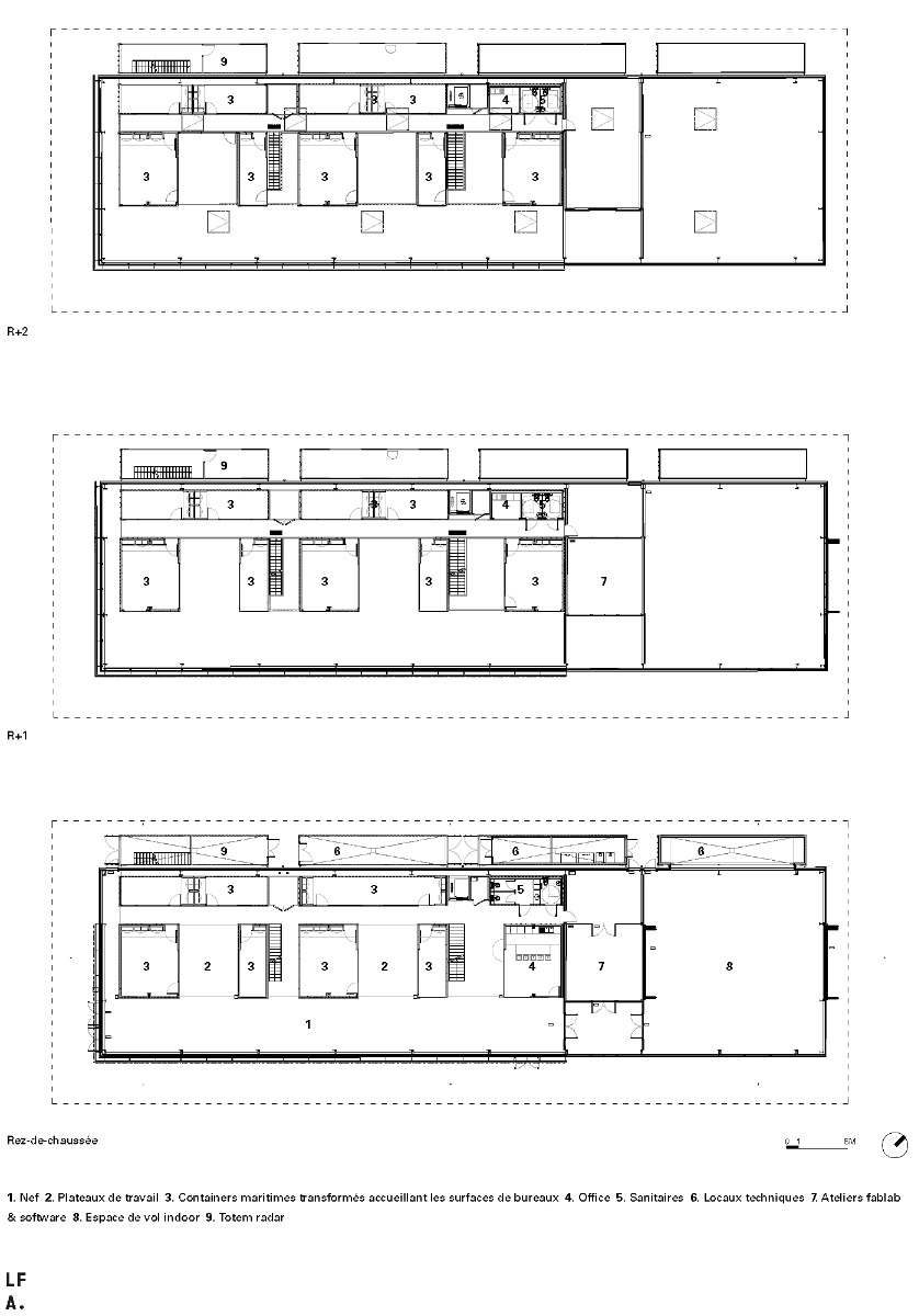
Raumaufteilung
Im Inneren verbindet ein gebäudehoher Gang die verschiedenen Nutzungsbereiche und stellt Sichtbezüge und Kommunikationsmöglichkeiten her. In die äußere Hülle eingestellt stapeln sich ehemalige Schiffscontainer zu drei Ebenen. Als Räume im Raum dienen sie als Besprechungsorte und private Arbeitsplätze. Offene, galerieartige Gänge verbinden die Containereinheiten miteinander.


Als Räume im Raum werden die Schiffscontainer zu Büroflächen. © Kévin Dolmaire
Anschließend an die Büroflächen befinden sich die Werkstatträume. Durch große Fenster bieten sie Einsicht in die Drohnenflughalle, die das nordöstliche Drittel des Gebäudes einnimmt. Die Halle umfasst in ihrer Höhe alle drei Geschosse und öffnet sich bei Bedarf über eine sechsflügelige Falttür zum Außenfluggelände. Rückseitig stapeln sich weitere Schiffscontainer zu einem die Dachhöhe überragenden, scheibenartigen Kontrollturm für die Drohnenflüge.


Einblick in die gebäudehohe Indoor-Flughalle haben die Werkstätten. © Kévin Dolmaire
Blick in die Zukunft
Die Planung ist auf höchste Flexibilität ausgerichtet. Je nachdem, wie sich das Stadtentwicklungskonzept auf dem Gebiet der ehemaligen Militärbasis in der Zukunft gestaltet, ermöglicht der Entwurf eine Vielzahl an Erweiterungsmöglichkeiten. Gleichzeitig erlaubt die Konstruktion auch Reduzierungen in der Raumgröße und sogar eine Verlagerung des Bauwerks an einen anderen Ort.
Architektur: LFA Looking For Architecture
Bauherr: Cœur d'Essonne Agglomération (Öffentlicher Gemeindeverband)
Standort: 6 avenue du Centre d’Essai en Vol, 91220 Bretigny-sur-Orge (FR)
Tragwerksplanung: Nepsen
HKLS-Planung: 2 B Clim
Akustikplanung: Link acoustique


















