Revitalisierung
Museum für lokale Tradition in den Pyrenäen
Haro-Museum im historischen Zentrum von Les, Val d’Aran, © Iñigo Bujedo Aguirre
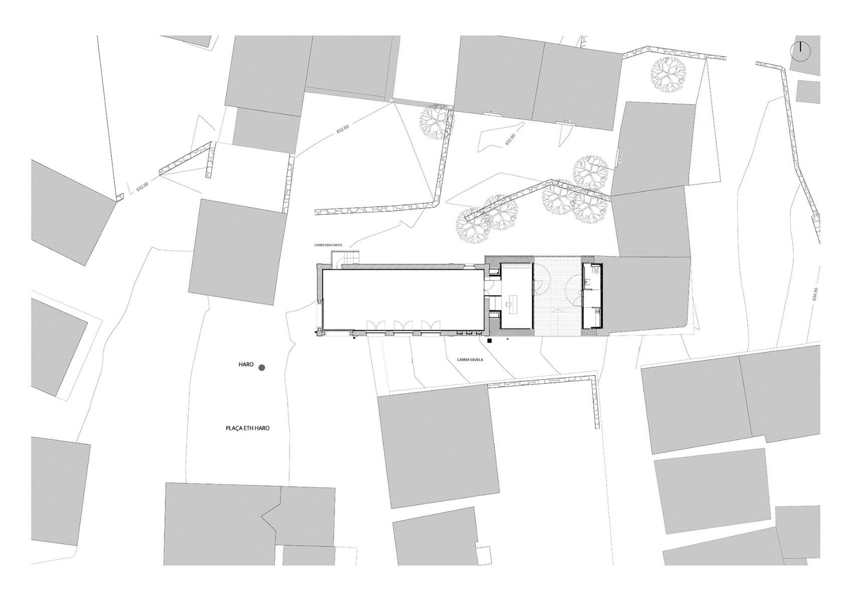
OLA Oficina Local de Arquitectura hat ein Museum für lokale Tradition und einen Multifunktionsraum im historischen Zentrum von Les, Val d’Aran, geschaffen. Ziel war die Revitalisierung eines leerstehenden Gebäudes am Placa der Haro, auf dem jährlich ein überregional bekanntes Fest zur Sommersonnenwende begangen wird. Durch die Sanierung des Altbaus und den Anbau zweier Mikroarchitekturen wird das Haro-Museum heute wieder regelmäßig frequentiert – von Touristen und Stadtbewohnerinnen gleichermaßen.


Der sanierte Altbau beherbergt heute eine Ausstellung zum Crèma deth Haro und wird von kulturellen Vereinigungen als Versammlungsort genutzt. © Iñigo Bujedo Aguirre
Wertvoller Bestand
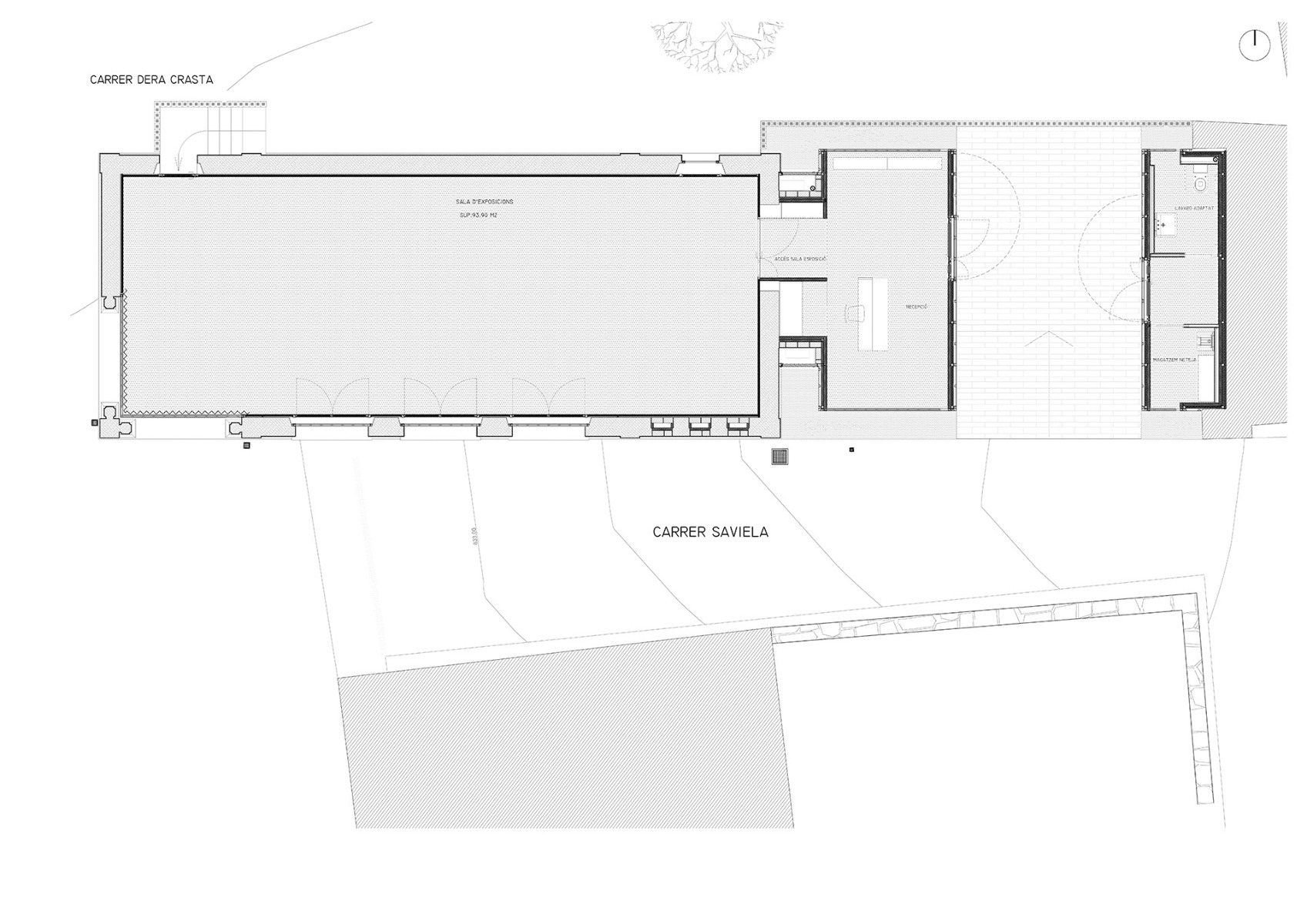
OLA entschied aus Aspekten der Nachhaltigkeit und der Wahrung der städtischen Identität, den Bestand zu erhalten. Die Sanierung zeigt besonderen Respekt für das ursprüngliche äußere Erscheinungsbild des ehemaligen Schulgebäudes. Im Inneren erfolgte jedoch eine wesentliche Veränderung: Die Zwischenwände wurden entfernt, um einen großzügigen Museumsraum zu schaffen, den auch lokale Gruppen als Versammlungsort nutzen können. Darüber hinaus verlegte das Architekturbüro den Eingang vom Platz weg, hin zum angrenzenden Innenhof.
Umweltbewusster Neubau
Zwei Metallkuben auf dem angrenzenden Hof bilden eine Torsituation für den neuen, ebenerdigen Eingang. Die zeitgenössische Sprache des An- und Nebenbaus zeigt deutlich den heutigen Eingriff, doch stechen sie mit ihrer zurückhaltenden Gestaltung nicht gegenüber den bestehenden Gebäuden hervor. Die Neubauten sind aus einer modularen Metallstruktur konstruiert, die abbaubar und wiederverwendbar ist.


Mit dem Bau von zwei kubischen Mikroarchitekturen wurde eine neue, barrierefreie Eingangssituation geschaffen. © Iñigo Bujedo Aguirre
Feuer und Asche
Die Wahl der Metallkonstruktion hatte neben der Funktionalität auch ästhetische Gründe. Durch den ähnlichen Farbton entsteht eine visuelle Kontinuität zwischen Alt- und Neubau. Diese wird durch die Verwendung der semitransparenten Fenster- und Fassadenelemente in beiden Gebäudeteilen noch verstärkt. Das verwendete Profilglas ermöglicht eine lichtdurchlässige Hülle mit selbsttragender Struktur und überzeugt zudem in der Einfachheit seiner Gestaltung.


Der ehemalige platzseitige Eingang wurde verlegt und die Öffnungen mit Profilglas geschlossen, sodass eine materielle Verbindung zum Anbau entsteht. © Iñigo Bujedo Aguirre
Ort der Gemeinschaft
Der Wunsch nach einem Ort, an dem die lokalen Traditionen am Leben erhalten werden, kam aus der Stadtgesellschaft selbst. Die stete Einbindung der Bevölkerung bei der Planung des Gebäudes führte dazu, dass neben der musealen Nutzung kulturelle Vereinigungen wie Volkstanzgruppen, Chöre und traditionelle Musikgruppen den Raum als Treffpunkt annehmen.


Das Gebäude steht an prominenter Stelle am Placa der Haro, an dem jährlich das traditionelle Fest zur Sommersonnenwende begangen wird. © Iñigo Bujedo Aguirre


OLA verarbeitete die Bedeutung des Crèma deth Haro im Entwurf: Während die graue Außenhülle die Asche repräsentiert, steht das helle Innere für das Feuer. © Iñigo Bujedo Aguirre
Nachhaltige Identitätsstärkung
Die Sanierung des ehemaligen Schulgebäudes bringt eine spürbare Aufwertung des Stadtraums und der kulturellen Landschaft mit sich. OLA Oficina Local de Arquitectura rühmt sich mit einem modernisierten Gebäude, das sich auf harmonische Weise gestalterisch wie auch konzeptuell mit seiner traditionellen Umgebung verbindet.
Architektur: OLA Oficina Local de Arquitectura (Oriol Peus & Ares Cotela)
Standort: Placa der Haro, Les, Val d’Aran, Lleida (ES)
TGA-Planung: Cuberes s.l.
Bauunternehmen: Construccions Pirineu 2001
Lichtplanung: Daniel Clemente Enginyers + FARO Barcelona
Glasfassade: U-Glass by Teckvicom + Bauglasindustrie GmbH
Fotografie: © Iñigo Bujedo Aguirre



















