Edles Gehäuse für Haferflocken
Müslifabrik in China von JSPA Design
Müslifabrik in China, © Su Shengliang/Schran Images
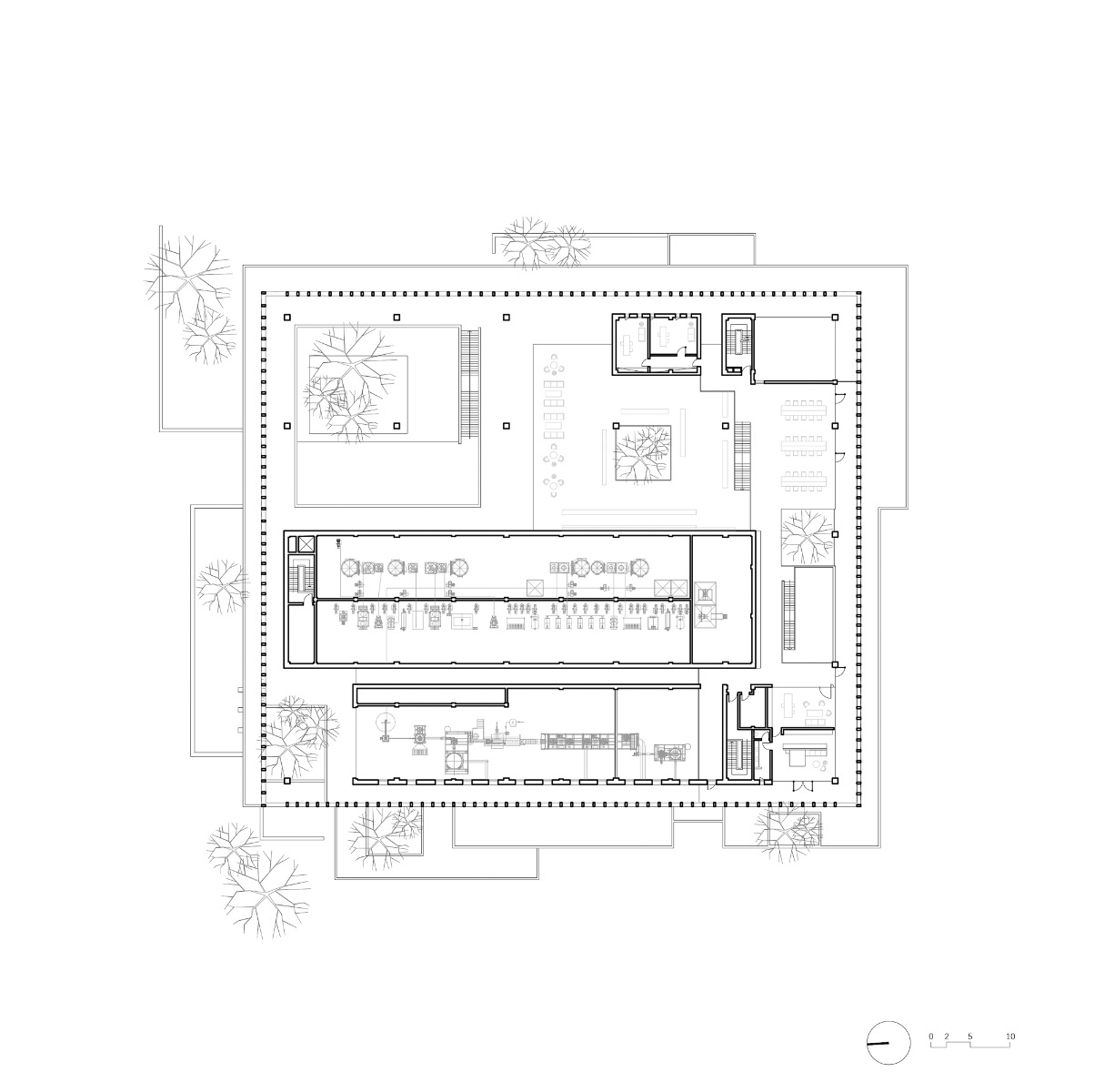
Der Neubau in Ningwu in der nordwestchinesischen Provinz Shanxi ist weit mehr als eine Produktionsanlage für Müsliflocken: Fabrikhallen, Büros, ein Shop und Mitarbeiterwohnungen bilden ein Gesamtkunstwerk, in das auch die Außenanlagen einbezogen sind.


Außenanlage, © Su Shengliang/Schran Images
Trotz des regelmäßigen Publikumsverkehrs gaben die Architekten dem Gebäudekomplex einen eher introvertierten Charakter – mit einer Ausnahme: dem breiten, durch Bänke und niedrige Mauern gegliederten Grünbereich, der die Fabrik von der Straße trennt. Damit schufen sie nicht zuletzt einen Gegenpol zum eher anonymen Gewerbegebiet ringsum.
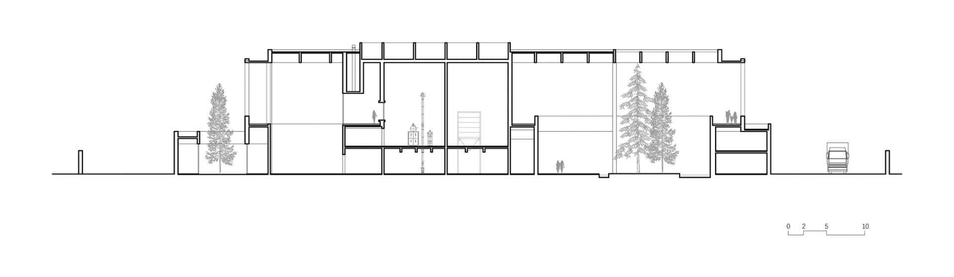
Ihr Konzept basiert auf einer horizontalen Schichtung: Im Erdgeschoss umgeben graue Ziegelmauern die technischen Bereiche der Fabrik und verzahnen Außen- und Innenräume miteinander. Gleichzeitig rahmen sie die vier Zugänge zur Fabrik – je einen für die Besucher und Mitarbeiterinnen sowie für die An- und Auslieferung.


© Su Shengliang/Schran Images
Im Obergeschoss dagegen umgeben Betonkolonnaden die teils großflächig verglasten Fassaden. Auf ihnen ruht das Flachdach, eine Trägerrostkonstruktion aus Beton, die sich über Innenhöfe und Innenräume gleichermaßen spannt. Über den beiden zweigeschossigen Hallen mit den Produktionsanlagen, dem Herzstück der Fabrik, lassen Sheddächer ebenfalls aus Beton blendfreies Nordlicht herein.


© Su Shengliang/Schran Images
Repräsentationsarchitektur
Das Wegesystem im Haus ist so angelegt, dass sich der interne und der externe Bereich nie kreuzen. Während die inneren Abläufe funktional geordnet sind, steht im Besucherbereich das Raumerlebnis im Vordergrund. Durch einen von Ziegelmauern gerahmten, teils überdachten Vorhof gelangt man über Treppen in den Empfangsbereich im ersten Obergeschoss. Dort empfangen die Besucher Räume von einer Höhe und Großzügigkeit, die man in einem Fabrikgebäude nicht erwarten würde.


© Su Shengliang/Schran Images


© Su Shengliang/Schran Images


© Su Shengliang/Schran Images
Im rückwärtigen Teil des Grundstücks öffnet sich ein zweiter, grasbewachsener Freibereich mit Tischen und Sitzbänken aus Beton. Er trennt das Hauptgebäude von dem eingeschossigen Riegel mit den Mitarbeiterwohnungen, der sich unsichtbar für die Öffentlichkeit an die hintere Grundstücksmauer schmiegt. Kleine Patios zwischen Wohngebäude und Umfassungsmauer bringen auch von der Rückseite Tageslicht in die Wohneinheiten.


© Su Shengliang/Schran Images
Wasserspeicher aus Sichtbeton
Den Wasserkreislauf auf dem Grundstück haben die Architekten auf mehrfache Weise inszeniert. Über Wasserspeicher aus Sichtbeton gelangt das kühle Nass vom Dach in mehrere Wasserbecken im Freibereich. Gleich am Zugang zum Gelände ergießt sich ein kleiner Wasserfall über eine 12 m auskragende Betonwand mit dem Firmenlogo. Das zur Brandbekämpfung notwendige Löschwasser dagegen wird in einem großen Tank gespeichert, den die Architekten dem Gebäude als unübersehbare Metallbox aufs Dach setzten.
Architektur, Innenarchitektur, Landschaftsarchitektur: JSPA Design
Bauherr: Shanxi Tianchi Agricultural Development Co.
Standort: Yangfang Village, Fangkou Town, Ningwu County, Xinzhou City, Shanxi Province (CN)



































