Nachhaltig investiert: Wohn- und Werkhaus in Schwaikheim
Foto: Zooey Braun
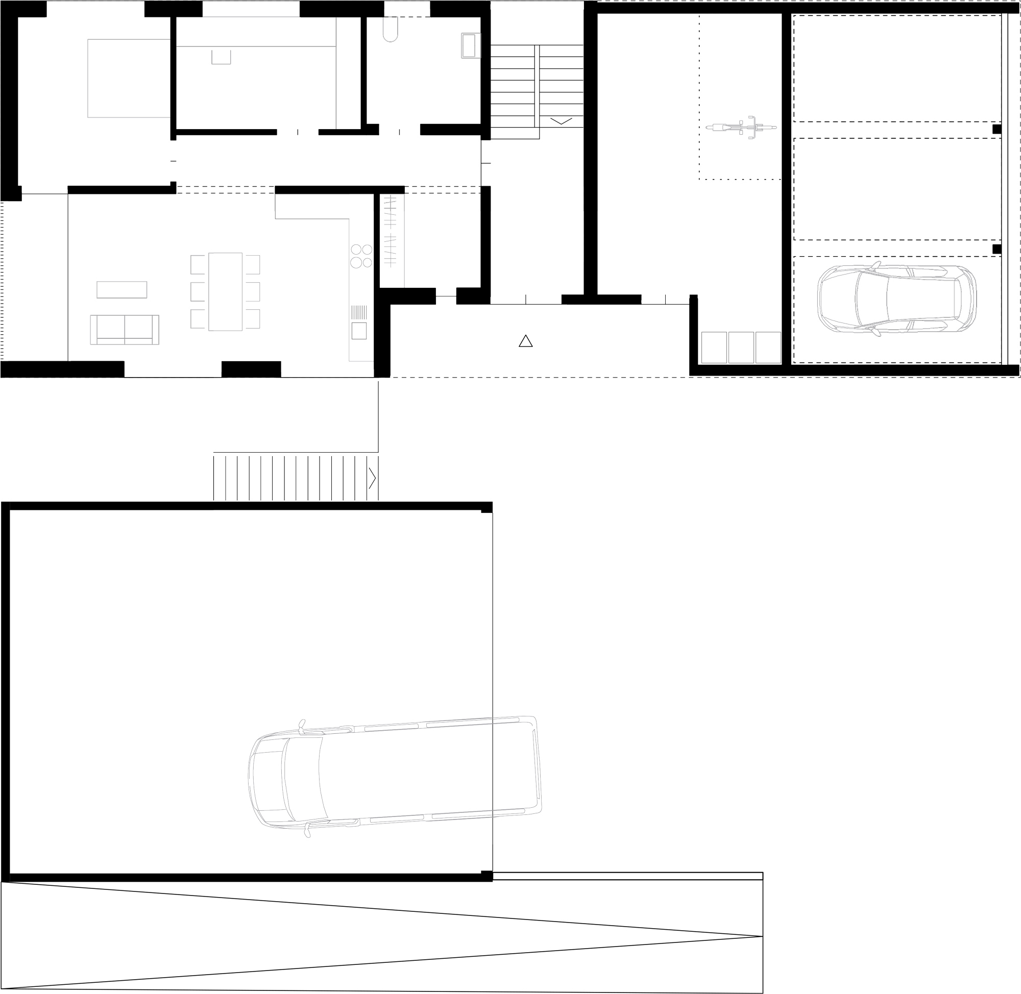
Kompakt, energieeffizient und gemischt genutzt hat das urbane Bauen der Zukunft zu sein – so wurde es uns jahrzehntelang gelehrt. Unter diesem Gesichtspunkt betrachtet, haben das Ingenieurbüro CAPE und die Architekten Schleicher Ragaller in Schwaikheim bei Stuttgart einen durch und durch urbanen Neubaukomplex entworfen, diesen jedoch in ein ländliches Gewand gehüllt. Die zwei Gebäude stehen am Nordrand der 10.000-Einwohner-Gemeinde, in der landwirtschaftliche Nutzungen in den letzten Jahrzehnten eigentlich zur Rarität geworden sind.
Zuvor hatte ein Wohnhaus aus den 30er-Jahren mit Stall und Scheune auf dem Grundstück gestanden. Seine Erben, ein Geschwisterpaar, wollten hier einen vielfältigen Wohnungsmix schaffen, die ehemalige Multifunktionalität jedoch bewahren. Beide Häuser stehen auf einem gemeinsamen Stahlbetonsockel, der den Geländevorsprung zum westlich anschließenden Garten aufnimmt. Das größere von ihnen enthält sechs Wohnungen unterschiedlicher Größe – darunter eine barrierefreie im Erdgeschoss - sowie eine Dreifachgarage an der Straße.
In dem kleineren, fensterlosen Neubau sind oben die Garage und das Lager des Zimmereibetriebs untergebracht, den der Bauherr betreibt, unten an der Gebäuderückseite befindet sich ein offener Carport für seine Nebenerwerbs-Landwirtschaft. Alle Wohnungen öffnen sich mit bodentiefen Fenstern nach Süden und jede hat eine eigene Loggia. Die Untergeschosse der beiden Häuser sowie das Treppenhaus und die Garage des Wohnhauses bestehen aus Stahlbeton mit kerngedämmten Außenwänden, die Obergeschosse wurden aus Brettsperrholz mit hoch gedämmten Fassaden in Holzrahmenbauweise errichtet. Den Materialkontrast zwischen Beton und Holz überspielten die Architekten, indem sie allen Fassadenflächen die gleiche vertikale Brettstruktur gaben.
Mit der gut gedämmten Gebäudehülle und einer Luft-Wasser-Wärmepumpe erfüllt das Wohnhaus den KfW-55-Standard. Das Titanzink-Stehfalzdach ist überdies für die Installation einer Photovoltaikanlage vorbereitet, die künftig einen großen Teil der Energie für Heizung und Warmwasser liefern könnte.
Weitere Informationen:
HLS-Planung: JSP/Jürgen Schroth
Elektroplanung: Ludger Niermann
Holzbau: Carpent
Weitere Informationen:
Landschaftsarchitektur: Jean-Michel Rameau


























