// Check if the article Layout ?>
Nachhaltige Wirkung: Neue Werkhalle Walter Küng AG
Foto: Rasmus Norlander
Ganz ohne Metalle, Klebstoffe oder andere chemische Zusätze entstand ein unbehandelter Holzbau dessen Verbindungen lediglich über Holzdübel erfolgen. Das Unternehmen, das bereits 1977 als Schreinerei startete, brauchte mehr Raum für die Herstellung eines eigenen neuen Holzsystems: Das Ergebnis ist ein nachhaltiges Vollholzsystem, welches ausnahmslos aus Tannen- und Fichtenhölzern der Region besteht. Im Vordergrund des Entwurfs stand somit vor allem der geringe CO²-Verbrauch durch kurze Transportwege, die Entscheidung zu Steinwolle als Dämmmaterial und die Wahl des Holzes als nachwachsender Rohstoff. Während Photovoltaikanlagen auf dem Dach die Halle mit Strom versorgen, erfolgt die Wärmeerzeugung durch eine Holzschnitzelanlage, die Wärmeabgabe über eine thermisch aktivierte Bodenplatte.
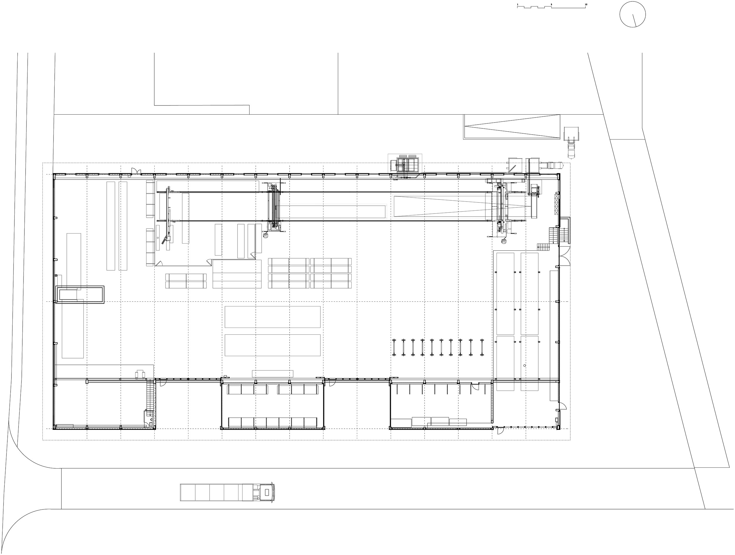
Auf einer Grundfläche von 38 x 78 Metern machen sich die Architekten die durch die Spannweite notwendige Konstruktion zu Nutze und lassen ein raffiniertes Dach entstehen, das wie ein Häubchen auf dem Schindelsockel zu sitzen scheint. Die äußerst markante Dachuntersicht aus Holzlatten und Fachwerkträgern aus Brettschichtholz, aber auch die schlanken Vollholz-Randstützen rhythmisieren den Raum nicht nur indirekt, sie schaffen neben dem Maschinentrubel zudem eine angenehme Atmosphäre.
Funktionale Anforderungen mit einem überzeugenden Firmenbild zu vereinbaren ist nicht immer leicht: Hier gelingt es mit einem Gebäude, das sich mithilfe natürlicher Materialien in seine Umgebung einschmiegt und gleichzeitig genug hervorsticht, um eine markante Identität auszubilden. Mithilfe des in der auffälligen, fächerartigen Dachkonstruktion wirkenden Zusammenspiels zwischen funktionaler Stringenz und konstruktiver Leichtigkeit schufen Seilerlinhart einen Baukörper, der Firmenprinzipien verkörpert und eine hochwertige Raumqualität kreiert. Großzügige Oberlichter an der Nordseite des Daches sorgen zudem für eine ausreichende und gleichmäßige Beleuchtung.
Auf einer Grundfläche von 38 x 78 Metern machen sich die Architekten die durch die Spannweite notwendige Konstruktion zu Nutze und lassen ein raffiniertes Dach entstehen, das wie ein Häubchen auf dem Schindelsockel zu sitzen scheint. Die äußerst markante Dachuntersicht aus Holzlatten und Fachwerkträgern aus Brettschichtholz, aber auch die schlanken Vollholz-Randstützen rhythmisieren den Raum nicht nur indirekt, sie schaffen neben dem Maschinentrubel zudem eine angenehme Atmosphäre.
Funktionale Anforderungen mit einem überzeugenden Firmenbild zu vereinbaren ist nicht immer leicht: Hier gelingt es mit einem Gebäude, das sich mithilfe natürlicher Materialien in seine Umgebung einschmiegt und gleichzeitig genug hervorsticht, um eine markante Identität auszubilden. Mithilfe des in der auffälligen, fächerartigen Dachkonstruktion wirkenden Zusammenspiels zwischen funktionaler Stringenz und konstruktiver Leichtigkeit schufen Seilerlinhart einen Baukörper, der Firmenprinzipien verkörpert und eine hochwertige Raumqualität kreiert. Großzügige Oberlichter an der Nordseite des Daches sorgen zudem für eine ausreichende und gleichmäßige Beleuchtung.
weitere Informationen:
Grundstücksfläche: 4800 m²
Geschossfläche: (SIA 416): 2535 m²
Volumen: (SIA 416): 34500 m²
Grundstücksfläche: 4800 m²
Geschossfläche: (SIA 416): 2535 m²
Volumen: (SIA 416): 34500 m²





















