Nahtlos eingefügt: Grand Palais in Cahors von Antonio Virga
Foto: Luc Boegly
Im historischen Stadtzentrum von Cahors wird ein ehemaliges Militärgelände zu einem öffentlichen Platz umgewandelt. Im Rahmen des Masterplans, der dem Areal den neuen Namen Place Bessiéres gibt, hat Antonio Virga das Großkino Grand Palais entworfen. Das Projekt bot die Möglichkeit, die vorher existierende Kaserne städtebaulich aufzugreifen und ihre Symmetrie neu zu interpretieren. Der Place Bessiéres wurde zu einem breiten und einladenden Stadtraum für Fußgänger und profitiert von einem bestehenden Baumdach.
Antonio Virgas zweiteiliger Entwurf ist maßstäblich in den Stadtkörper integriert. Um gleichzeitig die strenge, harmonische Organisation des Areals beizubehalten und einen zeitlosen architektonischen Ausdruck zu wahren, suchten die Architekten nach einer einfachen und einheitlichen Lösung für Material, Möbel und Grünflächen.
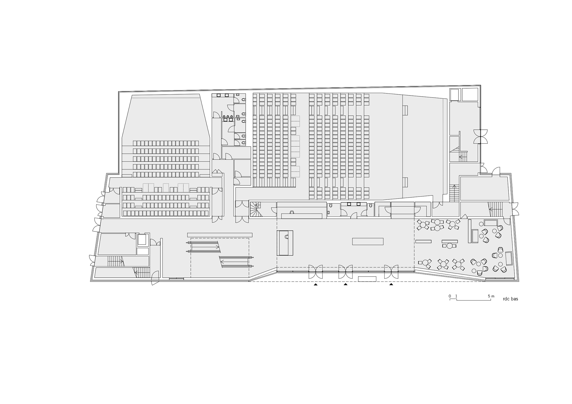
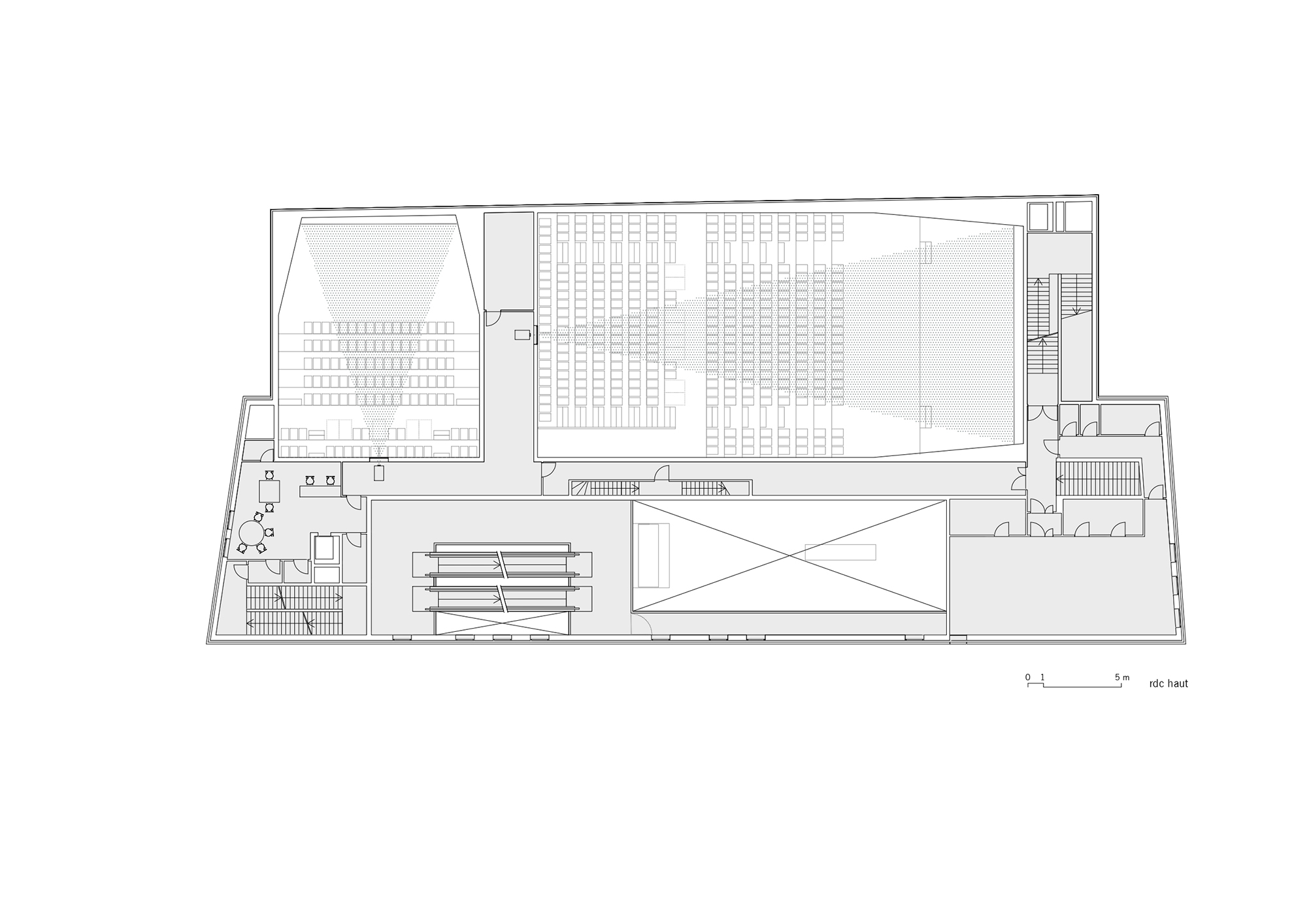
Für den ersten Gebäudeteil griffen sie die typischen hellen Ziegel- und Putzfassaden der Stadt auf und entwickelten einen Baukörper, dessen Backsteinfassaden nahtlos in die Dachflächen übergehen. Das monolithische Volumen scheint zunächst vollkommen fensterlos – für ein Kino mit sieben Sälen und einer Kapazität von tausend Zuschauern durchaus gerechtfertigt. Jedoch planten die Architekten in mehreren Bereichen ein perforiertes Mauerwerk, das durch Weglassen einzelner Mauersteine entsteht. Wie bei einer traditionellen islamischen Maschrabbiya aus Holzgittern gelangt tagsüber gefiltertes Licht in das Foyer, während das Haus am Abend geheimnisvoll von innen zu glühen beginnt. Nicht zuletzt um so viele dieser Öffnungen wie möglich ausbilden zu können, wählten die Architekten ungewöhnlich flache Steine von 38 mm Höhe, die aufgrund ihrer Herstellung im Wasserstrichverfahren sehr unregelmäßig ausfallen. Wellige Ränder, rissige Oberflächen, unausgeformte Ecken und zurückversetzte Mörtelfugen, aber auch die zufällig gesetzten Stoßfugen lassen ein archaisches Mauerwerk entstehen, das wunderbar mit den alten Gemäuern der Stadt harmoniert.
Der dem Place Bessiéres abgewandte Teil des Kinos ist ebenso visuell hervorgehoben wie der erste: Der gesamte Baukörper – eine Stahlbetonkonstruktion – wird von einem vergoldeten Lochblech umhüllt. Im Innenraum ergänzen goldene Elemente die hellen Foyer- und Aufenthaltsräume komplementär zu den Kinosälen in Dunkelblau. Mit der Zweiteilung des Entwurfs in einen historischen und einen modernen Komplex gelingt den Architektinnen ein behutsamer Umgang mit der Verbindung aus lokaler Bautradition und neuer Nutzung.
Weitere Informationen:
Landschaftsarchitektur: Grue société d’architecture
Lichtplanung: PhA Lighting Design
Grafikdesign: Stefania Corrado
Akustikplanung: Diagobat
Fertigstellung: Dezember 2019























