// Check if the article Layout ?>
Neuer Lobby-Look für die Bank von Slowenien
Foto: Miran Kambič
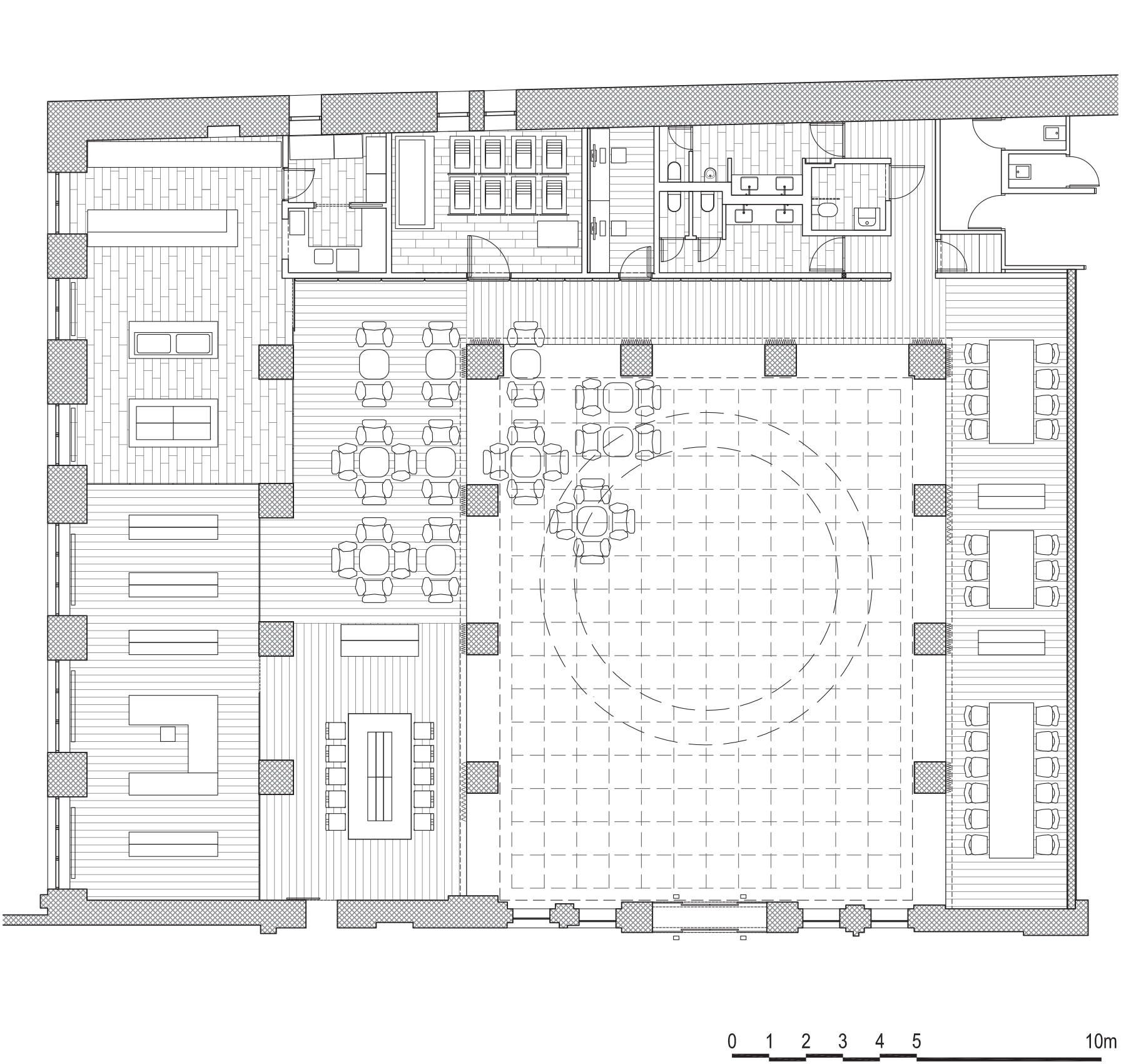
Das Konzept für die Renovierung der zentralen Lobby der Bank von Slowenien wurde in einem Studentenworkshop an der Fakultät für Architektur in Ljubljana entworfen. SADAR + VUGA Architekten realisierten anschließend das Projekt in enger Zusammenarbeit mit dem studentischen Designteam. Vor dem Umbau sah die öffentlich zugängliche Lobby wie eine gewöhnliche monofunktionale Bankhalle mit Kassenschaltern und einer Poststelle aus. Eine programmatische und räumliche Rekonstruktion verwandelte den Hauptfoyer-Raum in einen multifunktionalen Raum, der vor allem von den Bankangestellten genutzt werden soll. Eine entspannte Arbeitsumgebung dient einerseits einer besseren Kommunikation der Mitarbeiter untereinander; auf der anderen Seite kann der neu gestaltete Raum für offizielle Veranstaltungen genutzt werden.
Ein clubartiges Ambiente entsteht in den Nischen, die durch einen Vorhang von dem Hauptraum visuell getrennt werden können. Eine Bibliothek und eine kleine Selbstbedienungsbar sind im südlichen Teil der Lobby platziert und durch eine Glaswand vom Hauptbereich getrennt. Drei Tagungsräume befinden sich auf der gegenüberliegenden Seite der Lobby. Der Lobby-Raum ist mit Sesseln ausgestattet, die speziell für dieses Projekt entwickelt wurden.








