New Spirit: Sportstudio Hagius Berlin von Gonzalez Haase
Foto: Thomas Meyer - Ostkreuz
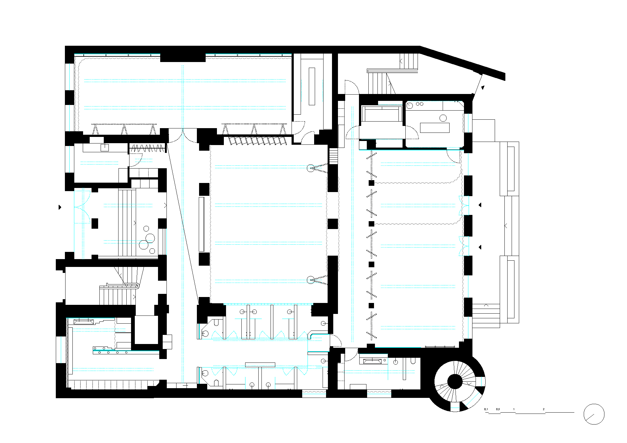
Der laut Judith Haase „äußerst imposante“ Ort ist ein Baudenkmal des Architekten Nicolaysen aus der Zeit um 1902 mit rund 600 m2 Fläche und einer Deckenhöhe von über vier Metern. Das Hagius ist ihr erstes Gym. Die Idee dazu stammt von den Brüdern Timothy und Nicolas Hagius, die damit ihren Traum eines besonderen Sportstudios in Bezug auf Design und Ästhetik verwirklichen. Ziel des ganzheitlichen Hagius-Konzepts ist die Unterstützung des natürlichen Biorhythmus. Dafür sind die Licht-, Klang-, und Aromareize im Studio harmonisch aufeinander und auf den Raum abgestimmt. Gonzalez Haase fertigten eine detaillierte Designstudie und Prototypen an und entwickelten diese mit den beiden Brüdern in intensiver Zusammenarbeit weiter.
Reflektion und Bewegung
Das Gebäude wurde entkernt und alle nichttragenden Elemente entfernt. So entstanden zwei Hauptachsen, die sich im Empfangsbereich kreuzen und den Blick in die Dimensionen des Raumes freigeben. An den Enden der Ost-West-Achse reflektiert jeweils eine runde Scheibe aus mattem Edelstahl mit einem Durchmesser von 1,60 m das Licht sanft in die Tiefe des Raums. Hier befinden sich im Osten die Umkleiden, im Westen der Yoga-Raum. Nach Norden lagern sich die Trainings- und Treatmenträume an, die sich in ihrer Materialkomposition und ihrem Beleuchtungskonzept entsprechend der Funktion unterscheiden. Sowohl die Süd- als auch die Nordfassade wurden weitestgehend geöffnet und großzügig verglast.
Natürliche gewachsene Materialien
„Wir haben hier eine besondere Form der Komplexität geschaffen: Einen Ort, der aufgrund seiner ausgewogenen, ruhigen Atmosphäre und der minimalen Gestaltung auf den ersten Blick einfach aussehen mag. Erst ein zweiter, genauer Blick offenbart die für ein Sportstudio ungewöhnlich feinen Oberflächen und Materialkompositionen“, sagt Pierre Jorge Gonzalez. Die Oberflächen und die Farbigkeit der eingesetzten Materialien wie Aluminium, Marmor, Granit, Kautschuk oder Eschenholz und Leinen wurden weitgehend übernommen wie natürlich gewachsen. Die unterschiedlichen Bereiche im Studio sind durch jeweils anderes Licht und andere Materialitäten charakterisiert, die Stimmungen variieren und regen zum Aktivwerden oder Entspannen an. Es gibt einen Raum für Box- und Bewegungstraining, einen für Yoga, Pilates und Meditation, einen weiteren für Krafttraining, einen Bereich für Treatments. Trainiert wird auf Eschendielen und Kautschukböden. Der offene Eingangsbereich lässt sich unterschiedlich bespielen, er lädt zur Kommunikation und zum Austausch ein.
Biodynamisches Licht
Einige Einbauten haben Gonzalez Haase selbst entworfen. Dazu gehören die Ablage für die Boxhandschuhe aus poliertem Edelstahl, die Sprossenwand oder die Klimmzugstangen. Die Möbel sind in ihrem Maßstab und ihrer Größe so an die Architektur an- und in den Raum eingepasst, dass sie vom Nutzer teils gar nicht direkt wahrgenommen werden. Zum ersten Mal haben die Planer mit biodynamischem Licht gearbeitet. Dafür haben sie warme und kalte Lichtquellen voneinander getrennt. Die Intensität des Lichts kann gesteuert und je nach Tageszeit oder Trainingsart angepasst werden. Je nach Einstellung erzeugt es aktivierend-stimulierende oder beruhigende Effekte. Die gesamte Decke ist mit einer dünnen Isolierschicht überzogen, deren metallische Oberfläche zusätzlich reflektiert und so das Licht im Raum verteilt. Die hohen Wände sind in zwei unterschiedlichen Grautönen gehalten: Im oberen Bereich streut der matte Anstrich das Licht indirekt, während der untere, glänzende Anstrich den Bewegungsfluss der Trainierenden reflektiert. Auch für Judith Haase und Pierre Jorge Gonzalez ist das Gym zu einem Ort geworden, an dem sie sich gerne aufhalten: „Seitdem es das Hagius gibt, gehen wir tatsächlich wieder ins Studio.“




















