Begehbare Dachlandschaft
Nordøstamager-Schule in Kopenhagen von Christensen & Co.
Über fünf Etagen staffelt sich der Baukörper der Nordøstamager-Schule zur Straße hinunter. Die Fassaden sind einheitlich mit Keramikplatten verkleidet. © Niels Nygaard
Die Nordøstamager-Schule steht am Rande des Stadtteils Amager, zwischen einem Wohn- und einem Gewerbegebiet südöstlich der Kopenhagener Innenstadt. Rote Ziegelfronten geben den Wohnblocks der Nachbarschaft ein relativ einheitliches Gepräge. Deren Farbe und Material griffen Christensen & Co und ihre Partnerarchitekten Kjaer & Richter auch an den Keramikfassaden des Schulgebäudes auf.
Dachterrassen für das ganze Stadtquartier
Noch auffälliger als das einheitlich ziegelrote Kleid ist indes die ungewöhnliche Höhenstaffelung des fünfgeschossigen Neubaus: Vom Straßenniveau bis in die oberste Etage erstreckt sich eine Sequenz von Außenterrassen, die über breite Freitreppen erschlossen wird. Sie sollen nicht nur den Schülerinnen als Pausenzone, sondern auch den Anwohnern in ihrer Freizeit zur Verfügung stehen. Spielgeräte, Kletterwände und neu angepflanzte Bäume sollen hier für Aufenthaltsqualität sorgen. Bis zu 840 Schülerinnen und Schüler im Alter von sechs bis 16 Jahren finden in dem Schulgebäude Platz.


Eine von oben belichtete Treppenkaskade führt aus dem Atrium hinauf in die Obergeschosse. © Niels Nygaard
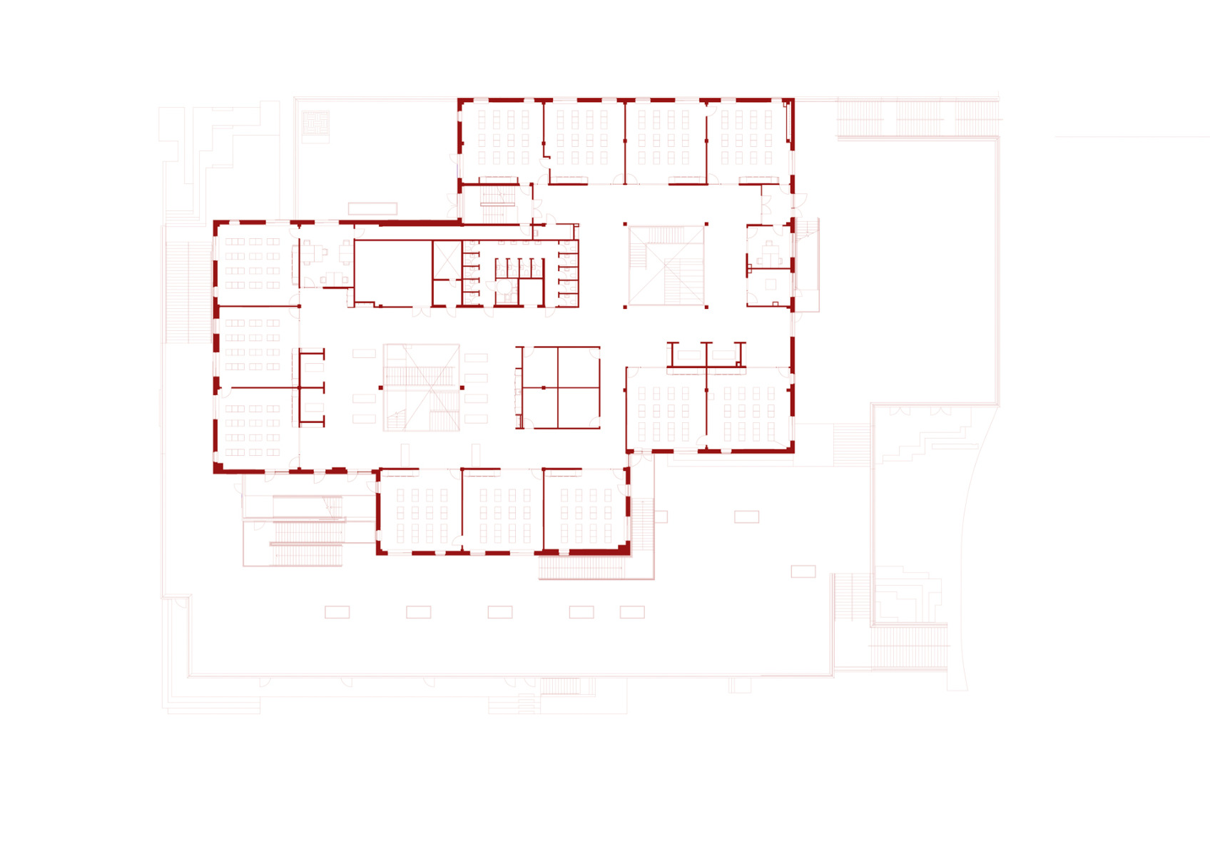
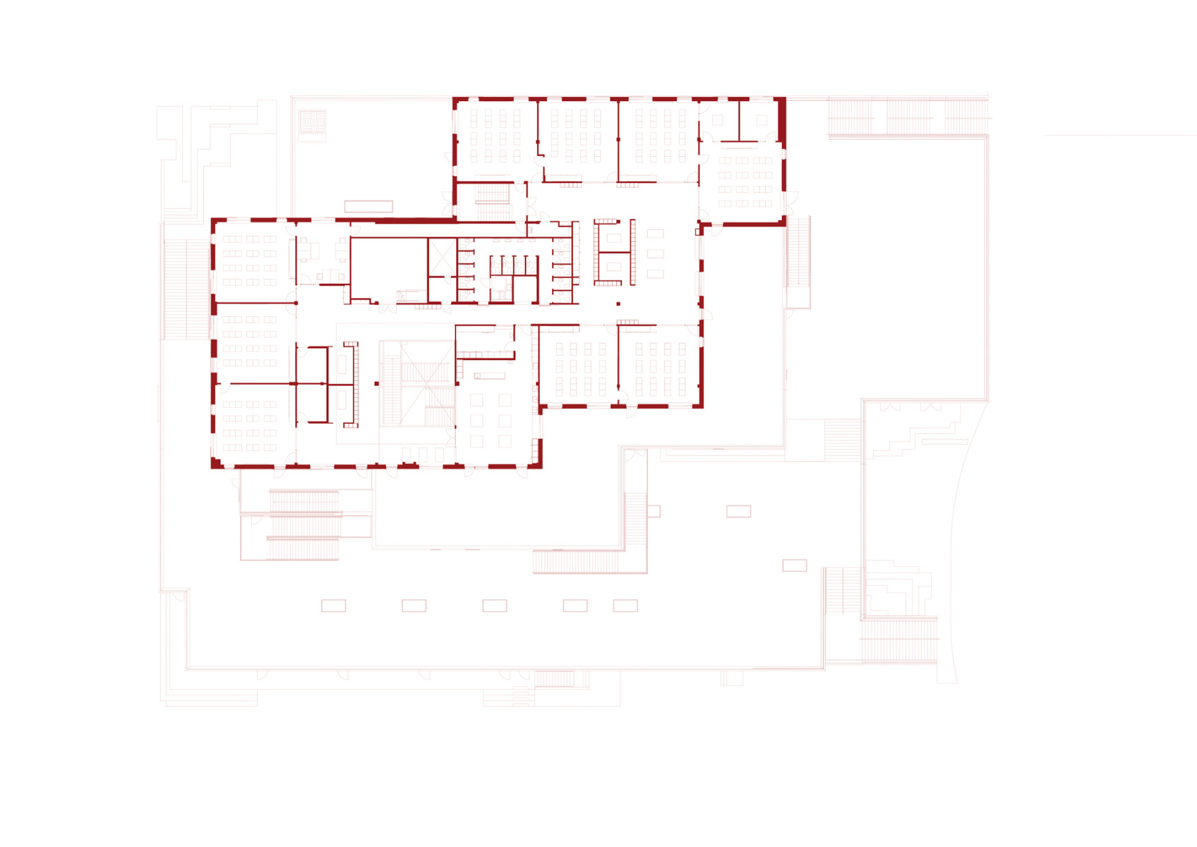
Introvertierte Räume
Auch die Innenräume stehen zumindest teilweise für außerschulische Aktivitäten offen. Das gilt vor allem für die Turnhalle, die Werkstätten und die Aula im Erdgeschoss. Sie sind eingewoben in ein offenes, abwechslungsreiches Raumkonzept, dessen gemeinsame Mitte ein von oben belichtetes Atrium mit großer Sitztreppe bildet. Eine offene Treppenkaskade führt von hier aus weiter in die oberen Etagen. Je höher man steigt, desto introvertierter werden allmählich die Räume. Ganz oben im Haus, abgeschirmt von der Öffentlichkeit und der Straße, haben die jüngsten Schüler ihre Klassenzimmer.
Architektur: Christensen & Co., Kjaer & Richter Architects
Bauherr: Stadt Kopenhagen
Standort: Holmbladsgade 117, 2300 Kopenhagen (DK)
Tragwerks- und TGA-Planung: Lyngkilde Engineers
Landschaftsarchitektur: 1:1 Landscape
Bauunternehmen: NCC
















