Medien-Hub unter einem Dach
Norwegisches Pressehaus von Atelier Oslo und Kima
© Niklas Hart
Lorem Ipsum: Zwischenüberschrift
Atelier Oslo und Kima Arkitektur verwandeln in Oslo zwei historische Gebäude in das norwegische Pressehaus. Mit einem Mix aus Alt und Neu entsteht ein Hub, der ganz im Zeichen der Medien steht. Die beiden Bauten aus den 1880er-Jahren liegen mitten im Zentrum der Stadt. Ihr Umbau erfolgte in enger Abstimmung mit dem Denkmalschutzamt.


© Inger Marie Grini
Lorem Ipsum: Zwischenüberschrift
Der Entwurf des skandinavischen Planerteams sieht die Restaurierung der Originalfassaden vor. Sie bekommen einen frischen Anstrich und erstrahlen nun in neuem Glanz. Im Inneren ergänzt man den Bestand behutsam und ordnet die einzelnen Funktionen rund um zwei Atrien an.
Lorem Ipsum: Zwischenüberschrift
Eines von ihnen ist offen gestaltet und empfängt Besucher und Mitarbeiter. Es wird von Galerien, Brücken und Treppen begleitet und weitet sich nach oben hin. Das andere verjüngt sich mit jeder Etage und wird lediglich durch die Fenster der angrenzenden Büros überblickt. Um Tageslicht bis weit in die tiefen Grundrisse zu bringen, schließen beide Innenhöfe oben mit einem Glasdach ab.


© NTB
Lorem Ipsum: Zwischenüberschrift
Die Tragstruktur aus Stahl bleibt erhalten. Sie prägt sämtliche Bereiche und zieht – in auffälligen Rottönen gestaltet – die Blicke auf sich. Während sie sich im Eingangsbereich lediglich in Form von schmalen Stäben zeigt, durchqueren das zweite Atrium mächtige Balken und Stützen in unterschiedlichen Höhen und Richtungen. Das raumbildende Raster erinnert an die frühere Nutzung als Lagerhalle.


© Einar Aslaksen


© Einar Aslaksen
Lorem Ipsum: Zwischenüberschrift
An den Wänden legt man das Mauerwerk frei, arbeitet es auf und verputzt es mit hellem Kalk. So wird die alte Backsteinstruktur bis auf einige gezielte Einschnitte Teil des Designkonzepts. Stahl und Stein kombinieren die Architekten mit hellem Eschenholz. Dieses kommt bei allen baulichen Neuerungen im Medienzentrum zum Einsatz. Neben filigranen Brüstungen und konstruktiven Leimbindern dienen schmale Lamellen unterhalb der Oberlichter als Filter für die Sonnenstrahlen.


© Einar Aslaksen
Lorem Ipsum: Zwischenüberschrift
Neben dem öffentlich zugänglichen Restaurant und Café im Erdgeschoss ziehen elf Medienorganisationen in das norwegische Pressehaus. Über mehrere Niveaus verteilt entstehen Büros, Konferenzräume und Studios – und damit Arbeitsplätze für rund 200 Personen.
Architektur: Atelier Oslo, Kima Arkitektur
Bauherr: Aspelin Ramm
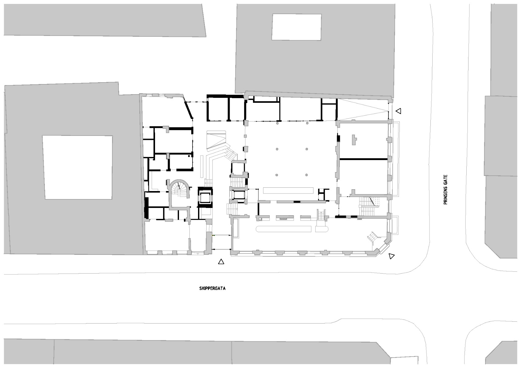
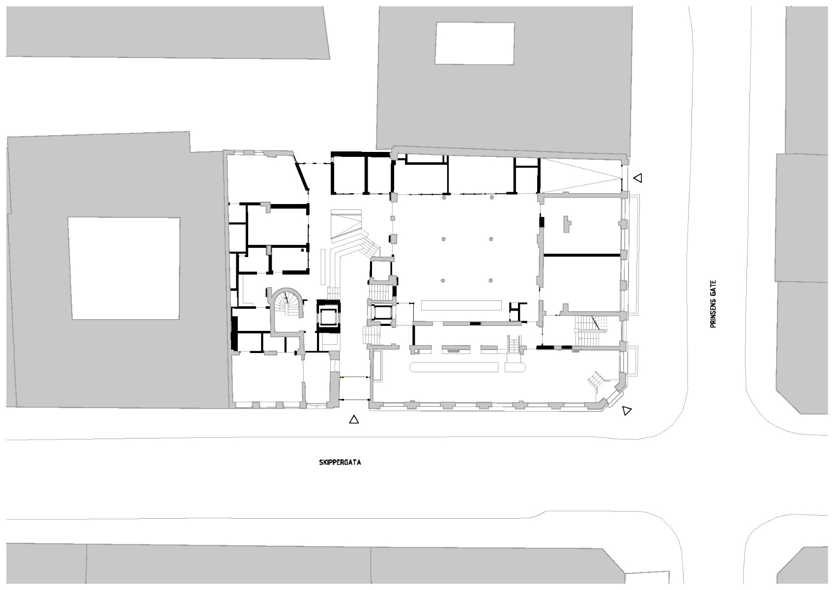
Standort: Skippergata 24, 0154 Oslo (NO)
Tragwerksplanung: Rambøll
Akustikplanung: Brekke & Strand Akustikk
Bauunternehmen: HENT
HLS-Planung: Engenius/Rambøll
Elektroplanung: Multiconsult
Brandschutzplanung: Fokus Rådgivning
Breeam-Beratung: Norconsult
Gesamtfläche: 3738 m²




















