Repräsentativer Neubau
Obwaldner Kantonalbank in Sarnen von Seiler Linhart Architekten
© Rasmus Norlander
Im Gewerbegebiet am Ortsrand haben Seiler Linhart Architekten einen Holzbau mit dezidiert urbaner Anmutung geschaffen. Künftig wird dort die Bank des Schweizer Kantons Obwalden ihren neuen Hauptsitz haben. Der derzeitige Solitärcharakter des fünfgeschossigen Neubaus soll sich in den nächsten Jahren relativieren, wenn auf den Flächen ringsum ein gemischt genutztes neues Quartier entsteht.


© Rasmus Norlander
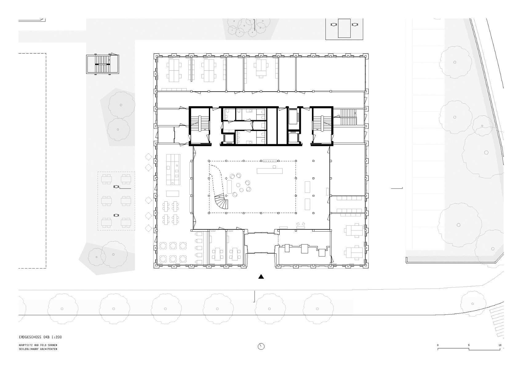
Holzskelettbau mit Betonkern
Bis auf einen aussteifenden Betonkern ist das Bankgebäude als reiner Skelettbau aus Fichten- und Eschenholzstützen und -unterzügen konzipiert. Etwas außermittig im Quadratgrundriss liegen eine zweigeschossige Eingangshalle und ein dreigeschossiger Innenhof übereinander. Die Halle ist Dreh- und Angelpunkt der unteren beiden, für das Publikum offenen Etagen, der begrünte Hof spendet Tagesicht und Frischluft für die Büros weiter oben im Haus.
Auch an den streng gerasterten Fassaden lässt sich die Zweiteilung des Raumprogramms ablesen: Die Fenster der beiden unteren Etagen lassen sich mit Schiebeläden aus perforiertem Aluminiumblech verschatten, die kleinteilig gegliederten Fenster weiter oben mit Markisen.


© Rasmus Norlander
Gemeinsam ist allen Fenstern, dass sie vom Boden bis zur Decke reichen. Einzige Ausnahme: das Erdgeschoss, wo der Holzbau auf einem mit Betonfertigteilen verkleideten Sockel steht.


© Rasmus Norlander


© Rasmus Norlander
Dezente Ornamente
Im Inneren blieb das Holzskelett weitestgehend unverkleidet. Trennwände wurden lediglich in Leichtbauweise errichtet, um den Innenausbau flexibel zu halten. Mit großen Verglasungen öffnen sich die Büroräume zum zentralen Erschließungsbereich rund um den Innenhof. Die haustechnischen Installationen sind zwischen den Deckenbalken integriert.


© Rasmus Norlander
Ein Blickfang in der Kundenhalle ist die 120 m² große Lichtdecke. Grau lackierte MDF-Scheiben bilden hier eine Art Entblendungsraster zwischen den Deckenunterzügen. Ornamentalen Charakter habe auch die Verkleidungen der Fensterstürze in den Fassaden. Hier ist das Holz mit einem feinen Fräsmuster versehen – wer will, kann darin die abstrahierten Buchstaben O, K und B für Obwaldner Kantonalbank erkennen.
Architektur: Seiler Linhart Architekten
Bauherr: Obwaldner Kantonalbank
Standort: Im Feld 2, 6060 Sarnen (CH)
Tragwerksplanung: Pirmin Jung Ingenieure für Holzbau, CES Bauingenieur
Landschaftsarchitektur: freiraumarchitektur
TGA-Planung: JOP Josef Ottiger + Partner
Bauleitung: Eggimann Architekten
Bauherrenberatung, Kostenplanung: Büro für Bauökonomie
Elektroplanung: Scherler
Lichtplanung: LG Lightguide
Bauunternehmen: ARGE Holzbau OKB Sarnen, Holzbautechnik Burch, Bürgi Alpnach




























