// Check if the article Layout ?>
Offener Dialog: Bildungszentrum in Paris
Foto: Luc Boegly
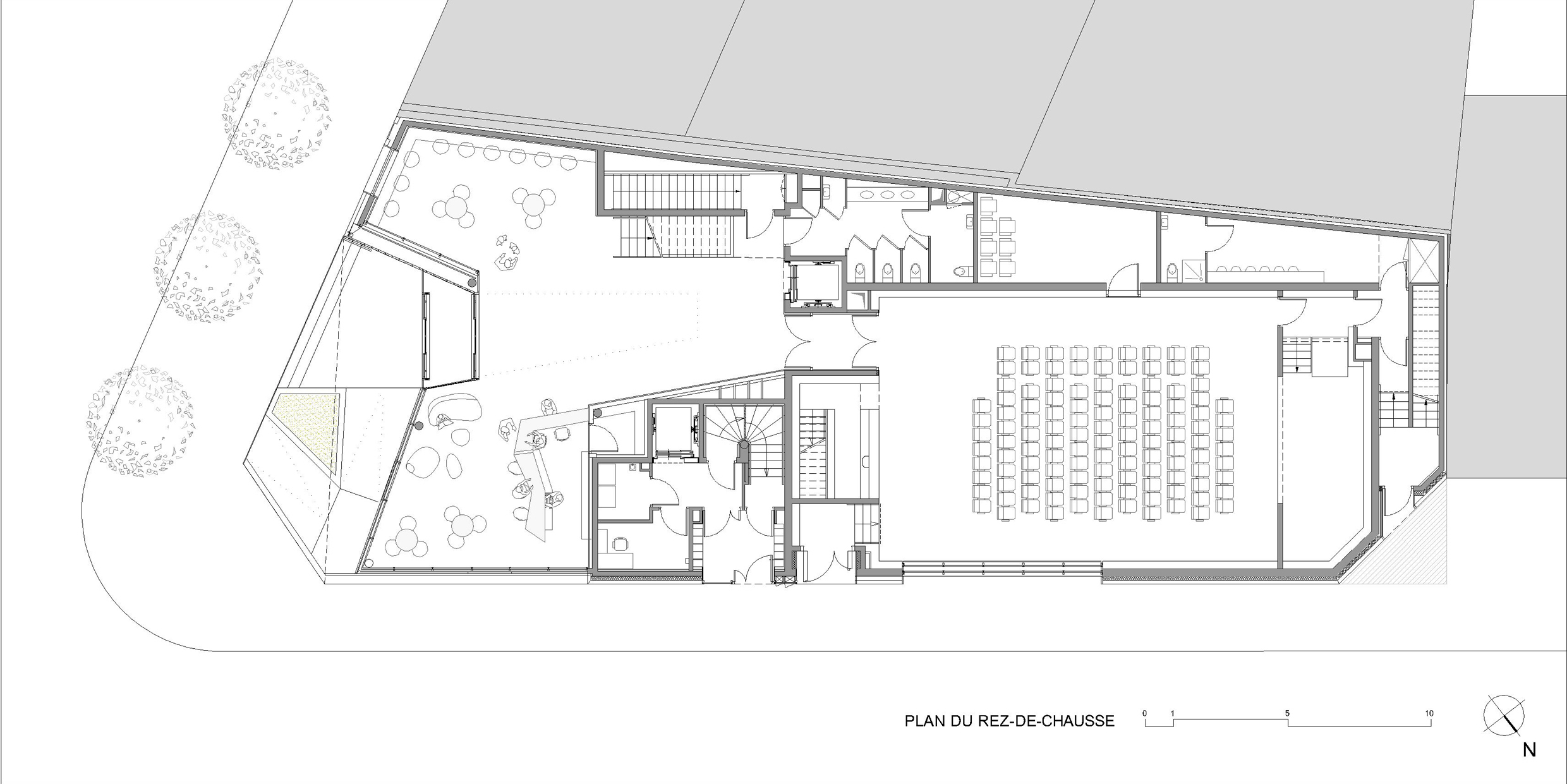
In einer baulich durchmischten Nachbarschaft, zwischen Überbleibseln des Haussmann´schen Paris und Bauwerken unterschiedlicher Generationen, bildet das Bildungszentrum einen neuen Anziehungspunkt. Bereits zuvor befand sich die Patronage Laique an dieser Stelle, doch die Räumlichkeiten erwiesen sich schon bald als ungeeignet für die Institution, sodass ein Neubau notwendig wurde. Neben der Unterbringung der ursprünglichen Räumlichkeiten, wünschte sich die Bauherrenschaft auch die Integration von 30 Studio-Appartements für junge Arbeiter. Als Sieger des 2010 ausgelobten Wettbewerbs gingen LAPS Architecture und MAB Arquitectura hervor, deren konzeptuelles Ziel darin bestand, Offenheit, Zugänglichkeit und die kommunikative Ausrichtung des Zentrums zu betonen.
Eine Herausforderung stellte zunächst die Unterbringung der beiden unterschiedlichen Funktionsbereiche dar. Die öffentlich zugänglichen Räumlichkeiten der Patronage Laique und die privaten Wohnungen sollten in einer gemeinsamen Hülle vereint werden und dennoch separat betretbar sein. Das Bildungszentrum öffnet sich expressiv zur Avenue Felix Faure. Ein verglastes, lichtdurchflutetes Atrium erweitert den öffentlichen Raum bis auf die Straße und erlaubt erste Einblicke ins Innere. Zwei flügelförmig auseinanderbrechende Gebäudeteile mit einer Hülle aus transluzentem, leicht reflektierendem Glas oberhalb des Eingangsbereichs lassen das Bauwerk schon von weitem sichtbar werden. In der Nacht erstrahlen die zurückversetzten Gebäuderiegel wie eine riesige Laterne. So wird das Bildungszentrum zum visuellen Anziehungspunkt in der gesamten Straße und präsentiert sich als öffentlich zugängliche Einrichtung.
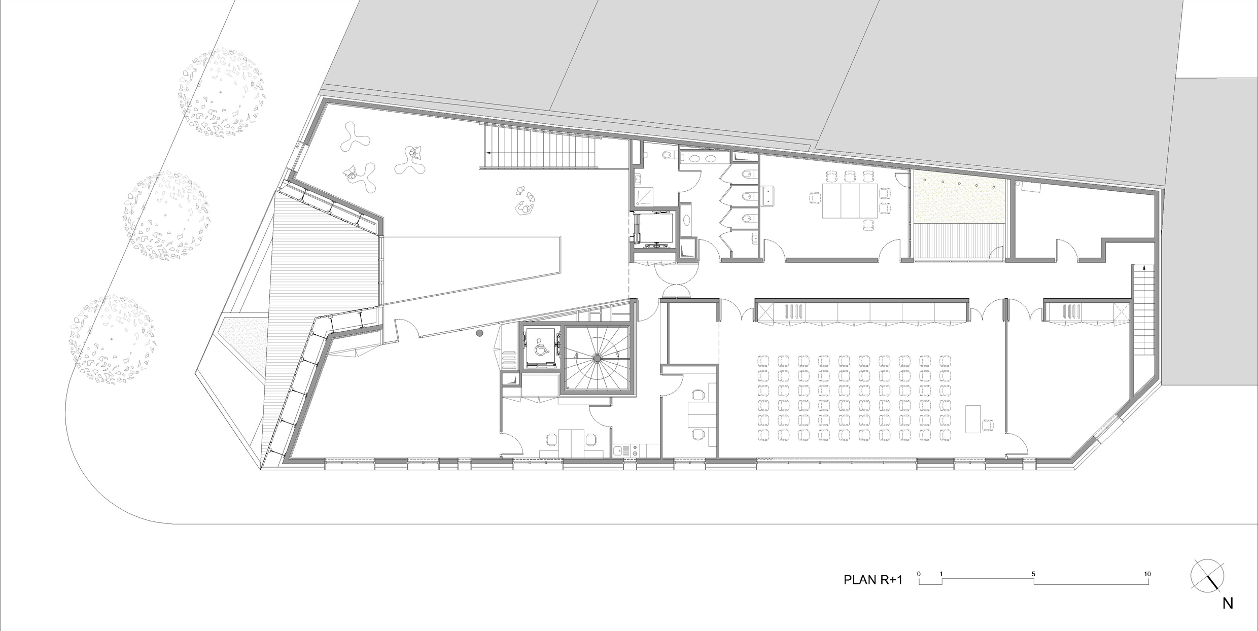
Im Kontrast zum expressiven Haupteingang wurde der Zugang zu den Appartements bewusst zurückhaltend gestaltet und befindet sich um die Ecke an der Rue Tisserand. Hier zeigt sich die Fassade in glattem Beton mit metallischen Reflektionen. Unregelmäßig angeordnete, rechteckige Fensteröffnungen verschiedener Größen rhythmisieren den Gebäudeabschnitt, der von einem zurückversetzen Obergeschoss abgeschlossen wird. So gelingt es den Architekten mittels Fassadengestaltung, Baukörperkomposition und mit dem Spiel von Licht und Öffnungen den unterschiedlichen Bedürfnissen von Öffentlichkeit und Privatsphäre nachzukommen und mit architektonischen Mitteln diese auf angemessene Weise nach außen hin zu transportieren.
Eine Herausforderung stellte zunächst die Unterbringung der beiden unterschiedlichen Funktionsbereiche dar. Die öffentlich zugänglichen Räumlichkeiten der Patronage Laique und die privaten Wohnungen sollten in einer gemeinsamen Hülle vereint werden und dennoch separat betretbar sein. Das Bildungszentrum öffnet sich expressiv zur Avenue Felix Faure. Ein verglastes, lichtdurchflutetes Atrium erweitert den öffentlichen Raum bis auf die Straße und erlaubt erste Einblicke ins Innere. Zwei flügelförmig auseinanderbrechende Gebäudeteile mit einer Hülle aus transluzentem, leicht reflektierendem Glas oberhalb des Eingangsbereichs lassen das Bauwerk schon von weitem sichtbar werden. In der Nacht erstrahlen die zurückversetzten Gebäuderiegel wie eine riesige Laterne. So wird das Bildungszentrum zum visuellen Anziehungspunkt in der gesamten Straße und präsentiert sich als öffentlich zugängliche Einrichtung.
Im Kontrast zum expressiven Haupteingang wurde der Zugang zu den Appartements bewusst zurückhaltend gestaltet und befindet sich um die Ecke an der Rue Tisserand. Hier zeigt sich die Fassade in glattem Beton mit metallischen Reflektionen. Unregelmäßig angeordnete, rechteckige Fensteröffnungen verschiedener Größen rhythmisieren den Gebäudeabschnitt, der von einem zurückversetzen Obergeschoss abgeschlossen wird. So gelingt es den Architekten mittels Fassadengestaltung, Baukörperkomposition und mit dem Spiel von Licht und Öffnungen den unterschiedlichen Bedürfnissen von Öffentlichkeit und Privatsphäre nachzukommen und mit architektonischen Mitteln diese auf angemessene Weise nach außen hin zu transportieren.



























