// Check if the article Layout ?>
Opulenz der Einfachheit: Casa Vila Rica bei Brasilia
Foto: Haruo Mikami
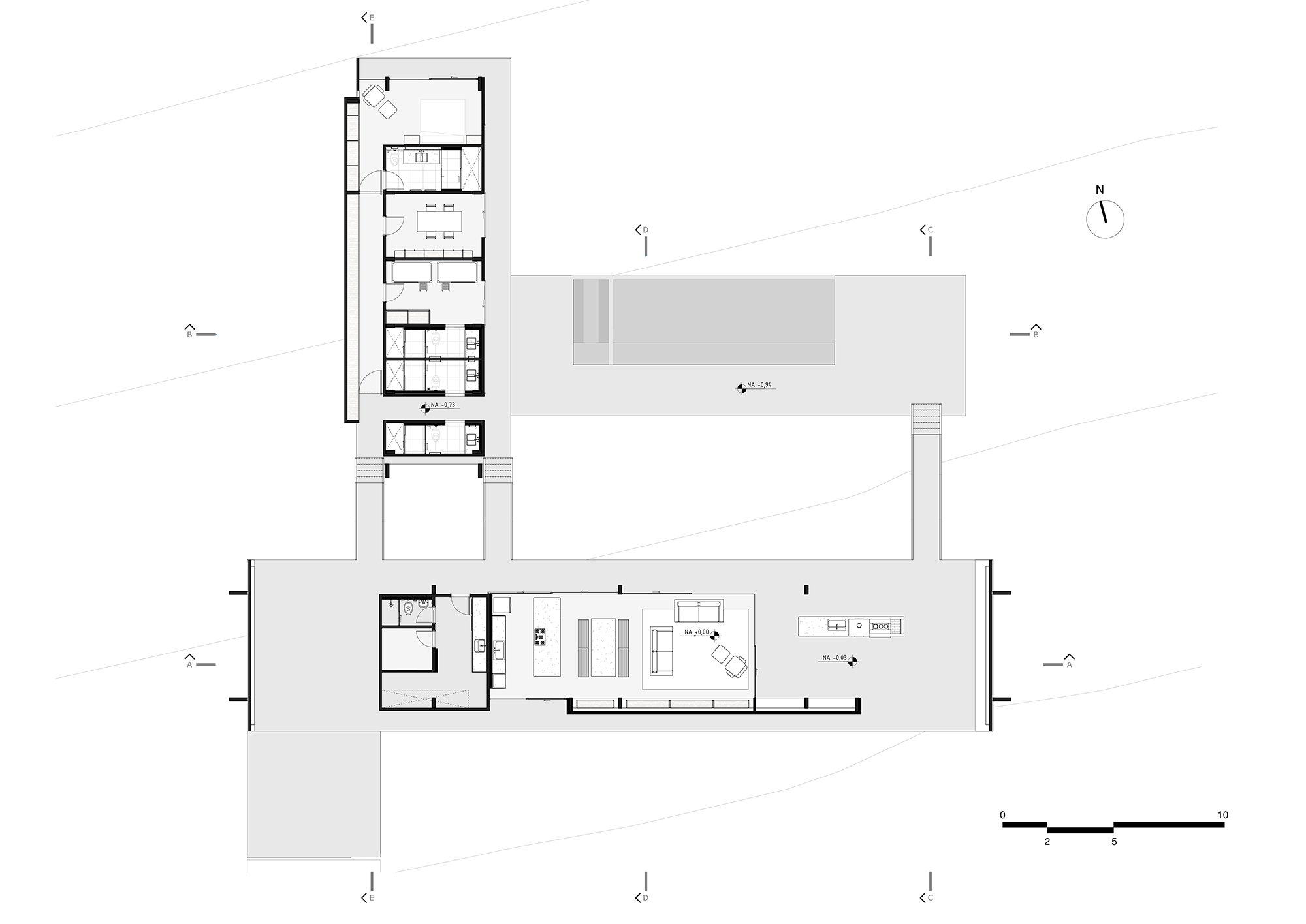
Die Casa Vila Rica von Bloco Arquitetos ist kein kleines Haus: Über 30 m lang ist ihr Wohntrakt, knapp 20 m misst der etwas tiefer gelegene Flügel mit den Schlafzimmern. Beide umgeben in einer L-Formation den Swimmingpool des Hauses, das auf einem ganz leicht nach Norden abfallenden Gelände rund 40 km außerhalb von Brasilia steht. Die Bauherren hatten das Grundstück schon seit langem besessen und nun den Plan gefasst, hier einen Zweitwohnsitz für längere Aufenthalte zu errichten. Als Unternehmer und Anwältin haben sie die Möglichkeit, auch längere Zeit im Home Office zu arbeiten.
Das Haus sollte ihnen zum einen Nähe zur Natur vermitteln und zum anderen die Möglichkeit bieten, auch eine größere Anzahl an Gästen zu beherbergen. Bloco Arquitetos begriffen dies als Aufforderung, alle Räume so offen als möglich zu gestalten. Im Südflügel des Gebäudes reihen sich eine offene Garage, Wohnraum, Küche und eine offene Veranda mit Freiluftküche auf; der etwas kleinere Schlaftrakt beherbergt neben zwei Schlafzimmern nicht weniger als 4 Bäder, die jeweils durch einen kleinen Innenhof natürlich belichtet werden. Lediglich zwei überdachte, doch seitlich offene Passerellen verbinden die beiden Gebäudeteile miteinander.
Die opulenten Abmessungen des Hauses konterkarierten die Architekten mit einer geradezu rotzigen Einfachheit der Materialien. Sichtbetonstützen und relativ dünne Betondecken bilden die Primärtragstruktur des Hauses. Es ist leicht über das Gelände angehoben, um unerwünschten Besuch durch Eidechsen oder Insekten aus den Innenräumen fernzuhalten. Da das Bauunternehmen zwar eine gewisse Meisterschaft im Umgang mit Ziegelmauerwerk, aber wenig Erfahrungen mit Sichtbeton besaß, verzichteten Bloco Arquitetos von vornherein auf das Nacharbeiten kleinerer Unsauberkeiten in den Betonoberflächen. Lediglich in den Innenräumen wurden die Betonböden poliert. Außen sowie in den Nassräumen ließen die Architekten hingegen dünne, sandgestrahlte Granitplatten verlegen, die farblich kaum von dem Beton zu unterscheiden sind.
Alle Wände bestehen einheitlich aus 12 cm starkem Ziegelmauerwerk, das aufgrund des milden Klimas ungedämmt bleiben konnte. Die Ziegel sind nicht viel mehr als eine Füllung des robusten Betonskeletts, das allenthalben deutlich ablesbar bleibt. Betont einfach gestalteten Bloco Arquitetos auch das Mobiliar: Betten, Regale und Schränke bestehen aus einfachem Paricá-Sperrholz und schwarzlackierten Stahlprofilen. Nur ein einziger vertikaler Akzent durchbricht die betonte Horizontale der Baukörper: Über dem Schlaftrakt ragt turmartig ein Wasserspeicher empor, dessen Betonkonstruktion mit licht- und luftdurchlässigem Mauerwerk verkleidet ist und in ihrem Inneren auch das Equipment für die Warmwasserbereitung birgt.
Das Haus sollte ihnen zum einen Nähe zur Natur vermitteln und zum anderen die Möglichkeit bieten, auch eine größere Anzahl an Gästen zu beherbergen. Bloco Arquitetos begriffen dies als Aufforderung, alle Räume so offen als möglich zu gestalten. Im Südflügel des Gebäudes reihen sich eine offene Garage, Wohnraum, Küche und eine offene Veranda mit Freiluftküche auf; der etwas kleinere Schlaftrakt beherbergt neben zwei Schlafzimmern nicht weniger als 4 Bäder, die jeweils durch einen kleinen Innenhof natürlich belichtet werden. Lediglich zwei überdachte, doch seitlich offene Passerellen verbinden die beiden Gebäudeteile miteinander.
Die opulenten Abmessungen des Hauses konterkarierten die Architekten mit einer geradezu rotzigen Einfachheit der Materialien. Sichtbetonstützen und relativ dünne Betondecken bilden die Primärtragstruktur des Hauses. Es ist leicht über das Gelände angehoben, um unerwünschten Besuch durch Eidechsen oder Insekten aus den Innenräumen fernzuhalten. Da das Bauunternehmen zwar eine gewisse Meisterschaft im Umgang mit Ziegelmauerwerk, aber wenig Erfahrungen mit Sichtbeton besaß, verzichteten Bloco Arquitetos von vornherein auf das Nacharbeiten kleinerer Unsauberkeiten in den Betonoberflächen. Lediglich in den Innenräumen wurden die Betonböden poliert. Außen sowie in den Nassräumen ließen die Architekten hingegen dünne, sandgestrahlte Granitplatten verlegen, die farblich kaum von dem Beton zu unterscheiden sind.
Alle Wände bestehen einheitlich aus 12 cm starkem Ziegelmauerwerk, das aufgrund des milden Klimas ungedämmt bleiben konnte. Die Ziegel sind nicht viel mehr als eine Füllung des robusten Betonskeletts, das allenthalben deutlich ablesbar bleibt. Betont einfach gestalteten Bloco Arquitetos auch das Mobiliar: Betten, Regale und Schränke bestehen aus einfachem Paricá-Sperrholz und schwarzlackierten Stahlprofilen. Nur ein einziger vertikaler Akzent durchbricht die betonte Horizontale der Baukörper: Über dem Schlaftrakt ragt turmartig ein Wasserspeicher empor, dessen Betonkonstruktion mit licht- und luftdurchlässigem Mauerwerk verkleidet ist und in ihrem Inneren auch das Equipment für die Warmwasserbereitung birgt.


































