// Check if the article Layout ?>
Palladio lebt weiter: Erweiterung des Bündner Kunstmuseums
Foto: Simon Menges
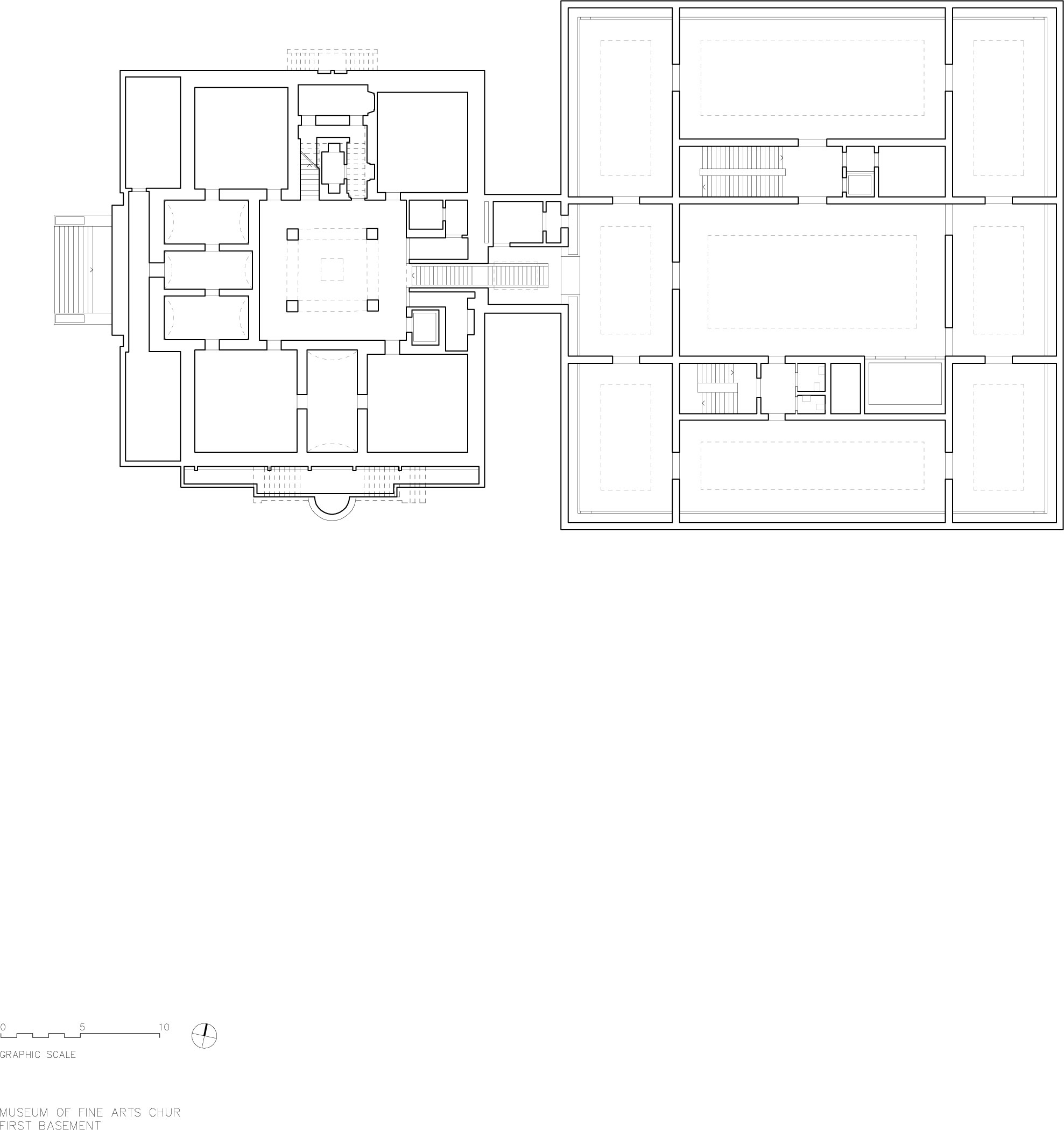
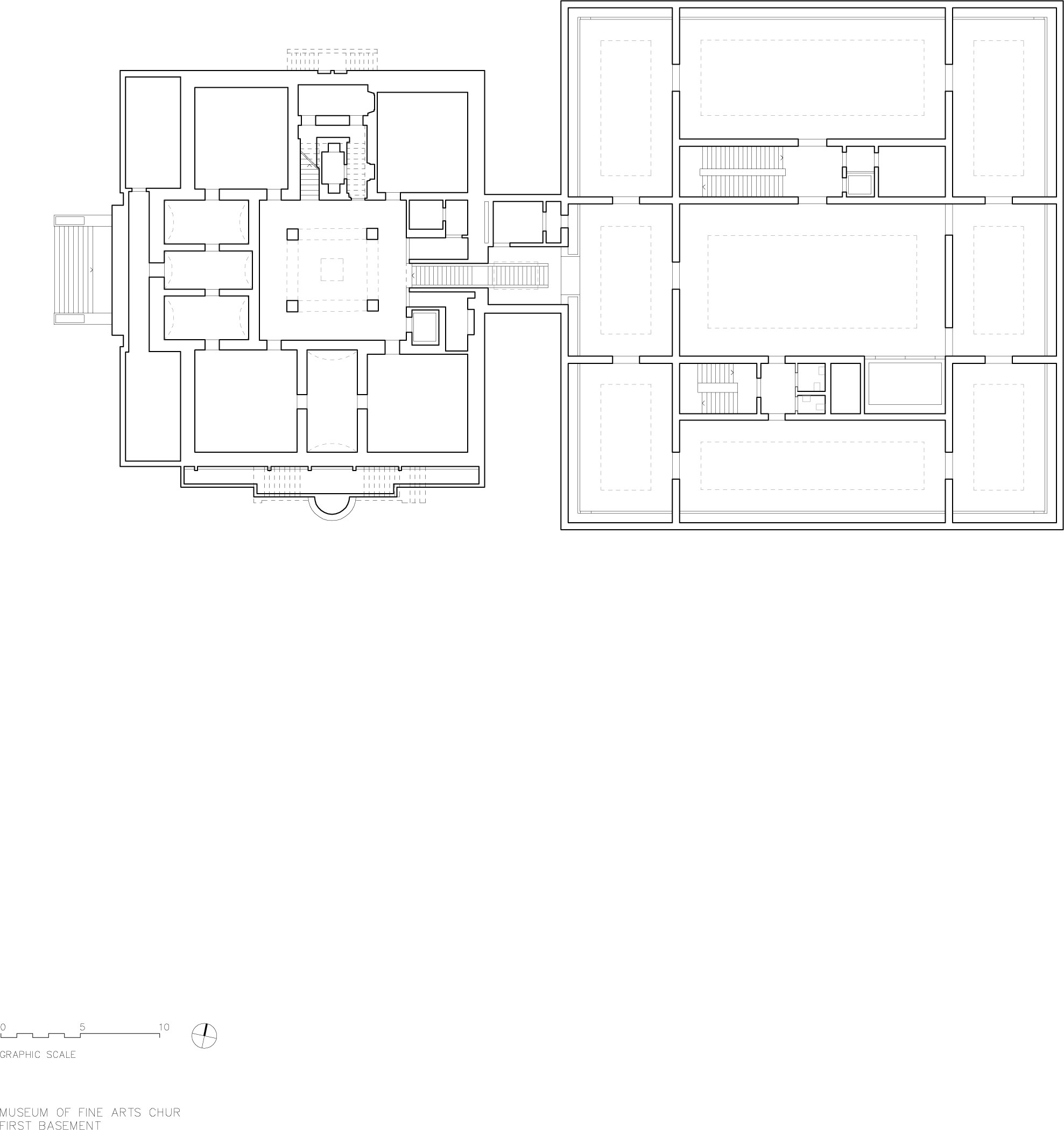
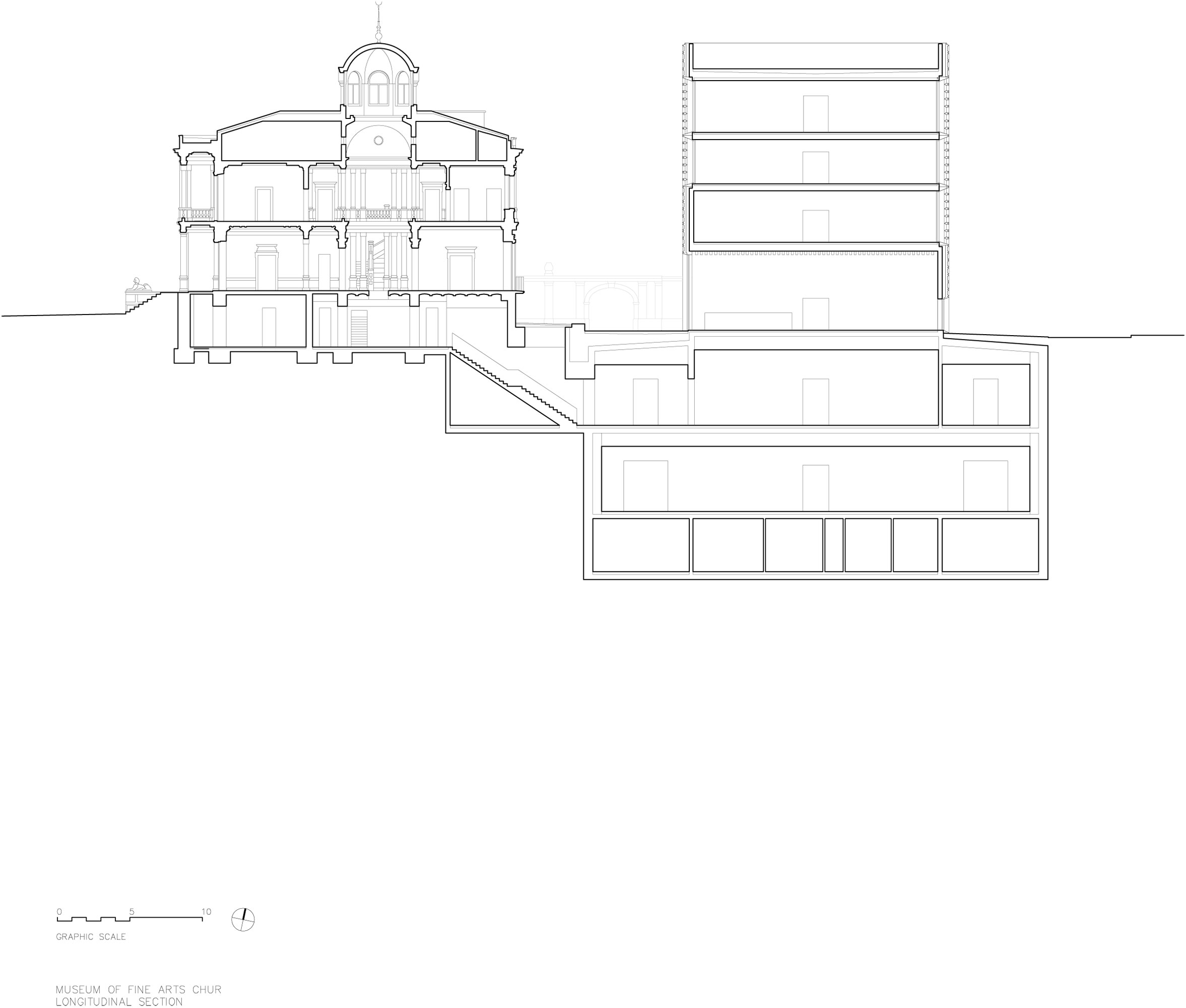
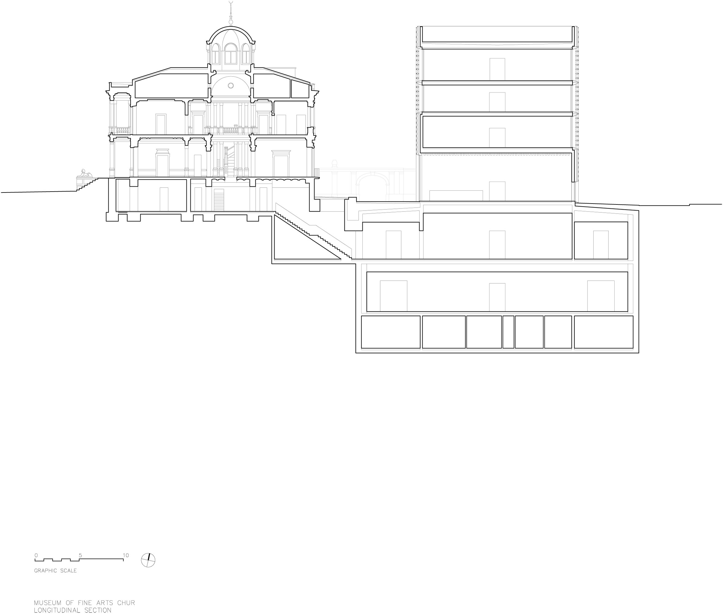
Um den Entwurf des spanischen Büros Barozzi Veiga zu verstehen, ist ein Exkurs in die Geschichte unabdingbar. Der Altbau des Bündner Kunstmuseums ist die neoklassizistische Villa Planta, ein ursprünglich als Wohnhaus geplantes Gebäude, dessen Aufbau sich stark an den Regeln Palladios orientiert. So verfügt es über einen symmetrischen Grundriss in kubischer Hülle. Zahlreiche Ornamente zeugen außerdem von den Reisen des Bauherren nach Ägypten. Der Neubau greift nun die Achsen der Villa wieder auf und fügt sich in das Raster ein. Auch die Grundrisse sind einem geometrischen System unterworfen. Dabei sollte die Größe des Bauvolumens über der Erde so stark wie möglich reduziert werden. Alle Ausstellungsräume wurden deswegen unterirdisch angelegt, lediglich die öffentlichen Bereiche und der Zugang liegen darüber. Ziel dieser Maßnahme war es, Platz für einen Garten zu lassen. Dieser Freiraum wurde so gestaltet, dass er nicht selbst die Aufmerksamkeit auf sich zieht, sondern vielmehr die Ausstrahlung und Präsenz der beiden Gebäude des Bündner Kunstmuseums unterstützt. Zarte, orientalische Kirschbäume stellen die Verbindung zum Garten der Villa Planta her. Die restlichen Oberflächen sind mit Kies bedeckt oder gepflastert. Sie können als Ausstellungsfläche für Skulpturen genutzt werden.
Die Erweiterung besticht von außen durch die klare Form des Baukörpers. Vom Sockel abgesehen ist die Hülle mit einem flachen Relief aus vorgefertigten, hellgrauen Betonelementen verkleidet. Sie stellen eine Neuinterpretation der Ornamentik der Villa Planta dar. Das zentrale Foyer öffnet sich mit einer Glasfront zum Altbau und stellt somit noch einmal eine unübersehbare Verbindung zur Villa her.
Die Sammlung wird in den ersten beiden Untergeschossen ausgestellt. Unterschiedlich proportionierte Räume wurden dazu symmetrisch angeordnet. Ein Stockwerk tiefer finden wechselnde Ausstellungen statt. Der große Raum kann flexibel gegliedert werden, oder komplett offen belassen werden. Die gesamte Erweiterung des Museums ist sehr reduziert gestaltet. Man könnte sagen, die Architekten haben eine bereinigte Version der Villa Planta errichtet, bei der nur noch die Struktur, die Konstruktion und die neu interpretierten Ornamente zählen.
Das Bündner Kunstmuseum wurde am 22. Juni wiedereröffnet mit der Ausstellung »Solo Walks. Eine Galerie des Gehens«.
Die Erweiterung besticht von außen durch die klare Form des Baukörpers. Vom Sockel abgesehen ist die Hülle mit einem flachen Relief aus vorgefertigten, hellgrauen Betonelementen verkleidet. Sie stellen eine Neuinterpretation der Ornamentik der Villa Planta dar. Das zentrale Foyer öffnet sich mit einer Glasfront zum Altbau und stellt somit noch einmal eine unübersehbare Verbindung zur Villa her.
Die Sammlung wird in den ersten beiden Untergeschossen ausgestellt. Unterschiedlich proportionierte Räume wurden dazu symmetrisch angeordnet. Ein Stockwerk tiefer finden wechselnde Ausstellungen statt. Der große Raum kann flexibel gegliedert werden, oder komplett offen belassen werden. Die gesamte Erweiterung des Museums ist sehr reduziert gestaltet. Man könnte sagen, die Architekten haben eine bereinigte Version der Villa Planta errichtet, bei der nur noch die Struktur, die Konstruktion und die neu interpretierten Ornamente zählen.
Das Bündner Kunstmuseum wurde am 22. Juni wiedereröffnet mit der Ausstellung »Solo Walks. Eine Galerie des Gehens«.
Weitere Informationen:
Architekten: Fabrizio Barozzi , Alberto Veiga
Projektleiter: Katrin Baumgarten
Projekteam: Paola Calcavecchia, Shin Hye Kwang, Maria Eleonora Maccari, Anna Mallen, Verena Recla, Laura Rodriguez, Ivanna Sanjuan, Arnau Sastre, Cecilia Vielba
Landschaftsarchitekt: Paolo Bürgi Landschaftsarchitekt
Gesamtfläche: 4000 m²
Projektleiter: Katrin Baumgarten
Projekteam: Paola Calcavecchia, Shin Hye Kwang, Maria Eleonora Maccari, Anna Mallen, Verena Recla, Laura Rodriguez, Ivanna Sanjuan, Arnau Sastre, Cecilia Vielba
Landschaftsarchitekt: Paolo Bürgi Landschaftsarchitekt
Gesamtfläche: 4000 m²















