// Check if the article Layout ?>
Pariser Leichtigkeit: Aufstockung mit Sheddach
Foto: Pedro Duque Estrada Meyer
Wie ein Riegel, eingeschoben in den urbanen Kontext des Viertels, liegt »The 25« auf dem Bestandsgebäude auf. Zur Straßenseite ragt die von einem leichten, weißen Gitter umgebene Terrasse hervor. Dieses Gitter, das den Riegel rundherum bekleidet, kontrastiert mit den roten Ziegelsteinen, aus denen der Eingangsbereich gemauert ist. Auf den gemauerten Wandscheiben, die in ihrer Mitte den Aufgang in den Gebäuderiegel beherbergen, liegt der weiße Baukörper auf. Nur an einer Stelle ragen die Ziegel auch über das Erdgeschoss hinaus: Der außenliegende Aufzugschacht ist mit dem gleichen Mauerwerk verkleidet. Zwischen den Wandscheiben hindurch, aufwärts in den ersten Stock, gelangt man auf die Terrasse. Durch die leichte Gitterverkleidung an den Seiten wird der Blick von dort hinaus in die Pariser Nachbarschaft geleitet.
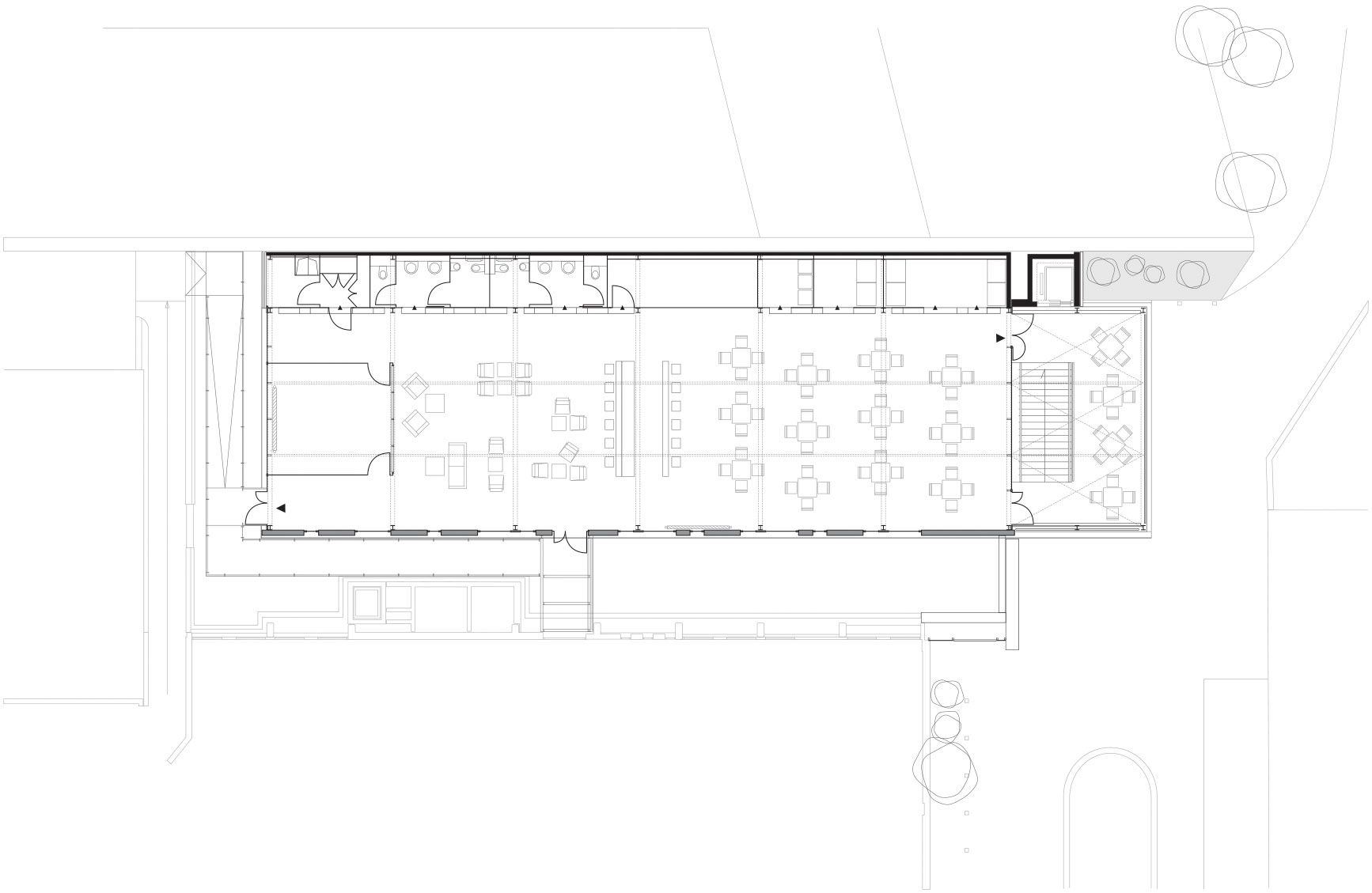
Im Innenraum schließt sich ein offener Bereich mit Bar an. Hier finden Ausstellungen statt, vor allem dient er aber als Aufenthaltsort und Treffpunkt. Am hinteren Ende wurde ein mit einer Glaswand abgeschlossener Raum für Meetings eingerichtet. Entlang der rechten Seite beherbergt eine Schicht alle notwendigen Räume für Gebäudetechnik, sanitäre Anlagen und Stauraum. An die Trennwand zwischen dieser Schicht und dem Aufenthaltsraum wurden Regale angepasst, die die Bibliothek aufnehmen.
Da an den langen Seiten des Gebäudes die Bebauung relativ dicht steht, wurde zusätzliche Belichtung nötig. Durch ein Sheddach tritt von oben Tageslicht ein, das von Leuchten unterstützt auch die Gebäudemitte in ein angenehm gleichmäßiges Licht taucht. Die von innen weiß lackierten Dachflächen unterstützen diese lichtdurchflutete Optik.
Die leichte Konstruktion und Fassadenverkleidung findet ihren Ursprung im Baugrund. »The 25« wurde auf drei Kellergeschossen erbaut, die während der Bauzeit durchgehend benutzbar bleiben sollten. So fiel die Entscheidung auf eine reduzierte Tragstruktur und die vorgefertigten Metallgitter an der Fassade.
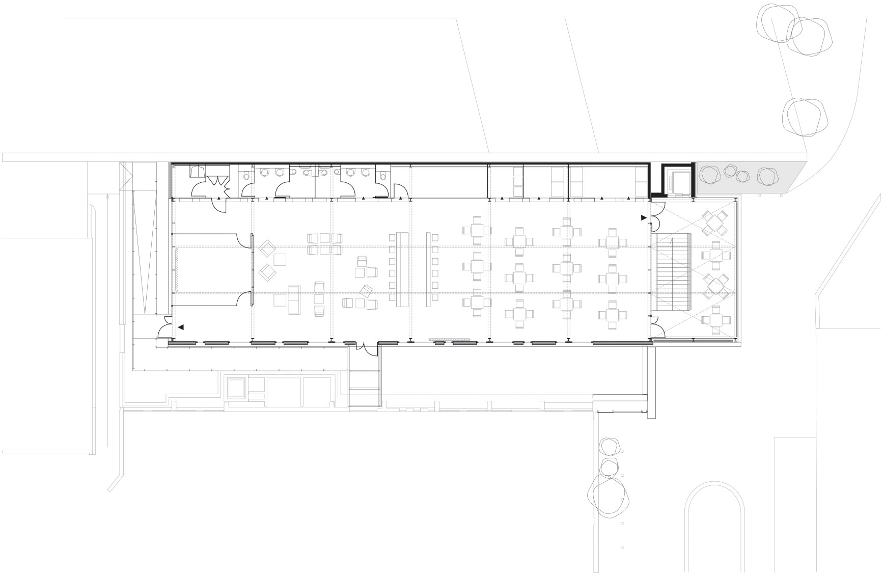
Im Innenraum schließt sich ein offener Bereich mit Bar an. Hier finden Ausstellungen statt, vor allem dient er aber als Aufenthaltsort und Treffpunkt. Am hinteren Ende wurde ein mit einer Glaswand abgeschlossener Raum für Meetings eingerichtet. Entlang der rechten Seite beherbergt eine Schicht alle notwendigen Räume für Gebäudetechnik, sanitäre Anlagen und Stauraum. An die Trennwand zwischen dieser Schicht und dem Aufenthaltsraum wurden Regale angepasst, die die Bibliothek aufnehmen.
Da an den langen Seiten des Gebäudes die Bebauung relativ dicht steht, wurde zusätzliche Belichtung nötig. Durch ein Sheddach tritt von oben Tageslicht ein, das von Leuchten unterstützt auch die Gebäudemitte in ein angenehm gleichmäßiges Licht taucht. Die von innen weiß lackierten Dachflächen unterstützen diese lichtdurchflutete Optik.
Die leichte Konstruktion und Fassadenverkleidung findet ihren Ursprung im Baugrund. »The 25« wurde auf drei Kellergeschossen erbaut, die während der Bauzeit durchgehend benutzbar bleiben sollten. So fiel die Entscheidung auf eine reduzierte Tragstruktur und die vorgefertigten Metallgitter an der Fassade.













