Partizipativ geplant: Wohnprojekt Gleis 21 in Wien
Foto: Hertha Hurnaus
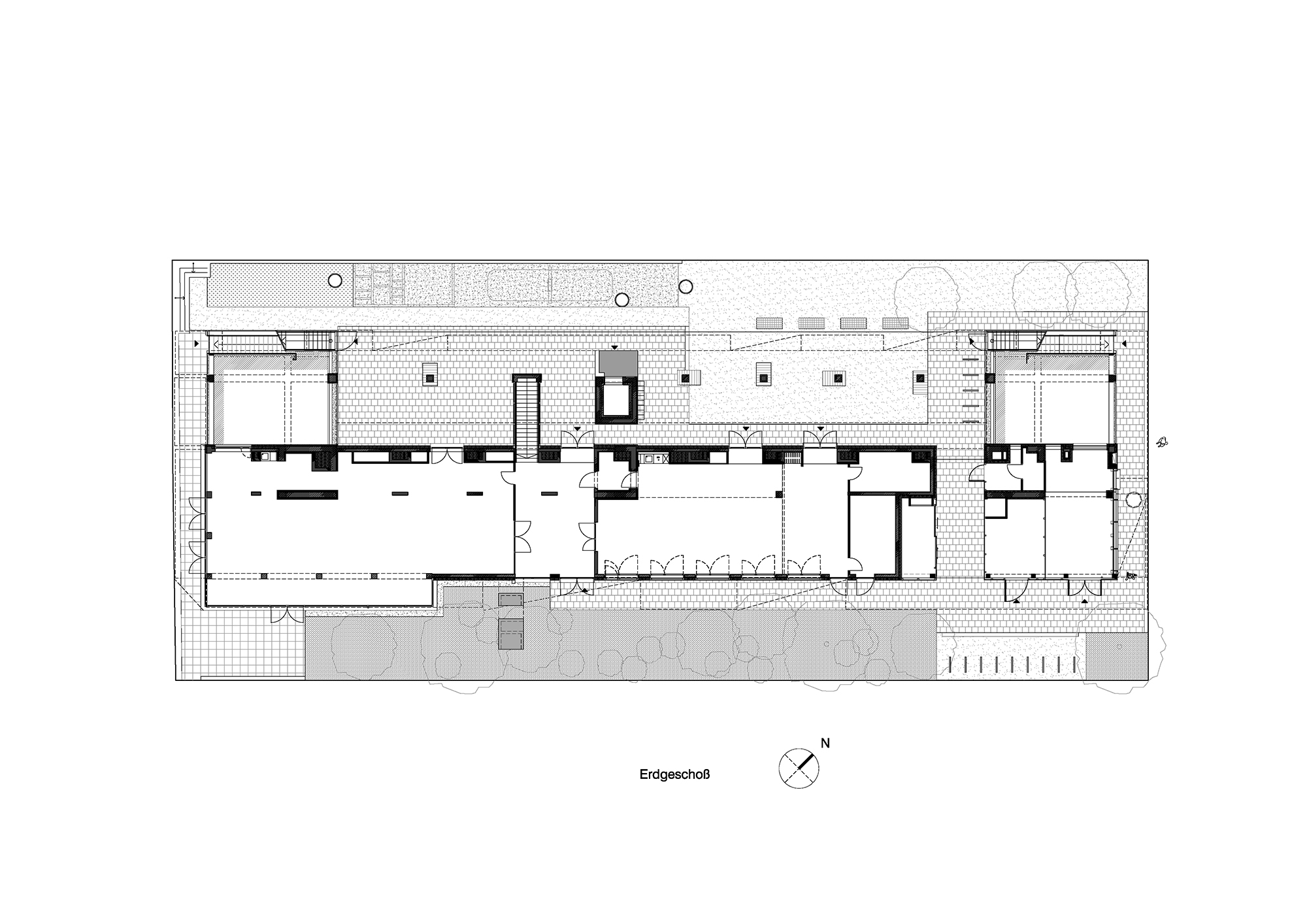
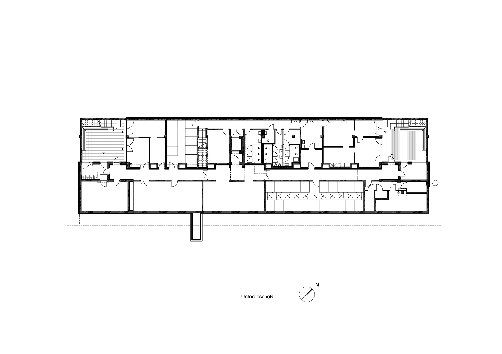
Auf einem langgestreckten Grundstück am Helmut-Zilk-Park gelegen, ist das Gebäude als kompakter Riegel konzipiert. Erdgeschoss und Dachgeschoss sind komplett gemeinschaftlichen Nutzungen vorbehalten. Während das Bistro, der Multifunktionsraum und die Medienwerkstatt im Erdgeschoss auch öffentlich zugänglich sind und die Nachbarschaft beleben sollen, ist der Zugang zum Dachgeschoss mit Gemeinschaftsküche, Dachgarten, Bibliothek und Sauna den Bewohnern vorbehalten. Werkstatt, Atelier und Fitnessraum im Untergeschoss runden das Angebot an Gemeinschaftsräumen ab.
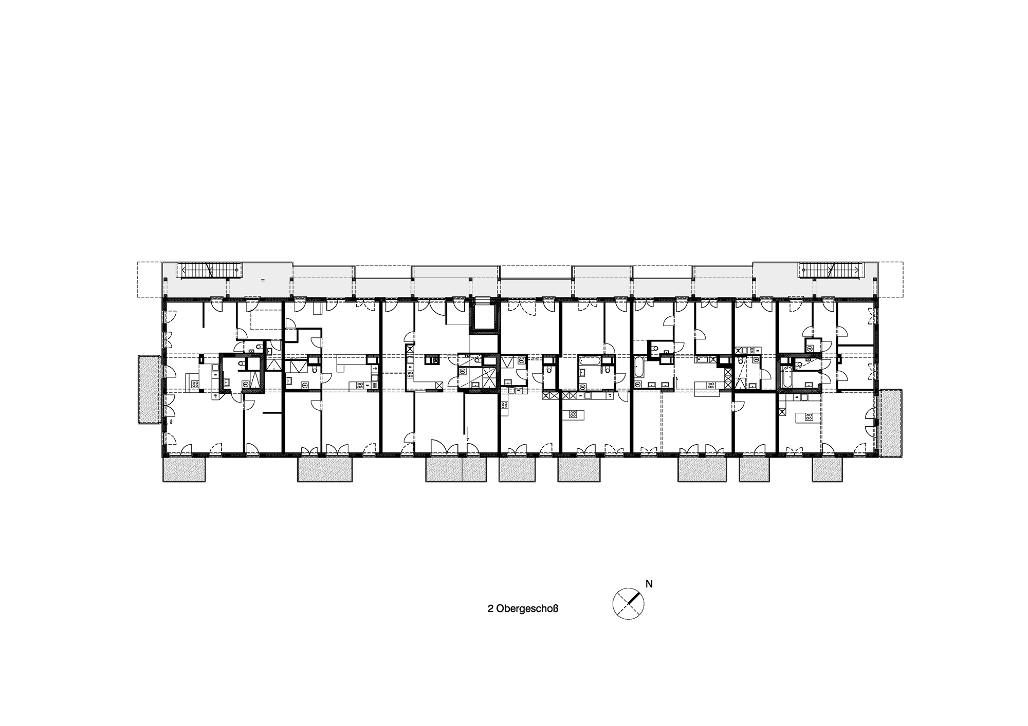
Die Wohnungen liegen in den vier Obergeschossen und werden durch einen großzügigen Laubengang mit offenen Treppenhäusern erschlossen, der gleichzeitig als Kommunikationszone gedacht ist. Auf der gegenüberliegenden Seite, nach Südosten orientiert, befinden sich die privaten Balkone. Dank der einfachen Grundrissstruktur mit Küchen und Bädern in der Mittelzone entstanden Wohnungen verschiedener Größe, die gemeinsam mit den Nutzern individuell geplant wurden. So genannte Flexwohnungen lassen sich den angrenzenden Wohnungen flexibel zuschalten und ermöglichen räumliche Veränderungen.
Neben sozialen Aspekten war dem Verein Wohnprojekt 21 eine nachhaltige Bauweise und der Einsatz zertifizierter Materialien wichtig. Wesentliche Teile des Gebäudes sind in Holz ausgeführt, darunter die Fassaden und die Innenwände der Obergeschosse. Der kompakte Baukörper, die gedämmte Hülle und dreifachverglaste Fenster tragen zur Minimierung der Energiekosten bei.
Weitere Informationen:
Generalunternehmer: Weissenseer Holz-System-Bau GmbH













