Pas de deux: Leeza SOHO Tower von Zaha Hadid Architects
Foto: © Hufton+Crow
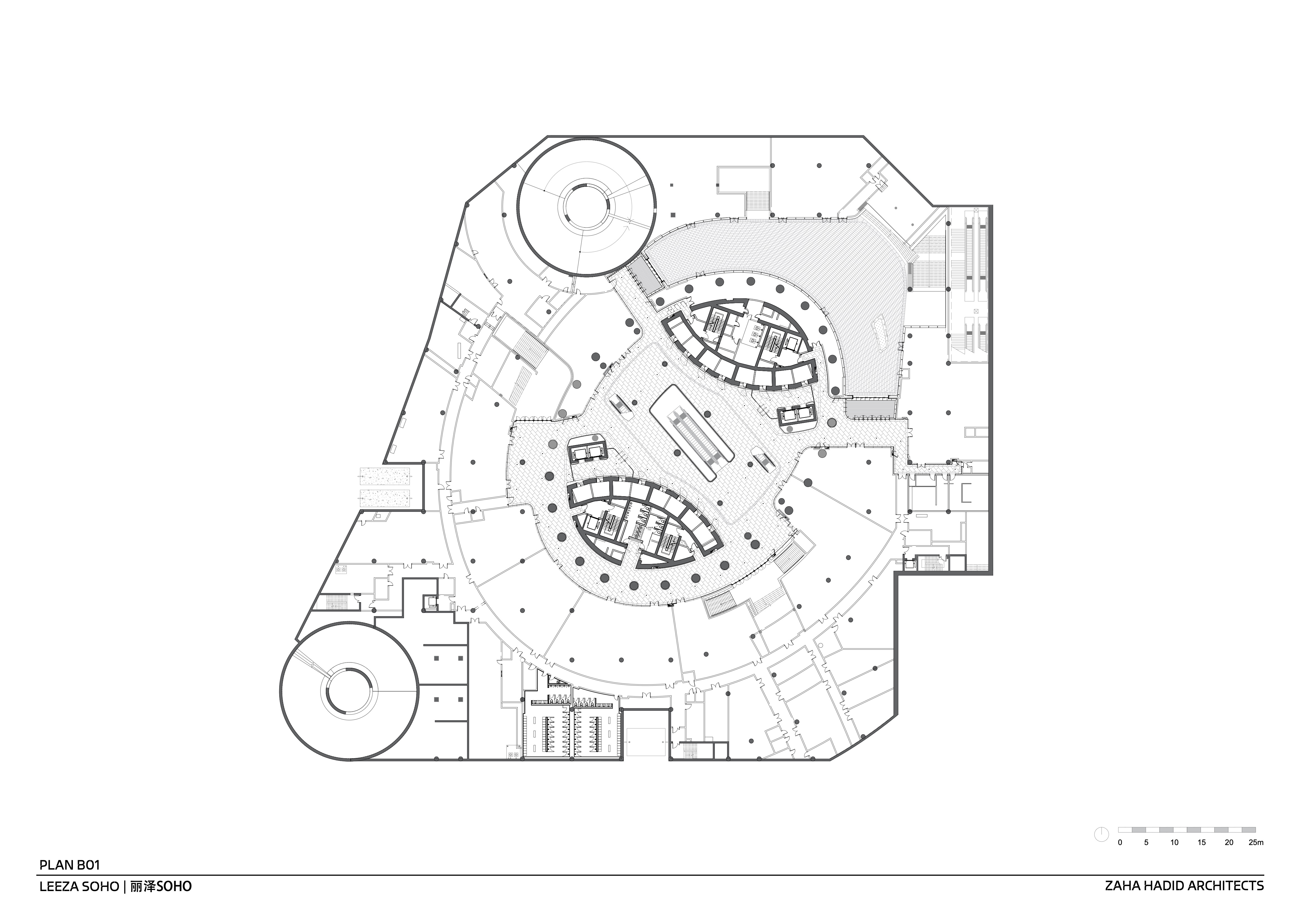
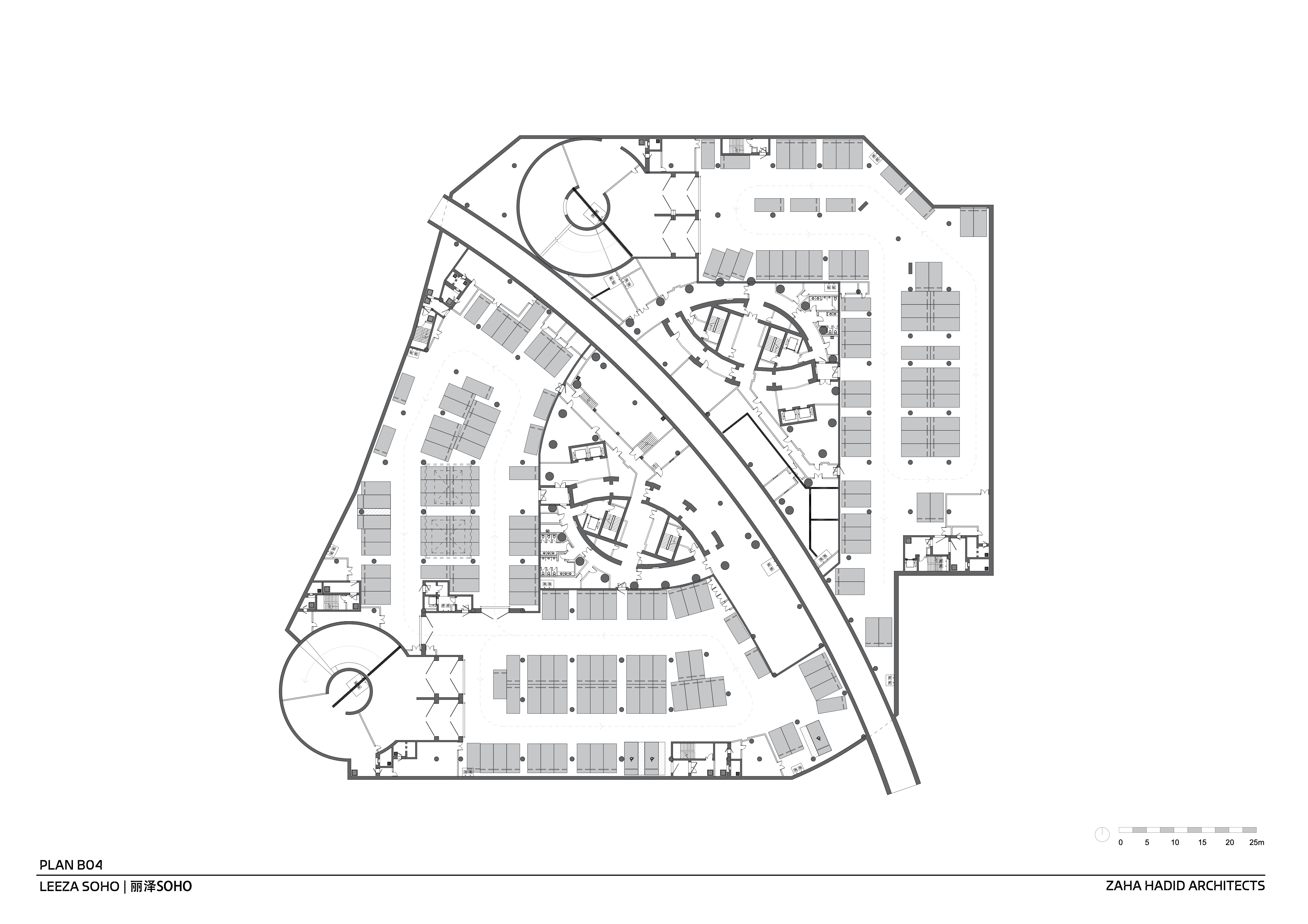
Im Südwesten Pekings verankert der Leeza SOHO Tower von Zaha Hadid Architects das Geschäftsviertel Fengtai - ein wachsendes Finanz- und Verkehrszentrum unweit des kürzlich eröffneten Beijing Daxing International Airport. Mit 45 Stockwerken und einer Gesamtfläche von 172.800 m² entspricht der Turm der Nachfrage kleiner und mittlerer Unternehmen nach flexiblen Büroflächen.
Eine verglaste Fassadenhülle umschließt den in zwei Hälften geteilten Baukörper. Der dazwischen entstehende Raum erstreckt sich entlang der gesamten Turmhöhe und lässt auf exakt 194,15 m in einem rotierenden „Pas de deux“ Tanzduet das weltweit höchste Atrium entstehen.
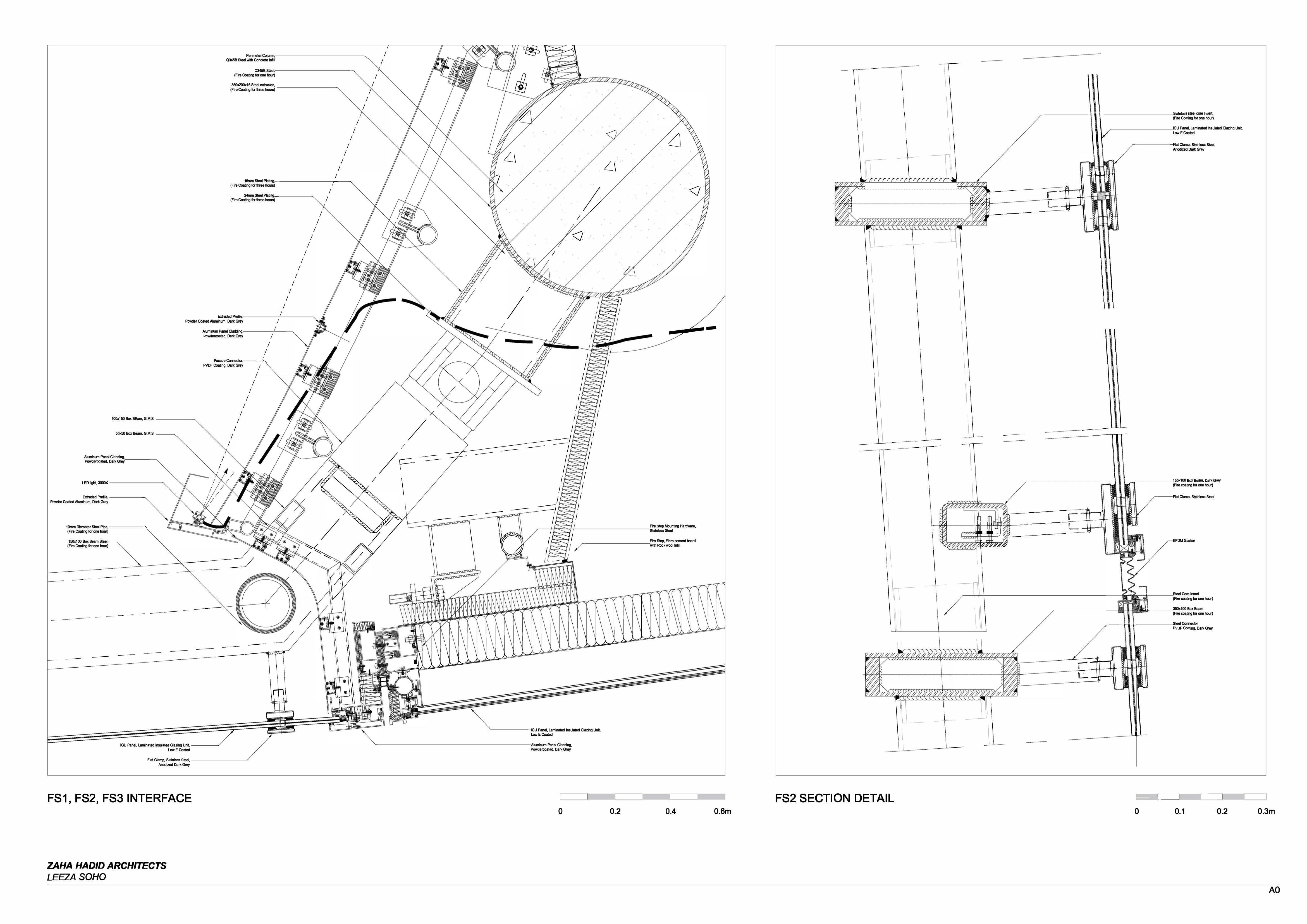
Beide Turmhälften beschatten die öffentlichen Bereiche im Atrium, während die doppelt isolierte Low-E-Verglasung mit einem Wärmedurchgangskoeffizienten von 2,0 W/m²K und einem b-Faktor von 0,4 ein angenehmes Raumklima gewährleistet. Dabei beträgt der U-Wert der gesamten Turmhülle 0,55 W/m²K. Ein 3D-BIM-Energiemanagementsystem erlaubt die Verwendung von Planungsinformationen für die Energieeffizienz des Gebäudes. Dazu gehören Wassersammelanlagen, Photovoltaikmodule, 2.680 Fahrradstellplätze und unterirdische Ladestationen für Elektro- und Hybridautos.
Weitere Informationen:
Design: Zaha Hadid, Patrik Schumacher
ZHA Project Director: Satoshi Ohashi
ZHA Project Architect: Philipp Ostermaier
ZHA Project Associates: Kaloyan Erevinov, Ed Gaskin, Armando Solano
ZHA Project Team: Yang Jingwen, Di Ding, Xuexin Duan, Samson Lee, Shu Hashimoto, Christoph Klemmt, Juan Liu, Dennis Brezina, Rita Lee, Seungho Yeo, Yuan Feng, Zheng Xu, Felix Amiss, Lida Zhang, Qi Cao
ZHA Competition Directors: Satoshi Ohashi, Manuela Gatto
ZHA Competition Team Lead Designers: Philipp Ostermaier, Dennis Brezina, Claudia Glas Dorner
ZHA Competition Team: Yang Jingwen, Igor Pantic, Mu Ren, Konstantinos Mouratidis, Nicholette Chan, Yung-Chieh Huang
Executive Architect: Beijing Institute of Architectural Design
Consultants
Structure: Bollinger + Grohmann (Stage 0,1); China Academy of Building Research (Stage 2); Beijing Institute of Architectural Design (Stage 3,4)
Facade: Konstruct West Partners (Stage 2); Kighton Facade (Stage 3,4); Yuanda (Stage 3,4)
MEP: Parsons Brinkerhoff (Stage 2); Beijing Institute of Architectural Design (Stage 3,4)
Lighting: J+B Studios Architectural Design (Stage 2); Light Design (Stage 2,3); Leuchte (Stage 4)
Landscape: Zaha Hadid Architects (Stage 2,3); Ecoland (Stage 4)
Interiors: Zaha Hadid Architects (Stage 2,3); HuaTeng (China) (Stage 4)
Signage: Dongdao (Stage 4,5)
LEED: Schneider Electric (Stage 2)
Helipad: Zhi Jiu (Stage 3,4)
Traffic Consultant: Dazhengtong (Stage 3,4)
Quantity Surveyor: Liby Limited (Stage 2)
Site Supervision: Shuangyuan (Stage 5)
Modelmaker: Gaojie (Stage 2,3)
Visualisation: MIR (Stage 3,4), Cosmoscube (Stage 3,4), Frontop (Stage 2), Gozen (Stage 2), Zero (Stage 2), Atchain (Stage 4)
Contractors
General: China State Construction Engineering Corporation Nr. 8
Facade: Yuanda, Lingyun
Interior: Suzhou Gold Mantis, Beijing Qiaoxin
Landscape: Jingtai
Elevators & Escalators: Hitachi
Landscape Lighting: Beijing Jiahe Jinye Lighting Engineering Co. Ltd
MEP: Yiju







































