// Check if the article Layout ?>

(Foto: zur Verfügung gestellt von Paul Felix Eckert)
Lebenslauf
Paul Eckert, geboren 1991 in Stuttgart, begann 2011 an der Universität Stuttgart Architektur und Städtebau zu studieren. Nach erfolgreich abgeschlossenem Bachelorstudium arbeitete er im Praktikum für David Chipperfield Architects in Berlin und Caruso St John in Zürich. Seit September 2017 studiert er im Master an der Accademia di architettura in der Schweiz.
Was bedeutet das DETAIL Stipendium für dich bzw. was erwartest du dir davon?
Ich fühle mich sehr geehrt und betrachte es als eine besondere Auszeichnung Teil des DETAIL Stipendiums zu sein. Es gibt mir die Gelegenheit mich in dieser spannenden und entscheidenden Zeit des Masterstudiums ganzheitlich auf das Fach zu konzentrieren und meinen Ambitionen und Fähigkeiten nachzugehen. Ich freue mich auf ein spannendes Jahr und den Austausch mit den anderen Studenten und Partnern des DETAIL Magazins sowie der Schüco AG.
Welchen Stellenwert hat die Architektur in deinem Leben und welche Themen beschäftigen dich sonst noch?
Im Verlauf meines Studiums und während meiner Zeit im Praktikum ist meine Begeisterung für das Fach stetig gewachsen. Architektur zu studieren bedeutet für mich eine Faszination an einer Vielzahl von Dingen. Ihre Themen sind unumgänglich und fundamental und das aus einer grossen Freude am Entdecken gesprochen. In dieser Hinsicht begeistert mich die Neugierde von Kindern, wegen ihrer blühenden Phantasie, der natürlichen Begeisterung für ihre Umgebung und ihrer Nähe zum Material. Neugierde ist eine treibende Kraft und die Architektur eine Profession, die danach verlangt, ihre Bestandteile immer wieder aufs Neue zu Thematisieren und zu Hinterfragen.
Neben dem Studium bin ich gerne draussen im Freien, mache Sport und fotografiere gerne. Meine grosse Leidenschaft ist das Reisen. Immer wenn ich etwas mehr Zeit habe, nehme ich meinen Rucksack und erkunde andere Ländern und deren Kulturen, manchmal mit Freunden aber auch alleine. Ich mag das Gefühl nach einem Abenteuer mit offenen Augen heimzukommen und die gewohnte Routine in Frage zu stellen.
Jurystatement zu den eingereichten Arbeiten von Paul Eckert:
Das Portfolio von Paul Eckert überzeugt durch Projekte aus ganz unterschiedlichen Genres, die aber allesamt durch ihre herausragende Qualität überzeugen – ob durch sensible Einfügung am Ort, kräftige Setzung eines hohen Hauses oder sensible künstlerische Übersetzung einer einfachen Hausstruktur. Trotz der Vielfalt der Themen passt auch die stimmige, einheitliche und angemessene Präsentation der Arbeiten.
Projektbeispiele:
»Alpenraum«
Paul Felix Eckert – DETAIL Stipendiat 2018/2019
Abbildung: Paul Felix Eckert

(Foto: zur Verfügung gestellt von Paul Felix Eckert)
Lebenslauf
Paul Eckert, geboren 1991 in Stuttgart, begann 2011 an der Universität Stuttgart Architektur und Städtebau zu studieren. Nach erfolgreich abgeschlossenem Bachelorstudium arbeitete er im Praktikum für David Chipperfield Architects in Berlin und Caruso St John in Zürich. Seit September 2017 studiert er im Master an der Accademia di architettura in der Schweiz.
Was bedeutet das DETAIL Stipendium für dich bzw. was erwartest du dir davon?
Ich fühle mich sehr geehrt und betrachte es als eine besondere Auszeichnung Teil des DETAIL Stipendiums zu sein. Es gibt mir die Gelegenheit mich in dieser spannenden und entscheidenden Zeit des Masterstudiums ganzheitlich auf das Fach zu konzentrieren und meinen Ambitionen und Fähigkeiten nachzugehen. Ich freue mich auf ein spannendes Jahr und den Austausch mit den anderen Studenten und Partnern des DETAIL Magazins sowie der Schüco AG.
Welchen Stellenwert hat die Architektur in deinem Leben und welche Themen beschäftigen dich sonst noch?
Im Verlauf meines Studiums und während meiner Zeit im Praktikum ist meine Begeisterung für das Fach stetig gewachsen. Architektur zu studieren bedeutet für mich eine Faszination an einer Vielzahl von Dingen. Ihre Themen sind unumgänglich und fundamental und das aus einer grossen Freude am Entdecken gesprochen. In dieser Hinsicht begeistert mich die Neugierde von Kindern, wegen ihrer blühenden Phantasie, der natürlichen Begeisterung für ihre Umgebung und ihrer Nähe zum Material. Neugierde ist eine treibende Kraft und die Architektur eine Profession, die danach verlangt, ihre Bestandteile immer wieder aufs Neue zu Thematisieren und zu Hinterfragen.
Neben dem Studium bin ich gerne draussen im Freien, mache Sport und fotografiere gerne. Meine grosse Leidenschaft ist das Reisen. Immer wenn ich etwas mehr Zeit habe, nehme ich meinen Rucksack und erkunde andere Ländern und deren Kulturen, manchmal mit Freunden aber auch alleine. Ich mag das Gefühl nach einem Abenteuer mit offenen Augen heimzukommen und die gewohnte Routine in Frage zu stellen.
Jurystatement zu den eingereichten Arbeiten von Paul Eckert:
Das Portfolio von Paul Eckert überzeugt durch Projekte aus ganz unterschiedlichen Genres, die aber allesamt durch ihre herausragende Qualität überzeugen – ob durch sensible Einfügung am Ort, kräftige Setzung eines hohen Hauses oder sensible künstlerische Übersetzung einer einfachen Hausstruktur. Trotz der Vielfalt der Themen passt auch die stimmige, einheitliche und angemessene Präsentation der Arbeiten.
Projektbeispiele:
»Alpenraum«
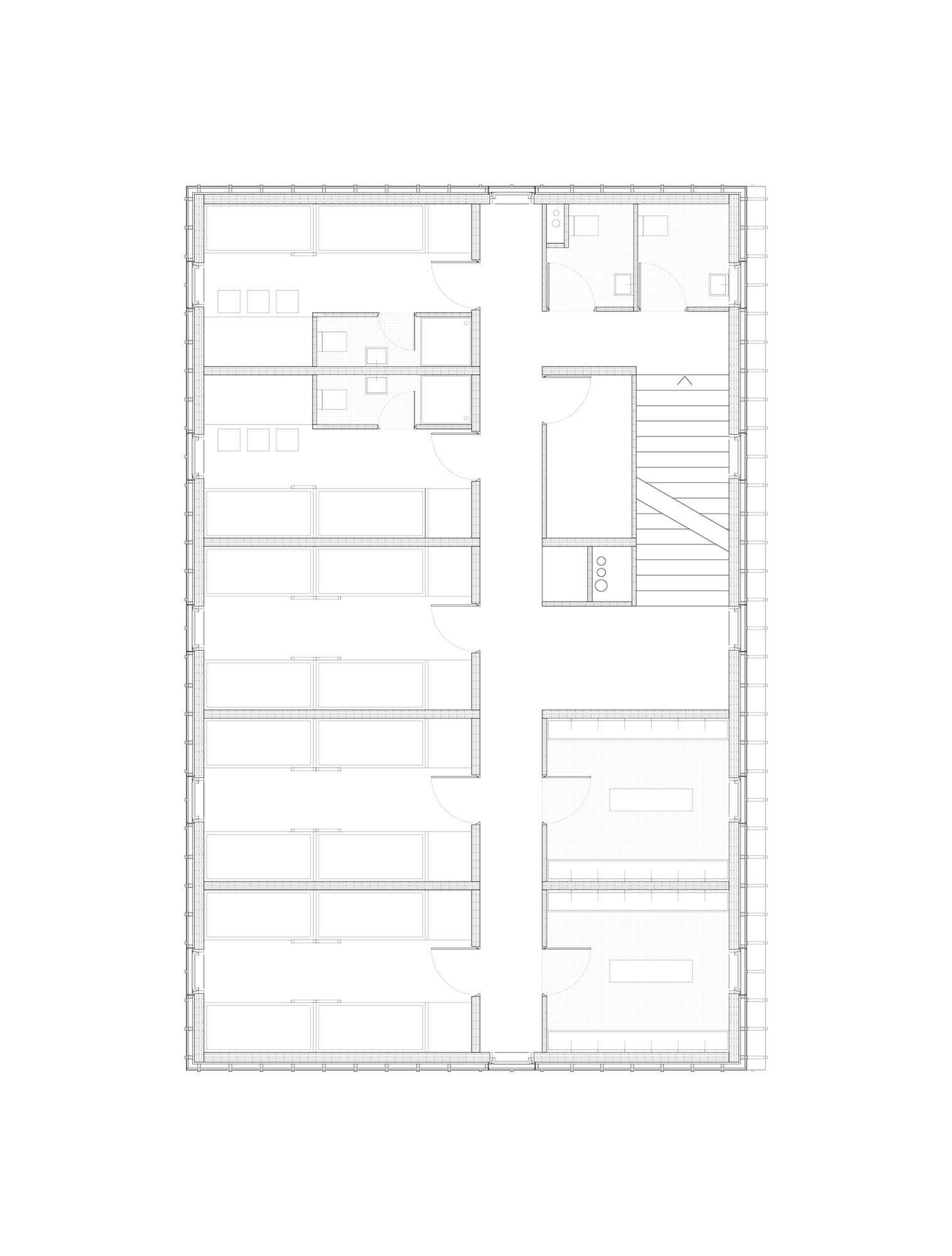
Im Spannungsfeld zwischen dem Bergmassiv der Heiterwand und dem Panorama der Lechtaler Alpen liegt diese Schutzhütte. Gebaut nur dem eigentlichen Zweck dienend, dem Wanderer Schutz in großer Höhe zu geben. Fernab einer immer schneller werdenden, beliebigen Welt, verzichtet er bewusst auf den Komfort der Stadt und sucht den Kontakt mit der Natur. Im Vordergrund steht die Rückbesinnung auf den ursprünglichen Gedanken des Bergsteigens, abseits der ausgetretenen Wanderpfade des Bergtourismus. Die Zuwendung zum Berg und die damit verbundene Eingliederung in die sensible Gebirgslandschaft findet in der monolithischen Formsprache ihren Ausdruck. Die Fassade aus Kupfer hüllt das Gebäude in ein metallisches und langlebiges Material, in welchem sich die Bergwelt spiegelt. Gleichzeitig altert und reagiert das Material. Später erkennt man Spuren des herablaufenden Wassers, wie bei der Erosion eines Gesteins. Allmählich holt sich die Natur das zurück, was ihr gehört. Die Lage am Steilhang und der sich daraus ergebende Höhenversprung ermöglicht die Erweiterung durch ein Untergeschoss. Es fallen kaum Erdarbeiten an, die in den Bergen einen großen Aufwand darstellen.
Über eine Schwelle tritt der Bergsteiger in den Schutz der Hütte ein. Seine Augen müssen sich an den wenig erleuchteten Flur gewöhnen. Die Geborgenheit des dunklen Raums umgibt ihn. Die Erschliessung orientiert sich zum Felsmassiv der Heiterwand, während sich die Schlafräume in die Weiter der Lechtaler Alpen öffnen. Der Wanderer steigt im Gebirge auf, die Luft wird dünner und es wachsen nur noch Gebirgsgräser. Im direkten Zusammenhang steht die Schutzhütte selbst. In den Obergeschossen wird die Anzahl der Betten und die Breite der Treppe stetig verringert, der Platz wird immer enger.
Durch Vorfertigung und Modulbauweise kann die Hütte in kürzester Zeit aufgebaut werden. Die Module wurden aus den Abmessungen eines einzelnen Schlafplatzes heraus entwickelt. Da das gesamte Material mit dem Helikopter angeflogen werden muss und Emissionen sowie hohe Kosten entstehen, wurde die Anzahl der Massivholzelemente so gering wie möglich gehalten. Die Hütte ist nur für eine Sommernutzung ausgelegt und kommt ohne zusätzlichen Dämmstoff aus. Lediglich der Winterraum im Untergeschoss verfügt über eine getrennte Klimazone mit eigener Heizmöglichkeit.
Über eine Schwelle tritt der Bergsteiger in den Schutz der Hütte ein. Seine Augen müssen sich an den wenig erleuchteten Flur gewöhnen. Die Geborgenheit des dunklen Raums umgibt ihn. Die Erschliessung orientiert sich zum Felsmassiv der Heiterwand, während sich die Schlafräume in die Weiter der Lechtaler Alpen öffnen. Der Wanderer steigt im Gebirge auf, die Luft wird dünner und es wachsen nur noch Gebirgsgräser. Im direkten Zusammenhang steht die Schutzhütte selbst. In den Obergeschossen wird die Anzahl der Betten und die Breite der Treppe stetig verringert, der Platz wird immer enger.
Durch Vorfertigung und Modulbauweise kann die Hütte in kürzester Zeit aufgebaut werden. Die Module wurden aus den Abmessungen eines einzelnen Schlafplatzes heraus entwickelt. Da das gesamte Material mit dem Helikopter angeflogen werden muss und Emissionen sowie hohe Kosten entstehen, wurde die Anzahl der Massivholzelemente so gering wie möglich gehalten. Die Hütte ist nur für eine Sommernutzung ausgelegt und kommt ohne zusätzlichen Dämmstoff aus. Lediglich der Winterraum im Untergeschoss verfügt über eine getrennte Klimazone mit eigener Heizmöglichkeit.












