Arbeiten mit Blick ins Grüne
Pavillon Jardins in Paris von Atelier du Pont
Der Pavillon Jardins von Atelier du Pont fügt sich in die Vegetation des Parks ein. © Charly Broyez
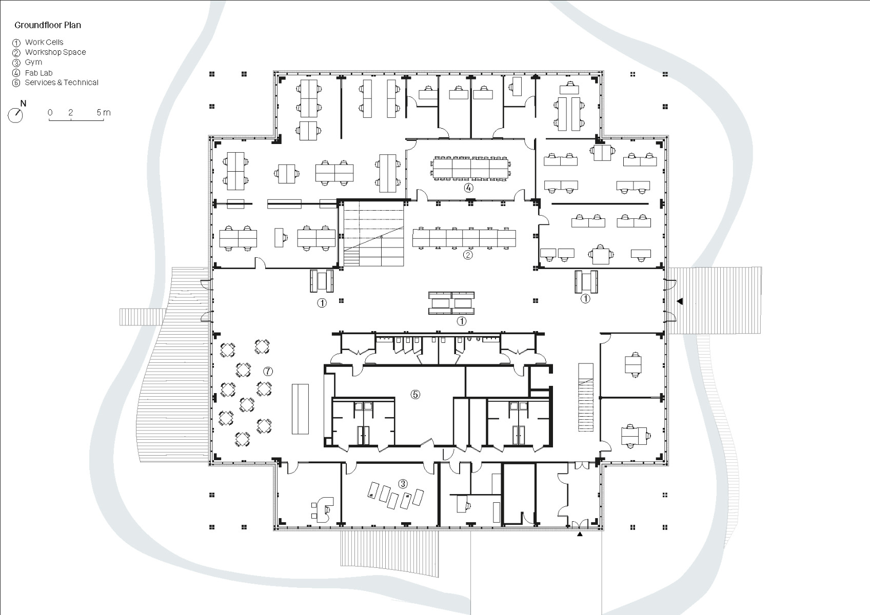
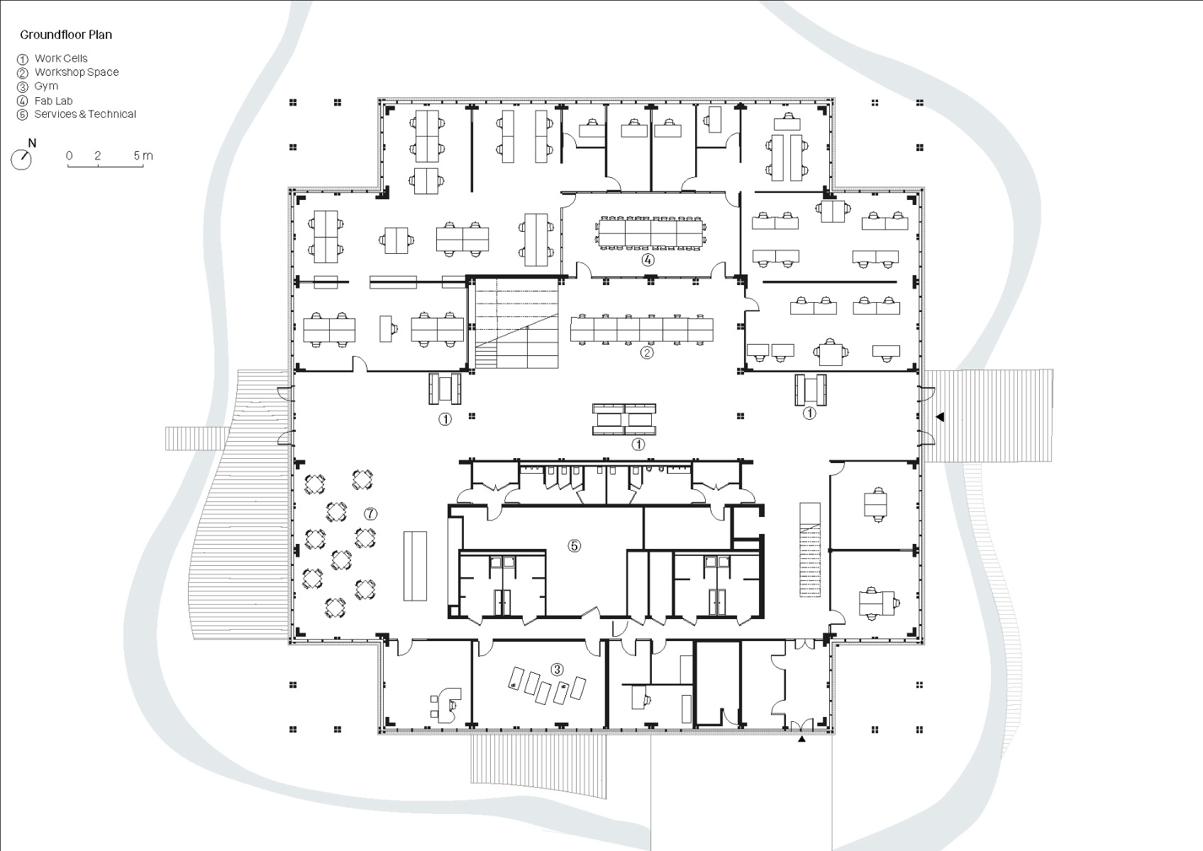
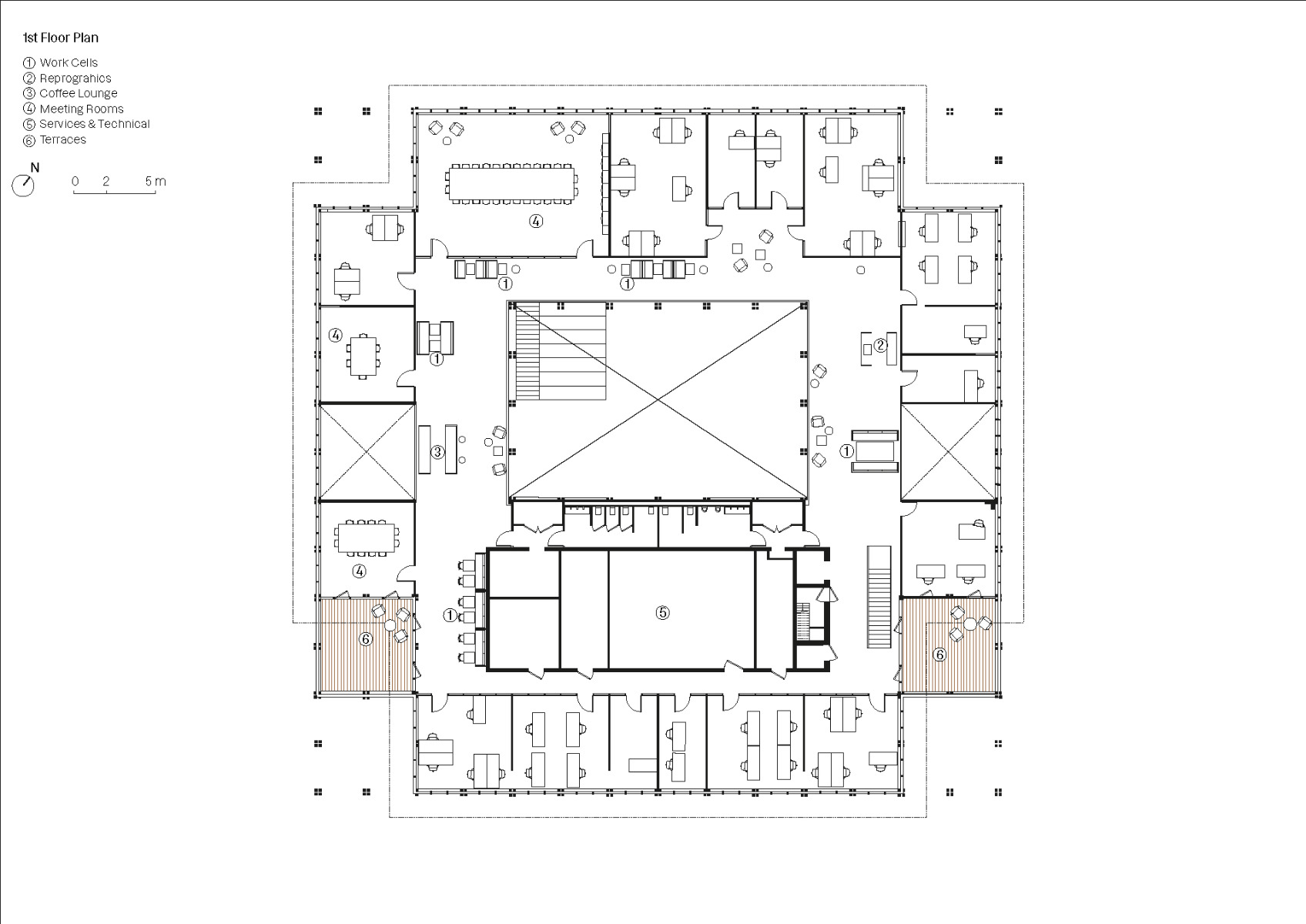
Der Parc de la Villette in Paris hat mit dem Pavillon Jardins von Atelier du Pont ein neues Verwaltungsgebäude erhalten. Es beherbergt etwa 155 Arbeitsplätze für Mitarbeitende, die den Park und seine Bauten betreuen. Der Neubau ersetzt neun Bürogebäude, die nicht zu erhalten waren. Durch die deutlich kompaktere Grundfläche des neuen Gebäudes konnte der Park um rund 5000 m² Grünraum ergänzt werden. Außerdem ist nun der Zugang zum Dock Fond de Rouvray für die Öffentlichkeit möglich.
Integration in die Parklandschaft
Der Pavillon Jardins basiert auf dem Masterplan von Bernard Tschumi, der den Parc de la Villette 1983 entworfen hat. Das Erscheinungsbild des Holzhybridbaus ist von einer klaren Rasterung aus Glas und Holz geprägt. Ein Wassergraben umgibt den Bau, der über Holzbrücken erschlossen wird. Somit wird das Gebäude subtil von den Besuchenden des Parks abgegrenzt. Die Räume des zweigeschossigen Baus ordnen sich um ein zentrales Atrium. Dort dient eine große Sitztreppe als Ort für informelle Zusammenkünfte, Veranstaltungen oder Präsentationen.


Die Fassade ist durch die Konstruktion klar gegliedert. © Fred Delangle
Klare Struktur innen und außen
Während eine Betonkonstruktion die Decke des Erdgeschosses trägt, bilden Holzrahmen die Fassade und tragen das begrünte Flachdach. Die Holzträger ragen dabei über die Gebäudekubatur hinaus. Es entstehen Spannweiten von zwölf Metern, die eine flexible Raumnutzung ermöglichen. Die umlaufend transparente Fassade und Oberlichter im Dach sorgen für viel natürliches Licht im Inneren und ermöglichen einen freien Blick auf die Vegetation des Parks. Trotz der alles bestimmenden Orthogonalität der Konstruktion, wirkt das Innere offen und locker.


Die Holzkonstruktion ragt über die Gebäudekubatur hinaus. © Charly Broyez


Eines der flexibel einsetzbaren Möbel dient als Kaffeelounge. © Vincent Leroux
Flexibles Arbeiten unter einem Dach
Der Pavillon Jardins bietet ein effizientes Arbeitsumfeld, indem er alle Mitarbeitenden unter einem Dach vereint – im Gegensatz zu den vorherigen Bauten. Neben Besprechungs- und Büroräumen unterschiedlicher Größe gibt es auch freie Arbeitsbereiche, die um das Atrium angeordnet sind. Maßgeschneiderte, flexibel einsetzbare Möbel dienen als Besprechungszellen, Druckerräume oder Kaffeelounges. Weitere Typen, wie etwa Sitznischen in variierenden Größen sowie mobile Arbeitsbereiche auf Rollen, stehen außerdem zur Verfügung. Sie wurden gemeinsam mit den Mitarbeitenden entworfen und ergänzen die freie Möblierung. Mehrere Terrassen und Balkone stellen den Bezug zum Park her und bieten Pausenbereiche im Freien.
Architektur, Innenarchitektur: Atelier du Pont
Bauherr, Brandschutzplanung: Etablissement Public du Parc et de la Grande Halle de la Villette (EPPGHV)
Standort: Paris (FR)
Tragwerksplanung: EVP ingénierie
TGA-Planung: Delta fluides
Akustikplanung: Acoustique Vivié & Associés
Landschaftsplanung: Atelier d’écologie urbaine
Fassadenplanung: VP & Green
Kostenplanung: Axio
Rückbautechnik: Ginger Deleo
Projektsteuerung: Oppic
Nachhaltigkeitsberatung: Plan 02























