Aussichtskanzel über der Stadt
Penthouse in Prag von Petr Janda/Brainwork
© BoysPlayNice
Konsequent geöffnet: Aus einem Wassertank auf dem Dach eines mehrgeschossigen Industriebaus ist ein Wohnraum mit Rundumblick über Prag geworden. Doch nicht nur das macht die Metamorphose des Gebäudes bemerkenswert. Die Architekten übernahmen das Projekt von einem Investor, der mit der Dachgeschosswohnung ganz andere Pläne verfolgt hatte – mit einer kleinteiligen Raumaufteilung im Inneren und blechverkleideten Fassaden.


© BoysPlayNice
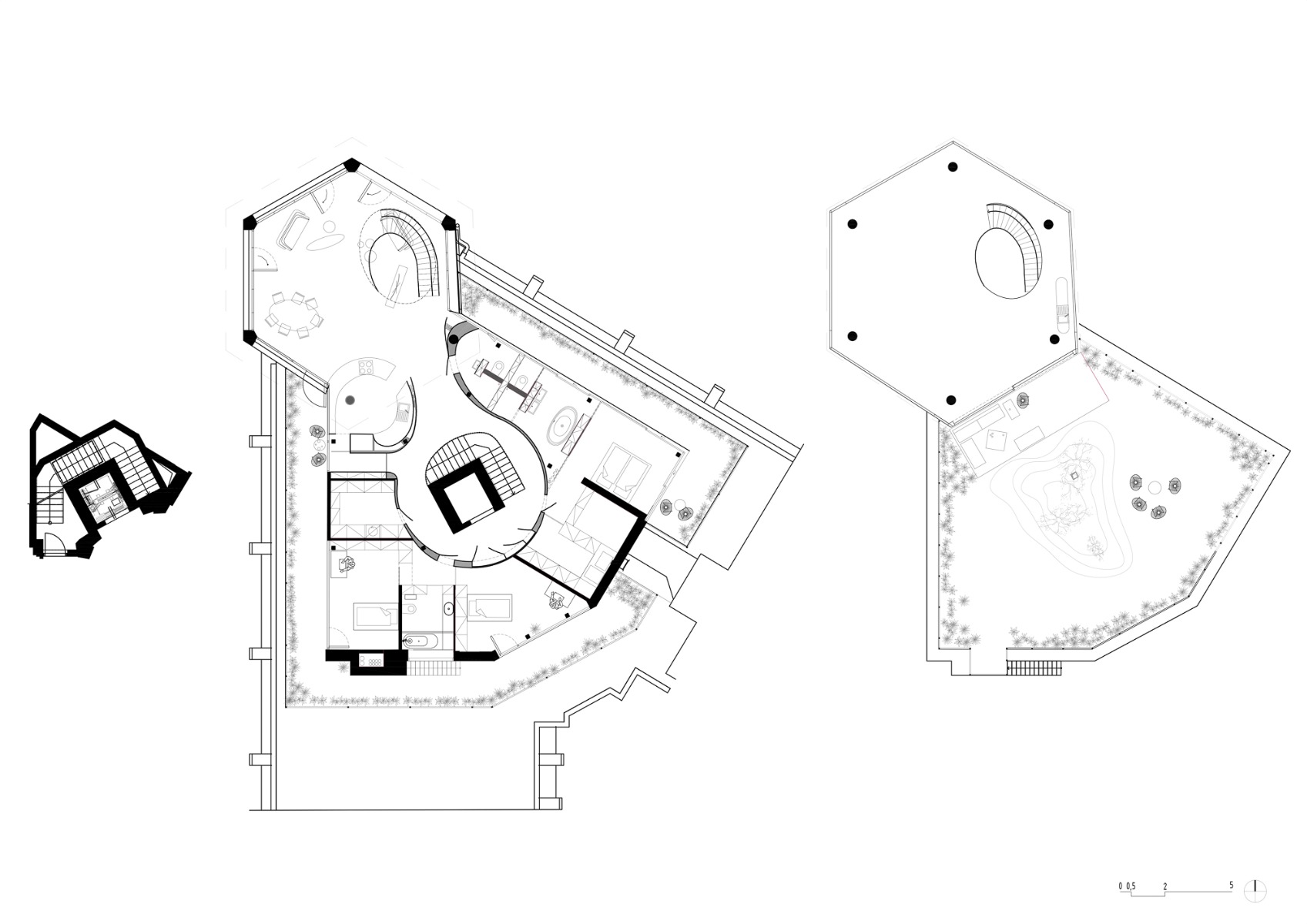
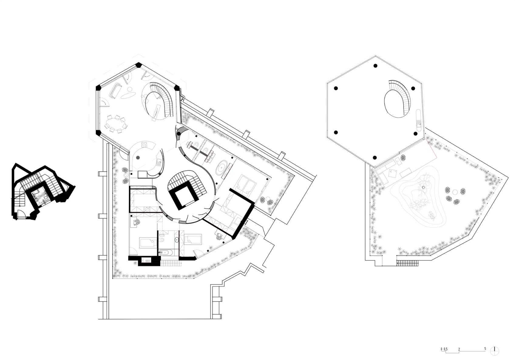
Beide ließen Petr Janda und sein Büro Brainwork entfernen und schufen stattdessen eine sechseckige Glaskanzel an der Gebäudeecke, deren beide Ebenen im Inneren eine kühn geschwungene Stahlwendeltreppe verbindet. Auf der oberen Ebene öffnet sich ein durchgehender, sechseckiger Raum auf der einen Seite zum Stadtpanorama und auf der anderen zu einer Holzterrasse und einem Dachgarten. Ein markanter Hügel im Rasen zeigt die Stelle an, wo der Aufzugsschacht über die Dachebene hinausragt.
Dort, wo die filigrane Treppenskulptur die Geschossdecke durchdringt, integrierten die Architekten auf unauffällige Weise die Bibliothek des Hausherrn. Ein Netz, zwischen die sattelförmig gekrümmten Geländer gespannt, dient hier als Absturzsicherung und Liegemöglichkeit in einem. Ein Holzdielenboden im ganzen Haus bildet einen willkommenen Kontrast zur kühlen Materialpalette aus Glas, Gipskarton und schwarzem Stahl.


© BoysPlayNice
Im rückwärtigen Teil der Wohnung führt eine zweite Treppe samt Aufzug von den unteren Ebenen des Gebäudes hinauf in die Wohnung. Ein Treppenlauf lässt sich hochklappen und gewährt Zugang zum Technikraum des Apartments. Auf der Eingangsebene umgibt eine geschwungene Trenn- und Schrankwand mit Stahlblechverkleidung den oberen Treppenabsatz.


© BoysPlayNice


© BoysPlayNice
Rahmenlose, kiemenartig sich öffnende Türen gewähren darin Zutritt zu den Privaträumen der Bauherrenfamilie. Ein Eltern- und zwei Kinderzimmer, zwei Bäder und ein Gäste-WC öffnen sich hier zu einer zweiten, umlaufenden Dachterrasse. Eine Ankleide und ein Hauswirtschaftsraum komplettieren das großzügige Raumprogramm.


© BoysPlayNice
Bautechnisch wurde bei dem Projekt an nichts gespart: Die raumhohen Fenster des Wohnraums bestehen aus einer rahmenlosen, geklebten Vierfachverglasung. Innen befindet sich ein Verbundsicherheitsglas, sodass das gesamte Glaspaket nicht weniger als fünf Scheiben umfasst. Außen liegende, weiße Textilscreens schützen den Wohnraum bei Bedarf vor Sonne. Wärme bringt eine Fußboden- und Deckenheizung in die Räume. Sie wird aus einer Luft/Luft-Wärmepumpe auf der Dachterrasse gespeist. Auch eine mechanische Be- und Entlüftung gibt es im Haus – mit Luftauslass-Schlitzen, die dezent hinter den Glasfassaden im Deckenbereich integriert sind.
Architektur: petrjanda/brainwork
Bauherr: privat
Standort: Prag (CZ)
Bruttogrundfläche: 358 m²
Nutzungsfläche: 275 m²
































