Perfekt getarnt
Wohnhaus Lazy House von petrjanda/brainwork
Foto: BoysPlayNice
Mit Blick auf Zlín, eine Industriestadt in Tschechien, in nördlicher Richtung verdankt das Lazy House seinen Namen dem Quartier, in dem es steht. An der Rückseite wird es von einem großzügigen Garten mit Swimmingpool, Grotte und einem Weinkeller sowie dem bewaldeten Gelände begrenzt. Der Entwurf der Villa basiert auf der Beziehung zwischen Haus, Stadt und Garten. Diese drei Komponenten verwebt Petr Janda miteinander und plant das Wohnhaus von innen nach außen.
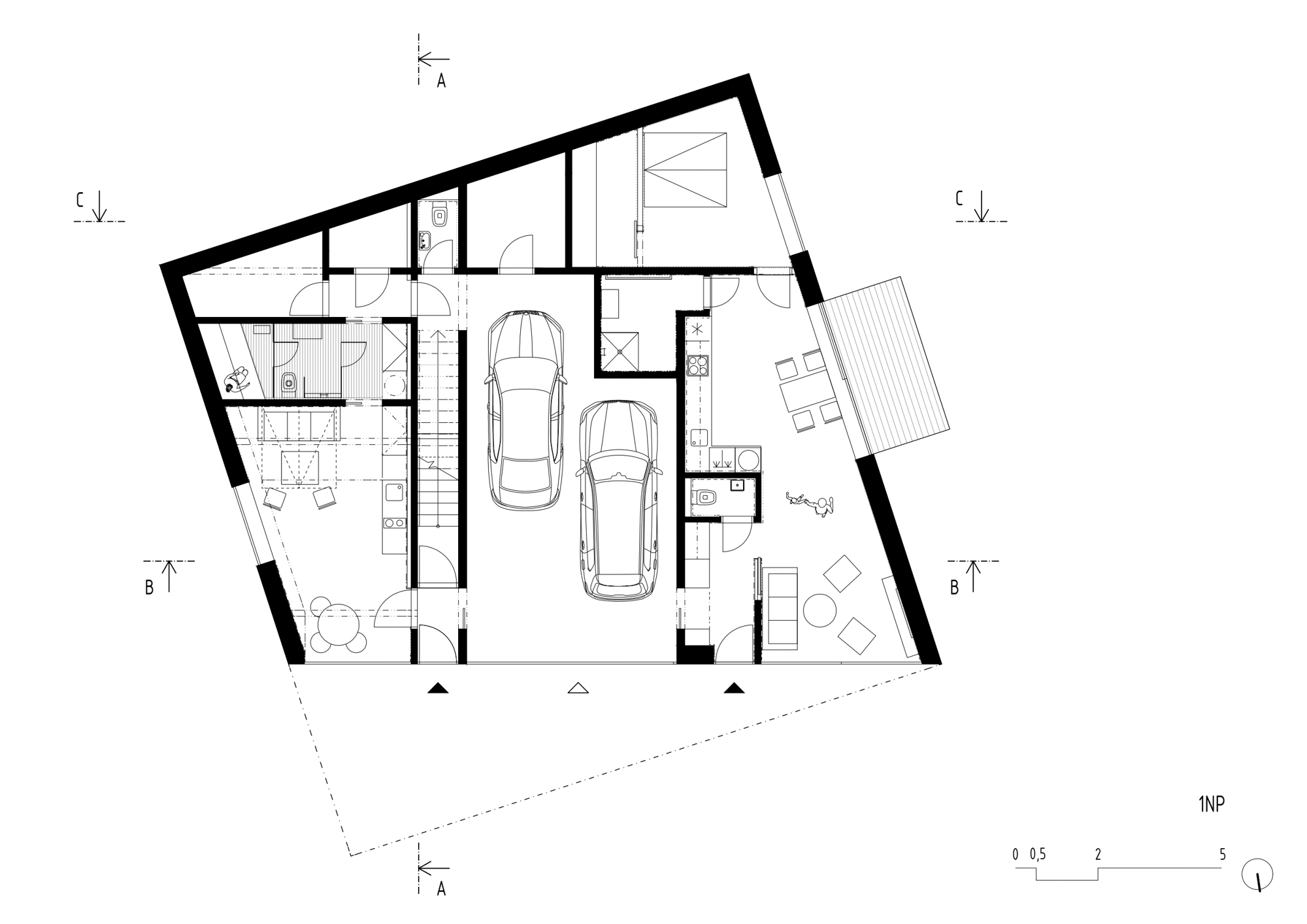
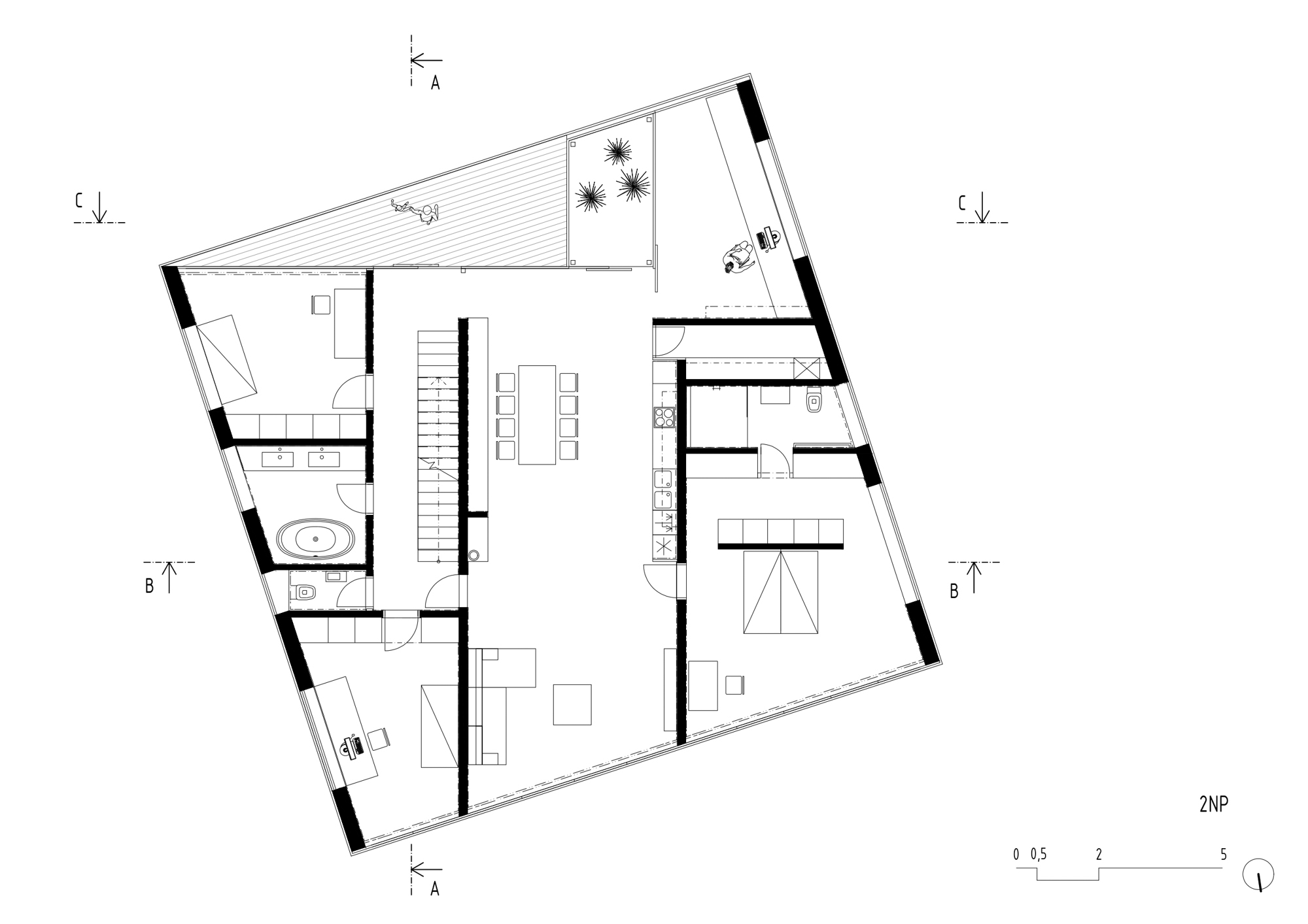
Das Ergebnis ist ein kompakter Baukörper mit quadratischem Grundriss. Seine Kontur orientiert sich an der Umgebung und ist deshalb leicht gedreht. Die Basis bildet der Sockel. In das Terrain eingegraben, kleidet seine sichtbaren Fassaden naturfarbener Cortenstahl. Darauf scheint das prismenförmige Wohngeschoss regelrecht zu schweben. Während sich vor die, den Nachbarn zugewandten, Ansichten feinmaschige Edelstahlmembranen mit Moiré-Effekt legen, sind die anderen beiden in großflächigem Spiegelglas umgesetzt. Die metallisierten Dreifachverglasungen reflektieren den Himmel und lassen die Grenzen zwischen Bebauung und Natur verschwimmen. So wirkt das Wohnhaus perfekt getarnt und regelrecht entmaterialisiert. Die Kombination aus Transparenz und Undurchsichtigkeit ermöglicht weite Ausblicke, schützt aber gleichzeitig die Privatsphäre der Bewohner. Nach oben hin komplettiert das Lazy House ein Gründach mit begehbarer Dachterrasse.
Darüber hinaus können sich auch die inneren Werte des Wohnhauses sehen lassen: Die Grundrisse konzipiert petrjanda/brainwork so, dass möglichst wenig Fläche durch Erschließungszonen verloren geht. Mit getrennten Eingängen kann es zudem zukünftig in separate Einheiten aufgeteilt werden. Der Stahlbetonbau ist als Passivhaus ausgeführt. Zwei Erdbohrungen unter der Bodenplatte bilden in Kombination mit einer Wärmepumpe das Herzstück des Energiekonzepts. Sie sorgen zusammen mit kontrollierter Be- und Entlüftung sowie einer Fußbodenheizung ganzjährig für ein angenehmes Raumklima.





















