Pfahlbau am See: Familienhaus von Carlos Zwick Architekten
Foto: José Campos
25 Jahre lang lag das Seegrundstück nahe Potsdam brach und verfiel immer mehr. Zwei marode und geschützte Bestandsbauten entlang der vorbeiführenden Bundesstraße sowie die Vorgaben des Denkmalschutzamts machten es für viele Interessenten wenig attraktiv. Dazu kam das terrassierte Gelände zum Wasser hin. Dieses sollte erhalten bleiben, sämtliche Neubauten mussten deshalb einen Mindestabstand von 50 m zum Ufer einhalten. Der Architekt Carlos Zwick erkannte schließlich das Potenzial des Ortes und stellte sich der Herausforderung, ihn zu revitalisieren und dort sein Familienhaus zu errichten.
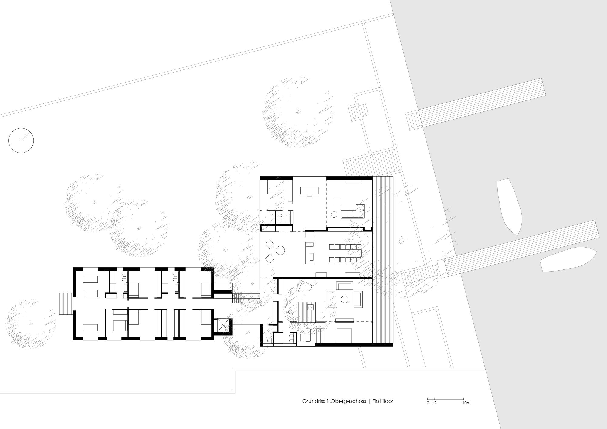
Aufgeständertes Wohnhaus aus zwei Volumen
Nach vier gescheiterten Versuchen gelang es dem Planerteam schließlich, das Amt zu überzeugen. Das Ergebnis ist ein flaches, aufgeständertes Wohnhaus, das sich aus zwei Volumen zusammensetzt und von der Straße weiterhin Seeblicke ermöglicht. Ein kleiner Bau, in dem sich mit Treppe und Lift der Erschließungskern befindet, verbindet die beiden Trakte in Holz-Stahl-Skelettbauweise. Sämtliche Fassaden sind mit vertikalen Lärchenholzlatten verkleidet. Während das größere Haus mit einer 22 m langen Loggia zum Jungfernsee hin orientiert ist, befindet sich dahinter der kleinere Gebäudeteil. Insgesamt ergibt sich so eine Wohnfläche von 580 m2, die dank einer Raumhöhe von
3 m noch großzügiger wirkt. Sie verteilt sich auf private Zimmer und Bäder für die sechs Kinder im kleineren Komplex, sowie das Haupthaus mit den Gemeinschafts- und Elternbereichen. Ein großer Esstisch bringt alle zusammen und bietet Platz für die gesamte Familie. Je nach Bedarf lässt sich das Haus am See zukünftig an verschiedene Nutzungsszenarien anpassen und in drei Einheiten unterteilen.
Ahorn im Wohnzimmer
Zum besonderen Highlight des Entwurfs von Carlos Zwick Architekten wird neben den liebevollen Details und ausgewählten Materialien der Umgang mit den alten Bäumen auf dem Grundstück. Sie wurden nicht gefällt, sondern aufwendig in den Entwurf integriert: Ein großer Ahorn wächst mitten durch das Wohnzimmer. So gelang es, durch großflächige Fenster nicht nur eine harmonische Einheit zu schaffen, sondern ein Stück des idyllischen Seegrundstücks sogar mitten in das einzigartige Familienhaus zu holen.
Weitere Informationen:
Bad: Duravit https://www.duravit.de
Dichtbahn-Dach: Sika Sarnafil https://deu.sika.com/de
Installationen: Geberit https://www.geberit.de
Gas-Brennwerttechnik: Buderus https://www.buderus.de
Granit Arbeitsplatte: Zovkić Naturstein https://zovkic-naturstein.de
Esstischstühle: HAY https://hay.dk





















