Farbakzent aus Ziegeln und Metall
Piero-Pirelli-Institut in Mailand von ARW
In den Rot in Rot gehaltenen Ziegel- und Stahlfassaden ist die Sheddachform gut zu erkennen. © Federico Covre
Weitblickende Unternehmer haben auch früher schon erkannt, dass Fachkräfte für sie von größerem Wert sind als ungelernte Handlanger. Beispiel Pirelli: Seit 1906 hatte der Reifenhersteller auf dem weitläufigen Bicocca-Areal im Nordosten von Mailand seine Fabrikanlagen betrieben. Ende der 1950er-Jahre ließ das Unternehmen dort ein Schulungszentrum für seine Mitarbeitenden errichten. Benannt war es nach dem kurz zuvor verstorbenen Firmenchef Piero Pirelli, den Entwurf lieferte der Mailänder Architekt Roberto Menghi.


Das Piero-Pirelli-Institut steht im Mailänder Stadtteil Bicocca. Seit den 1990er-Jahren ist das Gebiet zum Büro-, Kultur- und Universitätsviertel umgenutzt worden. © Federico Covre
Werkstatthalle und Klassenzimmer
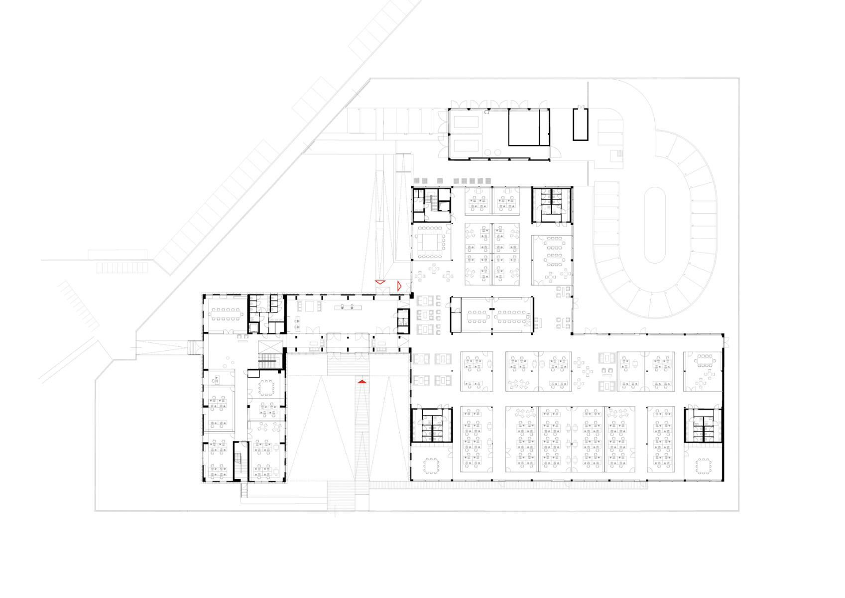
Der Komplex bestand aus einem zweigeschossigen Kopfbau mit Klassenzimmern, einer deutlich größeren Sheddachhalle mit Lehrwerkstätten und einem flachen Verbindungstrakt zwischen beiden. In den 1990er-Jahren wurden die Gebäude ein erstes Mal zum Bildungs- und Eventzentrum umgebaut; die innere Weitläufigkeit der Halle ging damals verloren. Später folgte jahrelanger Leerstand.
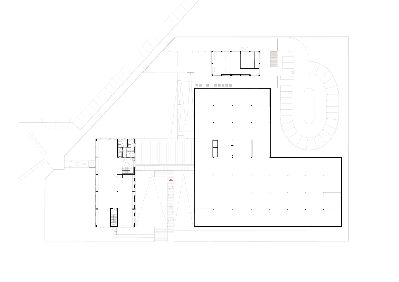
Achtschiffiger Hallenraum
Im Auftrag eines Investors haben ARW Associates aus Brescia das Piero-Pirelli-Institut nun wachgeküsst. Dabei wollten sie vor allem die Halle in ihren ursprünglichen Dimensionen wieder erlebbar machen. Die einzelnen Hallenschiffe sind zwischen 15 und 30 m lang und je 8 m breit. Filigrane Stahl-Fachwerkbinder tragen die bis zu 7 m hohen Dach-Sheds. In der Raumwirkung fallen die einzelnen Schiffe jedoch kaum auf. Das quadratische Stützenraster und durchlaufende horizontale Fensterbänder sorgen dafür, dass der Hallenraum als zusammenhängender Großraum lesbar wird.


Ein weit auskragendes Brise-Soleil aus rot beschichtetem Blech strukturiert die Fassaden des aufgestockten Kopfbaus. © Federico Covre
Ziegelfassade von innen gedämmt
Die Fassaden der Halle erhielten eine Innendämmung aus Steinwolle, sodass die Ziegelausfachung außen sichtbar bleiben konnte. Auch das Dach wurde neu gedämmt. Den Verbindungstrakt ließen die Architekten verkleinern, um den Innenhof zwischen Halle und Kopfbau besser nutzbar zu machen. Die hier entfallene Nutzfläche ist in einem neuen, dritten Obergeschoss des Kopfbaus wieder entstanden.


Rund 60 m breit und bis zu 60 m lang ist der Innenraum der ehemaligen Werkstatthalle. © Federico Covre
Fassadenraster aus Metallprofilen
Der Kopfbau hat auch äußerlich die größte Verwandlung erfahren: Statt seiner alten Verkleidung mit Zementplatten erhielt der Betonskelettbau eine blutrote, neue aus Metallpaneelen. Davor betonen weit auskragende Brise-Soleils – ebenfalls aus Metallprofilen – das Fassadenraster und spenden den Innenräumen Schatten.


Ein unscheinbarer Verbindungstrakt stellt den Übergang vom Hallen- zum Kopfbau her. Hier liegt auch der Haupteingang. © Federico Covre
Mieterausbau folgt
2023 wurde der Umbau fertiggestellt und wartet seither auf potenzielle Mieter. Es bleibt zu hoffen, dass diese beim Innenausbau das notwendige Fingerspitzengefühl walten lassen, damit die Halle des Piero-Pirelli-Instituts auch künftig in ihrer ganzen Größe erlebbar und nicht mit Gipskartonwänden verbaut wird.
Architektur: ARW Associates (Camillo Botticini, Matteo Facchinelli)
Bauherr: Kryalos S.G.R
Standort: Viale Fulvio Testi 223, 20126 Mailand (IT)
Tragwerksplanung: Studio Cavadini Ingegneria
TGA-Planung: Planex, BS2 Progetti
Bauunternehmen: Isovit, CEV

























