Plastischer Stadtbaustein: Erweiterung des Staatsarchivs Bamberg
Foto: Stefan Müller
In Bamberg ist der Denkmalschutz omnipräsent – auf dem Grundstück des Staatsarchivs sogar auf drei Ebenen. Die neobarocke Dreiflügelanlage ist ein Einzeldenkmal, das im Ensemblebereich der Inselstadt liegt. Zudem ist die gesamte Altstadt Unesco-Weltkulturerbe. Zu den denkmalpflegerischen Interessen kommen die Herausforderungen, die Archivalien an ihren Aufbewahrungsort stellen. Es ist also ein sensibler Umgang erforderlich, um allen Ansprüchen gerecht zu werden.
Gestalterische Lösung
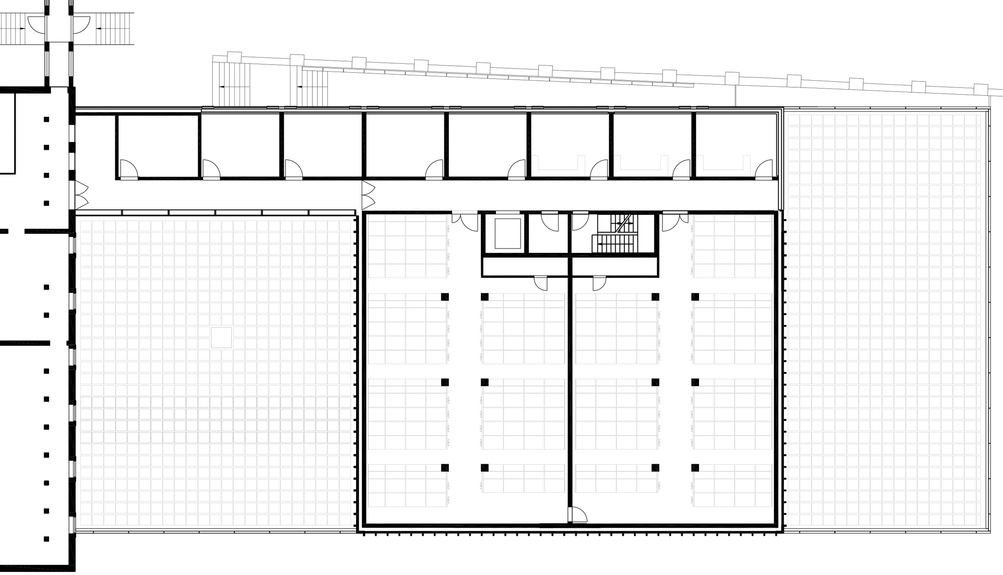
Das Erscheinungsbild des Neubaus weist eine reduzierte Formensprache auf. Ein fensterloser Kubus aus Sichtbeton sitzt auf einer gläsernen Sockelzone. Ebenfalls aus Glas präsentiert sich der Verbindungsgang zum Gebäude der 1960er-Jahre. Als Abstandshalter zeigt er zugleich eine respektvolle Haltung gegenüber dem Bestandsgebäude.Farblich gleicht der verwendete Sichtbeton dem gelben Sandstein des neobarocken Ensembles. Die plastische Gliederung der Betonelemente durch vertikale Lamellen erzeugt einen spannenden Schattenwurf, der die geschlossene Oberfläche optisch unterteilt.
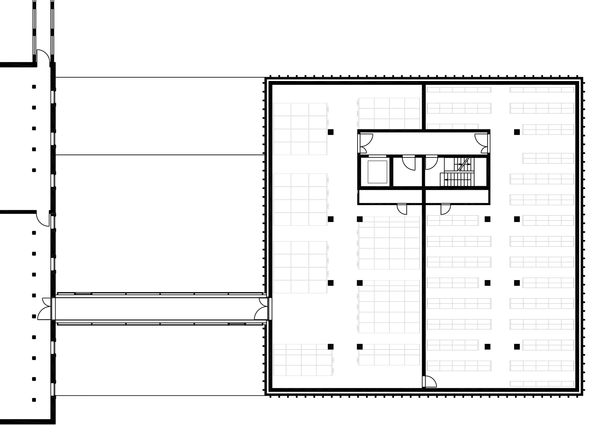
Lagerung der Archivalien
Im Umgang mit Archivalien müssen die Räume genau temperiert werden, um den Zersetzungsprozess der Materialien zu verzögern. Daher werden Raumtemperatur und Luftfeuchte genau ausbalanciert und konstant gehalten. Vor allem schnelle und starke Schwankungen schaden den Materialien. Außerdem ist auch Sonnenlicht mit Vorsicht zu genießen. Daher setzten die Architekten auf einen völlig geschlossenen Baukörper ohne Fenster. Lediglich die gläsernen Büros und Erschließungsgänge sind offen und hell.
Mit der neu gewonnenen Magazinfläche können nun die vorübergehend ausgelagerten Archivalien wieder zurück nach Bamberg geholt werden.













