// Check if the article Layout ?>
Präzisionsarbeit: Topsportschool von Compagnie-O architects
Foto: Tim Van De Velde
Der ehemals militärisch genutzte Bauplatz bildet die Rahmenbedingungen für die Topsportschool. Mit ihrem quadratischen Grundriss entwickelt sie sich über drei Geschosse in die Höhe und stellt sich ihrer Umgebung selbstbewusst entgegen. Ein in sich ruhender massiver Kern und ein fast verspielter, extrovertierter Teil bilden einen skulpturalen Baukörper: Die konträren Elemente kontrastieren miteinander, kreieren Spannung und scheinen sich doch auf skurrile Weise zu ergänzen.
Ein massiver Sockelbereich aus Sichtbeton, der mit seinen abgeschrägten Ecken und Kanten scharfkantig in Erscheinung tritt, bildet die Basis der Topsportschool. Aufgrund seiner Hanglage mit Gefälle von Nord nach Süd, gräbt sich der Sockel nördlich in den Erdboden ein. Im Süden dagegen tritt das Gebäude über den Haupteingang mit dem großen Vorplatz in Interaktion. Mittels natürlich wachsender, grüner Patina verleihen Compagnie-O architects den Sichtbetonoberflächen einen »lebendigen« Touch – das Konzept sieht vor, dass sich die Ansichten der Schule über die Jahre weiterentwickeln, wie auch ihre Nutzer selbst.
Auf dem Betonkörper thront ein transparentes Volumen. Es besteht zunächst aus einer rundum verglasten Zwischenebene und schließlich aus dem Obergeschoss, das wie eine Aussichtsplattform wirkt. Diese weist eine strikt quadratische Grundfläche auf und bietet einen Panoramaausblick in die karge Landschaft. Die Fassade ist in diesem Bereich abwechselnd mit verspiegelten oder transparenten Glasflächen ausgeführt und generiert spannende Ansichten: Mal wirft sie die Natur in zerstreuten Reflexionen zurück, mal lässt sie Einblicke ins Innere zu. Der Bau scheint sich je nach Blickwinkel zu verändern.
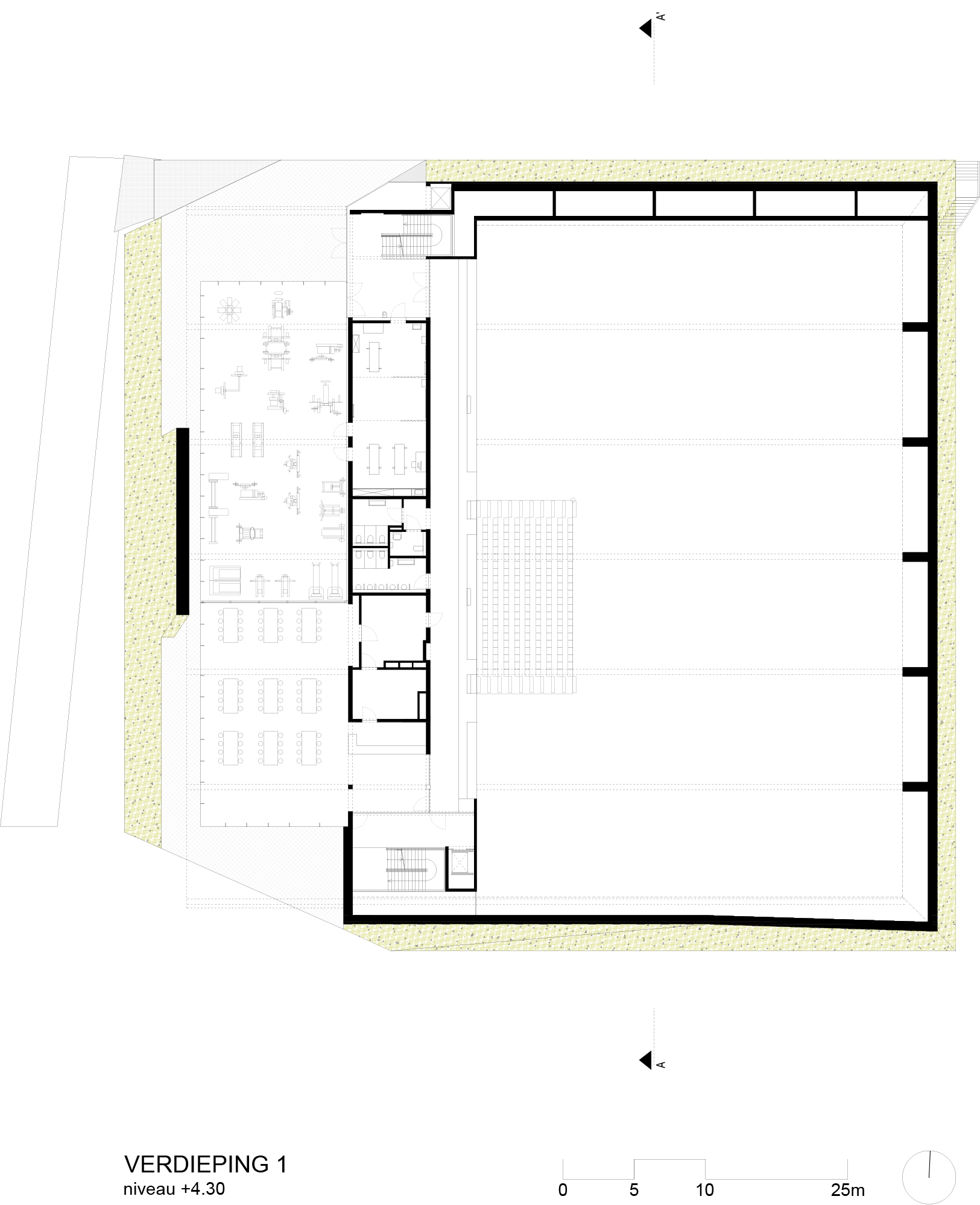
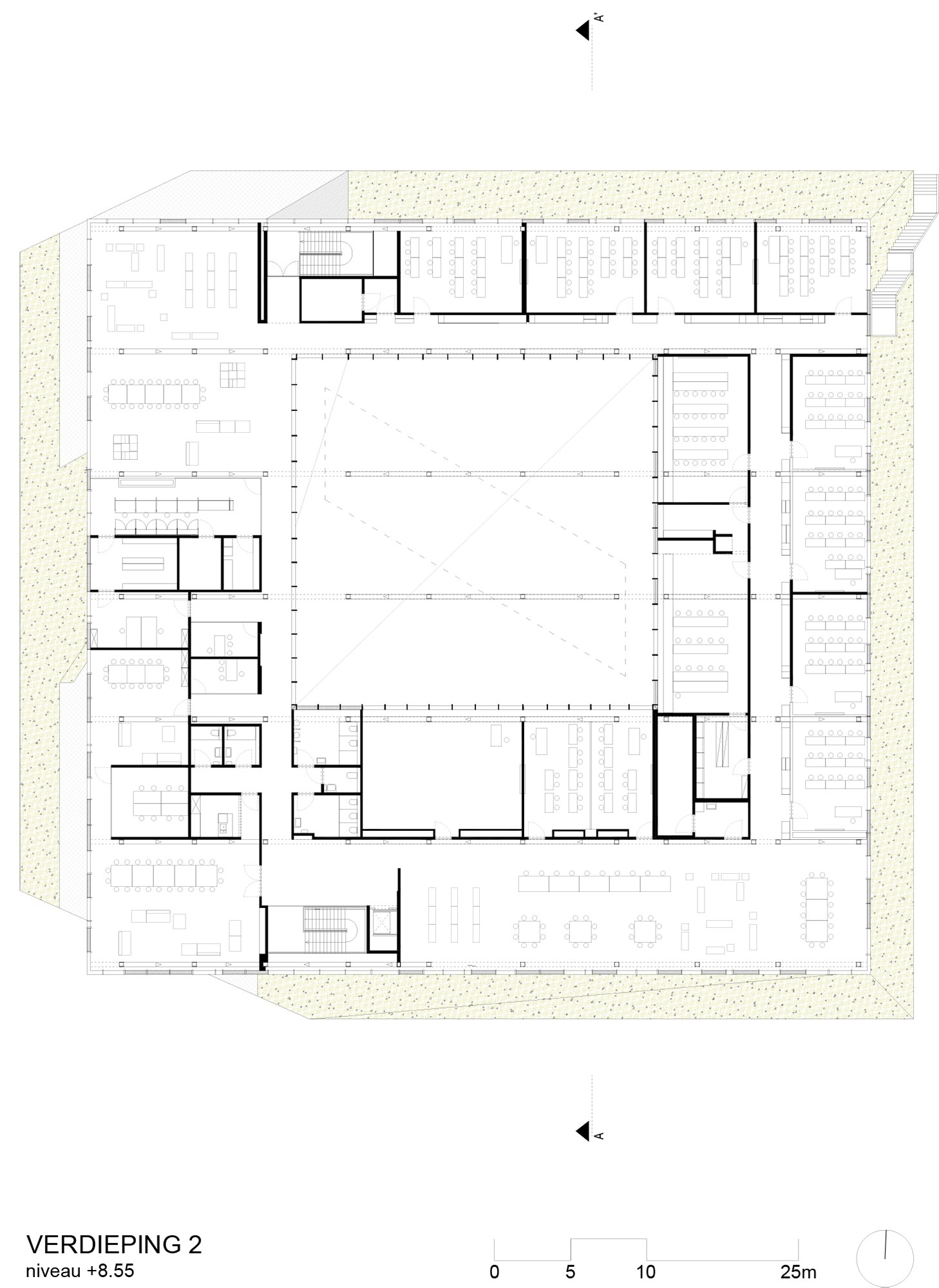
Das Raumprogramm orientiert sich an dieser kontroversen Dualität. Während sich im Sockelbereich alles um Selbstzentrierung dreht, öffnen sich weiter oben nicht nur die Hülle der Topsportschool, sondern auch die Aktivitäten, hin zu einem Austausch und Miteinander. Das unterste Niveau wird über die leicht abgeschrägte Südwestecke vom Vorplatz her erschlossen. Dort grenzen direkt der Kampfsportbereich, Trainingsräume, sowie die zentral positionierten Umkleiden und Nasszellen an. Im östlichen Teil befindet sich eine große allgemeine Sporthalle. Die Innenräume sind geprägt von geneigten Wänden, grellen Farben und verschiedenen Oberflächen, die die Sportler zu Höchstleistungen pushen sollen. Im Zwischengeschoss findet neben Mensa und Power-Trainingsbereichen außerdem eine Tribüne mit Ausblick auf die große Sporthalle ihren Platz. Den krönenden Abschluss des Raumprogramms bildet das oberste Stockwerk, das mit seiner offenen Gestaltung wie ein riesiger Co-working Space anmutet. Weiße Oberflächen, unverkleidete Deckenuntersichten und Konstruktionselemente schaffen ein helles Ambiente, das zum Entspannen genauso wie zum Lernen animiert.


















