// Check if the article Layout ?>
Privates Multifunktions-Refugium: Wohn- und Bürohaus in Seilh
Foto: Philippe Ruault
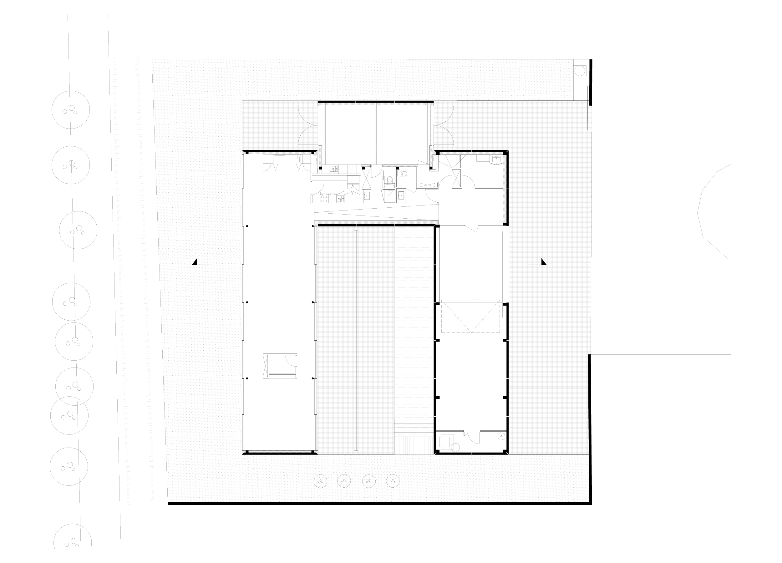
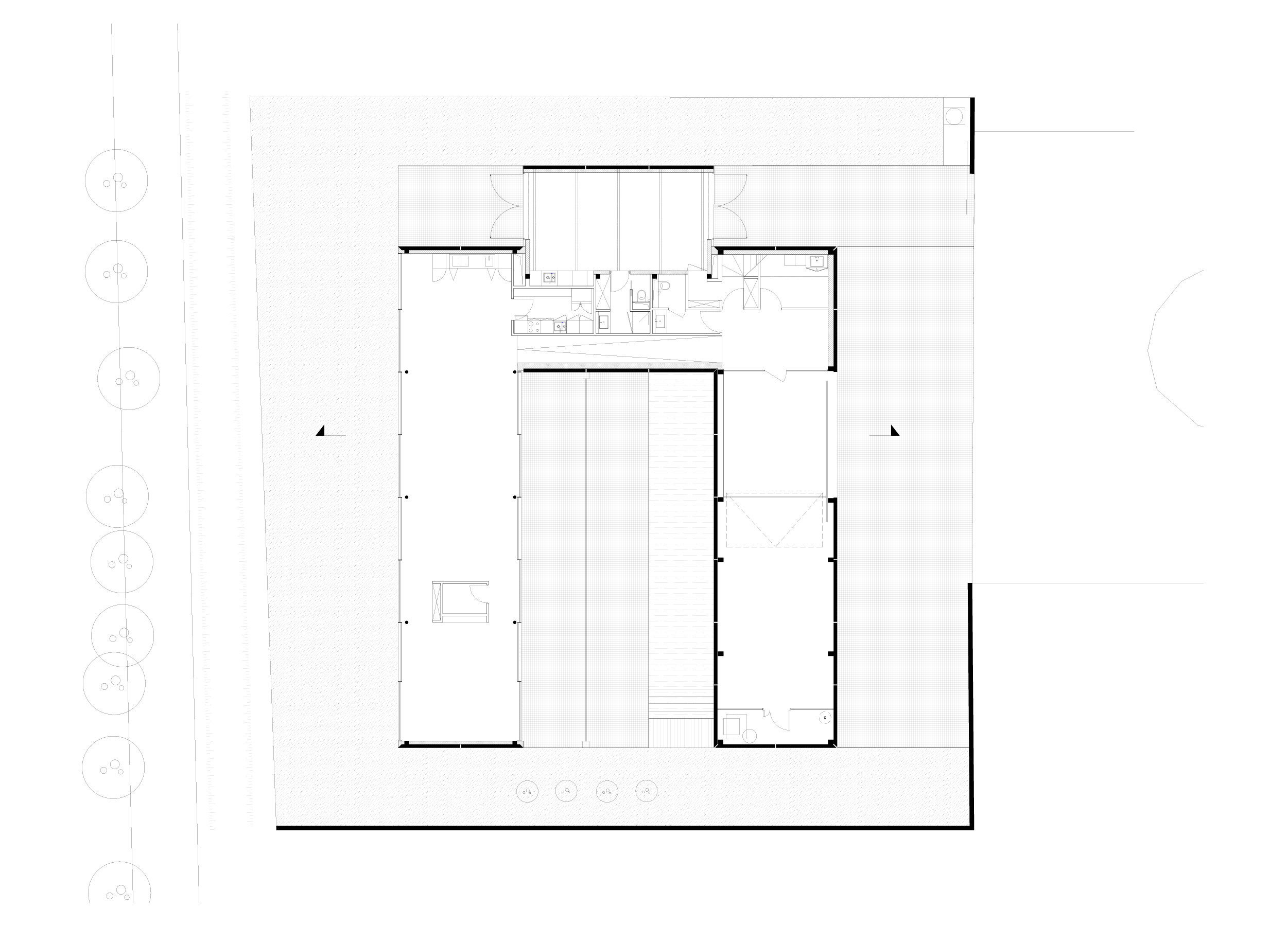
Als „Multifunktionspavillon“ bezeichnen die Architekten PPA aus Toulouse den Neubau, den sie im nahe gelegenen Seilh für einen privaten Bauherrn entworfen haben. Allein zum Wohnen wäre das Haus mit seinen 400 Quadratmetern auch etwas üppig bemessen, zumal die üblichen Attribute vieler Luxusvillas – Sauna, Spa, Fitnessbereich und Großgarage – hier fehlen. Stattdessen ist das U-förmige Gebäude als Abfolge weitgehend nutzungsneutraler Räume konzipiert. Es steht am Ende einer Sackgasse in einem besseren Wohnviertel und grenzt im Westen unmittelbar an den internationalen Golfplatz von Toulouse.
Mit seinen beiden knapp 20 Meter langen Gebäudeflügeln füllt das Haus sein 35 x 35 Meter großes Grundstück Weitgehend aus. Von seinen Nachbarn schottet es sich mit zweigeschossigen Sichtbetonwänden weitgehend ab, während sich die Westseite mit großen, von außen liegenden Vertikalmarkisen verschatteten Glasflächen zum Golfplatz hin öffnet. Statt eines Gartens ließ der Hausherr eine große Kiesfläche um das Haus anlegen; der Patio zwischen den Gebäudeflügeln ist hingegen kopfsteingepflastert und mit einem Swimmingpool versehen.
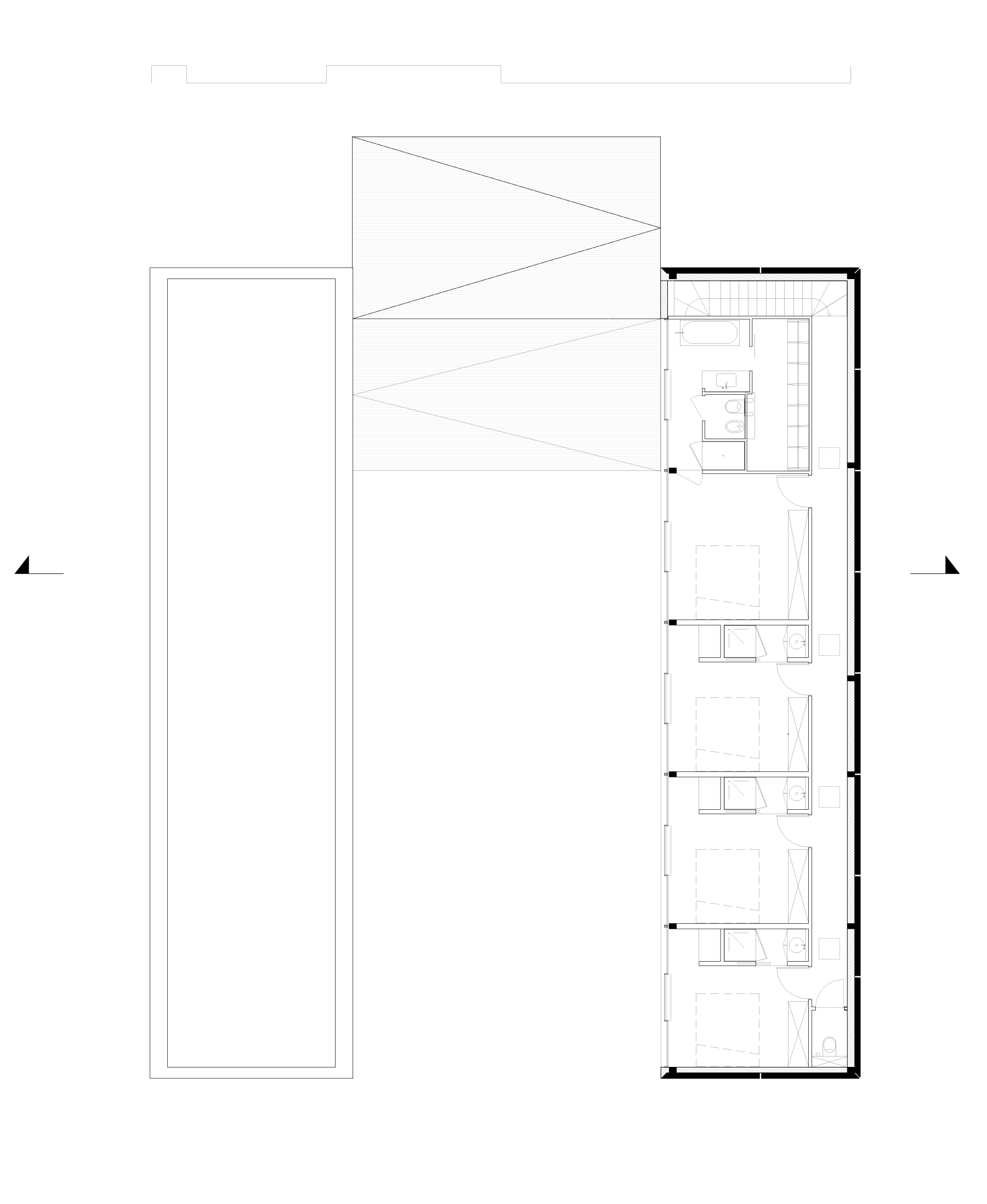
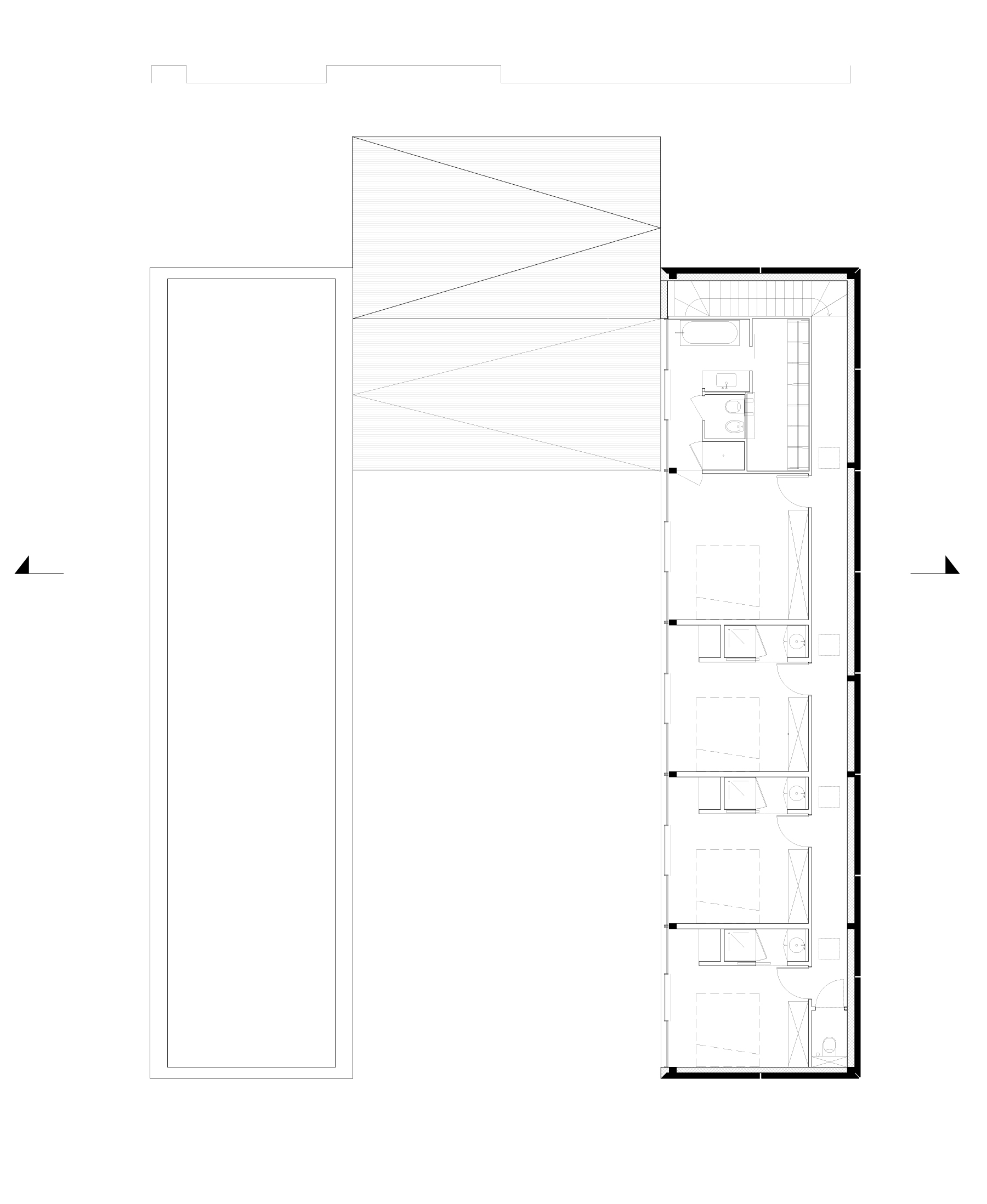
Ins Innere des kombinierten Wohn-, Arbeits- und Ausstellungsgebäudes gelangt man durch den einzigen Einschnitt in der hermetisch geschlossenen Ostfassade, der zudem als Garage dient. Von innen ist er mit Wellblech ausgekleidet. Das Obergeschoss des Ostflügels beherbergt vier weitgehend nutzungsneutrale Räume, die als Schlaf- oder Gästezimmer sowie als Büros genutzt werden können. Den Westflügel nehmen zwei Wohn- und Konferenzräume ein, die von einem eingestellten „Raum im Raum“ voneinander getrennt werden.
Fast schon intim geht es verglichen hiermit im Atelier am Nordende des Gebäudes zu, das der Hausherr für eigene künstlerische Arbeiten nutzt, befreundeten Künstlern zur Verfügung stellt und gelegentlich auch für Ausstellungen nutzt. Dieser Teil des Gebäudes ist als einziger außen mit Wellblech verkleidet. Innen erhielten die Wände im oberen Bereich eine Verkleidung mit transluzentem Polycarbonat.























