Treffpunkt am Kanalufer
Quartierszentrum in Brüssel von &Bogdan
Quartierszentrum Amal Amjahid, © Jeroen Verrecht
Das Quartierszentrum Amal Amjahid von &Bogdan am Kanalufer von Sint Jans-Molenbeek vereint sehr unterschiedliche Funktionen in sich – vom Boxclub bis zur Kinderkrippe.


Das Quartierszentrum Amal Amjahid liegt am Kanalufer von Sint Jans-Molenbeek. © Jeroen Verrecht
Sozialer Treffpunkt
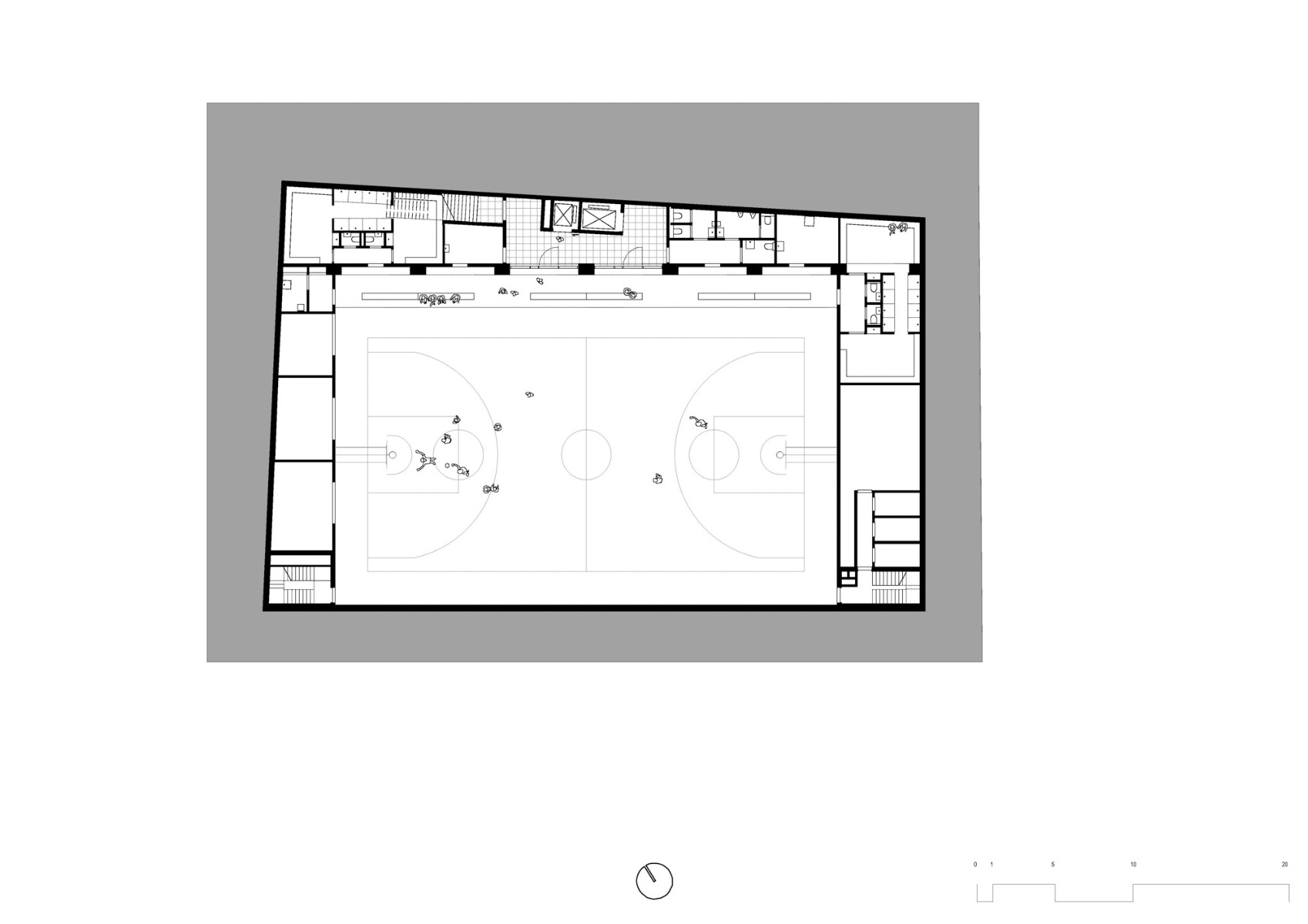
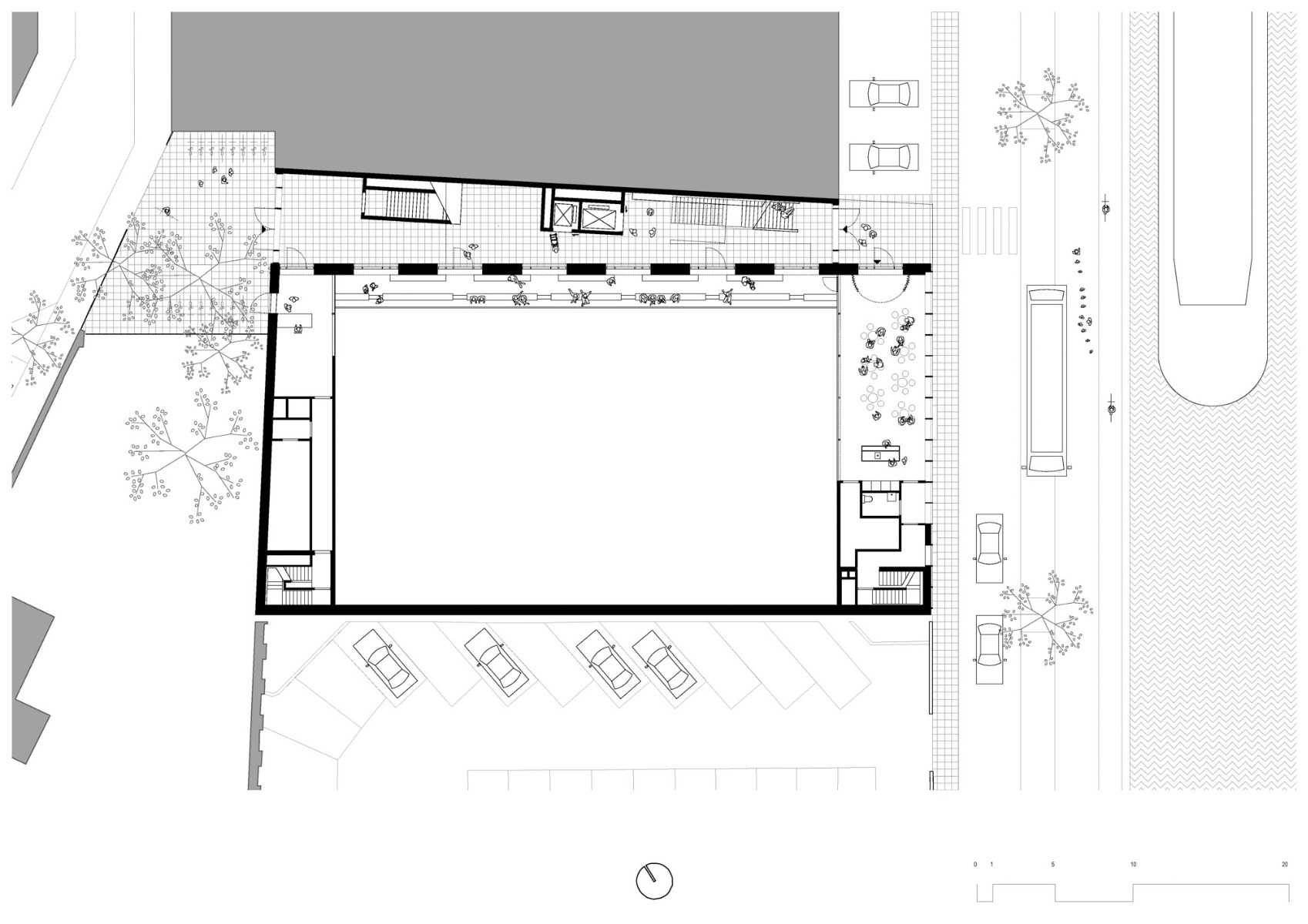
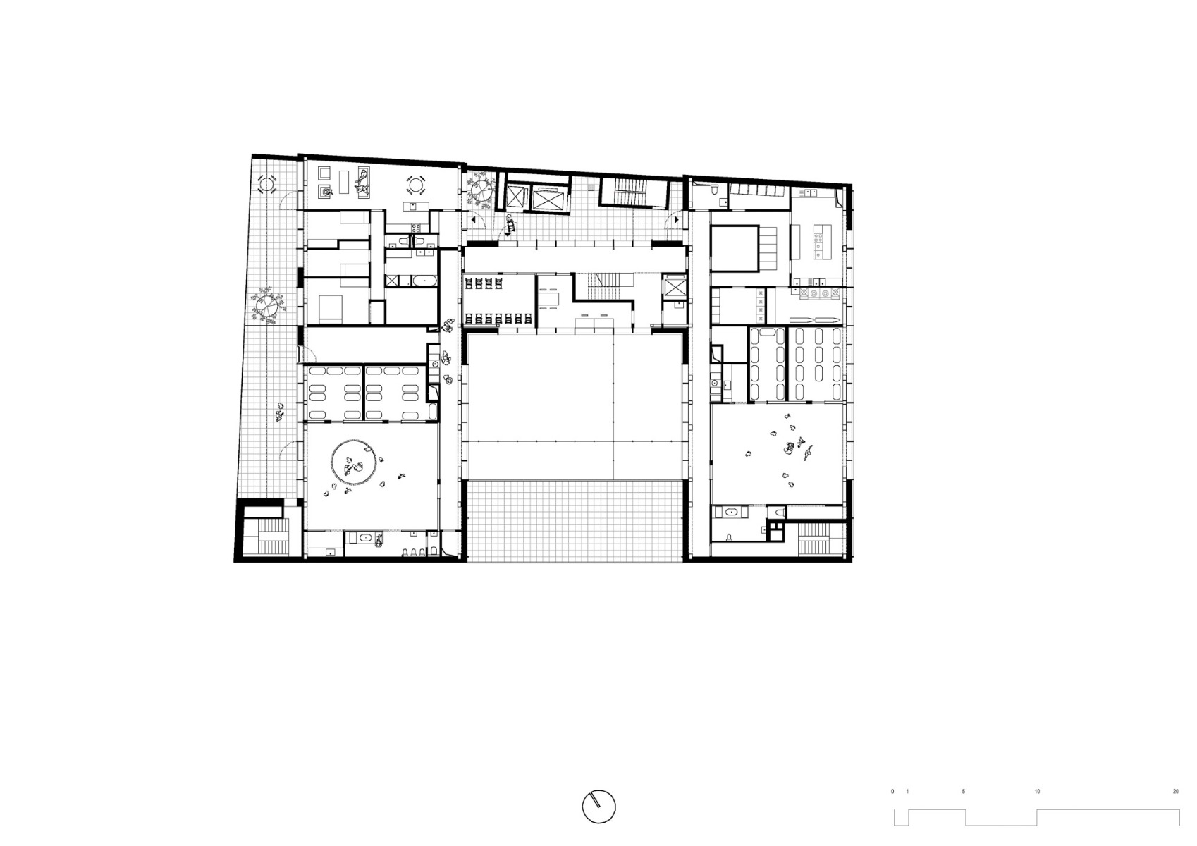
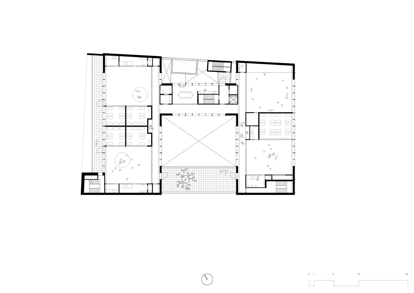
Der Kanal von Brüssel ist seit jeher die industrielle Hauptschlagader der belgischen Hauptstadt – und wandelt sich in den letzten Jahren zusehends zur angesagten Büro-, Einkaufs- und Ausgehlocation. Mit dem neuen Quartierszentrum – benannt nach einer achtfachen Ju-Jitsu-Weltmeisterin aus Brüssel – ist dort nun auch ein wichtiger sozialer Treffpunkt für die umliegenden Viertel entstanden. Eine große Sporthalle, zwei kleinere Hallen überwiegend für Kampfsportarten, eine Krippe für 84 Kinder und eine Hausmeisterwohnung sind hier auf fünf Etagen übereinandergestapelt.
Galérie des Géants
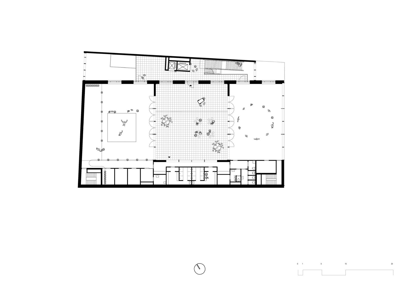
Erschlossen werden die unterschiedlichen Bereiche über die sogenannte Galérie des Géants (Galerie der Riesen) auf der Nordseite des Gebäudes. Diese öffentliche Passage verbindet zugleich das Kanalufer im Osten mit der westlich gelegenen Parallelstraße. Flankiert wird sie von einer Sichtbetonwand mit parabelförmigen Öffnungen in zwei Etagen übereinander.


Galérie des Géants, © Jeroen Verrecht
Die unteren Durchgänge führen in die große Sporthalle, die den größten Teil des Erd- und des Untergeschosses einnimmt. Durch die Arkaden im ersten Obergeschoss gelangt man in einen ruhigen Innenhof, um die sich die oberen drei Ebenen des Gebäudes gruppieren.


Fassade, © Jeroen Verrecht


Innenraum, © Jeroen Verrecht
Im ersten Stock grenzen die beiden kleineren Hallen beidseitig an den Patio an. Weiter oben öffnen sich die Kinderkrippe und die Hausmeisterwohnung zu eigenen, vorgelagerten Terrassen. Indem sie das größte Raumvolumen – die Sporthalle – zuunterst platzierten, optimierten die Architekten die Tageslichtversorgung im ganzen Haus. Allerdings schufen sie sich dadurch auch statische Herausforderungen. Im Unter-, Erd- und ersten Obergeschoss tragen zwei große Längswände aus Stahlbeton das Gewicht des Hauses. Darauf liegen quer vier je zweigeschossige Stahl-Fachwerkträger, in die die Geschossdecken der oberen Etagen eingehängt sind.
Holzfassade
Umhüllt ist die Tragstruktur mit einer hoch gedämmten, weitgehend vorgefertigten Holzelementfassade. Beim Energiekonzept setzten die Architekten auf das Prinzip „smart shell, low tech“: Auf eine Gebäudeautomation wurde weitgehend verzichtet. Eine Nachtluftkühlung nutzt die Trägheit der Betonstruktur in Sommernächten, um die Innenräume auf erträgliche Temperaturen herunterzukühlen.
Mehr dazu in Detail 9.2023 und in unserer Datenbank Detail Inspiration.
Architektur: &Bogdan (ehemals Bogdan & van Broeck)
Bauherr: Gemeinde Molenbeek-Saint-Jean
Standort: Quai des Charbonnages 86, 1080 Molenbeek-Saint-Jean (BE)
Tragwerksplanung: UTIL Struktuurstudies
TGA-Planung: Enerdo studiebureau
Akustik: ASM acoustics
Bauunternehmen: In Advance
Bruttogrundfläche: 4086 m²
Grundstücksfläche: 1213 m²
Video: Jonathan Orthégat































