Raffiniert vereinfacht: Terbregsehof 11 in Rotterdam
Foto: Rubén Dario Kleimeer
Das Rotterdamer Unternehmen 13Speciaal plant und realisiert maßgeschneiderte Inneneinrichtungen. Sein neues Büro-, Werkstatt- und Showroomgebäude steht an einer Autobahnausfahrt im Nordosten der Stadt in einer Art Niemandsland. Er ersetzt ein jahrelang leer stehendes Wohnhaus, das zeitweise Hausbesetzern als Unterkunft gedient hatte.
Der Neubau von Loer Architecten steht auf zwei Seiten im Wasser eines Kanals, der das Grundstück quert. Seine drei oberirdischen Geschosse erhielten eine dunkel gestrichene, von großen Fensterbändern durchbrochene Douglasienholzverschalung. Die unterschiedlichen Breiten der Holzlatten, ihre gegeneinander versetzten Stoßfugen sollen der Fassade eine Dynamik verleihen, die ihr Pendant in den gegeneinander versetzten Panoramafenstern findet. In den Abendstunden, so die Vision der Architekten, sollen die Fassaden mit der Dunkelheit verschmelzen und nur noch die Fensteröffnungen als abstrakte Leuchtflächen in Erscheinung treten.
Ein ganz anderes Bild ergibt die Eingangsseite im Osten mit ihren Bullaugenfenstern in unterschiedlicher Größe und Höhe. Selbst der Haupteingang führt durch eine kreisrunde Fassadenöffnung herein. Die Fenster sind eine Sonderanfertigung, die Bauherr und Architekten gemeinsam entwickelt haben. Nach ihren Angaben war sie nicht nur ästhetisch befriedigender, sondern auch kostengünstiger als handelsübliche Systeme. Die Holzrahmen sind so in die Fassadenkonstruktion integriert, dass sie weder von innen noch von außen sichtbar sind.
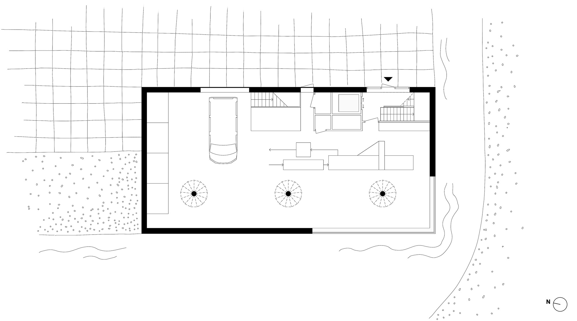
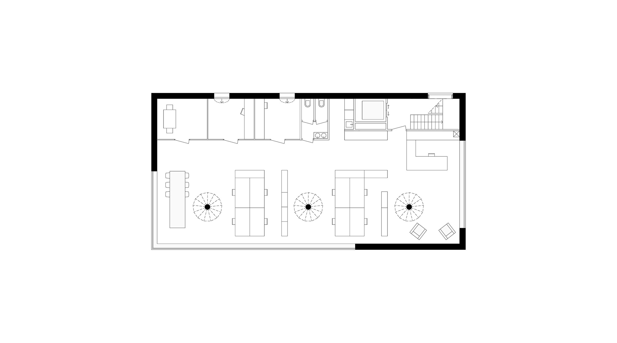
Auf die drei Geschosse des Neubaus verteilen sich drei unterschiedliche Nutzungen: im Erdgeschoss die Werkstatt, darüber das Büro und ganz oben schließlich ein Showroom mit Ausblick in das Naherholungsgebiet Kralingse Bos auf der anderen Straßenseite. Auch im Inneren haben die Architekten dem schlichten Gebäudekubus einige Besonderheiten abgewonnen: Drei große Pilzstützen hinter der Westfassade tragen die Geschossdecken, die mit einer Betonkernaktivierung versehen sind und von einer Wärmepumpe mit Wärme und Kälte versorgt werden. Auch die Eingangsfassade im Osten ist eine tragende Betonwand; die übrigen Fassaden bestehen dagegen größtenteils aus nichttragenden Holzrahmenelementen.



















