Architekturjuwel an der Europastraße
Rastplatz auf den Lofoten von Vatn Architecture und Jørgen Tandberg
Servicegebäude Brunstranda in Norwegen von Vatn Architecture und Jørgen Tandberg, © Johan Dehlin
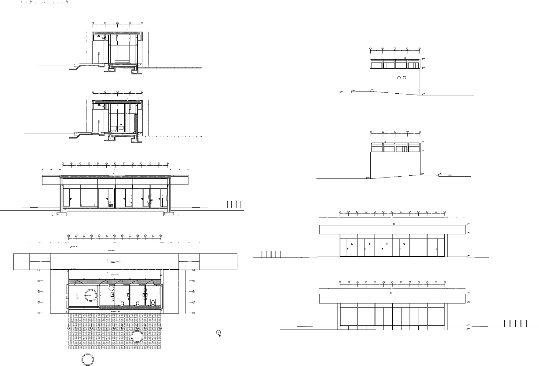
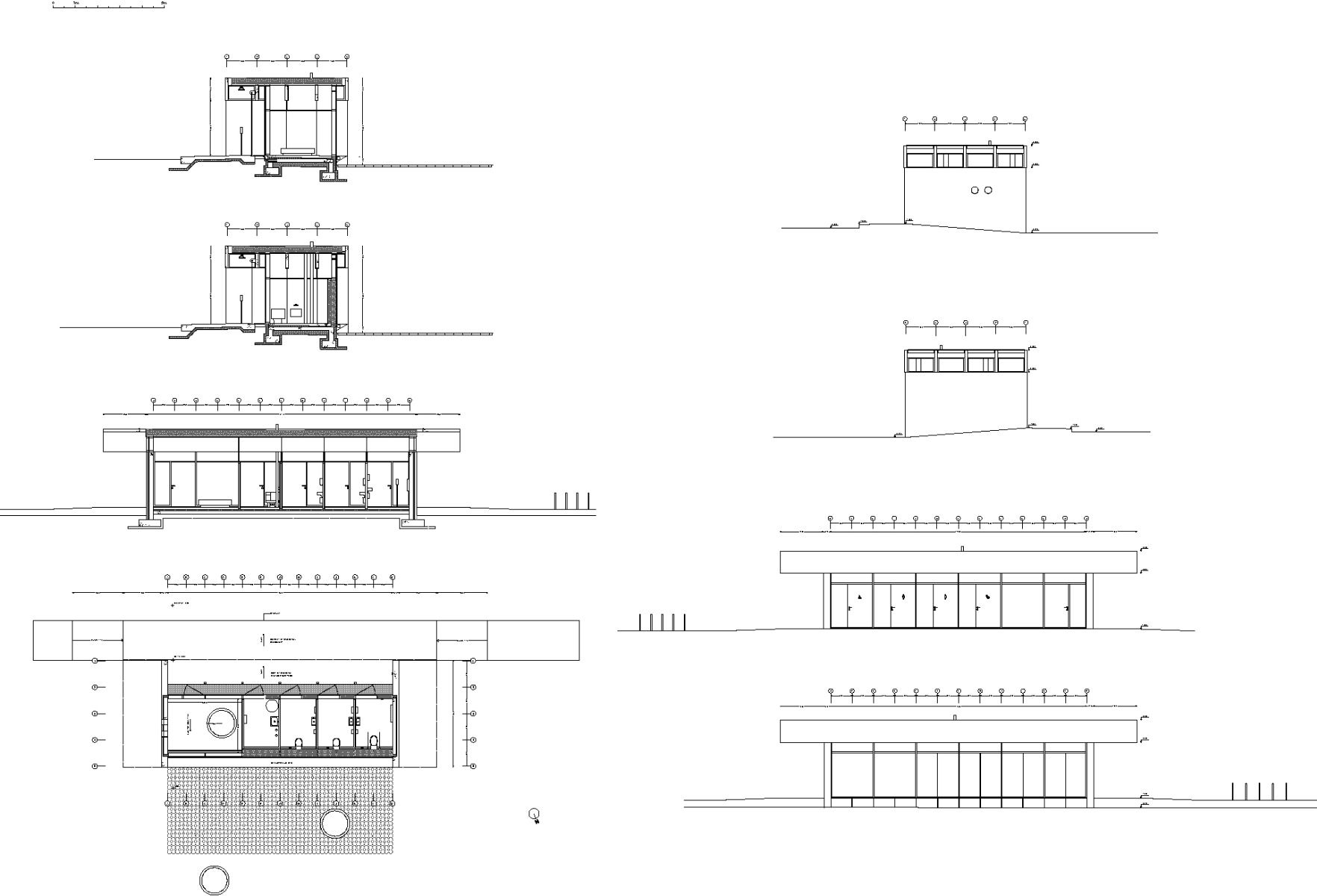
Die norwegischen Touristenrouten sind um eine Architektur-Attraktion reicher: In Brunstranda ganz im Norden des Landes haben Vatn Architecture und Jørgen Tandberg ein kleines Servicegebäude mit Toiletten und einem beheizten Aufenthaltsraum entworfen. Der zur Gemeinde Flakstad gehörende Uferstreifen liegt direkt an der Europastraße E10, die vom nordschwedischen Luleå 880 km weit bis nach Å an der Südwestspitze der Lofoten führt. Der helle, von den Gebirgsketten von Flakstadøy, umgebene Sandstrand macht Brunstranda das ganze Jahr über zu einem beliebten Ziel. Viele Radfahrer und Surfer kommen hierher, um die wilde Umgebung zu erleben.


Der Neubau steht an der Europastraße E10 auf den Lofoten in Nordnorwegen. © Johan Dehlin
Außergewöhnliche Dachkonstruktion
Mit ihrem Neubau ersetzen die Architekten ein älteres, schon etwas heruntergekommenes Servicegebäude. Das Raumprogramm ist denkbar einfach: vier WCs und der beheizte Aufenthaltsbereich sind linear unter einem Flachdach mit mächtigen Betonbalken angeordnet. Richtung Straße kragt das Dach weit aus, um Schutz vor Regen zu bieten. Auf der gegenüberliegenden Seite, mit Blick Richtung Meer, erstreckt sich eine Bank über die gesamte Gebäudelänge. Bei wärmeren Tagen können die Besucher hier in der Sonne sitzen.
Fünf vorgefertigte, je 14 m lange Betonunterzüge tragen das Dach und bilden das wesentliche Gestaltungsmerkmal des Gebäudes. Sie sind 12 cm breit, 1 m hoch und haben eine Spannweite von je 11,5 m. Getragen werden sie allein von zwei vorgefertigten, kerngedämmten Betonwänden an den Giebelseiten des Gebäudes. An der Stelle, wo die Balken die Gebäudehülle durchdringen, sind sie thermisch entkoppelt. Die Betonträger ziehen sich durch alle Räume und prägen so auch das Innere des Gebäudes.


Unter dem auskragenden Dach sind WCs und ein Aufenthaltsraum untergebracht. © Johan Dehlin
Weißbeton mit Marmormehl
Der für den Bau verwendete weiße, gestockte Beton wurde mit Marmor als Zuschlagsstoff hergestellt. Er soll laut den Architekten Bezug zur Farbe und Beschaffenheit des Sandes an den nahegelegenen Stränden aufnehmen. Die vorgefertigten Elemente wurden bereits im Werk gestockt und sind für Betonfertigteile ungewöhnlich scharfkantig, ohne die sonst üblichen abgeschrägten Kanten. An der Unterseite der Dachelemente verwendeten die Architekten einen Betonverzögerer, um einen ähnlichen Oberflächeneffekt zu erreichen. In die Wandelemente sind werkseitig Gewindehülsen eingelegt, um sie auf der Baustelle mittels Gewindestangen im Fundament verankern zu können.


Die Außenhülle und das Dachtragwerk sind aus Weißbeton hergestellt, der seine Farbe durch Marmormehl erhält. © Johan Dehlin
Langlebig durch Edelstahl
Um die Dachträger so schlank wie möglich halten zu können und ihre Lebensdauer im rauen Klima zu verlängern, sind sie mit einzelnen Edelstahlstäben bewehrt. Auch bei den übrigen Gebäudeoberflächen stand Robustheit im Vordergrund: Neben Sichtbeton kamen dort überwiegend Glas und rostfreier Stahl zum Einsatz.
Architektur: Vatn Architecture, Jørgen Tandberg
Bauherr: Stsatens Vegvesen
Standort: Brunstranda, 8380 Ramberg (NO)
Tragwerksplanung: Finn-Erik Nilsen, K. Apeland
Landschaftsarchitektur: Silje Myhre Amundsen, Statens Vegvesen
Bauunternehmen: Lofot Entreprenør












