Hybrid aus Holz und Beton
Rathausanbau im Baskenland von Behark
In der Südfassade lässt sich die Komplexität der Konstruktion aus Holz, Beton und altem Mauerwerk erahnen. © Mikel Ibarluzea
Im baskischen Larrabetzu hat das Büro Behark den bestehenden Annex des Rathauses durch einen offenen Holz-Beton-Pavillon für Veranstaltungen ersetzt.


Im Inneren des Pavillons gibt es eine Bar und ein offenes Mezzanin, das später als Fluchtweg für das Rathaus dienen soll. © Mikel Ibarluzea
Überdachte, offene Pavillons – sogenannte Aterpe – gehören wegen des regenreichen Klimas zur Grundausstattung baskischer Dörfer und Städte. Auf dem Marktplatz der 2000-Einwohner-Gemeinde Larrabetzu fehlte ein solches Schutzdach bisher. Dafür gab es dort einen kaum noch genutzten Anbau an das Rathaus, den die Gemeinde im Zuge der anstehenden Rathaussanierung abreißen ließ. Die Architekten Behark aus Bilbao ersetzten den Annex durch eine annähernd gleich große, offene Struktur aus Leimholz, Sichtbeton und erhalten gebliebenen Mauerresten mit einem dreiseitig geneigten Ziegeldach.
Holz, Sichtbeton und historische Mauern
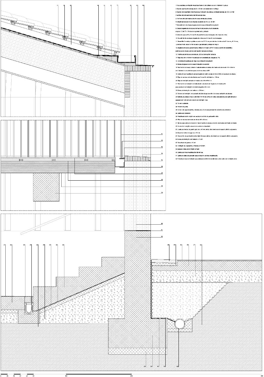
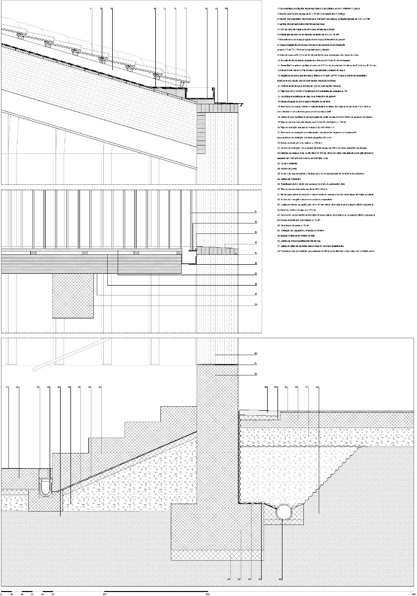
In Anbetracht der geringen Gebäudegröße sind Tragkonstruktion und Materialpalette ausgesprochen komplex. Auf drei Seiten umgibt eine dicht gestaffelte Pfosten-Riegel-Konstruktion aus Brettschichtholz den Pavillon. Darin integriert sind einige Mauerreste des Vorgängerbaus, hinter denen sich ein kleiner Einbau mit Bar verbirgt. Der Rest des Pavillons ist ein offener Großraum mit Mezzaninebene, die nach vollzogener Rathaussanierung auch als Fluchtweg für den angrenzenden Rathaussaal dienen soll.


Vom Marktplatz aus führt eine Treppe hinauf zum Mezzanin. Hier integrierten die Architekten Reste des Vorgängerbaus in die Konstruktion. © Mikel Ibarluzea
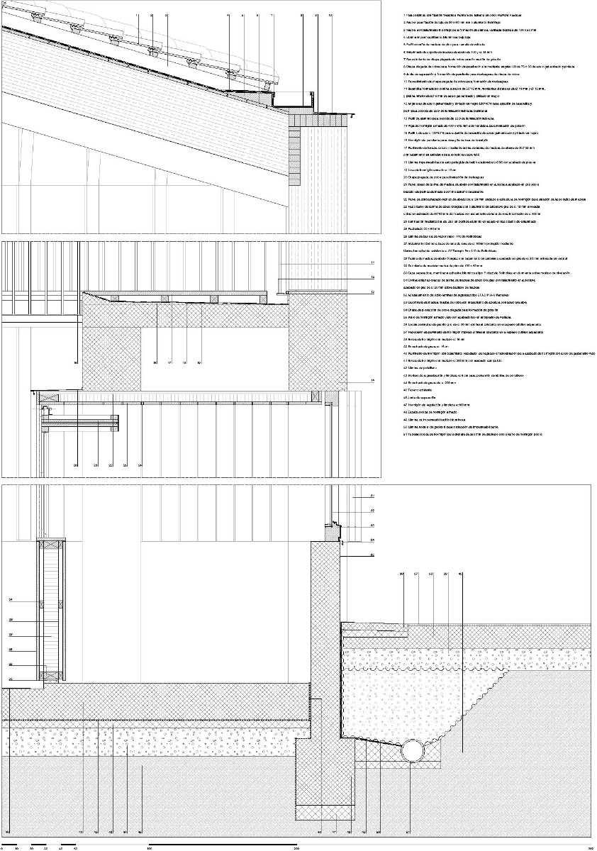
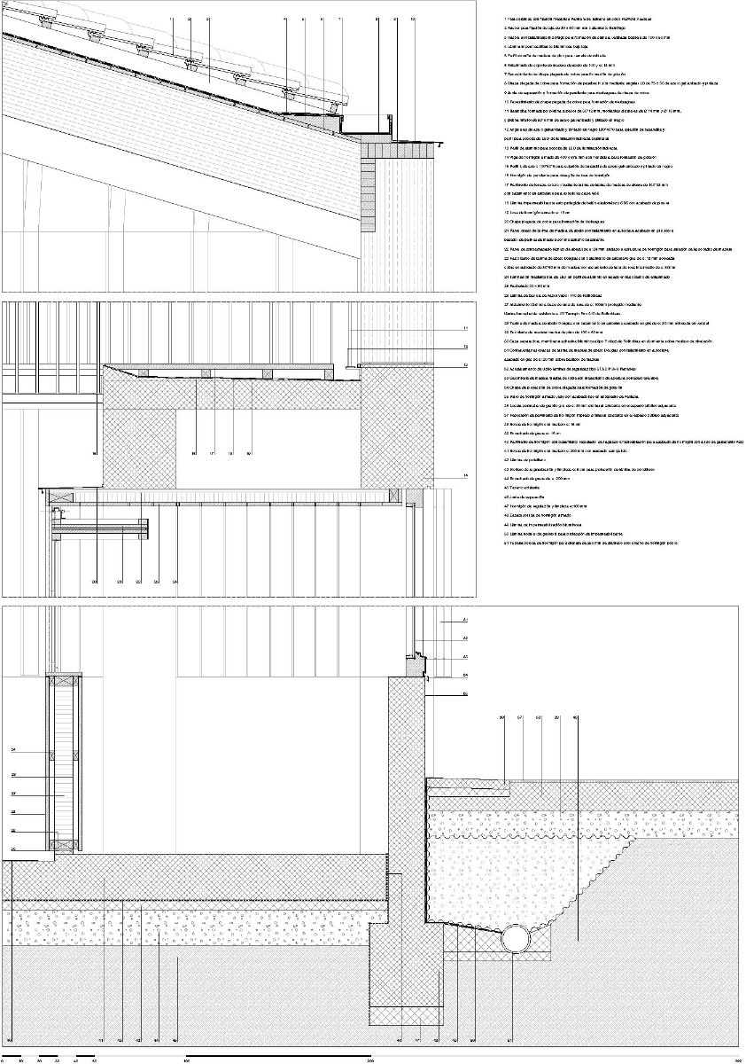
Drei Dachflächen mit nur einer Stütze
Während die Bar ein flaches Betondach erhielt, besteht die andere, rechtwinklig davon abzweigende Hälfte des Mezzanins aus Brettsperrholz. Sie spannt stützenfrei zwischen einem weit aus der Bar auskragenden Sichtbetonbalken und einem vor die historische Rathauswand gestellten Brettschichtholzrahmen. Die drei Dachflächen steigen von den Fassaden aus Richtung Altbau an und werden dort von nur einer großen Brettschichtholzstütze getragen. Douglasienholzschalungen an den Fassaden und Faltläden der Bar sowie am Obergeschoss des Rathauses komplettieren die Materialpalette.


Die offenen Holzfassaden sind integraler Teil des Tragwerks. © Mikel Ibarluzea


Durch sie fällt der Blick aus dem Pavillon über den Marktplatz. © Mikel Ibarluzea
Zwei breite Durchgänge führen vom Rathausplatz im Westen und von einer etwas höher gelegenen Nebengasse im Süden ins Innere des Pavillons. Bei Dunkelheit macht eine integrierte LED-Beleuchtung den Pavillon zum weithin sichtbaren Anziehungspunkt im Stadtzentrum.
Architektur: behark
Bauherr: Gemeinde Larrabetzu
Standort: Askatasuna Plaza 2, Larrabetzu (ES)
Kosten- und Terminplanung, Ausschreibung und Vergabe: Juan Luis Urresti
Bauunternehmen: Zamakoa
Holzbau: Madergia
Fläche: 125 m²

























