Raum im Raum: Ausstellungsraum Boxen von Dehlin Brattgård
Foto: Johan Dehlin
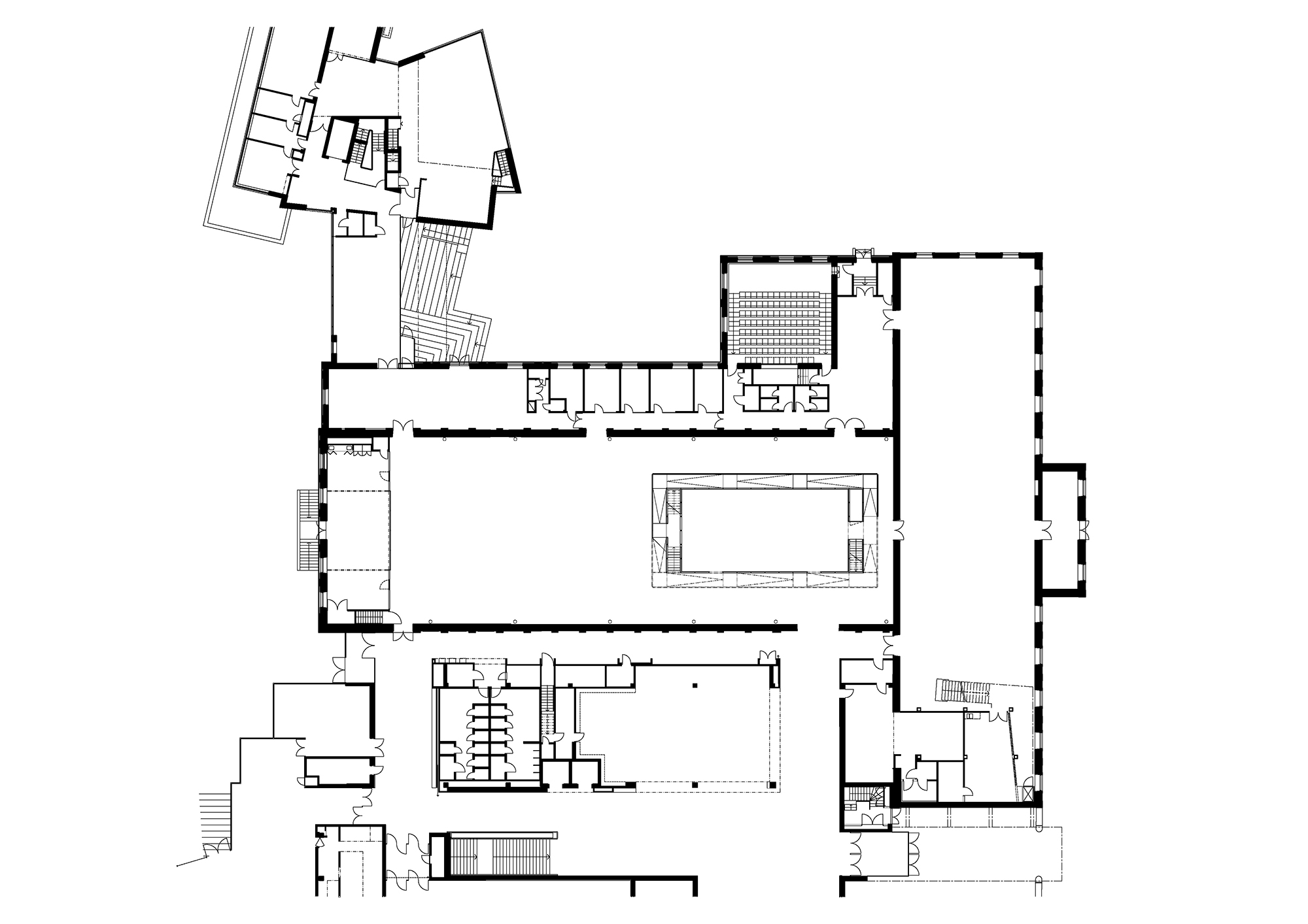
ArkDes setzt sich aus zwei Militärübungsgebäuden aus dem 19. Jahrhundert zusammen und ist neben seiner Funktion als Museum außerdem ein Treffpunkt für diverse Kulturveranstaltungen. Als Ergänzung zur Dauerausstellung zieht mit Boxen ein Raum für kontemporäre, experimentelle Installationen ein.
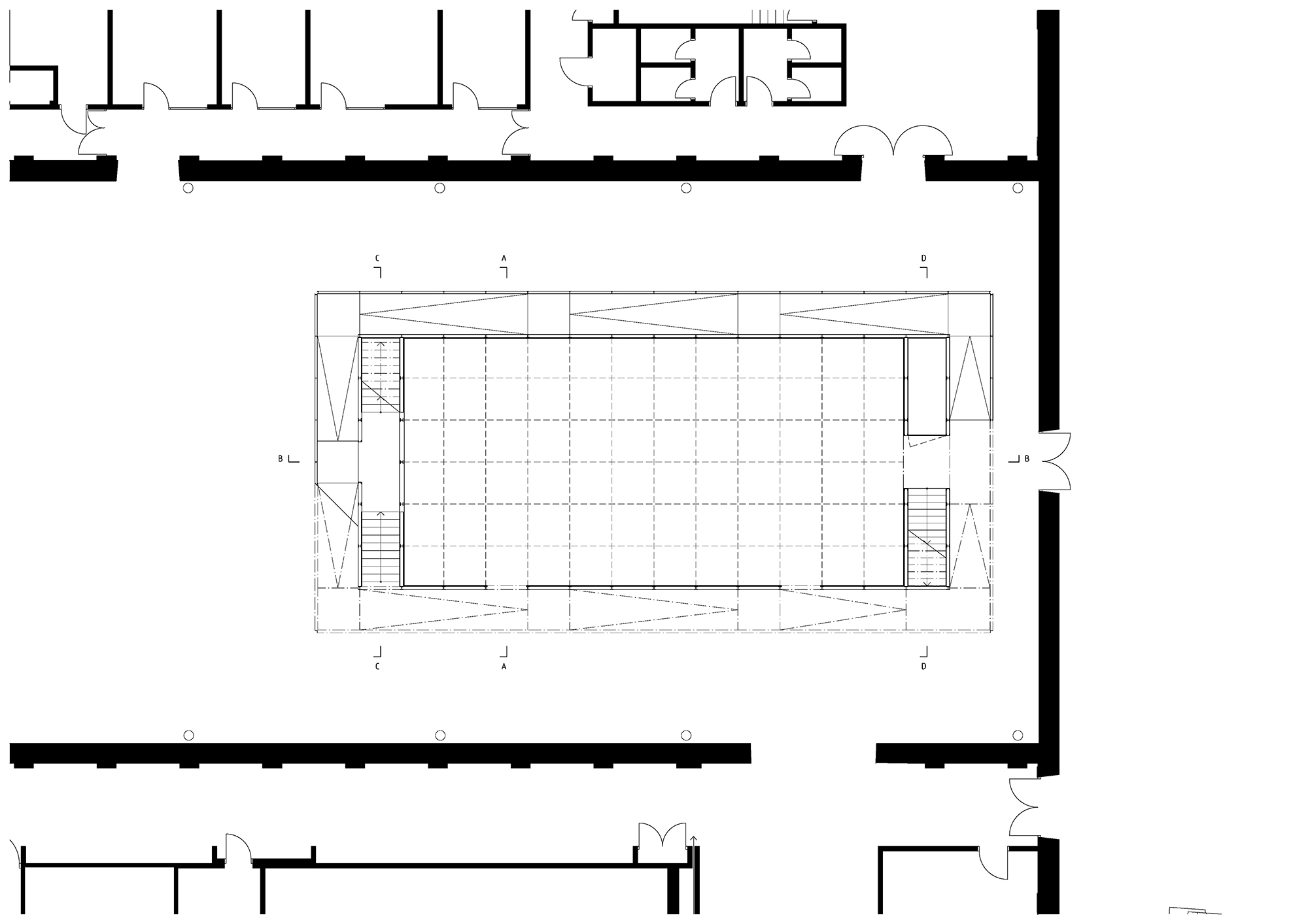
Dehlin Brattgård Arkitekter setzen Boxen als rechteckiges Volumen zentral in eine der beiden Hallen, wo es trotz seiner autonomen Positionierung die natürliche Zirkulation innerhalb der Museumsflächen begünstigt. Die Konstruktion des Körpers ist einfach. Eine Stahlstruktur fungiert als tragendes Gerüst. Während dieses im Inneren mit Birkensperrholz und Gipskarton ausgekleidet ist, bleiben die Stützen außen sichtbar. Die Zwischenräume füllt lediglich ein Maschendrahtgewebe.
Zu beiden Querseiten gibt es mittig große, kreisförmige Aussparungen, die spannende Blickbeziehungen zwischen dem Ausstellungskubus und dem restlichen Museum ermöglichen. Das leichte Wellblechdach, welches das Volumen nach oben hin abschließt, wird nur von den Stahlständern getragen und scheint regelrecht über Boxen zu schweben. Dadurch wird die Interaktion mit der umgebenden Halle noch weiter verstärkt.
Den krönenden Abschluss bildet eine Rampe, die außen an das Volumen andockt und den Besucher leicht ansteigend rundum nach oben leitet. Vom Haupteingang ausgehend führt sie zuerst zu einer Plattform an einer der kreisrunden Öffnungen und weiter zu einem Balkon entlang der Längsseite, bevor man den Innenraum von Boxen über eine versteckte Treppe betreten kann. Die Rampe wird von einem weißen Textilnetz umspannt, das als transparente Absturzsicherung dient.
Den Innenraum von Boxen lassen Dehlin Brattgård Arkitekter unbespielt. Weiße Flächen und Netze bieten einen neutralen Hintergrund und viel Platz. Je nach Art der Ausstellung kann das Volumen unterschiedlich gestaltet werden und verwandelt sich in eine partizipative Galerie.














