Raumgerüst für kreative Köpfe: Bürogebäude in Karlsruhe
Foto: Brigida González
»Karlsruher Kreativpark« heißt das städtebauliche Projekt. In den letzen Jahren entstand bereits ein Gründerzentrum namens Perfekt Futur in der ehemaligen Schweinemarkthalle und ein Atelierhaus im alten Schlachthof. Nun erweitert das Festigungs- und Expansionszentrum das bunte Angebot des Areals um Büroflächen für Unternehmen mit kreativen Konzepten.
In direkter Nachbarschaft an das Fux grenzt der Karlsruher Messplatz an, den mehrmals im Jahr Festivals und Veranstaltungen beleben. An den restlichen Tagen dient er als Parkplatz. Angepasst am hohen Versiegelungsgrad des Geländes soll der Kreativpark laut umfangreicher Gestaltungsrichtlinien einen rohen, offenen und veränderbaren Charakter erhalten.
Birk Heilmeyer und Frenzel Architekten nahmen die gestalterischen Leitlinien mit auf, indem sie ihren Baukörper schlicht, aber prägnant gestalteten. Im Bebauungsplan sind enge Vorgaben gesetzt: Höhen und Farben sind genau festgelegt. Zudem sollen alle Neubauten ein Flachdach besitzen und die Grundform für den Entwurf soll jeweils der Kubus sein. Das Fux vereint zwei Formen: Auf einem horizontal liegenden Quader sitzt etwas verschoben ein Würfel, der in den Himmel ragt. Quadratische Fenster gliedern die schlichten Fassaden. Das Ergebnis ist ein gerastertes Wechselspiel aus Öffnung und Betonfläche.
Rohe Sichtbetonflächen prägen auch den Innenraum, der mit seinen offenen Rohrleitungen und akzentuierter Lichtgestaltung eine schlichte, industrielle Atmosphäre erzeugt. Den zukünftigen Nutzern bleibt so ein großes Maß an Freiheit in der Gestaltung ihrer Büroflächen.
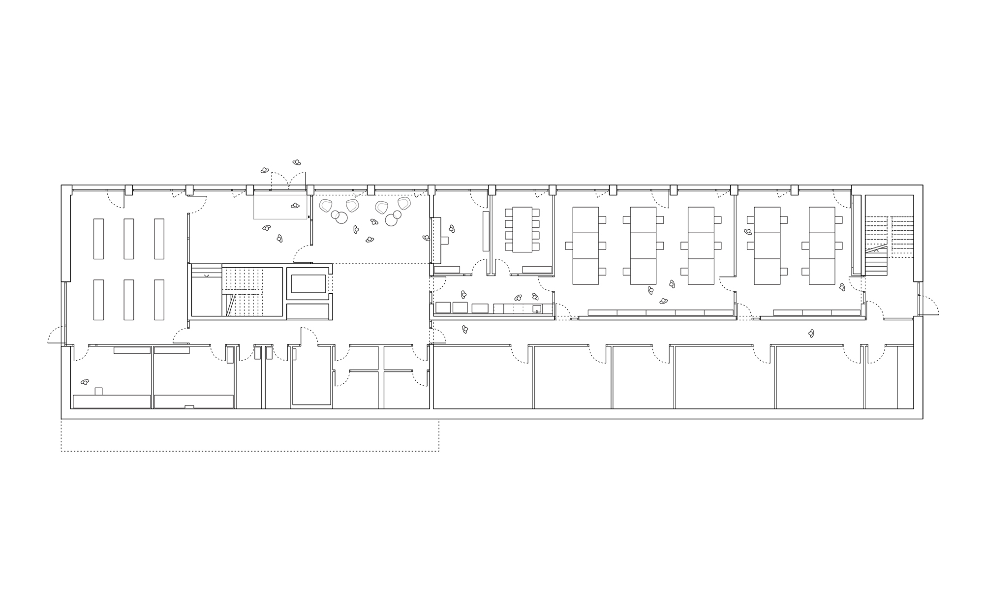
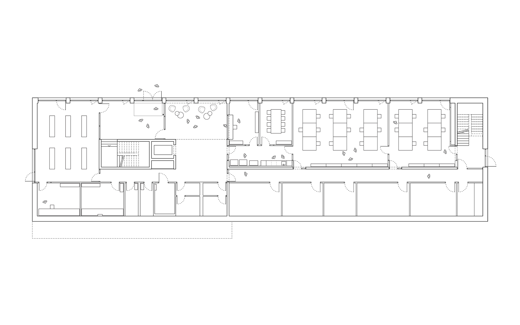
Auf der Westseite liegt der Haupteingang, der ins Foyer mit Cafeteria führt. Daneben ist ein Coworking-Bereich vorgesehen. Das dynamische Raumprogramm soll eine flexible Bespielung der Flächen ermöglichen. Großzügigkeit und Kommunikation sind wichtige Elemente der Gebäudeorganisation.














