Recht transparent: Gerichtshof in Amsterdam von Kaan Architecten
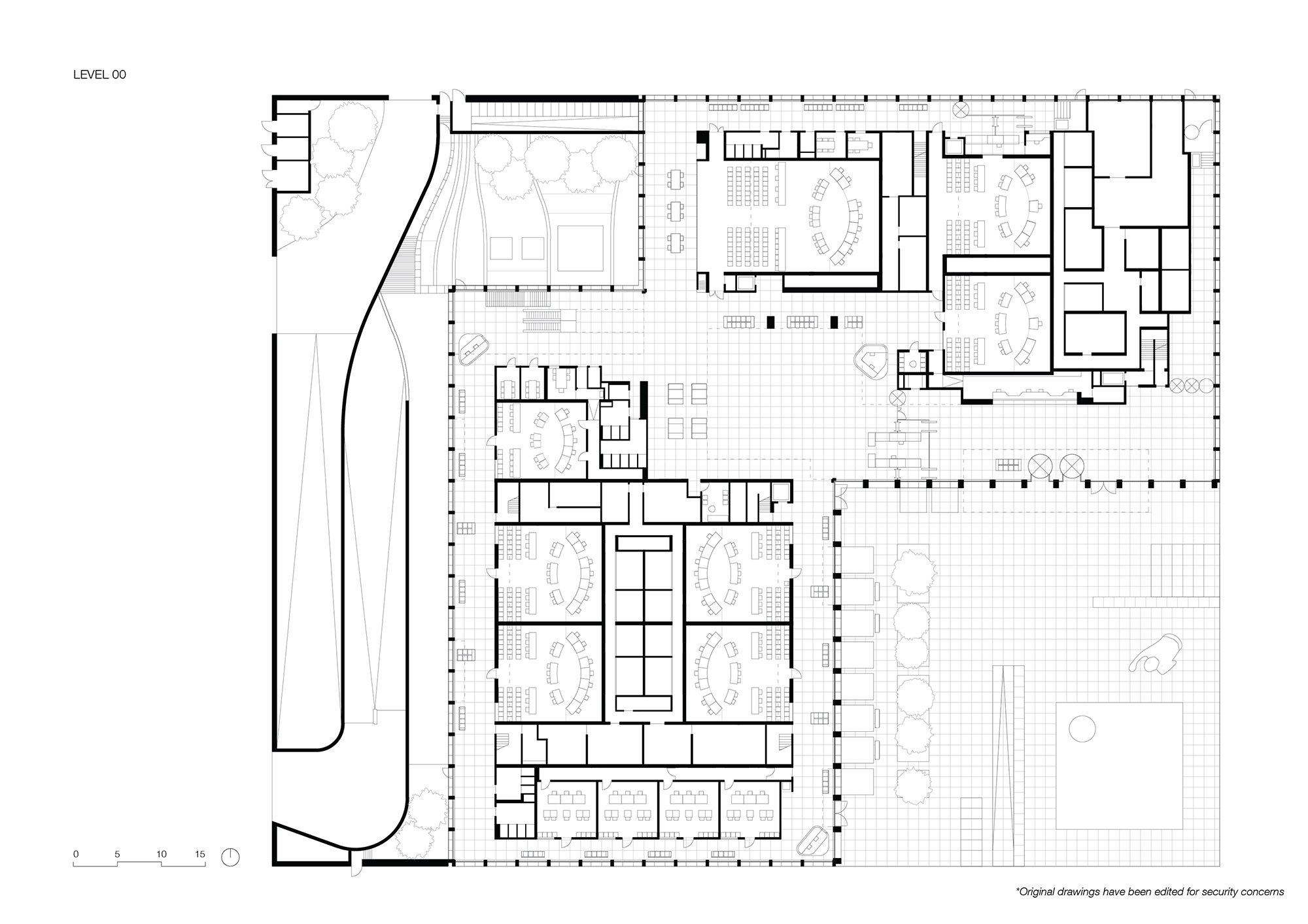
60 000 m2 Bruttogrundfläche, Arbeitsplätze für 1000 eigene Mitarbeiter und 200 weitere Beschäftigte von Dienstleistern – die neue Amsterdamer „Rechtbank“ ist das mit Abstand größte der elf Gerichte der ersten Instanz in den Niederlanden. Der neungeschossige Neubau von Kaan Architekten steht im Büroviertel Zuidas am Amsterdamer Südbahnhof, das sich in den letzten Jahren zum Zentrum der niederländischen Banken- und Finanzwelt entwickelt hat. Errichtet hat das Gerichtsgebäude ein Konsortium aus Architekten und Ingenieuren, einem Investor, einem Bauunternehmen und einem Spezialisten für Facility Management, das die Immobilie in den kommenden 30 Jahren auch betreiben wird.
Ein klassisches Public Private Partnership also – aber eines, dessen gebautes Resultat sich durchaus sehen lassen kann. Wobei wir beim Thema wären: Sehen und gesehen werden, Transparenz und die Öffnung zur Stadt waren auch den Architekten und der staatlichen niederländischen Immobilienverwaltung als Auftraggeberin wichtige Anliegen. Man erreicht den Neubau von Osten her über einen öffentlichen, aus Sicherheitsgründen lediglich etwas erhöhten Vorplatz mit den Dimensionen eines halben Fußballfelds. Seine Pflasterung aus lebhaft gemaserten, grauen Marmorplatten setzt sich auch in den öffentlich zugänglichen Bereichen auf den unteren vier Etagen des Gebäudes und an deren Fassaden zu beiden Seiten des Eingangshofs fort. Überall sonst sind die außen liegenden Fassadenstützen, die die Baukörper in Mies’scher Manier gliedern, mit dunklem Stahlblech verkleidet.
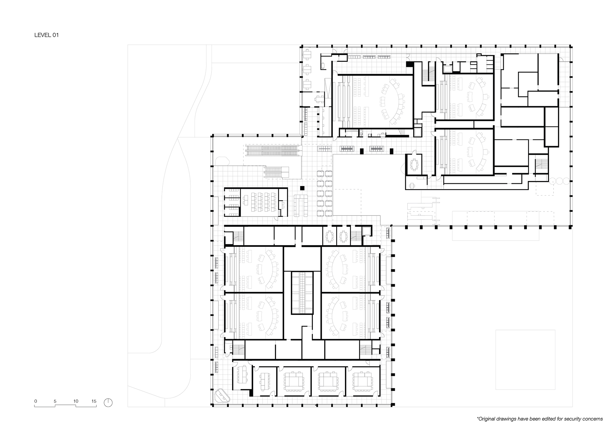
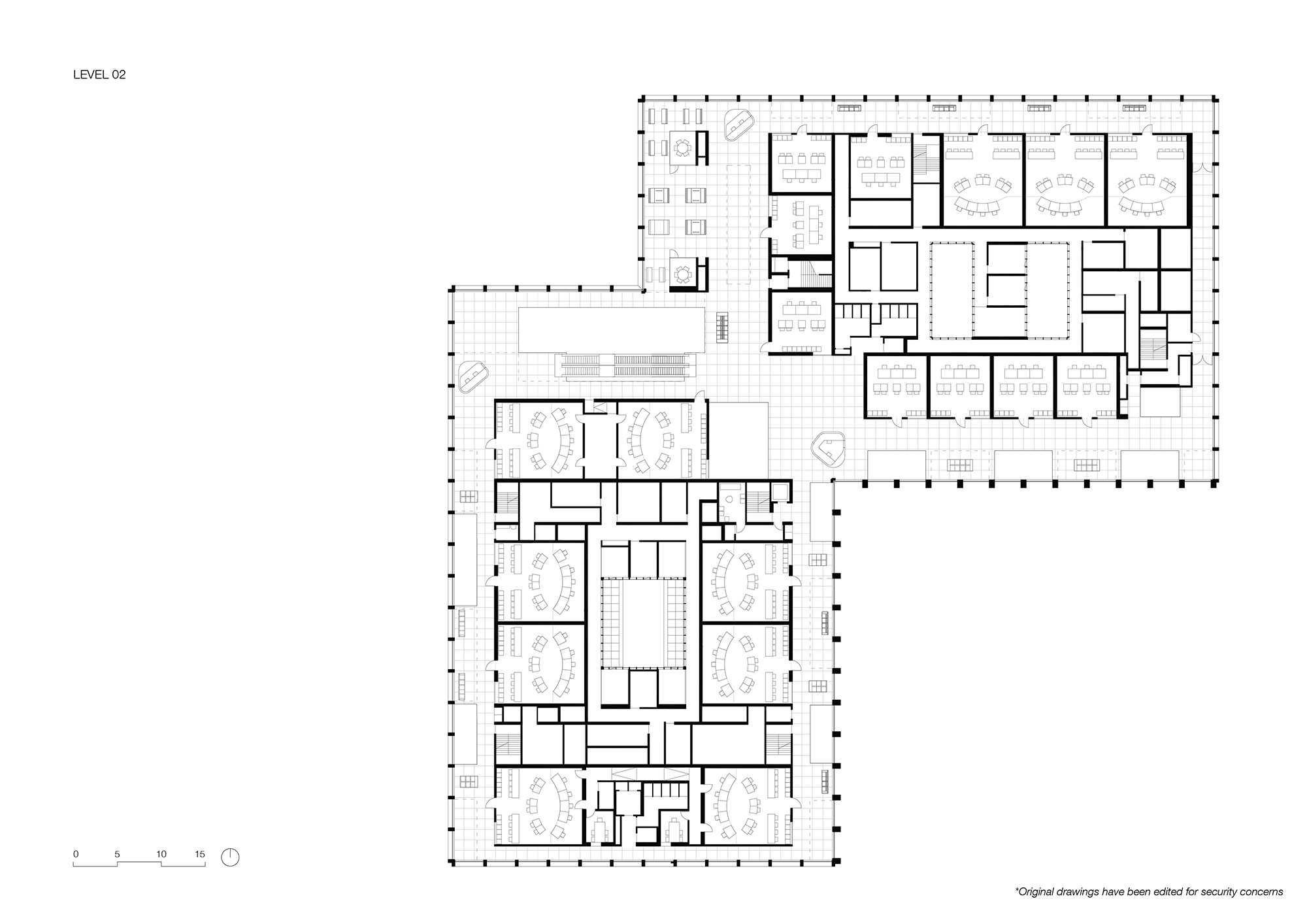
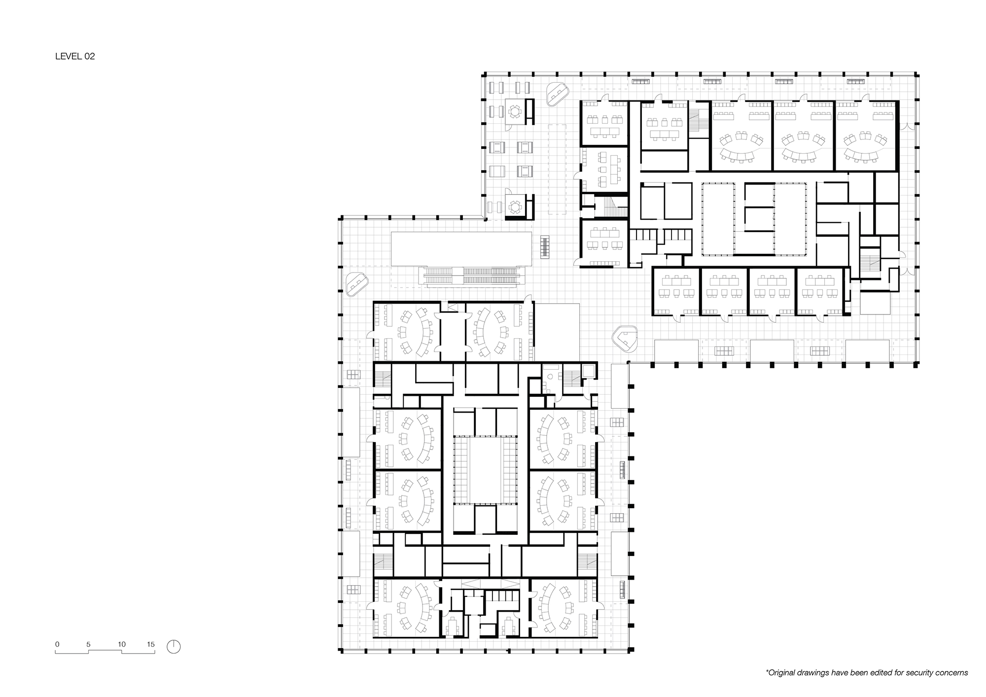
Die Fassadenstruktur verrät viel über den inneren Aufbau des Gerichtsgebäudes: Vom Erdgeschoss bis ins dritte Obergeschoss umgeben große Panoramascheiben die Eingangshallen und Wartebereiche für die 30 Gerichtssäle. Mehrgeschossige Lufträume verbinden hier die offen gestalteten Ebenen; die Verhandlungssäle sind in den beiden Gebäudekernen um offene Innenhöfe gruppiert. Ovale, zwischen die Geschossdecken eingeschobene Informationstresen lockern in den öffentlichen Bereichen die strengen Rechteckformen der Architektur auf.
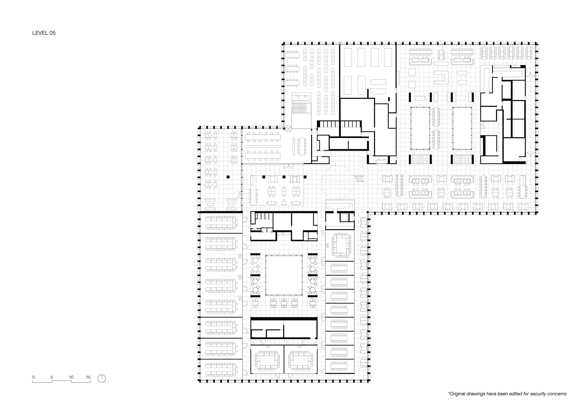
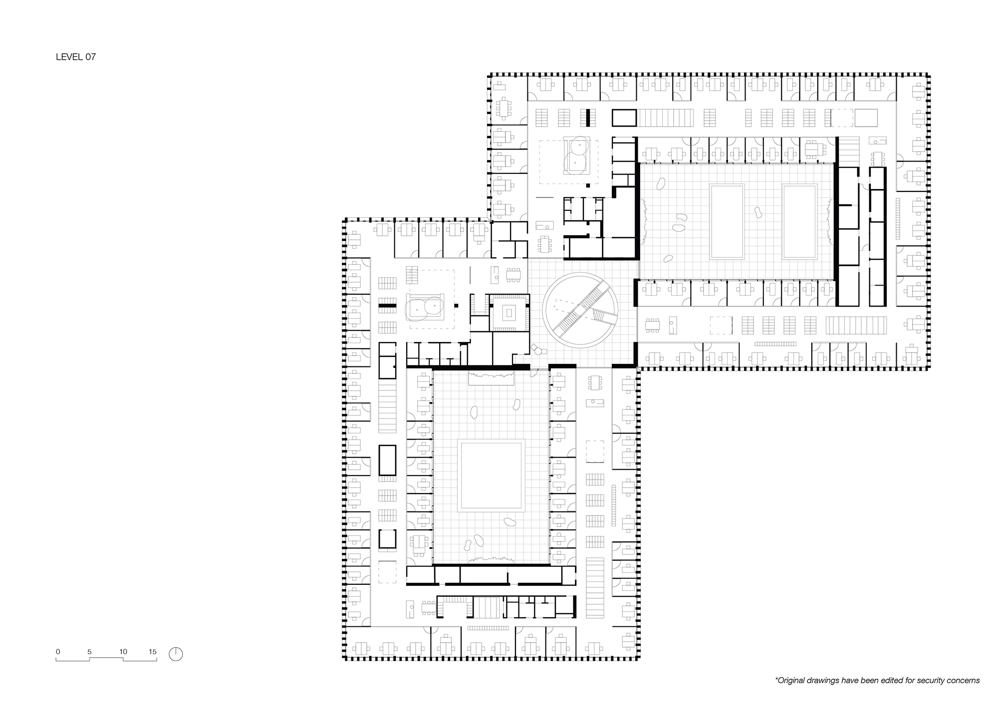
Im vierten und später nochmals im sechsten Obergeschoss ändert sich das Bild: Die Fassadenstützen rücken enger zusammen, an die Stelle des allgegenwärtigen Marmors rücken graue Teppichfliesen und weiße Gipskartonwände. Das vierte, nicht mehr öffentlich zugängliche Obergeschoss haben die Architekten als Begegnungszone gestaltet mit einem zweigeschossigen Mitarbeiterrestaurant, einer juristischen Fachbibliothek und zahlreichen Konferenzräumen. Hier treffen sich Richter und Anwälte und hier wird sicher auch über den einen oder anderen Vergleich verhandelt. Noch weiter oben beginnt dann der hausinterne Bereich mit den Büros der Richter und Staatsanwälte. Sie gelangen über eigene, nicht öffentlich zugängliche Direktaufzüge in die Verhandlungssäle in den unteren Etagen. Aber auch an die körperliche Bewegung haben die Architekten gedacht: Sich kreuzende Treppenläufe in einem fünfgeschossigen kreisrunden Luftraum verbinden die Büroetagen miteinander.



























