Goldglänzender Anbau
Museum W von Maurice Mentjens
© Arjen Schmitz
Lorem Ipsum: Zwischenüberschrift
Kurz und knapp “Museum W” heißt das städtische Museum im südniederländischen Weert. Jetzt hat der Innenarchitekt Maurice Mentjens das historische Bauwerk umgebaut und um einen Anbau im goldglänzenden Metallkleid ergänzt.


© Arjen Schmitz
Lorem Ipsum: Zwischenüberschrift
Das Bestandsgebäude am Marktplatz der 50 000-Einwohner-Stadt geht auf das 16. Jahrhundert zurück, erhielt sein heutiges Erscheinungsbild aber bei einem Umbau im Neorenaissancestil in den Jahren 1911–1913. Seine Sammlung aus 17 000 Objekten umfasst vor allem Objekte aus der Stadtgeschichte sowohl Kirchenkunst.
Lorem Ipsum: Zwischenüberschrift
Vielleicht war es Letztere, die Mentjens zu seinem Entwurf inspiriert hat: “Museen sind die heiligen Orte unserer modernen säkularisierten Gesellschaft“, sagt der Innenarchitekt über das Projekt. “Und Kunstwerke sind die Reliquien jeder Kultur”.


© Arjen Schmitz
Lorem Ipsum: Zwischenüberschrift
So hat der Anbau, den er am Westende des Museumsbaus ergänzte, auch etwas von einem Reliquienschrein: Hinter großen, aus Kostengründen nicht beweglichen Klappläden öffnen sich geschosshohe Verglasungen, die Tageslichtquelle und Vitrine in einem sind. Zwei der Gebäudeöffnungen sind gar keine Fenster, sondern enthalten große Video-Screens. Für die Fassaden und Läden seines Anbaus wählte Mentjens je 1 mm dicke Bleche aus einer Aluminium-Kupfer-Legierung auf einer Metallunterkonstruktion.


© Arjen Schmitz


© Arjen Schmitz
Lorem Ipsum: Zwischenüberschrift
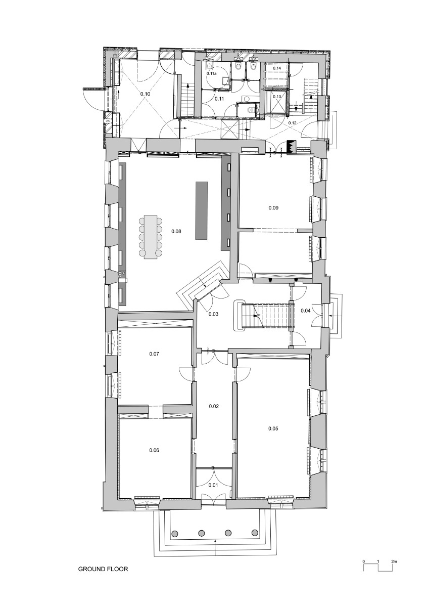
Der neue Gebäudeteil beherbergt Fluchttreppe und Aufzug, Toiletten, Büros, einen Sitzungsraum und einen Abstellraum. Indem diese dienenden Funktionen aus dem Altbau verschwanden und der Haupteingang an die Südseite des goldenen Anbaus verlegt wurde, können in den Erdgeschossräumen nun zusammenhängende Wechselausstellungen eingerichtet werden. Die Räume dort wurden im Zuge der Sanierung in ihren ursprünglichen Zustand zurückversetzt; Wandvertäfelungen in den Fluren sowie die Eichenholzdecke im alten Ratssaal wurden restauriert.


© Arjen Schmitz
Lorem Ipsum: Zwischenüberschrift
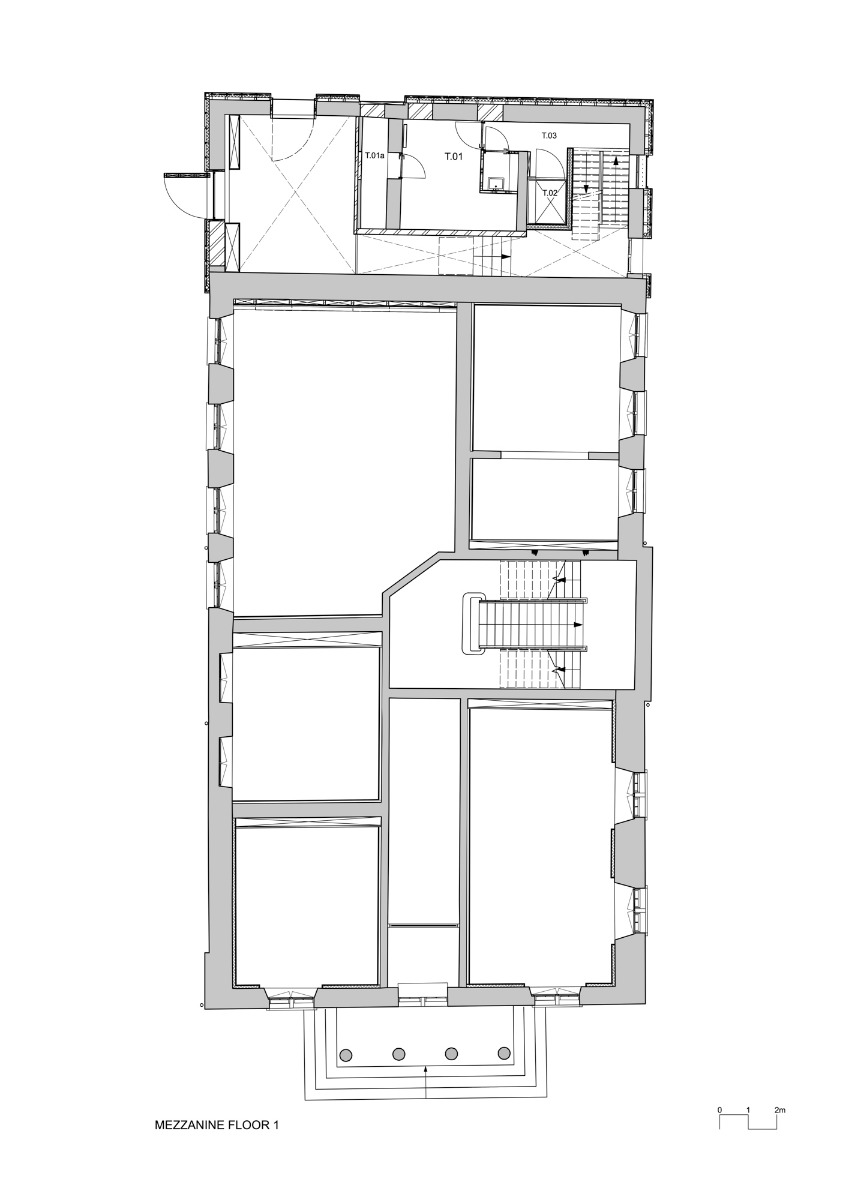
Das erste Obergeschoss und das Dachgeschoss des Gebäudes beherbergen die Sammlungsbestände des Museums W, gegliedert in elf thematische Abschnitte. Ein neuer, diagonal verlaufender Treppenlauf im alten Haupttreppenhaus verbindet die beiden Ebenen miteinander. Unter dem Dach mit seinen charakteristischen, bogenförmigen Holzbindern befinden sich außerdem die Räume der Museumspädagogik.
Architektur: Maurice Mentjens
Bauherr: Gemeinde Weert
Standort: Meikoel 2, 6001 EW Weert (NL)
Tragwerksplanung: Advies- en Ingenieurbureau Van de Laar
TGA-Planung: Huisman en van Muijen
Lichtplanung: Pro-Light
Akustik, Bauphysik, Brandschutz: Peutz
Bauunternehmen: Koppen Bouw




































