Wohnen hinter Ziegelmauerwerk
Reihenhäuser in Malmö
© Markus Linderoth
Auf einem ehemaligen Industrieareal in der Nähe von Malmös Innenstadt hat das schwedische Architekturbüro Förstberg Ling eine Wohnanlage aus drei Reihenhauszeilen realisiert. Das rotbraune Ziegelmauerwerk passt sich an die verbliebenen historischen Backsteinbauten an, die den Charakter des neu entwickelten Stadtviertels Sorgenfri nach wie vor mitbestimmen.


© Markus Linderoth
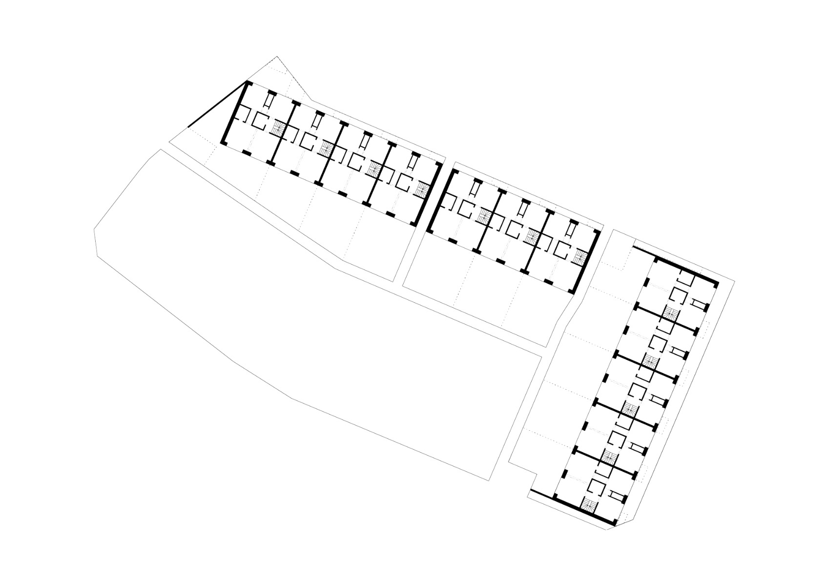
Drei Reihenhauszeilen
Die kompakte L-förmige Bebauung geht auf einen Wettbewerb zurück. Bei dem Verfahren zeichneten Björn Förstberg und Mikael Ling nicht nur für den Entwurf verantwortlich, sondern traten auch als Projektentwickler auf. Ergebnis sind drei schlichte kubische Baukörper mit zwölf ca. 7,30 m breiten aneinandergereihten Wohneinheiten, die sich über jeweils drei Ebenen erstrecken und als Eigentumswohnungen verkauft wurden.


© Markus Linderoth
Fassade
Die regelmäßig angeordneten Fassadenöffnungen haben überall dieselbe Breite und sind auf der Vorder- und Rückseite identisch. Sie erfüllen jedoch unterschiedliche Funktionen: Mal nehmen sie das Garagentor auf, mal ein Fenster, mal verbirgt sich dahinter eine Terrasse.


© Markus Linderoth


© Markus Linderoth
Interior
In den Innenräumen bleibt die Konstruktion aus Brettsperrholz sichtbar, die Oberflächen verleihen ihnen eine wohnliche Atmosphäre. Der warme, rotbraune Farbton des Mauerwerks taucht an Küche, Treppe und Innentüren und einzelnen Wänden wieder auf. Darüber hinaus wird das Material im Bodenbelag der Terrassen wie auch an einzelnen Innenwänden wieder aufgegriffen.
Mehr dazu in Detail 4.2023 und in unserer Datenbank Detail Inspiration.
Architektur: Förstberg Ling
Bauherr: Förstberg Ling
Standort: Malmö (SE)
Tragwerksplanung: Structor, Kvartertet K, Woodcon
TGA-Planung: RSA Ductor
Brandschutzplanung: P&B Brandconsult


















