// Check if the article Layout ?>
Reihung aus Rahmen: Kraftwerk von kadawittfeldarchitektur
Foto: Jens Kirchner
Schon von der Stadt aus ist zu erkennen, dass sich auf der Lausward ein Gebäude dazu gesellt hat. Normalerweise reihen sich hier technische Bauten aneinander. Schornsteine ragen zwischen Lagerhallen und Silotürmen hervor, Schiffscontainer stapeln sich. Man sieht den Bauwerken ihre Funktion an. Doch mitten in diesem Gewimmel hält der schweifende Blick nun an einer der Figuren inne. Wie eine gigantische Raupe aus gestaffelten Gliedern liegt das neue Erdgaskraftwerk der Stadt Düsseldorf vor den anderen Anlagen. Graue Rahmen reihen sich aneinander, den Abschluss bildet der mit Abstand größte von ihnen.
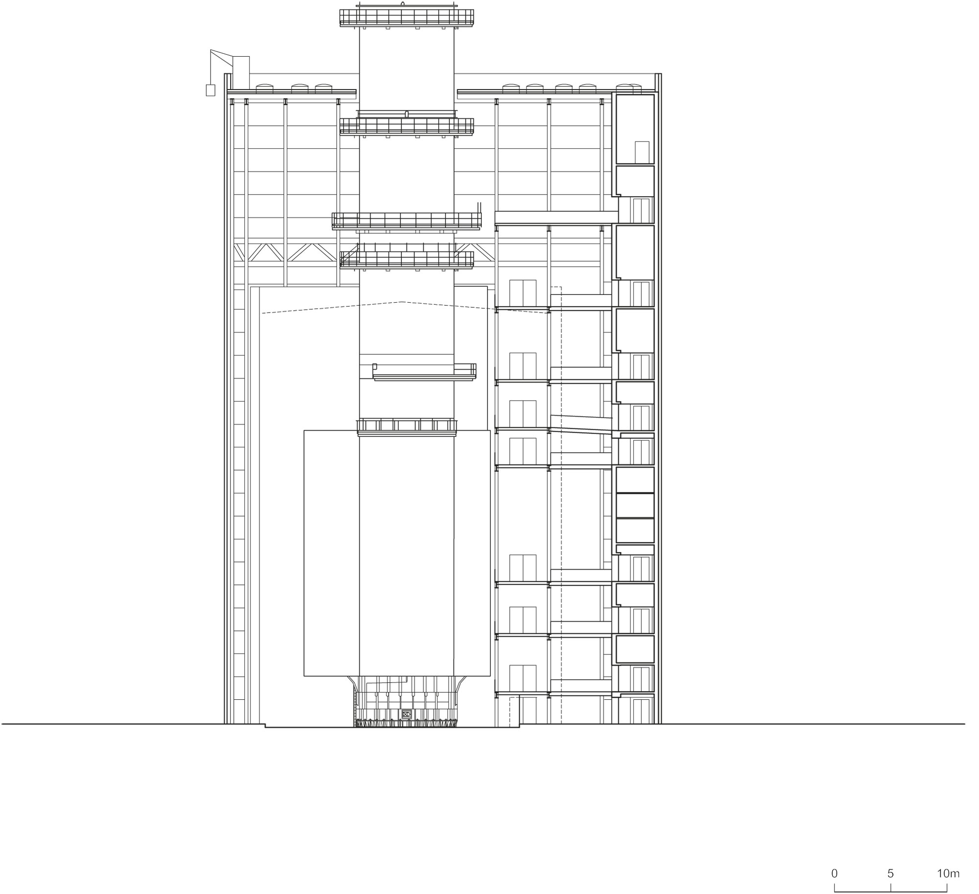
Im Prinzip setzt sich das Gebäude aus drei Hallen zusammen, die sich in der Höhe der Rahmen ablesen lassen. Verbunden durch eine Reihe wesentlich niedrigerer Rahmen und immer wieder unterbrochen durch einzelne, herausragende Elemente ergibt sich eine abwechslungsreiche Kubatur. Aus dem abschließenden Rahmen ragt oben noch etwa drei Meter weit der große Schornstein heraus. Da dieses Element an beiden Seiten vollständig verglast ist, sind die innen liegenden Anlagen zu erkennen. Daran ist abzulesen, dass sich die Größe der Rahmen nicht etwa willkürlich ergibt, sondern einzig von den zu umschließenden technischen Apparaturen vorgegeben wird. Falls sich der Aufbau oder die Größe der Anlage in Zukunft verändern sollte, könnte man dank der Rahmen flexibel darauf reagieren und das Gebäude anpassen, so die Architekten.
Der Eindruck der fragmentierten Hülle wird noch durch die Farbigkeit der Rahmen unterstrichen. Die Außenflächen der Rahmen sind in einem Silberton beschichtet, während die restlichen Flächen mitsamt den breiten Fugen durch eine schwarze Beschichtung in den Hintergrund treten. Bei Nacht kehrt sich dieser Effekt um. Die Fugen sind nur mit einem Lochblech versehen, dahinter liegt eine weiße Schicht. Diese wird bei Dunkelheit mit LED-Leuchten angestrahlt und reflektiert das Licht durch die Löcher nach außen. Eine riesige Lichtskulptur zeugt dann von der dort produzierten Energie.
Für Besucher des Kraftwerks, die eine Führung mitmachen, hält das Gebäude noch eine besondere Überraschung bereit. Das große, verglaste Kopfelement fungiert als Stadtfenster – im wörtlichen Sinne. Von einer Aussichtsplattform in etwa 45 Meter Höhe hat man zur einen Seite durch die Glasfassade Sicht bis nach Köln, nach Norden hin über den Rhein ist Düsseldorf zu sehen. Das Stadtfenster als Anzugspunkt und das auffällige Erscheinungsbild ziehen die Aufmerksamkeit auf sich. So wird das Kraftwerk durch seine Architektur zum Symbol für die klimaschonende Energieversorgung der Stadt Düsseldorf.
Im Prinzip setzt sich das Gebäude aus drei Hallen zusammen, die sich in der Höhe der Rahmen ablesen lassen. Verbunden durch eine Reihe wesentlich niedrigerer Rahmen und immer wieder unterbrochen durch einzelne, herausragende Elemente ergibt sich eine abwechslungsreiche Kubatur. Aus dem abschließenden Rahmen ragt oben noch etwa drei Meter weit der große Schornstein heraus. Da dieses Element an beiden Seiten vollständig verglast ist, sind die innen liegenden Anlagen zu erkennen. Daran ist abzulesen, dass sich die Größe der Rahmen nicht etwa willkürlich ergibt, sondern einzig von den zu umschließenden technischen Apparaturen vorgegeben wird. Falls sich der Aufbau oder die Größe der Anlage in Zukunft verändern sollte, könnte man dank der Rahmen flexibel darauf reagieren und das Gebäude anpassen, so die Architekten.
Der Eindruck der fragmentierten Hülle wird noch durch die Farbigkeit der Rahmen unterstrichen. Die Außenflächen der Rahmen sind in einem Silberton beschichtet, während die restlichen Flächen mitsamt den breiten Fugen durch eine schwarze Beschichtung in den Hintergrund treten. Bei Nacht kehrt sich dieser Effekt um. Die Fugen sind nur mit einem Lochblech versehen, dahinter liegt eine weiße Schicht. Diese wird bei Dunkelheit mit LED-Leuchten angestrahlt und reflektiert das Licht durch die Löcher nach außen. Eine riesige Lichtskulptur zeugt dann von der dort produzierten Energie.
Für Besucher des Kraftwerks, die eine Führung mitmachen, hält das Gebäude noch eine besondere Überraschung bereit. Das große, verglaste Kopfelement fungiert als Stadtfenster – im wörtlichen Sinne. Von einer Aussichtsplattform in etwa 45 Meter Höhe hat man zur einen Seite durch die Glasfassade Sicht bis nach Köln, nach Norden hin über den Rhein ist Düsseldorf zu sehen. Das Stadtfenster als Anzugspunkt und das auffällige Erscheinungsbild ziehen die Aufmerksamkeit auf sich. So wird das Kraftwerk durch seine Architektur zum Symbol für die klimaschonende Energieversorgung der Stadt Düsseldorf.
Weitere Informationen:
Mitarbeiter: Burkhard Floors, Hagen Urban, Mathias Garanin, Jonas Kröber, Christoph Katzer, David Baros, Hanns Luh, Florian Graus, Marc Bennemann, Andreas Horsky, Vera Huhn, Michael Wettstein, Frank Berners, Astrid Dierkes, Julika Metz
Wettbewerb: 1. Preis 2012
Baukosten: Gesamtes Kraftwerk 500 Mio. €
BGF Stadtfenster mit Besucherplattform: 1.620 m²
Fassadenfläche gesamt: ca. 24.000 m²
Glasfassade Stadtfenster: 2.700 m²
Wettbewerb: 1. Preis 2012
Baukosten: Gesamtes Kraftwerk 500 Mio. €
BGF Stadtfenster mit Besucherplattform: 1.620 m²
Fassadenfläche gesamt: ca. 24.000 m²
Glasfassade Stadtfenster: 2.700 m²













