Auf historischem Sockel
Renovierung eines Ferienhauses von Raffaele Cammarata
Renovierung eines Ferienhauses am Luganer See, © Simone Bossi
Am Luganer See verhilft Raffaele Cammarata Architetto einem Ferienhaus aus den 1950er-Jahren zu neuem Glanz. Die Renovierung stellt eine gelungene Synthese zwischen Alt und Neu dar.


Das Gebäude ist von der Straße aus kaum sichtbar. © Simone Bossi
Schutz und Verbindung
Das bestehende Gebäude befindet sich am Ufer des Luganer Sees zwischen Wäldern und einem Hügel. Die vorgefunden Gebäudekörper waren zum einen ein räumlich sehr begrenztes Ferienhaus, zum anderen ein Bootsanleger mit Garage. Raffaele Cammarata Architetto konzipieren eine Betonmauer, die beide Gebäude zu einer Einheit verbindet und gleichzeitig einen Sichtschutz zur anliegenden Straße ausbildet. Entlang der Mauer geleiten mehrere Rampen die Besucher vom Parkplatz zum See.
Optimale Raumnutzung
Das Ferienhaus ist als eine Raumfolge gestaltet, die den geringen Platzbedarf optimal nutzt. Durch die in Reihe angeordneten Räume hat jeder Raum einen direkten Blick auf den See. Neben einem Schlaf- und Badezimmer verfügt das Ferienhaus über ein Wohnzimmer mit Küche und anliegender Veranda.


Alle Räume verfügen über einen direkten Blick auf den Luganer See. © Simone Bossi
Ortstypische Merkmale
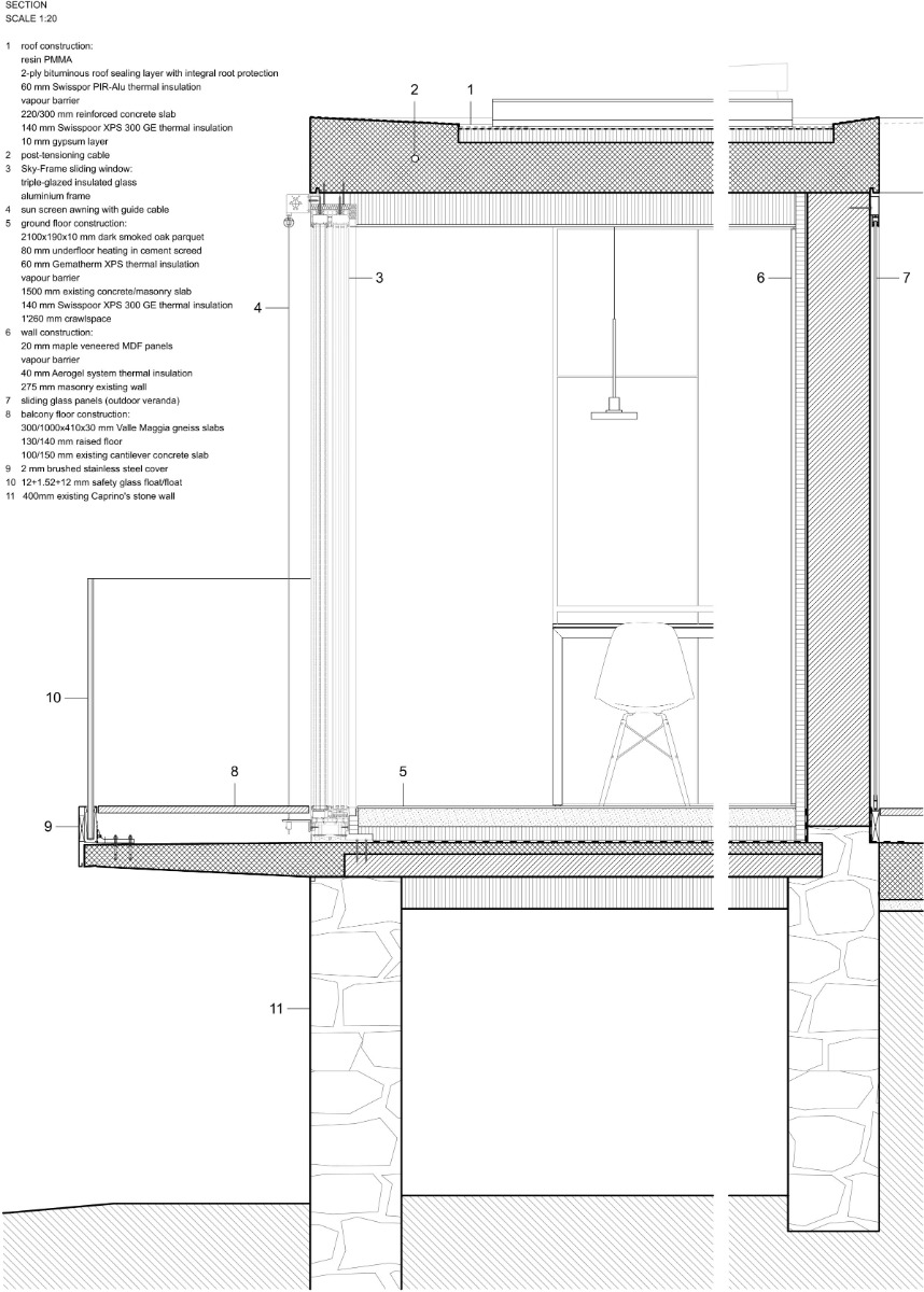
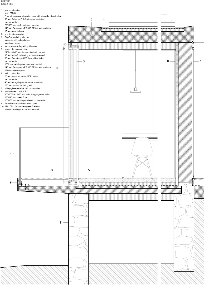
Bei der Umgestaltung legte Raffaele Cammarata großen Wert auf den Erhalt der ortstypischen Merkmale des Hauses. Ein unverkennbares Merkmal bildet der Steinsockel. Die aus einem am See gelegenen Steinbruch gewonnenen Steine sind heute nicht mehr verfügbar und sollen im Zuge der Restaurierung wieder hervorgehoben werden. Die in Ergänzung verwendeten Baumaterialien, wie Holz und Beton, stärken die Verbindung zum See und seiner Umgebung zusätzlich.


Alle Innenausbauten bestehen aus Holz. © Simone Bossi
Das Projekt spiegelt in beispielhafter Weise den Ansatz des Ateliers wider, Architektur zu schaffen, die ortsbezogen und nachhaltig ist und die Bedürfnisse derjenigen befriedigt, die in dem gebauten Raum leben werden.
Architektur: Raffaele Cammarata Architetto
Standort: Montagnola (CH)
Tragwerksplanung: Pianifica
Landschaftsarchitektur: Giorgio Aeberli
HLS-Planung: Rigozzi Engineering
Elektroplanung: SPED


















