Forschungs- und Entwicklungszentrum
Ressourcenschonender Umbau
Praksis Arkitekter haben eine 30 Jahre alte Lagerhalle aus Holz zum Forschungs- und Entwicklungzentrum von Velux umgebaut. © Adam Mørk
Wie wird aus einer Lagerhalle ein zeitgemäßes, modernes Arbeitsumfeld? „Wir suchen immer nach der Koexistenz von Alt und Neu.“, fasst die Architektin Mette Tony von Praksis Arkitekter das Planungskonzept kurz zusammen.


Unter dem Dach des LKR Innovation House sind Büros, Forschungslabore und Werkstätten für die Produktentwicklung vereint. © Adam Mørk
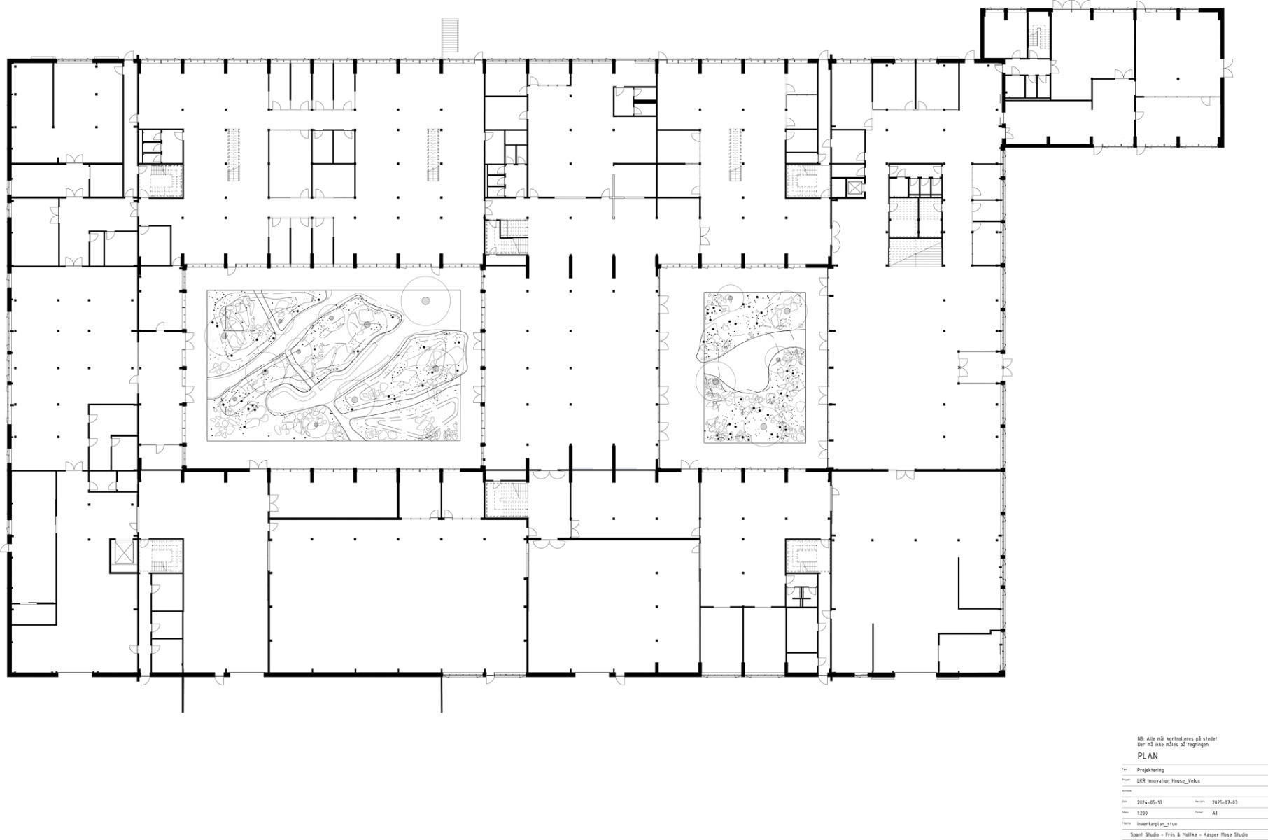
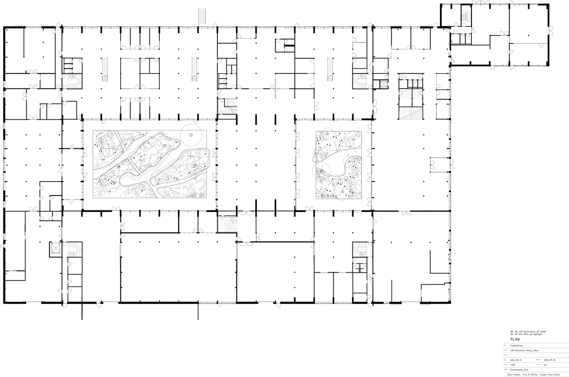
Im neuen Velux LKR Innovation House im dänischen Østbirk tüfteln rund 500 Beschäftigte an künftigen Dachfenstern, Zubehör und Produkten, die darüber hinausgehen. Das Kürzel LKR steht für Lars Kann-Rasmussen, den Sohn des Gründers und ehemaliger Vorstandsvorsitzender der Velux Gruppe. Auf seine Initiative hin war vor 30 Jahren die 9500 m2 große Lagerhalle aus Holz entstanden, die kürzlich renoviert, umgebaut und um 4500 m² erweitert wurde.


In Teilen des Gebäudes wurde eine zweite Ebene eingezogen und so die Nutzfläche von 9.500 m² auf 14 000 m² erhöht. © Adam Mørk
Koexistenz von Alt und Neu
Dem Bauherrn und den Planenden war es ein Anliegen, einen Großteil der ursprünglichen Materialien wiederzuverwenden oder umzunutzen. Die Bodenplatte aus Beton, die hölzernen Dachkonstruktionen, tragende Brettschichtholzbalken und Innenwände aus Beton sowie die Holzfassaden gehörten dazu. Im Vergleich mit einem Neubau sparte Velux auf diese Weise etwa 4476 t, das entspricht rund 55 % des Materials. Das Haus hat einen CO2-Fußabdruck von 4,6 kg CO2e/m²/Jahr. Dieser liegt deutlich unter dem vergleichbarer Gebäude in Dänemark und unter dem ab 2029 dort geltenden Grenzwert von 6,1 kg CO2e/m²/Jahr.


Das Foyer dient als Empfangsbereich, Lounge, für Ausstellungen oder als Showroom. Wie alle Räume ist es tageslichtdurchflutet und bietet den direkten Zugang zur Natur. © Adam Mørk
Dachfenster-Landschaft
Zum Planungskonzept gehören viel Licht und Naturnähe. Für mehr Tageslicht im Inneren und Blickverbindungen auch nach außen wurden in den geschlossenen Baukörper das Lagers zwei Atrien eingeschnitten und begrünt. Eine weitere Veränderung betraf die Dachlandschaft: Rund 400 Velux-Dachfenster versorgen die Labore, Büros und Werkstätten mit Tageslicht und Frischluft. Im Einsatz sind 387 elektrisch betriebene Schwingfenster, zwei Ausstiegsfenster mit Türfunktion für den Handwerkerausstieg auf das Dach und 26 Modular Skylights, alle 3-fach-verglast. Sämtliche Dachfenster sind mit außen liegenden Hitzeschutz-Markisen ausgestattet. Die Modular Skylights erhielten innen liegende Sonnenschutz-Rollos.


387 Schwingfenster, zwei Ausstiegsfenster mit Türfunktion und 26 Modular Skylights im Dach sorgen für lichtdurchflutete Räume. © Adam Mørk
Adaptive Klimaanpassung
Das adaptive Klimakonzept berücksichtigt den Einfluss des Außenklimas auf den Innenraumkomfort. Es wird davon ausgegangen, dass sich Menschen an unterschiedliche Temperaturen im Laufe des Jahres anpassen und selbst Einfluss auf das Raumklima nehmen. Das Modell wird häufig zur Bewertung natürlich belüfteter Gebäude verwendet. Das LKR Innovation House ist in Kategorie 2 eingestuft. HK
Architektur: Praksis Arkitekter
Bauherr: Velux Gruppe
Standort: Ryvej 37, 8752 Østbirk, Dänemark
Bauzeit: 02.2023 – 05.2025
Kategorie: Umbau, Sanierung, Erweiterung
Hersteller: Velux
Produkt: Dachfenster













