// Check if the article Layout ?>
Rien ne va plus: Multifunktionsbau in La Seyne-sur-Mer
Foto: Javier Callejas
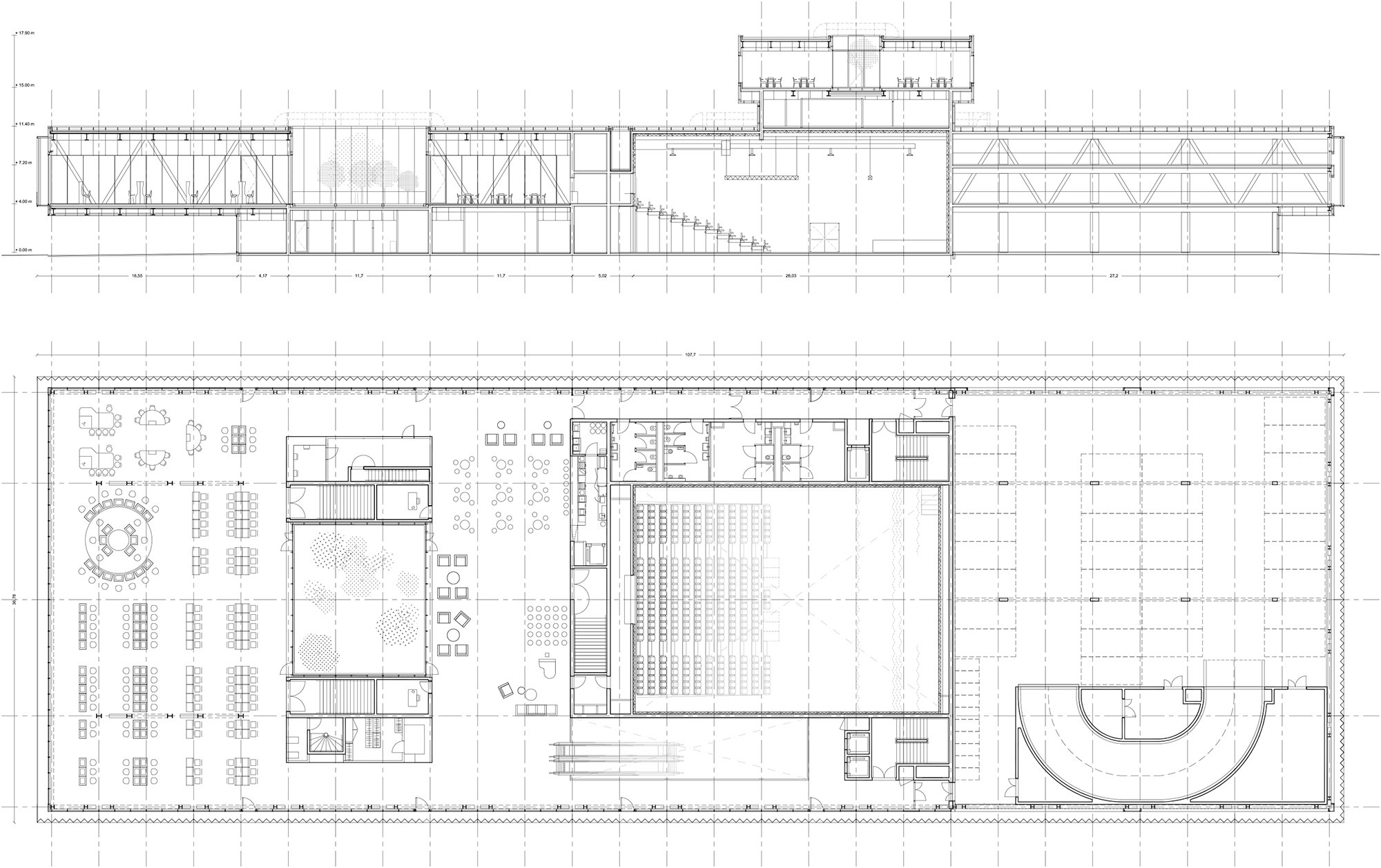
DATA Architectes realisieren im Hafen von La Seyne-sur-Mer den gewaltigen, multifunktionalen Bau. Direkt am Wasser finden in ihm mit Casino, Theater, Restaurant und Bars sowohl Freizeitgestaltung als auch Kultur ein wirkungsvolles Ambiente.
Das Gebäude beruht auf einem rechteckigen Grundprinzip, das sich perfekt in die geradlinig organisierte Hafenlandschaft einfügt. Die Intention der Architekten, mit der Form des Baus an ein vor Anker liegendes Schiff zu erinnern, scheint gelungen. Verstärkt wird der Eindruck durch den »Aussichtsturm«, einer kleinen aufgesetzten Box, die wie die Brücke eines Dampfers anmutet.
Das Casino hat im Vergleich zu seiner geringen Höhe eine enorme Flächenausdehnung, was den monolithischen Charakter des Baus unterstützt. Konstruktionselemente besitzen neben statischer zugleich optische Wirkung. Konstruktiv gesehen handelt es sich bei dem Zweigeschosser um ein Stahlrahmenfachwerk in Kombination mit Stahlbetonelementen. Das Erdgeschoss wirkt wie ein Sockel aus Aluminium und Glas, zurückhaltend im Vergleich zu dem darüberliegenden Teil. Dieser ist höher und kragt Richtung Kai hin mächtig aus, zusätzlich gibt es einzelne Lichthöfe. Die V-Träger aus Stahl an den Längsseiten des Obergeschosses bleiben nach innen hin sichtbar. Als Außenhülle sind perforierte Metallelemente angebracht. Gen Meer bleibt das Glas unverkleidet und ermöglicht einen ungehinderten Ausblick auf das umliegende Hafengelände.
An der Westseite gibt es einen gepflasterten Vorplatz, von dem her das Gebäude erschlossen wird. Im Erdgeschoss liegt hier der Eingang. Sämtliche Innenräume sind rund um das zentrale Herzstück angeordnet: das Theater. Ganz in Beton bildet es einen Kern, der die unterschiedlichen Bereiche des Baus auf den verschiedenen Ebenen organisiert und verbindet. Das Eingangslevel beherbergt neben dem Entrée auch administrative Räumlichkeiten, Büros und Ausstellungsflächen. Darüber befindet sich das Casino, das Richtung Wasser, also nach Norden ausgerichtet ist. Seine großzügige Gestaltung auf über 1000 Quadratmetern lässt Spielerherzen höher schlagen. Parkmöglichkeiten gibt es ebenfalls, im südlichen Teil. Abgerundet wird das Raumprogramm durch ein Restaurant im aufgesetzten Kubus, in dem man bei herrlichem 360-Grad-Panorama speisen kann.
Weitere Informationen:
Team: Léonard Lassagne, Colin Reynier, Sylvia Bourgoin, Raphaël Boursier, Clementine Debaere, Edouard Guyard, Eva Salga
Interior Design: Virginie Curtillet (Studio Divo)
Interior Design: Virginie Curtillet (Studio Divo)

















