// Check if the article Layout ?>
Rostiger Ruhepol: Büro- und Betriebsgebäude in Schweinfurt
Foto: Stefan Meyer
Sinnbildhaft fügt sich die robuste Hülle mit ihren vier Millimeter dicken Cortenstahlplatten in den Kreislauf des Rohstoffhandels ein. Der hier angenommene Metallschrott wird gründlich sortiert, aufbereitet und zur Weiterverarbeitung an Stahlwerke sowie an Gießereien abgegeben. Figurativ ordnet sich der selbstbewusste Neubau den umliegenden Blechhallen und Metallbergen unter. Auch die kreisrunde Perforierung mit den vier kleinen Zacken, greift visuell das Motiv der angelieferten Stanzabfälle aus der Automobilindustrie auf.
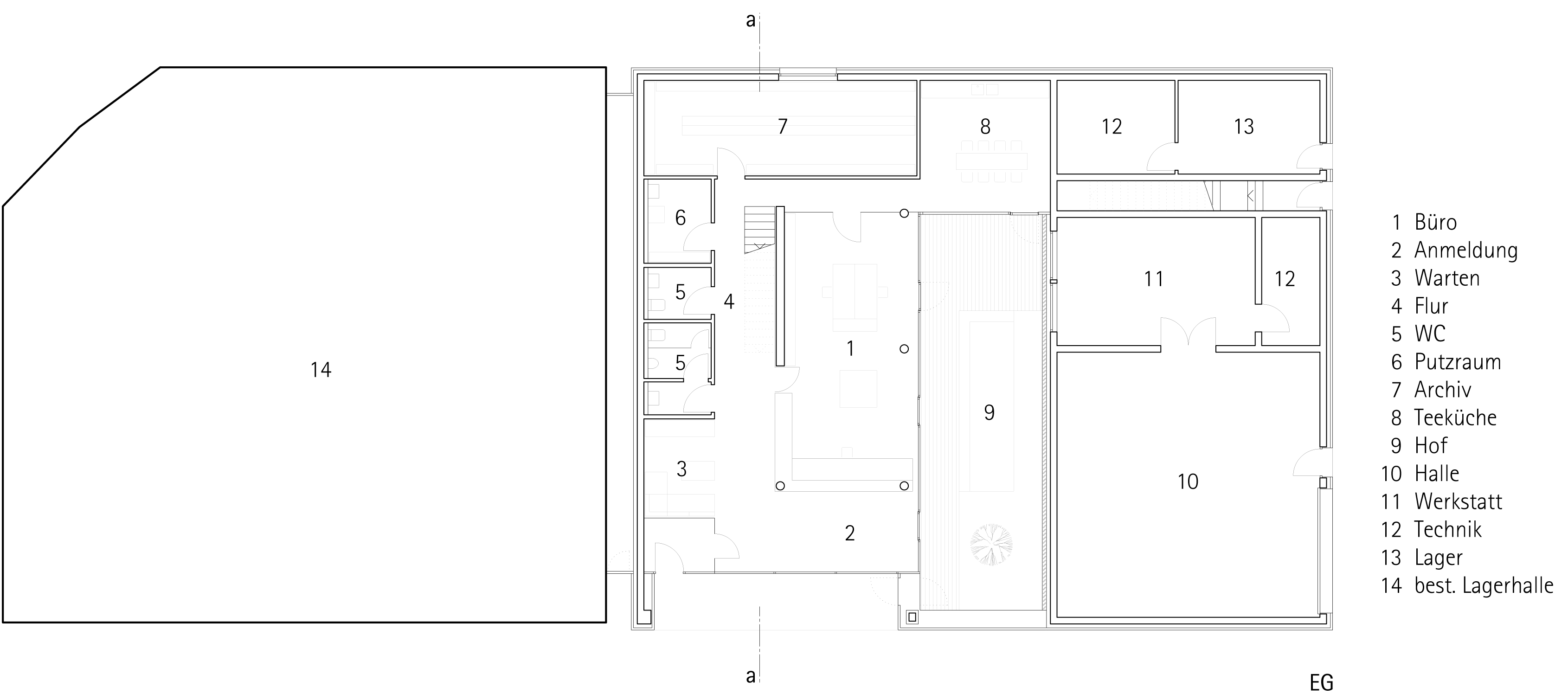
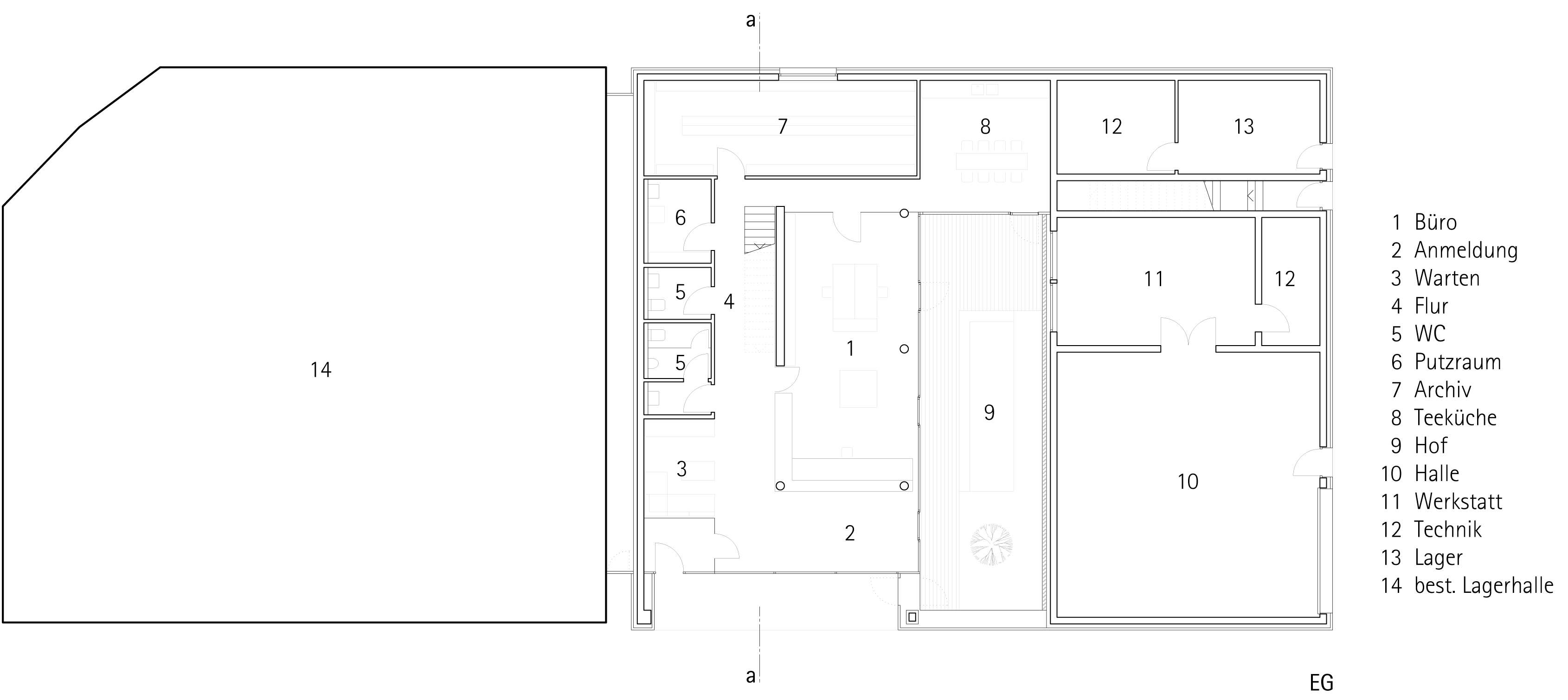
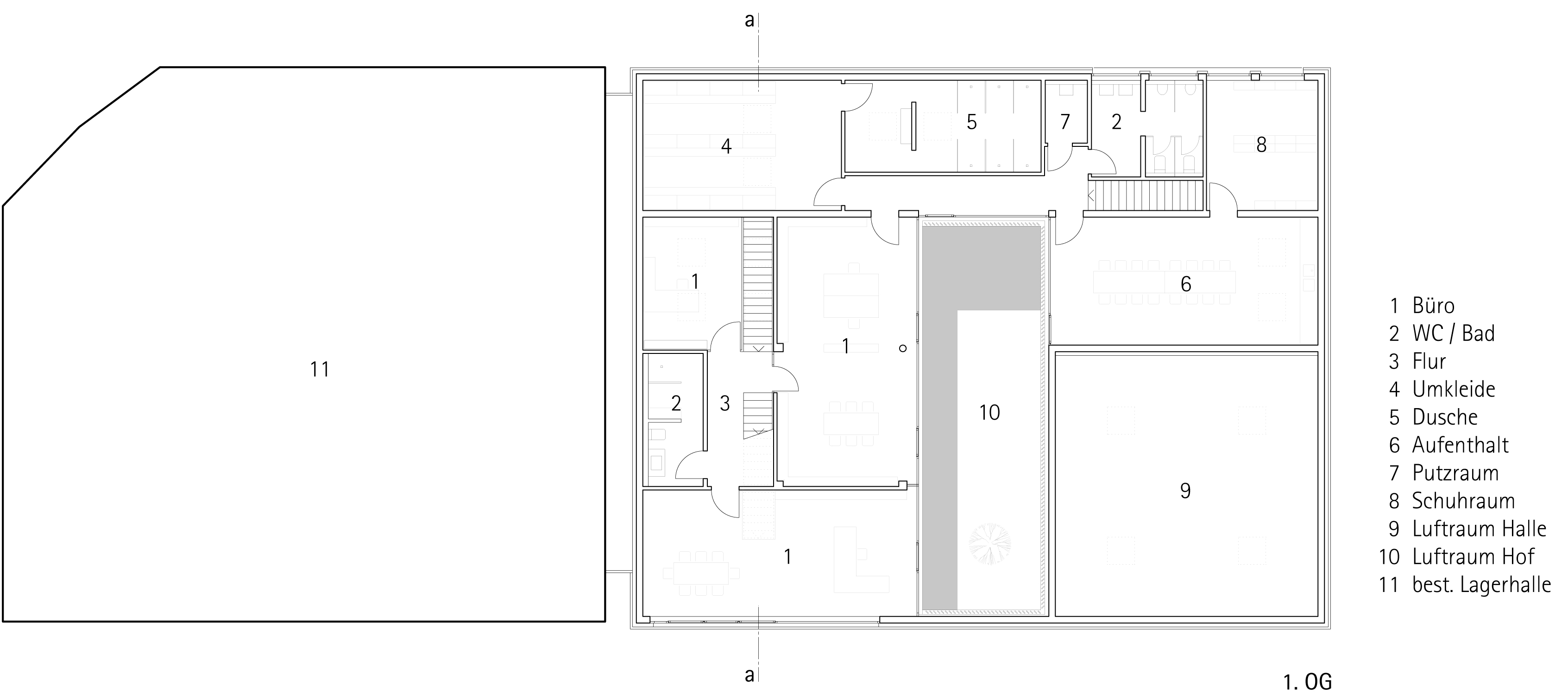
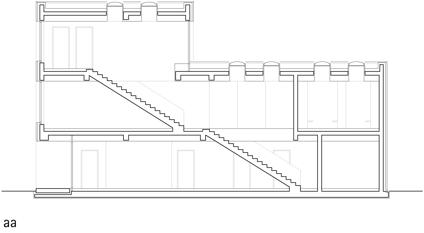
Hinter der mit höchsten lärmschutztechnischen Maßnahmen versehenen, rostigen Stahlfassade wird nun auch architektonisch, durch zweifach verglaste Innenseiten, das offene Miteinander sowie die enge Verbundenheit der vierköpfigen Familie mit ihren langjährigen Mitarbeitern spür- und sichtbar. Früher, in der alten Werkhalle aus den 60er-Jahren, war es im Winter eiskalt, im Sommer brühend heiß und teilweise war das lärmende Treiben nur mit Ohrschutz zu ertragen. Heute orientieren sich alle Büro- und Aufenthaltsräume um das Herzstück des kompakten Büro- und Betriebsgebäudes, einem Zen-Garten ähnelnden Patio: Kies, Lärchenholzlamellen und das bepflanzte Hochbeet mit Sitzbank laden nun an warmen Tagen zum Verweilen und Pausieren ein. Helle, freundliche Materialien in Kombination mit raumhohen Fenstern gewährleisten fortlaufende Blickbeziehungen zwischen den Arbeits- und Aufenthaltsbereichen. Vater Heinlein kann sogar von seinem Schreibtisch aus durch ein großes Panoramafenster beobachten, was im Verarbeitungsbereich abläuft. Das gläserne Innere vereint somit die persönliche und kommunikative Zusammenarbeit sowohl auf dem Betriebshof als auch im Gebäude selbst. Ebenerdig befinden sich neben dem Büro die Anmeldung, die Werkstatt mit angrenzender, zweigeschossiger Halle und eine Teeküche. Die Umkleiden, Sanitärbereiche und ein Aufenthaltsraum für die Bagger- und LKW-Fahrer sind im Obergeschoss untergebracht. Der krönende Besprechungsraum mit begehbarem Dach, bietet einen dreiseitigen Ausblick über das Schweinfurter Industriegebiet sowie das Hafenbecken des Mains.
Nicht ohne Grund wurde das neue Büro- und Betriebsgebäude in Schweinfurt direkt mit dem BDA-Preis Bayern ausgezeichnet: Dank der engen Kooperation zwischen Bauherren und Architekten reflektiert diese Auszeichnung sowohl das vorherrschende Arbeitsklima wie auch sein Umfeld bestens. Sollte in einigen Jahren der Wunsch nach Veränderung aufkommen, könnte man laut der Familie zumindest die Hülle des Gebäudes direkt vor Ort selbst verwerten.
Hinter der mit höchsten lärmschutztechnischen Maßnahmen versehenen, rostigen Stahlfassade wird nun auch architektonisch, durch zweifach verglaste Innenseiten, das offene Miteinander sowie die enge Verbundenheit der vierköpfigen Familie mit ihren langjährigen Mitarbeitern spür- und sichtbar. Früher, in der alten Werkhalle aus den 60er-Jahren, war es im Winter eiskalt, im Sommer brühend heiß und teilweise war das lärmende Treiben nur mit Ohrschutz zu ertragen. Heute orientieren sich alle Büro- und Aufenthaltsräume um das Herzstück des kompakten Büro- und Betriebsgebäudes, einem Zen-Garten ähnelnden Patio: Kies, Lärchenholzlamellen und das bepflanzte Hochbeet mit Sitzbank laden nun an warmen Tagen zum Verweilen und Pausieren ein. Helle, freundliche Materialien in Kombination mit raumhohen Fenstern gewährleisten fortlaufende Blickbeziehungen zwischen den Arbeits- und Aufenthaltsbereichen. Vater Heinlein kann sogar von seinem Schreibtisch aus durch ein großes Panoramafenster beobachten, was im Verarbeitungsbereich abläuft. Das gläserne Innere vereint somit die persönliche und kommunikative Zusammenarbeit sowohl auf dem Betriebshof als auch im Gebäude selbst. Ebenerdig befinden sich neben dem Büro die Anmeldung, die Werkstatt mit angrenzender, zweigeschossiger Halle und eine Teeküche. Die Umkleiden, Sanitärbereiche und ein Aufenthaltsraum für die Bagger- und LKW-Fahrer sind im Obergeschoss untergebracht. Der krönende Besprechungsraum mit begehbarem Dach, bietet einen dreiseitigen Ausblick über das Schweinfurter Industriegebiet sowie das Hafenbecken des Mains.
Nicht ohne Grund wurde das neue Büro- und Betriebsgebäude in Schweinfurt direkt mit dem BDA-Preis Bayern ausgezeichnet: Dank der engen Kooperation zwischen Bauherren und Architekten reflektiert diese Auszeichnung sowohl das vorherrschende Arbeitsklima wie auch sein Umfeld bestens. Sollte in einigen Jahren der Wunsch nach Veränderung aufkommen, könnte man laut der Familie zumindest die Hülle des Gebäudes direkt vor Ort selbst verwerten.
Weitere Informationen:
Fertiggestellt: 2015
Fotograf: Stefan Meyer Berlin/ Nürnberg
Fertiggestellt: 2015
Fotograf: Stefan Meyer Berlin/ Nürnberg















