Roter Kupfervorhang: Haus der Kindheit von Tectoniques
Foto: Renaud Araud
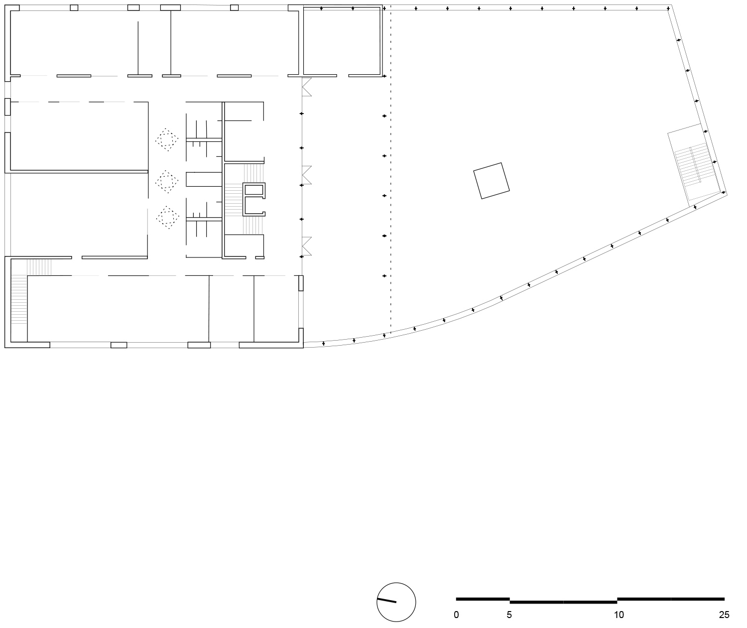
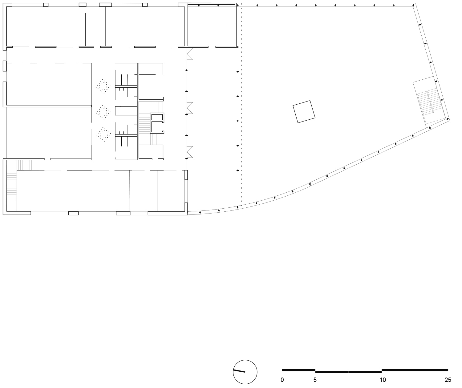
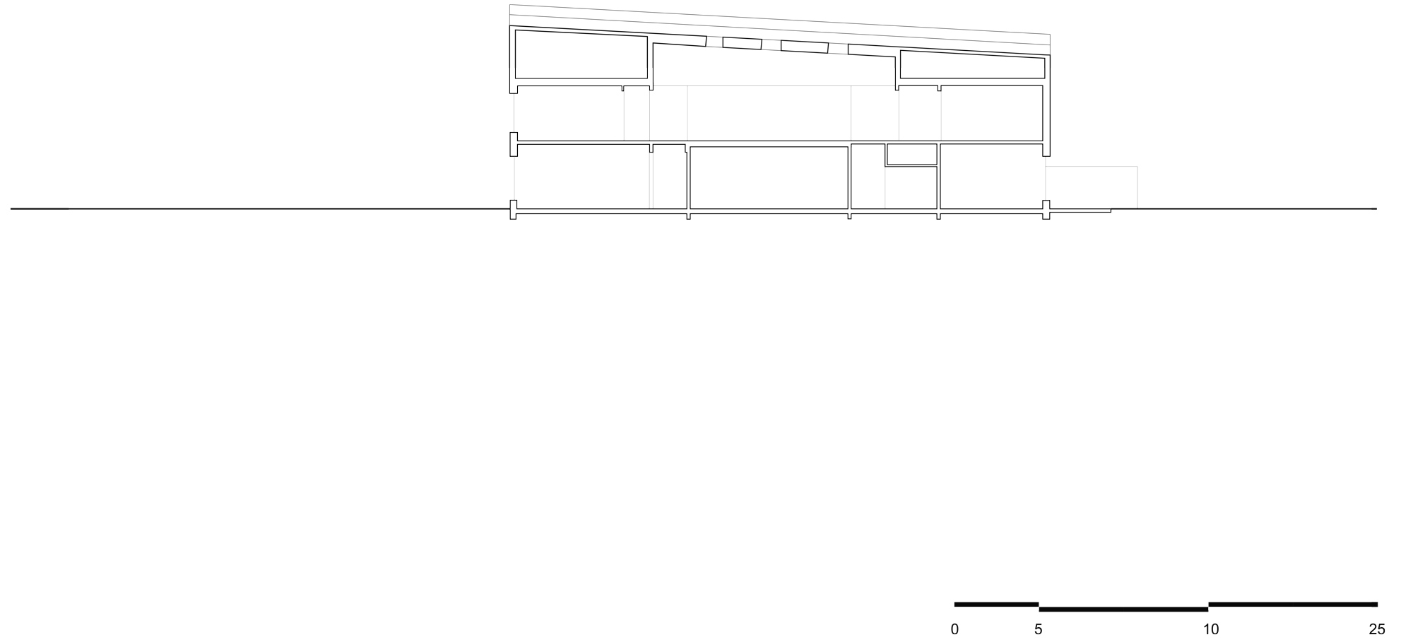
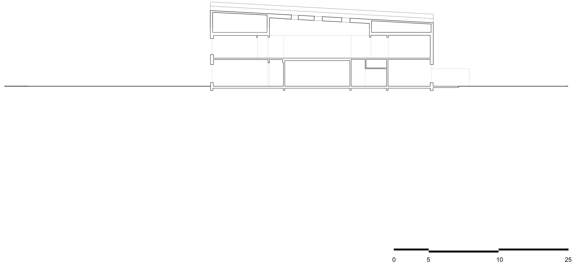
Die Architekten positionieren den Neubau am Nordrand des Grundstücks. Von den insgesamt 6.000 m2 Fläche bebauen sie nur ein Drittel, der Rest ergänzt das Programm als grüner Außenraum. An der Südseite läuft der rechteckige Grundriss leicht keilförmig zusammen und verleiht dem Volumen eine gewisse Dynamik. Das Tragsystem beruht auf einem Mix aus Beton, Holz und Metall. Diese Materialien stellen aus technischer und nachhaltiger Sicht die beste Wahl dar. Beton sorgt für einen stabilen Kern, rundherum kommt eine KLH-Konstruktion aus regionalem Holz zum Einsatz. Den Abschluss bildet eine leichte Metallhülle. Vorgefertigte Elemente ermöglichen eine kurze Bauzeit von lediglich 13 Monaten.
Auch optisch scheint sich das Kinderhaus aus mehreren Komponenten zusammenzusetzen. Während die Fassaden des Sockelbereichs in glattem Sichtbeton und gebeizter Douglastanne gestaltet sind, legt sich um die darüberliegenden Ansichten ein leichter Vorhang aus perforierten Kupferblechen. Mit ihrer rötlichen Färbung, der vertikalen Riffelung und der leichten Transparenz verleihen sie dem Gebäude sein charakteristisches Äußeres. Im oberen Stockwerk des südlichen Teils umgrenzen die Metallelemente außerdem einen großen Freibereich, in dem sich die Kinder in einem geschütztem Rahmen austoben können. An manchen Stellen kragt das Volumen leicht über die Basis aus und kreiert so überdachte Eingangssituationen.
Im Inneren befinden sich auf insgesamt 4.500 m2 unterschiedliche Einrichtungen, die alle den Kindern gewidmet sind. Es gibt unter anderem eine Familien- und eine Kindertagesstätte, ein Freizeitzentrum und ein Schulrestaurant. Die Grundrisse sind durchgehend offen und flexibel gestaltet, um die kleinen Nutzer zum selbstständigen Entdecken zu animieren. Beim Design stehen Nutzungskomfort und Sicherheit an oberster Stelle. Viel Holz, maßgeschneiderte Einbauten und Möbel sowie farbige Akzente – von sonnigem Gelb in den Umkleiden bis hin zu einem kräftigem Blau in den Nasszellen – schaffen eine kindgerechte Umgebung. Reichlich Tageslicht und luftige Raumhöhen von 3,50 m verleihen den Räumlichkeiten eine freundliche Atmosphäre. Durch das Energiekonzept mit Biomasseheizung und einer adiabaten Gebäudekühlung unterstreichen die Planer von Tectoniques den nachhaltigen Ansatz des Kinderhauses und runden das Projekt harmonisch ab.



















