// Check if the article Layout ?>
Rückzug ins Schneckenhaus: Wohngebäude in Estoril
Foto: Francisco Nogueira
Nur eine halbe Zugstunde fährt man von Lissabon in den Küstenort Estoril – kein Wunder also, dass dieser schon seit über hundert Jahren zu den beliebtesten Seebädern der Hauptstadtbevölkerung zählt. Früher leuchteten hier an der Küste zahlreiche Leuchttürme den heimkehrenden Seefahrern den Weg nach Lissabon. Und auch das Haus, das António Costa Lima in einem zentrumsnahen Wohnviertel von Estoril errichtet hat, hat mit Heimkehr zu tun: Die Bauherrenfamilie ist in den letzten Jahren viel in der Welt herumgekommen und suchte nun nach einem ruhigen, aber hauptstadtnahen Wohnsitz auf Dauer.
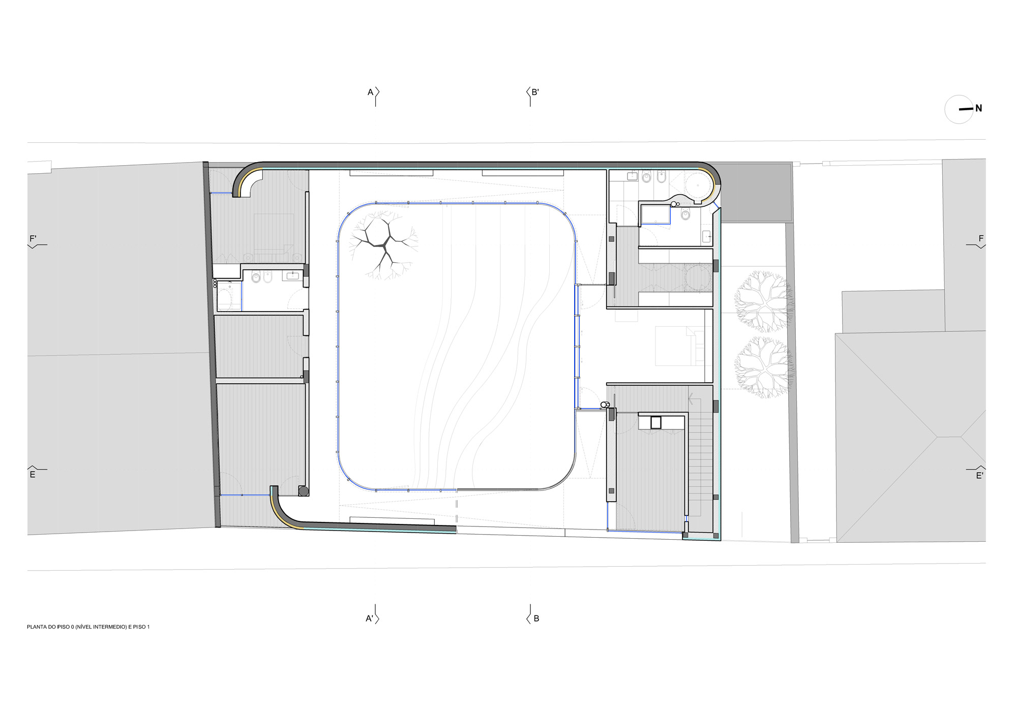
Die Grundstücke in der Nachbarschaft sind eher klein und die Gärten entsprechend sparsam bemessen. Um dennoch ein Maximum aus der zur Verfügung stehenden Grundstücksfläche herauszuholen, verlegte Costa Lima die Baumasse an die Peripherie der Parzelle und schuf in deren Mitte einen introvertierten Gartenhof. Im Süden schließt das Haus direkt an die Brandwand des Nachbargebäudes an, im Norden hält es etwas mehr Abstand. Die beiden an schmalen, orthogonal zum Meer verlaufenden Wohnstraßen gelegenen Längsfassaden sind fast fensterlos. An beiden erhebt sich über einer Grundmauer aus Sichtbeton eine weiße, skulpturale Rampenspirale, die alle Räume des Hauses miteinander verbindet.
Erschließungsprinzip und Formensprache des Hauses sind sichtlich von Álvaro Siza inspiriert. Der portugiesische Pritzker-Preisträger hat ähnliche Rampen in zahlreichen seiner Gebäude verwendet – am eindrucksvollsten wohl im Museum der Ibere-Camargo-Stiftung in Porto Alegre, wo die im Zickzack geführte Rampe dem Hauptgebäude als Sequenz frei auskragender Betonbügel vorgelagert ist.
Anders als dort sind die Rampen beim Haus in Estoril nicht ringsum geschlossen, sondern zum Gartenhof hin verglast oder komplett geöffnet. Die Wohnräume verteilen sich auf zwei Gebäudeflügel, die orthogonal zur Straße angeordnet sind: Im Süden liegen übereinander die Garage und die Kinderzimmer. Im Norden nimmt ein langgestreckter Raum mit Küche, Ess- und Wohnbereich das Erdgeschoss ein, darüber liegen das Elternschlafzimmer mit Ankleide und Bad sowie ein Arbeitszimmer. Ganz oben endet die Schneckenhausspirale in einer Dachterrasse.
Die Grundstücke in der Nachbarschaft sind eher klein und die Gärten entsprechend sparsam bemessen. Um dennoch ein Maximum aus der zur Verfügung stehenden Grundstücksfläche herauszuholen, verlegte Costa Lima die Baumasse an die Peripherie der Parzelle und schuf in deren Mitte einen introvertierten Gartenhof. Im Süden schließt das Haus direkt an die Brandwand des Nachbargebäudes an, im Norden hält es etwas mehr Abstand. Die beiden an schmalen, orthogonal zum Meer verlaufenden Wohnstraßen gelegenen Längsfassaden sind fast fensterlos. An beiden erhebt sich über einer Grundmauer aus Sichtbeton eine weiße, skulpturale Rampenspirale, die alle Räume des Hauses miteinander verbindet.
Erschließungsprinzip und Formensprache des Hauses sind sichtlich von Álvaro Siza inspiriert. Der portugiesische Pritzker-Preisträger hat ähnliche Rampen in zahlreichen seiner Gebäude verwendet – am eindrucksvollsten wohl im Museum der Ibere-Camargo-Stiftung in Porto Alegre, wo die im Zickzack geführte Rampe dem Hauptgebäude als Sequenz frei auskragender Betonbügel vorgelagert ist.
Anders als dort sind die Rampen beim Haus in Estoril nicht ringsum geschlossen, sondern zum Gartenhof hin verglast oder komplett geöffnet. Die Wohnräume verteilen sich auf zwei Gebäudeflügel, die orthogonal zur Straße angeordnet sind: Im Süden liegen übereinander die Garage und die Kinderzimmer. Im Norden nimmt ein langgestreckter Raum mit Küche, Ess- und Wohnbereich das Erdgeschoss ein, darüber liegen das Elternschlafzimmer mit Ankleide und Bad sowie ein Arbeitszimmer. Ganz oben endet die Schneckenhausspirale in einer Dachterrasse.


























