Urbanes Wohnen und Arbeiten
Saniertes Wohnhaus von Jonathan Tuckey Design
© Nick Dearden
Lorem Ipsum: Zwischenüberschrift
Mit der Urban Barn verwandelt das britische Büro Jonathan Tuckey Design in London eine ehemalige Tischlerei, ein Haupthaus und drei Garagen in ein charmantes Wohnhaus mit Atelier. In einer dichtbebauten Straße der britischen Metropole gelegen, fügt sich das Projekt zwischen typisch viktorianische Cottages mit Backsteinmauern ein. Bis heute zeugen Spuren von Bombeneinschlägen in dem ehemaligen Industriegebiet vom Zweiten Weltkrieg.


© Nick Dearden
Lorem Ipsum: Zwischenüberschrift
Die Architekten revitalisieren die Volumen, verbinden sie und kombinieren so Wohnen und kreative Werkstatt unter einem Dach. Eine neue Ziegelfassade fasst die Gebäudeteile nicht nur einheitlich zusammen, sondern bettet die Urban Barn auch harmonisch in die Wohngegend ein und schafft einen geschützten Rückzugsort für die Bewohner.
Lorem Ipsum: Zwischenüberschrift
Am Mauerwerk lassen sich dank unterschiedlicher Verbände die einzelnen Trakte, aus denen das Haus besteht, ablesen: An manchen Stellen legen sich die handgefertigten Steine nahtlos aneinander, an anderen wirken sie perforiert ausgeführt wie leichte Vorhänge oder sind stehend verlegt.


© Nick Dearden
Lorem Ipsum: Zwischenüberschrift
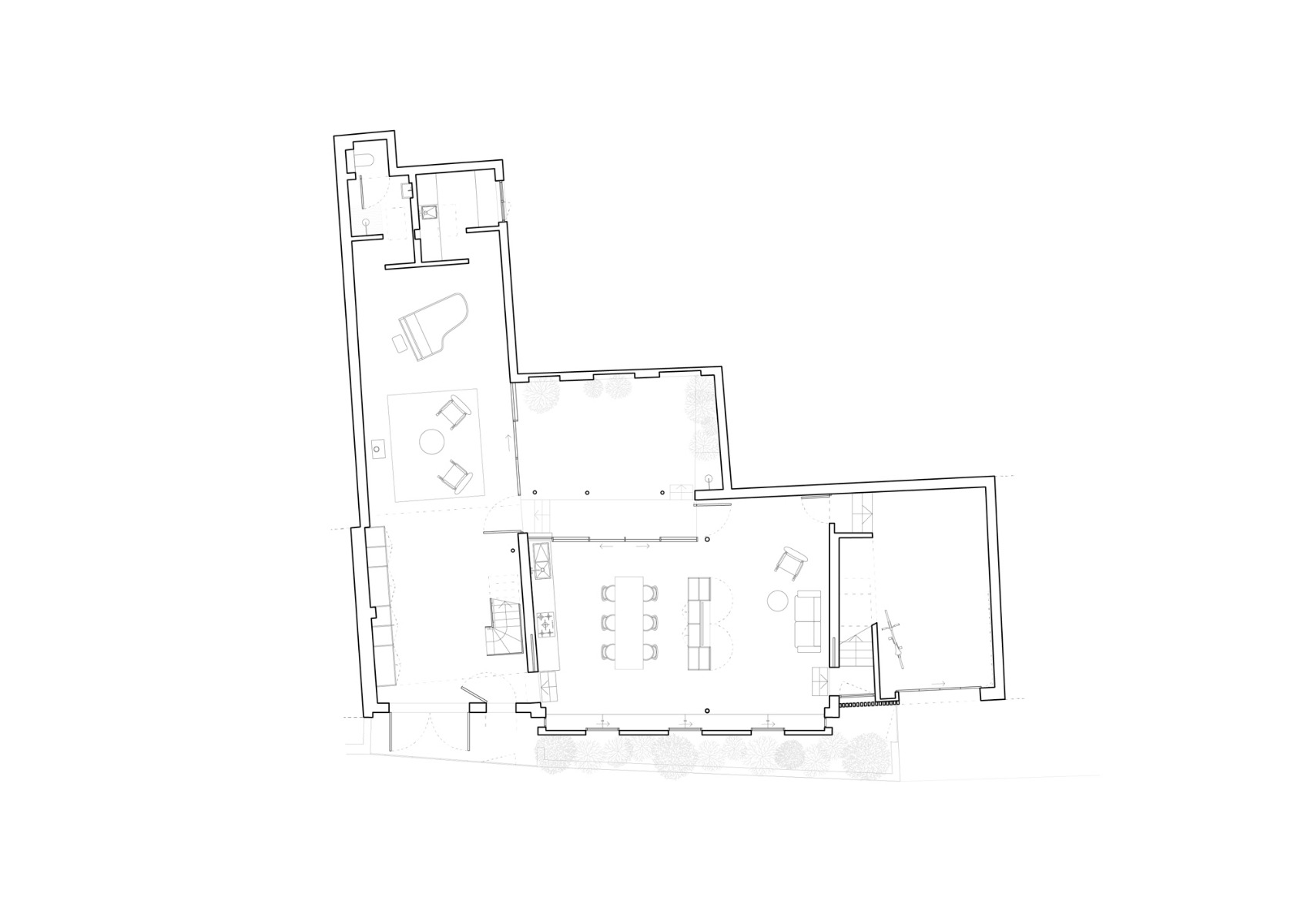
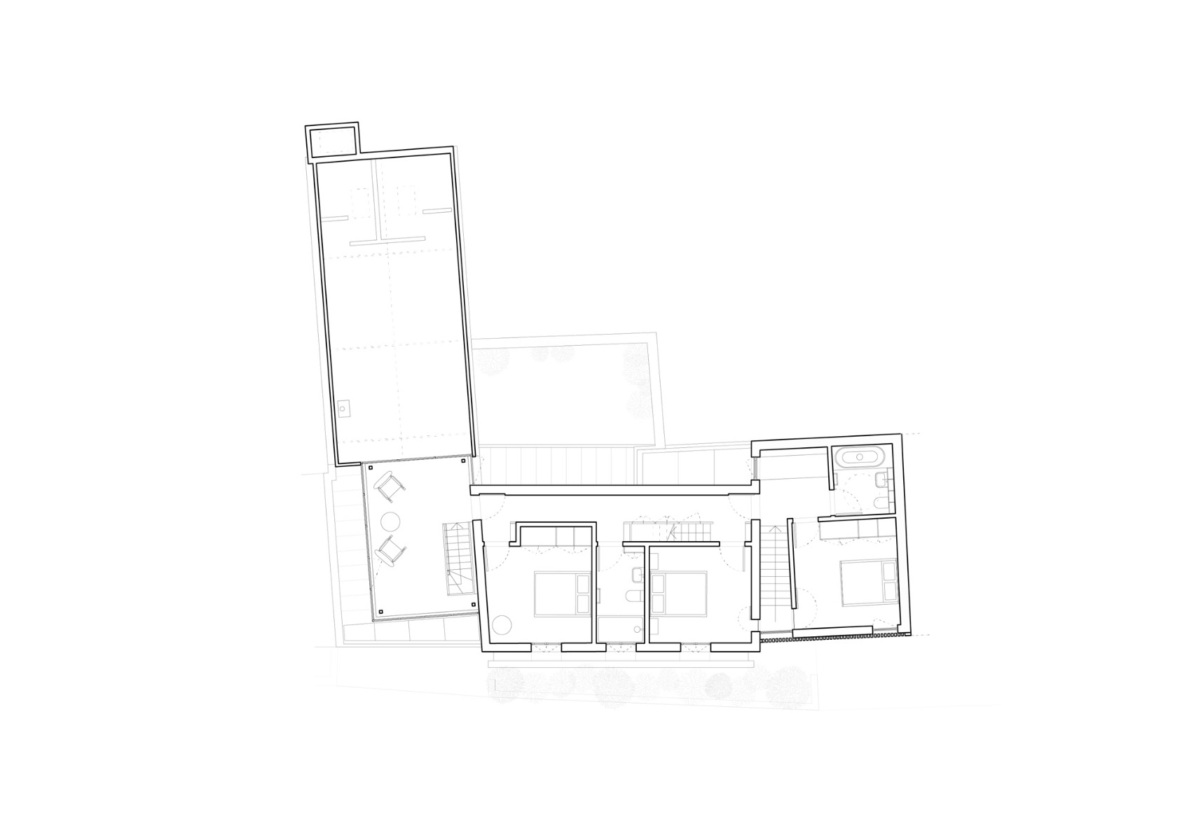
Das dreigeschossige Haupthaus mit Satteldach stellt das Bindeglied zwischen den beiden seitlichen Baukörpern dar. Sie werden jeweils über Tore erschlossen und sind niedriger. Während im Erdgeschoss ein offener Gemeinschaftsbereich mit Küche zum Mittelpunkt des Wohnhauses wird, schließt rechts die Garage und im oberen Stockwerk ein Gästezimmer mit eigenem Bad an. Das linke Volumen zieht sich bis weit nach hinten. Es beinhaltet ein großes Atelier. Zwei Schlafräume und ein Badezimmer in der ersten Etage sowie ein loftartiger Arbeitsbereich unter dem Dach komplettieren das Raumprogramm der Urban Barn.


© Nick Dearden


© Nick Dearden
Lorem Ipsum: Zwischenüberschrift
In allen drei Gebäudeteilen sind die Räume mit viel Liebe zum Detail gestaltet: Ziegel, Stein, Holz und weiße Einbauten ergeben eine schlichte und doch kraftvolle Gesamtkomposition. Sie fungiert als dezenter Hintergrund für Kunstwerke und andere Objekte. Die Treppen werden als eingesetzte Elemente selbst zur Raumskulptur oder bieten integrierten Stauraum. Oberlichter und gezielt gesetzte Fensteröffnungen lenken das Tageslicht geschickt ins Innere und runden das sanierte Haus perfekt ab.
Architektur: Jonathan Tuckey Design
Bauherr: Privat
Standort: London (GB)



















