Low-Tech im Bestand
Sanierung der Architekturhochschule in Singapur
Architekturhochschule in Singapur, © Finbarr Fallon
Bei der Sanierung zweier Hochschulgebäude der National University of Singapore setzte das Planungsteam auf ein hybrides Klimakonzept, um den Plusenergiestandard zu erreichen. Für die Umbauplanung zeichneten die Mitarbeiter der Architektur- und Designfakultät selbst verantwortlich. Unterstützt wurden sie von den Architekten CPG Consultants und einem Ingenieurteam unter Mitwirkung des Büros Transsolar aus Stuttgart.


© Finbarr Fallon
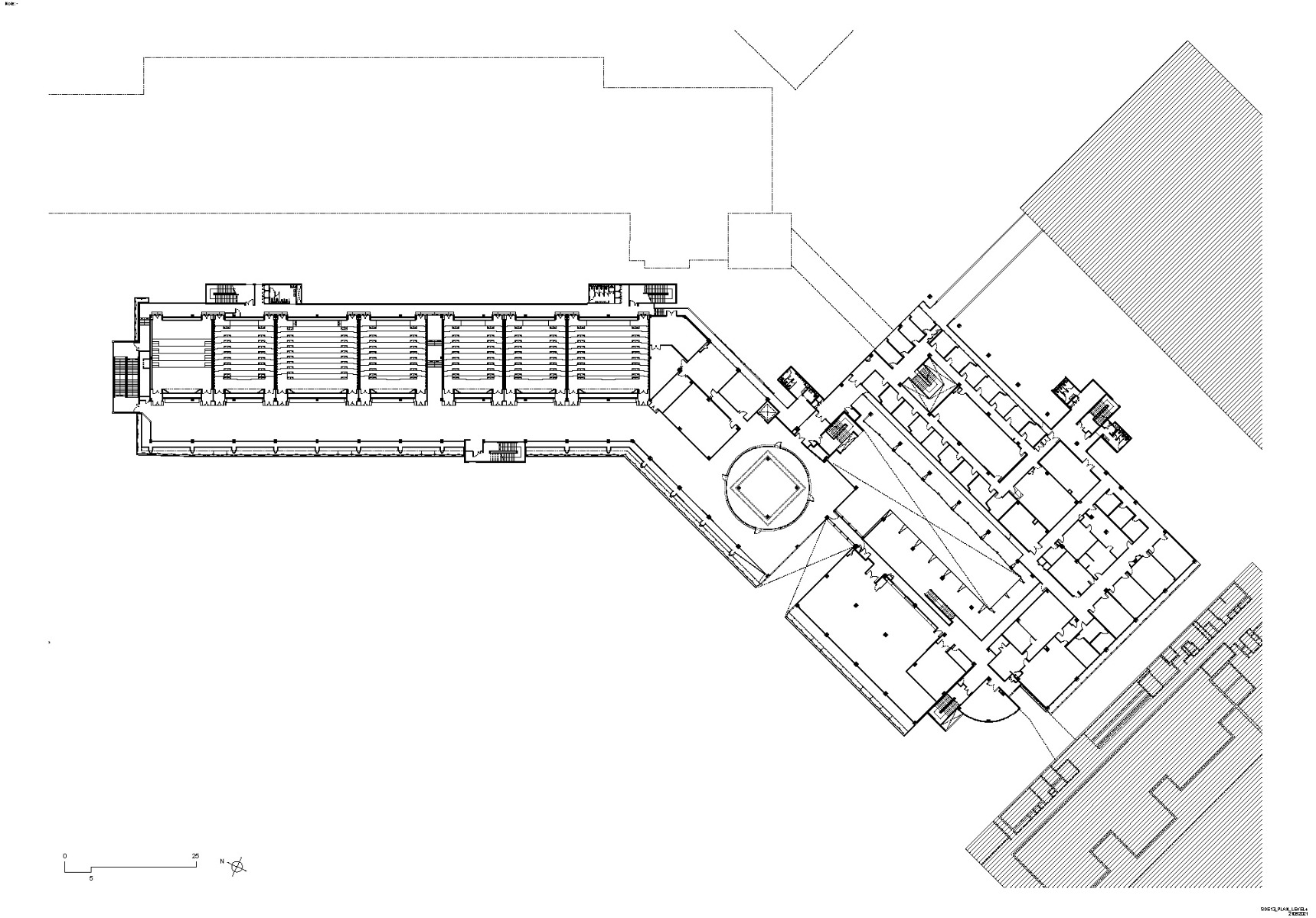
SDE1 und SDE3, so lauten die hausinternen Bezeichnungen der beiden winkelförmig aneinandergebauten Fakultätsgebäude auf dem Universitätscampus in Singapur. Mitte der 70er-Jahre sind sie entstanden, haben vier bis fünf Geschosse und waren bislang überwiegend voll klimatisiert. Das Resultat waren gewaltige Deckenhohlräume mit bis zu 1,8 m Höhe für die Leitungsführung – und entsprechend niedrige nutzbare Raumhöhen für die Studierenden darunter. Lediglich die Erschließungsbereiche waren offen und hatten somit Außenklima.
Weniger Klimaanlagen, weniger Energiebedarf
Durch die Sanierung ist der Energiebedarf der Gebäude nun auf rund ein Drittel gesunken und der Flächenanteil der voll klimatisierten Räume ebenso. Die meisten Bereiche in den Gebäuden sind nun rein natürlich belüftet oder erhalten Luft aus einer Lüftungsanlage mit Wärmerückgewinnung, deren Kühleffekt durch Deckenventilatoren unterstützt wird.


© Finbarr Fallon
Raumkonzept
Auf die rund 24 000 m² Bruttogrundfläche der Gebäude verteilen sich nun sieben Hörsäle, 13 Seminarräume, 60 Büroräume, fünf große Arbeitsräume für die Studierenden und ebenso viele Werkstätten. In unmittelbarer Nähe der Design Studios liegt ein Ausstellungsbereich für die Arbeiten der Studierenden. Hinzu kommt eine 1000 m² große Loggia mit Außenklima.


© Finbarr Fallon
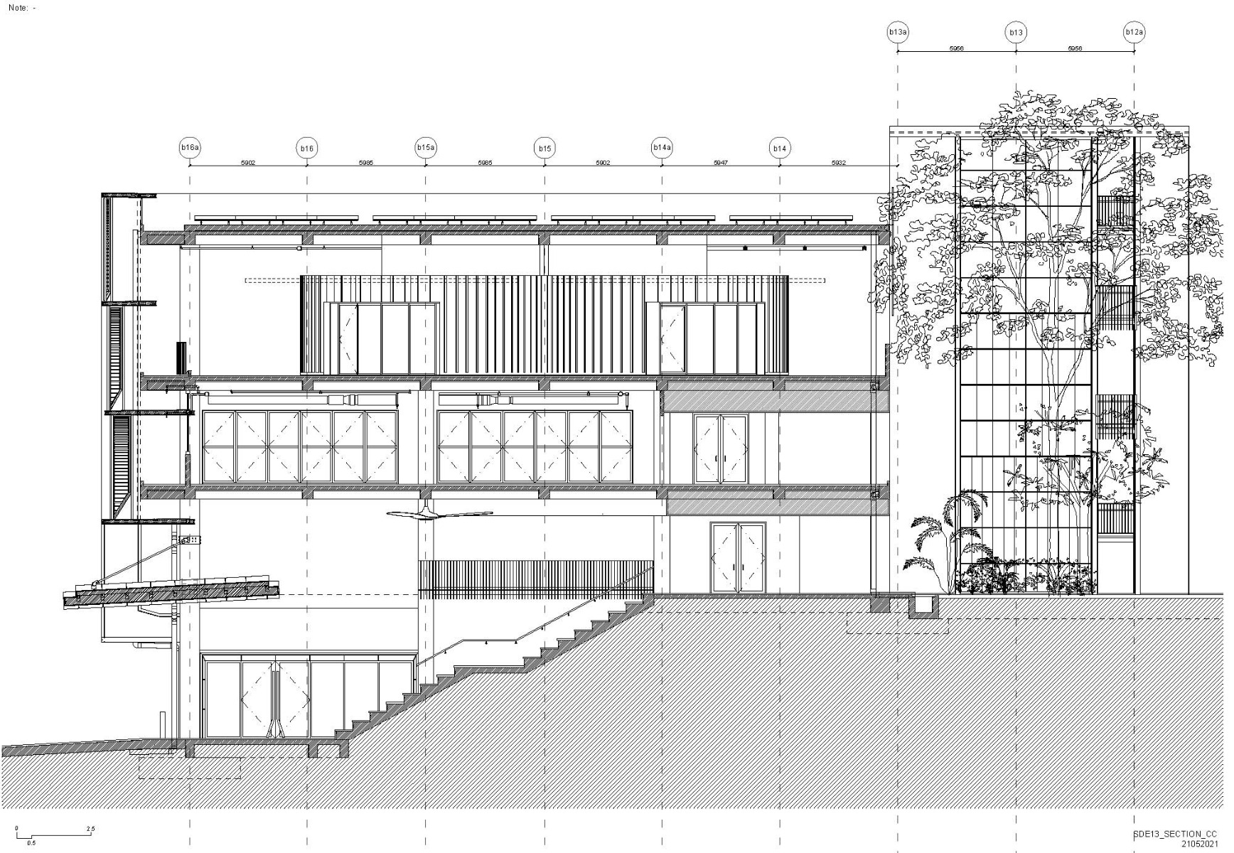
Brise-soleil für Schatten und Tageslicht
Mehr Tageslicht, mehr natürliche Belüftung, eine höhere Raumluftqualität und mehr thermischer Komfort – so lauteten die vier Hauptziele des Klimakonzepts von Transsolar. Dafür war auch die Umgestaltung der beiden Längsfassaden nötig, an denen relativ dichte Brise-soleils bisher den größten Teil des Tageslichts fernhielten. Die neue, deutlich leichtere Verschattungsstruktur an der Westfassade besteht dagegen aus ziehharmonikaartig gefalteten Elementen mit integrierten horizontalen Aluminiumlamellen. Dahinter folgt zunächst eine offene Balkonzone und erst dann, hinter einer Verglasung, der Innenraum.


© Finbarr Fallon
Im oberen Bereich des Lamellenvorhangs sind horizontale „Lightshelves“ integriert, die das steil einfallende Sonnenlicht gegen die Raumdecke und damit tief in den Innenraum reflektieren. Auf der Ostseite ist die Verschattungslösung weniger elaboriert, da hier der dichte Pflanzenbewuchs und die Nachbargebäude den größten Teil des direkten Sonnenlichts fernhalten.
Architektur: School of Design and Environment, National University of Singapore, CPG Consultants
Bauherr: National University of Singapore
Standort: 4 Architecture Dr, Singapore 117566 (SG)
Tragwerksplanung: E2000
Landschaftsarchitektur: SDE Special Projects, DP Green
TGA-Planung: WSP Consultancy
Klimakonzept: Transsolar Energietechnik
Akustik: CCW Associate
Bauunternehmen: Lian Soon Construction






























