Mit Licht und Farbe gestalten
Sanierung eines Wohnhauses bei Prag
Innenfenster und Maueröffnungen schaffen unerwartete Verbindungen zwischen den einzelnen Räumen des Wohnhauses. © Alex Shoots Buildings
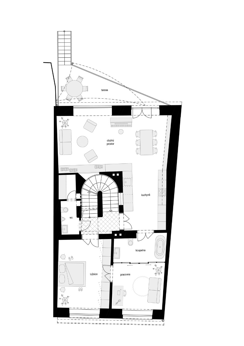
Hauptziel von Byro Architekti war es, die ursprünglichen Schichten des Hauses wiederzuentdecken. Die neuen Eingriffe sollen dem Gebäude moderne Impulse verleihen: Innenfenster und Maueröffnungen schaffen dabei unerwartete Verbindungen zwischen den einzelnen Räumen des Hauses.
Leitmotiv Treppe
Leitmotiv des Hauses ist eine Wendeltreppe, die das Gebäude vertikal verbindet. Glasbausteine und Fensteröffnungen vermitteln horizontal zwischen den einzelnen Räumen. Zwischen Erdgeschoss und Obergeschoss befindet sich die vorhandene Steintreppe; eine Etage darüber haben Byro Architekti eine neue Stahltreppe eingefügt. Ein Oberlicht krönt den oberen Treppenabschluss und bringt natürliches Licht in den Kern des Hauses.


Die Fassade des sanierten Wohnhauses in Prag ist mit Strukturputz gestaltet. © Alex Shoots Buildings


Helle Farbtöne zieren die Innenräume. © Alex Shoots Buildings
Farbgestaltung
Neben der Arbeit mit dem Licht trägt auch die Farbgestaltung zur Stimmung und zum Charakter des Hauses bei. Die Fassade ist zurückhaltend mit Strukturputz gestaltet, die Innenwände mit Kratzputz. In engem Dialog mit den Bauherren wurden für die Innenräume gedeckte Farbtöne in Grün und Blau gewählt, kombiniert mit kräftigeren Farbflächen oder Akzenten in Orange. Bänke und Arbeitsflächen im Innenbereich, die Außenfensterbänke sowie die Treppe im Innenhof sind aus Sichtbeton. Die Möbel sind großteils Sonderanfertigungen, entworfen von Byro Architekti.
Architektur: Byro architekti
Bauherr: privat
Standort: Kutna Hora (CZ)







