// Check if the article Layout ?>
Sauber gelöst: Erweiterung des Kärcher-Firmensitzes in Winnenden
Foto: Brigida Gonzalez
Mit Badeöfen begann die Unternehmensgeschichte vor 80 Jahren. Doch seit Alfred Kärcher 1950 den ersten modernen Hochdruckreiniger auf den Markt brachte, hat sich der Firmenname Kärcher bei den Hausmeistern, Bauarbeitern und Sarkozys dieser Welt als Synonym für die Hightech-Variante schwäbischer Sauberkeit etabliert. Im Frühjahr 2015 spendierte das Unternehmen der UNESCO eine Gratis-Reinigung der Aachener Domfassaden und ist auch darüber hinaus im karitativen Bereich aktiv.
Seit 2005 hat sich die weltweite Mitarbeiterzahl der Firma verdoppelt, und fast folgerichtig meldete auch der Unternehmensstammsitz in Winnenden bei Stuttgart neuen Platzbedarf an. Da dieser auf dem historischen Firmenareal nicht mehr zu befriedigen war, erwarb das Unternehmen das 13 Hektar große Gelände einer benachbarten Ziegelei für künftige Erweiterungen. Lediglich eine Bahnlinie trennt Alt und Neu voneinander.
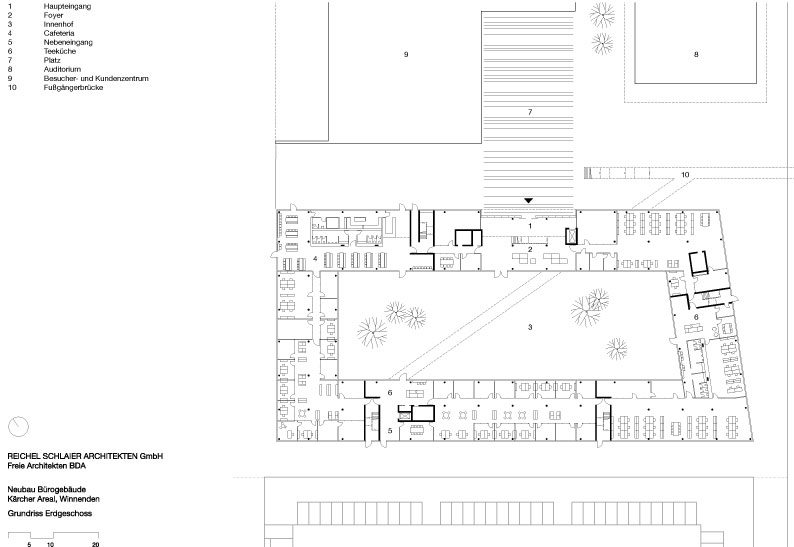
Sie zu überbrücken, war nur der kleinste Bestandteil der Bauaufgabe, für die die Alfred Kärcher GmbH 2012 einen internationalen Wettbewerb auslobte. Insgesamt sind nach den Entwürfen der Wettbewerbsgewinner Reichel Schlaier Architekten binnen kurzer Zeit drei Neubauten entstanden: ein neues Bürogebäude für 700 Mitarbeiter, ein Vortragssaal für 800 Personen sowie ein Besucherzentrum mit Ausstellungsflächen, Präsentationsräumen und einem Café. Als Reminiszenz an die einstige Nutzung erhielten die Architekten den historischen Schornstein der Ziegelei. Er wurde in einen Annex des Besucherzentrums integriert. Wer dort nun die Toiletten besucht, sieht sich unvermittelt mit den gerundeten Ziegelmauern des Industrieschlots konfrontiert.
Kärcher-Gelb hinter Glasfassaden
Die Dreigliederung des Bauprogramms war eine Idee der Architekten, um die Neubauten im Vergleich zu der heterogenen, aber meist flachen umliegenden Bebauung aus Wohnhäusern, Industriebauten und Einkaufszentren nicht allzu hoch und voluminös in Erscheinung treten zu lassen. Zwischen ihnen ist ein zentraler Platz entstanden, auf den hinaus sich bei Bedarf auch Messen, die im Besucherzentrum stattfinden, erweitern können.
Im neuen Bürogebäude wurden auf vier Etagen 700 Arbeitsplätze geschaffen. Vier je 13,5 Meter tiefe Büroflügel umgeben einen begrünten Innenhof. Diese klassische Ringform soll laut Architekten ein Maximum an Flexibilität bieten. Die Bürofassaden sind geschosshoch verglast und zurückhaltend gestaltet, so dass das Kärcher-Gelb einiger prägnanter Elemente im Innenraum auch den äußeren Eindruck des Gebäudes prägt. Dazu zählen etwa die gelbe Längswand in der Cafeteria, die mit ihren langen Holztischen zur Kommunikation einlädt, und die Treppenbrüstungen im zweigeschossigen Eingangsfoyer. Über einen Abzweig dockt das Bürohaus unmittelbar an die Stahlfachwerkbrücke über die Bahngleise an. Die Brücke wurde diagonal durch den Innenhof fortgeführt, um den Büroangestellten aus allen Bereichen des Bürogebäudes einen möglichst direkten Weg zum alten Firmenstammsitz zu ermöglichen.
Das neue Auditorium ist ebenso verglast wie der Büroneubau, aber mit einem markant geschwungenen Dach versehen. Eine gleichfalls geschwungene Trennwand trennt das Foyer im Gebäudeinneren von dem Veranstaltungssaal, der sich durch mobile Trennwände in 2-3 kleinere Einheiten unterteilen lässt. Der obere Teil der Wand trägt einen Bilderfries mit Kärcher-Motiven, den eine Lichtlinie in der Decke effektvoll in Szene setzt.
Während Foyer und Saal einen einheitlichen Gussasphaltboden erhielten, ist die Deckenuntersicht im Saal deutlich stärker von der hier erforderlichen Technik geprägt. Deckensegel verbessern die Akustik und dienen nebenher zum Kühlen und Heizen. In den Fugen zwischen ihnen ist die Beleuchtung und Beschallung integriert. Die gebogene Wand ist ebenfalls mit akustisch wirksamen Elementen verkleidet, die durch vertikale Eichenholzprofile optisch gegliedert werden.
Besucherzentrum mit „klarer Kante“
Einen – zumindest äußerlich – scharfen Kontrast zu den beiden übrigen Bauten bildet das Besucherzentrum auf der Nord- und Westseite des Platzes. Mit seinen horizontal gebänderten Ziegelwänden erinnert es noch am ehesten an die Geschichte des Standorts. Eine drei Meter hohe Glasfront öffnet sich über die gesamte Gebäudelänge zum Platz hin; weiter oben sind die Fassaden komplett fensterlos. Das war in dieser Konsequenz nur möglich, weil die Innenräume weitgehend von oben belichtet werden. Der L-förmige Neubau beherbergt auf der Nordseite ein zweigeschossiges Café und im Westen ein Foyer mit darüber eingehängter Mezzaninebene. Dahinter öffnet sich die 800 Quadratmeter große und acht Meter hohe, zentrale Ausstellungshalle, die auch für Messen genutzt werden kann. Auf der Nordseite der Halle schließen sich auf zwei Ebenen Konferenz- und Seminarräume an.
weitere Informationen:
Bauleitung: ABP Projektmanagement + Alfred Kärcher GmbH & Co. KG
Brandschutz: LW Konzept (Bürogebäude+Auditorium)
Halfkann + Kirchner (Besucher- und Kundenzentrum)
Elektro: Alfred Kärcher GmbH & Co. KG (Bürogebäude)
Raible + Partner (Auditorium+Besucher- und Kundenzentrum)
HLS: Alfred Kärcher GmbH & Co. KG
Tragwerk: Pfefferkorn Ingenieure (Bürogebäude+Auditorium)
Bogenschütz Ingenieurbüro für Bauwesen (Besucher- und Kundenzentrum)
Bauphysik: Horstmann + Berger
Organisatorische Gebäudeplanung: if5 - anders arbeiten (Bürogebäude)
Brandschutz: LW Konzept (Bürogebäude+Auditorium)
Halfkann + Kirchner (Besucher- und Kundenzentrum)
Elektro: Alfred Kärcher GmbH & Co. KG (Bürogebäude)
Raible + Partner (Auditorium+Besucher- und Kundenzentrum)
HLS: Alfred Kärcher GmbH & Co. KG
Tragwerk: Pfefferkorn Ingenieure (Bürogebäude+Auditorium)
Bogenschütz Ingenieurbüro für Bauwesen (Besucher- und Kundenzentrum)
Bauphysik: Horstmann + Berger
Organisatorische Gebäudeplanung: if5 - anders arbeiten (Bürogebäude)





















