// Check if the article Layout ?>
Schicht für Schicht: Stratum House von stpmj
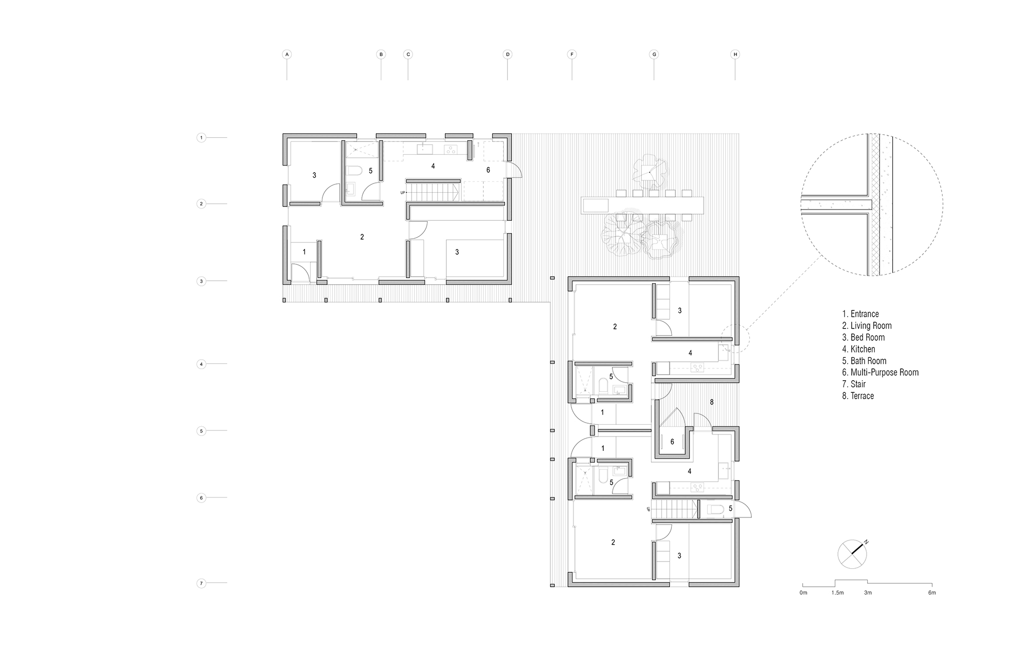
Das Mehrfamilienhausprojekt der koreanischen Architekten stpmj ist gewissermaßen ein Heimspiel. Auf einem rechteckigen Grundstück entwerfen sie zwei separate Baukörper, mit drei einzelnen Wohneinheiten, die sich rund um einen gemeinsamen Vorplatz und Garten zu einem kleinen Ensemble zusammenfügen. Der liebevoll gestaltete Außenraum schließt direkt an die Südseite des Bauplatzes an. Er wird von Holzstegen eingefasst und ist in der Mitte bepflanzt. Von hier aus erfolgt außerdem die Erschließung.
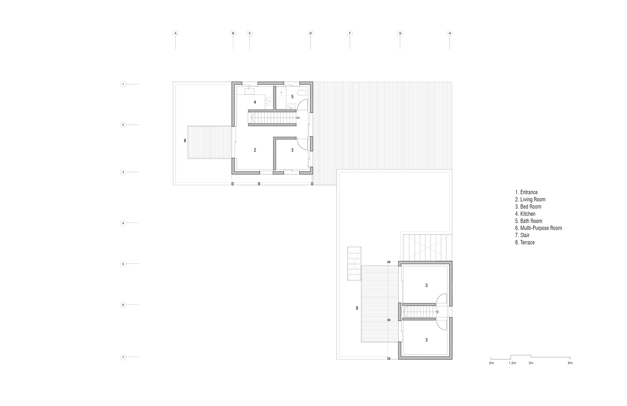
In nordwestlicher und nordöstlicher Richtung befinden sich die beiden Gebäude. Sie stehen lotrecht zueinander, sind zum Platz hin orientiert und werden an der Nordecke über eine gemeinschaftlich genutzte Terrasse verbunden. Bei den beiden Bauten handelt es sich um schlichte, zweigeschossige Kuben, die mit einem Flachdach abschließen. Die Grundrissgestaltung fokussiert Funktionalität und Platzoptimierung gleichermaßen. Während die im Erdgeschoss untergebrachten Wohnräume nach Süd bzw. Ost ausgerichtet sind und sämtliche Bereiche verbinden, gibt es nach oben hin privatere Zimmer. Im ersten Stock bieten kleine Terrassen die Möglichkeit für Privatsphäre. Das Design der Einheiten ist durchwegs hell und schlicht – weiße Oberflächen in Kombination mit warmen Holzböden schaffen ein angenehmes Wohnambiente.
Das Hauptaugenmerk des Projekts liegt auf dem Werkstoff Beton und seiner Verarbeitung. Durch Veränderungen in seiner Konsistenz, Struktur und Farbe entsteht in diversen Experimenten, und unter Berücksichtigung von gewissen Parametern hinsichtlich seiner Festigkeit, eine Palette an verschiedenen »Betonsorten«. Dies geschieht zum einen über das Mischverhältnis, zum anderen über die Modifikation der Zuschlagsstoffe und Farbpigmente. Innerhalb von 22 Tagen werden die Wände jeweils um eine der divergierenden Schichten ergänzt und bleiben als innengedämmter Sichtbeton nach außen hin unverkleidet. Die Fassaden variieren nicht nur farblich, sondern auch in ihrer Haptik und verleihen dem Stratum House sein charakteristisches Äußeres.





















